
In March 2024, CALQ and Bond Society completed the refurbishment and conversion of a high-rise office building into an innovative mixed-use programme (coliving, coworking and PAB)named PONG for Covéa Immobilier, project owner, in the 15th arrondissement of Paris.
42, rue Cambronne, in the 15th arrondissement of Paris, the transformation of the building constructed in the early 1970s by architect Marcel Roux to house ADOMA’s head office is complete. Reflecting the architectural practice of the time, the composition is clear and legible: a systematic facade of prefabricated concrete panels covers the different volumes.
The building features three superimposed volumes (a base projecting slightly from the street, a bar and a tower), separated from each other by hollow-jointed storeys (the ground floor and the G+4).
Underpinning the new project led by Covéa Immobilier, this architectural composition has been preserved and enhanced, allowing each programme to intuitively find its place and benefit from outdoor space.
The horizontal volume houses office space used for coworking, the ground floor is lively and open to the city, while the basements have been transformed to house double-height activities open to the public. These interventions have revitalised the relationship between the building and the city.
The vertical volume is home to a new type of coliving accommodationg
To keep pace with changing lifestyles, PONG offers young professionals a range of new and complementary uses, including coliving accommodation and a coworking facility that is technologically adapted to young companies. In addition, the building offers 1,100 sq. m. of activities open to the public (ERP - 3rd category), a café and a community centre.
The coliving flats, developed by the start-up Colonies, are located in the upper part of the building (G+5 to G+13) and have a welcoming rooftop. Thanks to its experience in coliving, the Bond Society agency was able to support the integration of this new use.
The general concept developed by the architects is based on different layers of privacy: shared spaces (lobbies, landings, sports hall, laundry, etc.), semi-private spaces (shared living areas) and private spaces (individual housing).
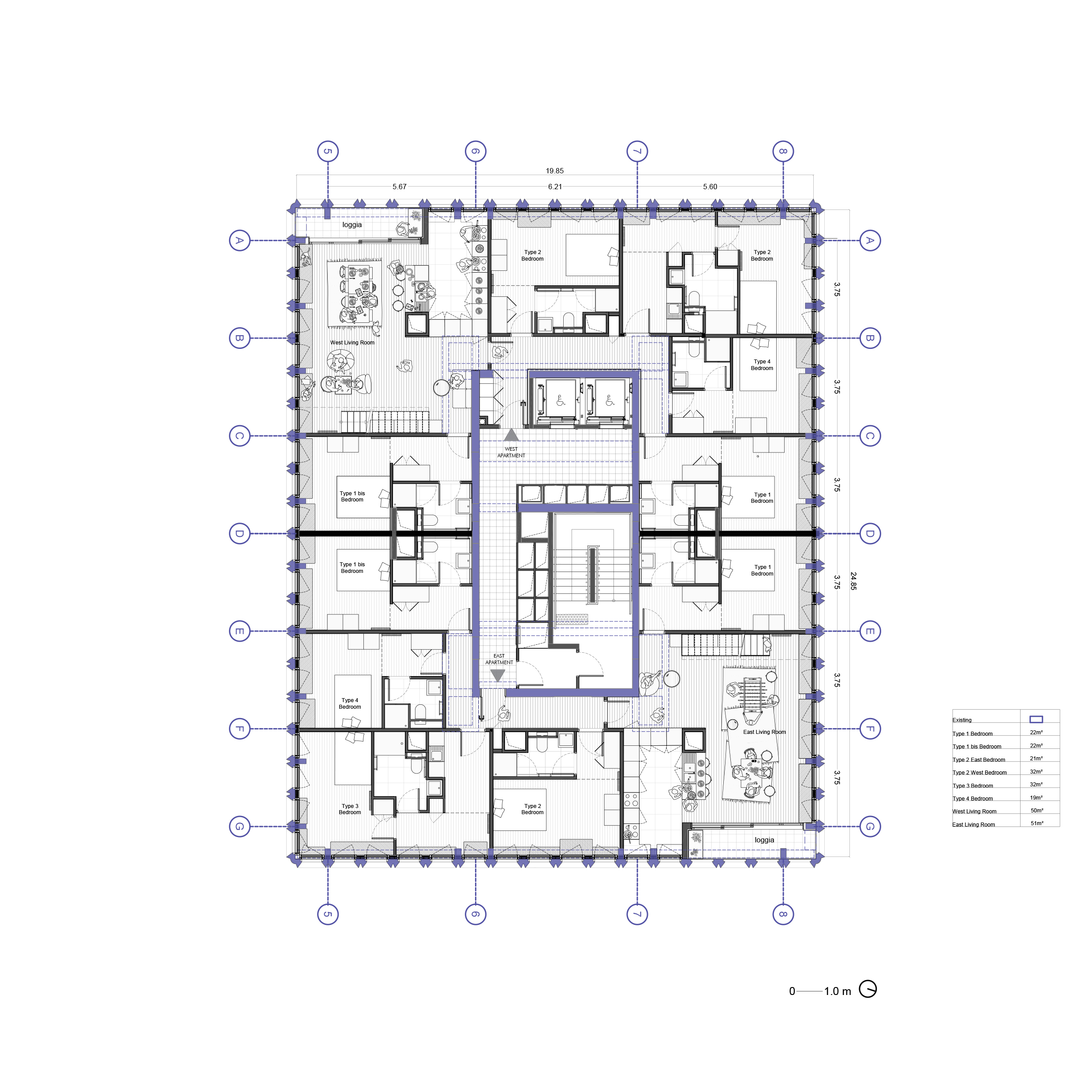
The floor plans evoke the dynamism of the tenants, with the flats revolving around the core while retaining the location of the structural elements. Reinforced floors and acoustic partitions between each bedroom (usually reserved for separating flats) ensure real comfort for residents.
The eight duplex flats have 12 bedrooms, ranging in size from 16 to 32 sq. m., arranged around a living area with a double-height loggia. Each room has its own shower room, and some have a kitchenette, ensuring that residents can live independently. Bond Society designed the custom-made furniture in all the bedrooms and shared areas, to give the homes a distinctive identity and offer customised features (desks, storage units, seating, etc.).
Intermediate housing (30%) at attractive rents, also benefiting from a range of services, completes the coliving offer.




Coworking - An incubator for new technologies
Like a forum, PONG is a welcoming, multi-activity place for intergenerational exchange. The first three coworking levels are spaces to be fitted out, delivered open plan, with optimised ceiling heights.
The G+4, a hollow joint between volumes, marks the superimposition of the mix and defines the silhouette of PONG. The large bay windows all along the wasp-waisted facade converse with the outside and echo the transparency created on the ground floor.
On the upper floors (G+1 to G+3), the integration of full-height internal frames in the protected circulation areas of the high-rise building has made it possible to resolve the severe safety constraints and open up views to the outside from the landing.
The fine, meticulous design by CALQ has made it possible to incorporate all the technical constraints, which have been grouped in large numbers around the central core that houses all the vertical elements (lifts, Chambord staircases, diversion of the accommodation ducts and transit of the IGH ducts). The horizontal distribution has been divided between the ceiling and the parapets. The floor layout has allowed the visible networks to be laid out aesthetically on the ceiling, while the interior parapets have become clever boxes which, in addition to incorporating
technical elements, are useful on a day-to-day basis for the building’s users. The dialogue between the materials - concrete, metal and glass - reveals the original building, the memory of the existing building and brings light and well-being to its occupants.
Generous outdoor spaces
A sloping forecourt crosses the difference in level between the city and the raised ground floor, freeing the building from its prominent base and projecting PONG onto the neighbourhood. The opening up of large glazed areas on the ground floor underlines the lightness of the recessed volume, allowing the activity to be seen without disturbing it. In addition to the hall with access to the coliving and coworking areas, the ground floor features a community centre and a café open to local residents.
Each of PONG's developments has its own outdoor space. Designed to vibrate with the rhythm of the life in the building and add value to its use, they are built in such a way as to limit any potential nuisance to local residents. The entire building, which was originally completely mineral, is planted with vegetation (around 2,000 sq. m).
The ground floor is surrounded by green spaces accessible to users. On G+4 the offices have a generous terrace with a variety of seating options for a different way of working. On G+13, the coliving tenants enjoy a roof terrace with a panoramic view over the 15th arrondissement and Paris, while the eight double-height loggias create depth and vertical space for plants to grow. The 'revolving' coliving floor plans allow these new outdoor spaces to be distributed around the four corners of the building. The workspaces on this atypical level have a generous terrace.




Innovation and exemplarity: conserving, transforming and enhancing existing assets
Limited demolition
The decision to conserve and transform this 20th century heritage for a new life cycle is an important step towards decarbonisation: the existing materials are reclaimed and reused. Demolition was limited to what was strictly necessary: redesigning the vertical circulation within the bracing core, passing ducts, opening up the duplex staircases and creating the double-height base.
The envelope
Dating from 1974, the envelope is made up of prefabricated concrete panels that give the building a strong identity, even though they have lost their original blue colour. The architectural approach was to get as close as possible to the original appearance and to make the alveoli stand out more clearly. On the one hand, the prefabricated concrete panels have been refurbished in line with the findings of a diagnosis of existing disorders. Secondly, the window frames have been redesigned to match the original design, while incorporating the latest thermal performance features. High-performance joinery has been installed, and the clear glazing improves the quality of visual comfort inside the spaces: more natural light and more views. More than 800 window frames and detailed design work have been used to restore the original alveoli.
A materiality reflecting the history of the building
The concrete, left exposed in all the spaces (halls, staircases, offices, housing, etc.), acts as a link and a common thread between the different programmes. It offers users a memory of the place, its history, a trace of the past.
The facade has been entirely preserved, its thermal capacity enhanced by insulation from the inside.
Converting an IGH (high-rise building)
The heart of the project lay in changing the use of the building, which had been declared an IGH (high-rise building). How could an innovative mixed-use program be integrated into the verticality of the building?
Of course, flow and fire safety were at the heart of the challenge: superimposing programs and therefore regulations (10 derogations, 8 specific points in relation to IGH regulations). With regard to flow management, the preservation of the original core and the building's IGH classification meant that the different programs had a common hall.
The rehabilitation of this exceptional building is in line with the Paris Climate Plan.








건축가 CALQ, Bond Society
위치 프랑스, 파리
면적 7,950㎡
준공 2024. 3.
구조엔지니어 S2T
구조안전 Hugues Sitoleux
외부공간기술 VIATEC ECO
조경 MUGO
건축주 Covéa Immobilier
사진작가 11h45
'Architecture Project > Office' 카테고리의 다른 글
| Toranomon Hills Station Tower (0) | 2024.08.06 |
|---|---|
| Bonfiglioli HQ (0) | 2024.07.31 |
| MONOSPINAL (0) | 2024.06.11 |
| 140 Wireless Building (0) | 2024.05.29 |
| Raffine (0) | 2024.05.17 |
마실와이드 | 등록번호 : 서울, 아03630 | 등록일자 : 2015년 03월 11일 | 마실와이드 | 발행ㆍ편집인 : 김명규 | 청소년보호책임자 : 최지희 | 발행소 : 서울시 마포구 월드컵로8길 45-8 1층 | 발행일자 : 매일



