
도라노몬힐스 스테이션 타워
도라노몬힐스 스테이션 타워는 도쿄 중심부로 이어진 모리 빌딩(Mori Building) 비전의 마지막 건물로, 글로벌 비즈니스 센터의 허브 역할을 하는 지상 49층 규모의 마천루 건축물이다. 건축가는 개방적인 접근 방식을 통해 건축물과 도시 사이를 연결하고, 도시의 맥락을 긴밀하게 연결하는 인터페이스를 만들어 냈다.
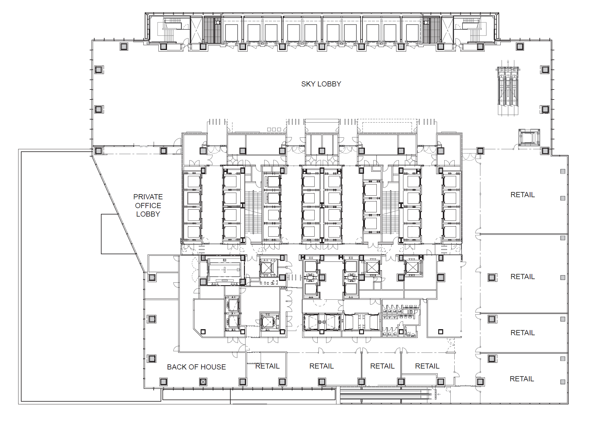
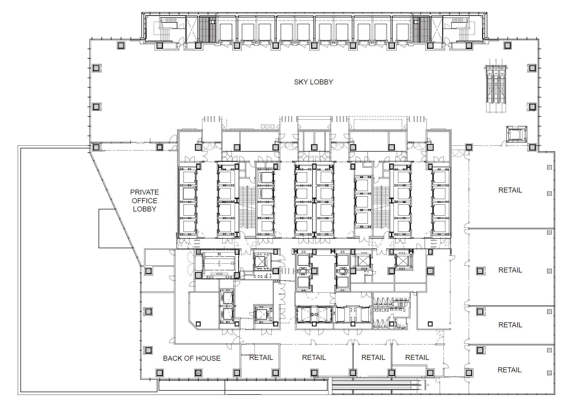
도라노몬힐스 스테이션 타워는 도쿄 도심과 연결된 신토라 도리(Shintora-dori)의 종점에 위치한다. 새로운 도쿄 지하철 역의 지하 타워와 연결되어 있으며, 빛으로 가득한 아트리움과 소매점 그리고 도쿄 노드(TOKYO NODE)로 불리는 문화 센터를 포함한 공공시설 기반을 갖추고 있다. 그 사이에는 호텔과 임대 사무실 층이 있다. 이러한 시설과 공공성을 고려한 모임 공간이 집중된 도라노몬힐스 스테이션 타워는 도쿄 지역의 상업 및 문화 활동의 새로운 중심지로 자리잡았다.
건물의 매스는 거리의 축을 확장한 형태로, 코어를 들어올리고 양측을 분할하여 대중을 안쪽으로 끌어모으는 형태가 되었다. 주변의 녹지와 연결된 보행용 브리지는 건물을 두 개의 소매시설 구역으로 나눈다. 브리지를 기준으로 하부 구역에 위치한 아트리움은 새로운 도쿄 지하철 역과 바로 연결되는데, 이 지하철역은 외부로 개방되어 있어 자연 채광이 풍부하고 타워 내부로의 접근이 용이하다. 하부 구역의 공공 활동은 타워 전체에 걸쳐 수직으로 확장되어 입주자를 위한 특별한 중앙 구역과 연결된 ‘밴드’를 형성한다. 건물의 여러 지점에서 볼 수 있는 이 ‘밴드’를 중심으로 두 개의 슬래브가 역대칭으로 형성되어 있다. 북측의 슬래브는 임페리얼 팰리스(Imperial Palace)를 기준으로 정상을 향해 좁아지는 형태이며, 남측의 슬래브는 상부로 향할수록 넓어져 도쿄 타워와 롯폰기 힐스 스카이라인의 전망을 극대화한다.







Toranomon Hills Station Tower serves as a hub for global business with a 49-story skyscraper, and is the final building in Mori Building's vision for the center of Tokyo. The architect employed an open approach to connect the building with the city and create an interface that closely ties into the urban context.
The Toranomon Hills Station Tower is situated at the end of Shintora-dori, which connects to central Tokyo. It is linked to the new Tokyo Metro station via an underground tunnel and features a light-filled atrium, retail shops, and public services, including a cultural center known as Tokyo Node. In between, there are hotel and rental office floors. With these facilities and its focus on public spaces, the Toranomon Hills Station Tower has become a new hub for commercial and cultural activities in the Tokyo area.
The building's mass extends along the street's axis, raising the core and splitting the sides to draw the public inward. A pedestrian bridge connected to surrounding green spaces divides the building into two retail areas. The atrium, located in the lower zone of the bridge, directly connects to the new Tokyo Metro station. This metro station is open to the outside, providing ample natural light and easy access to the tower's interior. Public activities in the lower zone continued vertically throughout the tower, forming a "band" that connects special central areas for tenants. This "band," visible from various points in the building, forms the center of two symmetrically opposed slabs. The north slab narrows toward the top with a view of the Imperial Palace, while the south slab widens toward the top, maximizing views of the Tokyo Tower and Roppongi Hills skyline.













건축가 OMA
위치 일본, 도쿄
면적 236,640㎡
규모 지상 49층, 지하 4층
높이 266m
준공 2023. 10.
대표건축가 Shohei Shigematsu, Takeshi Mitsuda, Jake Sadler-Foster, Luke Willis
디자인팀 Yuzaburo Tanaka, Sumit Sahdev, Yoshiki Matsuda, Anahita Tabrizi, Sergio Zapata, Timothy Tse, Yusef Ali Dennis, Stavros Voskaris, Tommaso Bernabo Silorata, Jackie Woon Bae, Eduardo Tazon Maigre, Tristan Zelic, Noam Dvir, Remy Bertin, Juan Pablo Zepeda, Mitchell Lorberau, Alan Song, Sukjoo Hong, Ken Chongsuwat, Caroline Corbett, Ninoslav Krgovic, Natasha Trice, Toru Okada, Timothy Ho, Andrea Zalewski, Alyssa Murasaki Saltzgaber, Chong Ying Pai, Minkoo Kang, Joanne Chen, Jeremy Kim, Daeho Lee, Mattia Alfieri, Tetsuo Kobayashi, Assaf Kimmel, Aishwarya Keshav, Danni Zhang, Yuriko Tanabe, Taro Kagami, Tomotsugu Ishida, Bom Chinburi, Jade Kwong, Phillip Denny, Miguel Darcy, Eugenia Bevz, Shary Tawil, Wesley Ho, Nicholas Solakian, Carly Dean, Elly Cho, Tamara Jamil, Matthew Davis, Darby Foreman
경영지원 Mori Building Co., Ltd., Kume Sekkei
구조 Kume Sekkei, (공모전) Arup Japan
M&E Kume Sekkei
파사드 Kume Sekkei, Arup Japan
조명 Arc Light Design, L’Observatoire International
주계약자 Kajima Corporation
사진작가 Jason O Rear, Tomoyuki Kusunose
해당 프로젝트는 건축문화 2024년 7월호(Vol. 518)에 게재되었습니다.
The project was published in the July, 2024 recent projects of the magazine(Vol. 517).
July 2024 : vol. 517
Contents : SKETCH Strange and Ornate Line in Paris / Anastasia Lavru파리의 이상하고 화려한 선들 / 아나스타샤 라브루 : COMPETITION : RECENT PROJECT ITZAE / YEHA PARTNERS architects 잇재 / 건축사사무소
anc.masilwide.com
'Architecture Project > Office' 카테고리의 다른 글
| Oppo Technology and Research Centre Tower (0) | 2024.08.08 |
|---|---|
| The Spiral (0) | 2024.08.07 |
| Bonfiglioli HQ (0) | 2024.07.31 |
| PONG Building (0) | 2024.07.15 |
| MONOSPINAL (0) | 2024.06.11 |
마실와이드 | 등록번호 : 서울, 아03630 | 등록일자 : 2015년 03월 11일 | 마실와이드 | 발행ㆍ편집인 : 김명규 | 청소년보호책임자 : 최지희 | 발행소 : 서울시 마포구 월드컵로8길 45-8 1층 | 발행일자 : 매일



