
더 스파이럴
더 스파이럴은 뉴욕시 허드슨대로(Hudson Boulevard) 10번가와 서부 34번가 사이에 위치한 상업용 초고층 건축물로, 비아이지(BIG)에서 준공한 최초의 초고층 빌딩이기도 하다. 맨해튼 스카이라인까지 확장된 하이 라인의 북측 끝에 자리잡은 건축물은 부지의 구획 범위를 따라 위로 올라갈수록 점차 줄어드는 부피의 매스를 지니고 있다. 계단식으로 선보인 건축 언어는 엠파이어 스테이트 빌딩, 록펠러 센터와 같은 지구라트(Ziggurat)의 실루엣을 상기시키며 맨해튼의 고전적인 초고층 빌딩의 디자인 미학을 연상시킨다. 동시에 온실을 연상시키는 유리 패널의 외관과 현대적인 재료를 사용한 디테일은 현대적인 고층 건축의 특징을 나타낸다.
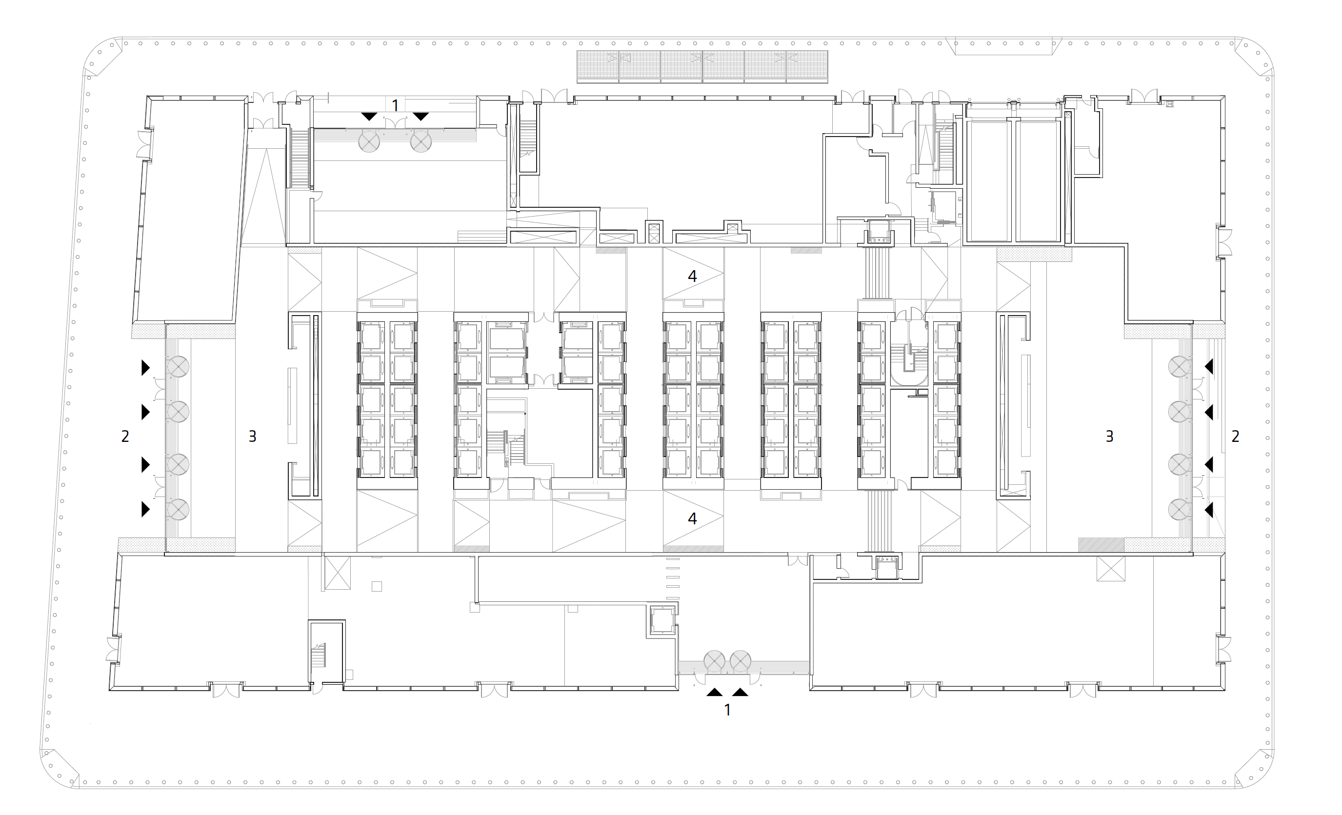
더 스파이럴의 각 층 테라스에서는 맨해튼, 허드슨강, 뉴저지의 인상적인 전망을 감상할 수 있다. 일부 층은 일반적인 층고의 두 배 높이의 편의 공간을 제공하며, 인접한 층을 오를 수 있는 웅장한 계단을 마련하여 사용자 간의 상호작용을 장려한다. 한편 사무실 내부와 자연환경이 통합된 공간적 특징과 더불어, 변화하는 사용자의 요구에 따라 지속적으로 대응할 수 있는 현대적인 업무 공간이다.
계단식으로 조경된 테라스와 공중정원은 나선형으로 건물의 외관을 휘감고 올라가 각 사무실 층에서 쉽게 접근할 수 있는 테라스 공간을 제공한다. 이 테라스는 외부에서 바라보면 독특한 ‘녹지 리본’처럼 보이며 건물을 따라 스카이라인까지 타고 올라가는 것을 확인할 수 있다. 이 정원은 고층 건축 조경에 있어 새로운 유형으로 선구자적 역할을 한다. 한 층에서 다른 층으로, 연속적으로 이어지는 녹지의 흐름 속에서 건물의 각각 다른 측면에 도달하는 일광과 바람, 온도에 적합한 식재를 고려했다. 건물 내부의 식물을 위해 넉넉히 마련된 천장 높이와 특수 제작된 외부 유리 코팅은 자연광을 안으로 깊이 들인다. 건물의 배수 관리 시스템은 빗물을 모아 계단식 조경에 전체적으로 재분배할 수 있도록 설계되어 매년 수백만 갤런의 물을 절약할 수 있다. 이러한 지속 가능한 관개 시스템은 맨해튼 스카이라인의 또다른 친환경 시설로 자리매김하게 될 것이다.



The Spiral is a commercial skyscraper located between 10th Avenue and West 34th Street on Hudson Boulevard in New York City. It is the first high-rise building completed by the architecture firm BIG. Positioned at the northern end of the High Line, which extends into the Manhattan skyline, the building features a massing that gradually reduces in volume as it rises, following the site's zoning boundaries. Its terraced architectural language evokes the silhouette of ziggurats like the Empire State Building and Rockefeller Center, reminiscent of the classic skyscraper design aesthetics of Manhattan. At the same time, the glass panel exterior and modern materials used in the details represent the characteristics of contemporary high-rise architecture.
Each floor terrace of The Spiral offers impressive views of Manhattan, the Hudson River, and New Jersey. Some floors provide double-height spaces with grand staircases that connect to adjacent floors, encouraging interaction among users. The interior of the offices integrates with the natural environment, making it a modern workspace that can continually adapt to changing user needs.
The landscaped terraces and sky gardens spiral up around the building’s exterior, offering easily accessible terrace spaces on each office floor. From the outside, these terraces appear as a unique "green ribbon" wrapping around the building and ascending to the skyline. This garden serves as a pioneering example of high-rise landscaping. The continuous flow of greenery from one floor to another takes into account the sunlight, wind, and temperature to determine suitable plants for various sides of the building. Generous ceiling heights and specially crafted exterior glass coatings ensure that natural light penetrates deeply into the building's interior. The building’s drainage system is designed to collect rainwater and redistribute it throughout the terraced landscaping, potentially saving millions of gallons of water each year. This sustainable irrigation system will establish The Spiral as another eco-friendly facility within the Manhattan skyline.








건축가 BIG(Bjarke Ingels Group)
위치 미국, 뉴욕
면적 2,800,000㎡
규모 지상 66층
높이 314.40m
준공 2023
대표건축가 Bjarke Ingels, Daniel Sundlin
프로젝트건축가 Dominyka Voelkle
기술감독 Douglass Alligood
디자인팀 (설계) Adrien Mans, Agla Egilsdottir, Ali Chen, Alvaro Velosa, Andreas Buettner, Andrew Lee, Anton Bashkaev, Armen Menendian, Beat Schenk, Benjamin Caldwell, Bernardo Schuhmacher, Cadence Bayley, Carolien Schippers, Cheyenne Vandevoorde, Christopher David White, Christopher Tron, David Brown, Davide Maggio, Deborah Campbell, Denys Kozak, Dong-Joo Kim, Erin Yook, Florencia Kratsman, Francesca Portesine, Gabriel Jewell-Vitale, Gabriella Den Elzen, Gaurav Sar-dana, Giulia Frittoli, Haochen Yu, Hung-Kai Liao, Ibrahim Salman, Jack Lipson, Jan Casimir, Jan Leenknegt, Janice Rim, Janie Louise Green, Jennifer Wood, Joshua Burns, Josiah Poland, Juan David Ramirez, Julie Kaufman, Kurt Nieminen, Lisbet Fritze Trentemøller, Lucio Santos, Luke Lu, Mackenzie Keith, Margaret Tyrpa, Maria Eugenia Dominguez, Martynas Norvila, Ma-teusz Rek, Maureen Rahman, Megan Van Artsdalen, Michael Zhang, Nicholas Potts, Otilia Pupezeanu, Phawin Siripong, Ra-chel Coulomb, Ruo Wang, Ryan Duval, Sang Ha Jung, Seo Young Shin, Simon Lee, Terrence Chew, Thea Gasseholm, Thomas Christoffersen, Tracy Sodder, Veronica Acosta. Veronica Moretti, Wells Barber, Will Fu, Yaziel Juarbe, Yenhsi Tung, Zoltan David Kalaszi / (조경) Emily Chen, Giulia Frittoli, Joseph Kuhn, Kathleen Cella, Kelly Neill, Lou Arencibia, Manon Otto, Marcus Wilford, Matteo Gawlak, Matthew Lau, Morgan Mangelsen, Simon David, Tony-Saba Shiber, Varat Limwibul
시공 Turner construction
협력사 Adamson Associates, Turner Construction, WSP Cantor Seinuk, Cosentini, Langan, Edgett Williams Consulting Group, Thornton Tomasetti, Heintges, Vidaris, Entek Engineering, FMS, Pandiscio, Doyle Partners, Squint Opera, Siteworks, Northern Design, Space Copenhagen, Michaelis Boyd, Studio Drift, Banker Steel, Roger & Sons, Permasteelisa, CMI, Vitrocsa, W+ W, Top Shelf Electric, Otis, National, Bamco, Garcia, Jacobson & Company, Cooper Plastering, Sponzilli, JBB, BIG Landscape, BIG Ideas
클라이언트 Tishman Speyer
사진작가 Laurian Ghinitoiu
해당 프로젝트는 건축문화 2024년 7월호(Vol. 518)에 게재되었습니다.
The project was published in the July, 2024 recent projects of the magazine(Vol. 517).
July 2024 : vol. 517
Contents : SKETCH Strange and Ornate Line in Paris / Anastasia Lavru파리의 이상하고 화려한 선들 / 아나스타샤 라브루 : COMPETITION : RECENT PROJECT ITZAE / YEHA PARTNERS architects 잇재 / 건축사사무소
anc.masilwide.com
'Architecture Project > Office' 카테고리의 다른 글
| Star River Headquarters (0) | 2024.08.09 |
|---|---|
| Oppo Technology and Research Centre Tower (0) | 2024.08.08 |
| Toranomon Hills Station Tower (0) | 2024.08.06 |
| Bonfiglioli HQ (0) | 2024.07.31 |
| PONG Building (0) | 2024.07.15 |
마실와이드 | 등록번호 : 서울, 아03630 | 등록일자 : 2015년 03월 11일 | 마실와이드 | 발행ㆍ편집인 : 김명규 | 청소년보호책임자 : 최지희 | 발행소 : 서울시 마포구 월드컵로8길 45-8 1층 | 발행일자 : 매일



