
스타 리버 본사
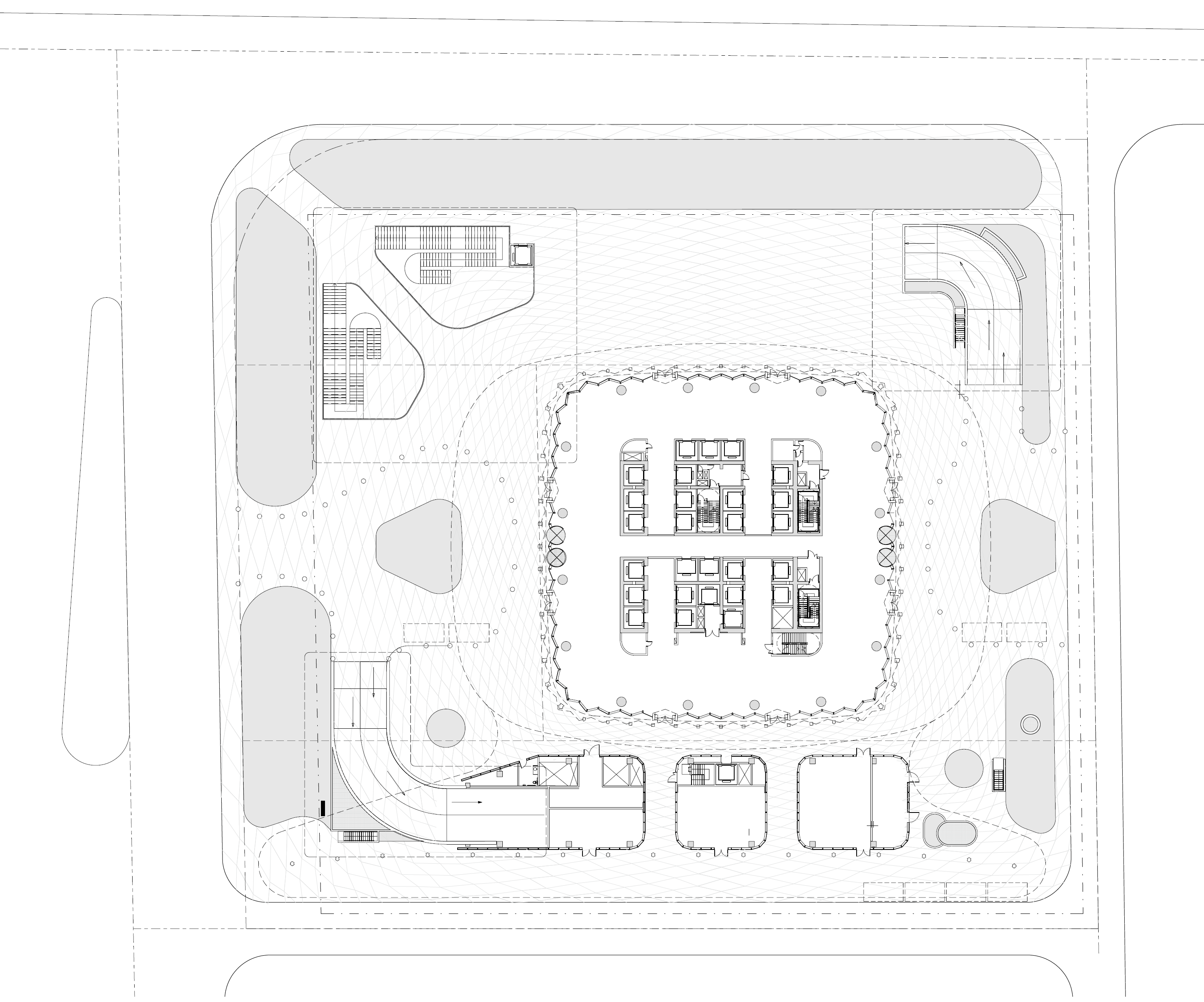
광저우의 파저우 섬(Pazhou Island) 비즈니스 지구에 추가된 스타 리버 본사는 녹지 공간과 지붕이 있는 통로, 소매 및 상업시설이 결합하여 재개념화 된 마천루다. 역사적으로 무역의 중심지였던 파저우 섬은 현대적인 상업 중심지로 떠오르고 있는데, 스타 리버의 새로운 본사는 이러한 변화의 상징이 되었다. 멀리서 보면 건축물의 주름진 형태의 파사드가 점점 가늘어지면서 포물선 형태로 솟아올라 빛과 그림자의 수직면을 만들어 독특함을 더한다. 스타 리버 본사는 에스오엠(SOM)이 자사에서 설계한 또다른 고층 건축물인 광저우 상공회의소와 사니 이로텍 파저우(SANY Irotech Pazhou) 근처에 위치한다. 이 건물들이 모여 파저우의 스카이라인을 새롭게 만들어 내며 풍경과 공공 공간을 통합시키고, 중국 도시를 강화하는 새로운 차원의 업무용 건축물을 선보인다.
스타 리버 본사의 로비는 무성한 천연 조경과 유리가 방사형으로 둘러싼 형태의 현대적인 공공 광장의 역할을 한다. 건물의 시그니처 캐노피는 기계실을 숨기기 위해 블록의 가장자리를 형성하여 소건물 위로 뻗어 형성되었는데, 이에 더해 보행자를 위한 아케이드 지붕의 역할을 한다. 지면을 깎아 만든 계단식 출입구는 각종 소매점, 지하철과 연결된다. 건물의 테이퍼링 프로파일은 풍하중을 줄이는 요소다. 둥근 모서리에는 주장강(Pearl River)의 전망을 감상할 수 있도록 기둥이 없는 밝고 개방적인 바닥판을 사용했다.
내부에는 에너지 소비를 줄이고 탄소 발생을 최소화하기 위한 쾌적한 업무 공간을 설계했다. 주름진 창의 형태는 주변의 개방형 사무실과 폐쇄형 사무실에 각각 적합한 크기의 창을 만들어 다양한 향을 조망한다. 또한 외벽에 그늘을 만들어 직사광선으로 인한 복사열을 줄이고 확산된 일광이 내부로 깊이 들어올 수 있게 한다. 여기에 고성능 커튼 월 시스템과 단열재, 외부 덮개를 사용하여 냉방 부하를 줄이고 항상 쾌적한 실내를 유지한다.




The Star River headquarters, added to the business district on Pazhou Island in Guangzhou, is a reimagined skyscraper that combines green spaces, covered walkways, and retail and commercial facilities. Historically a trade hub, Pazhou Island is emerging as a modern commercial center, and the new Star River headquarters symbolizes this transformation. From a distance, the building's wrinkled facade tapers upward in a parabolic shape, creating vertical planes of light and shadow that add to its uniqueness. The Star River headquarters is located near other high-rises designed by SOM, the Guangzhou Chamber of Commerce, and the SANY Irotech Pazhou. These buildings collectively redefine Pazhou's skyline, integrating the landscape and public spaces while introducing a new dimension of office architecture that strengthens the urban fabric of the Chinese city.
The lobby of the Star River headquarters functions as a modern public plaza, radially surrounded by lush natural landscaping and glass. The building's signature canopy extends over the block's edge to conceal mechanical rooms while also serving as an arcade roof for pedestrians. The terraced entrance, carved into the ground, connects to various retail stores and the subway. The building's tapering profile helps reduce wind loads and the rounded corners feature bright and open floor plates without columns, offering views of the Pearl River.
Inside, the design creates comfortable workspaces that reduce energy consumption and minimize carbon emissions. The wrinkled shape of the windows provides appropriately sized openings for both open-plan and enclosed offices, offering diverse views. The facade creates shading that reduces solar heat gain from direct sunlight while allowing diffused daylight to penetrate deeply into the interior. Additionally, the use of high-performance curtain wall systems, insulation, and exterior shading reduces cooling loads and maintains a consistently comfortable indoor environment.









건축가 SOM(Skidmore, Owings & Merrill)
인테리어 ChengChung + Design
위치 중국, 광저우
면적 120,000㎡
규모 지상 48층
높이 259.50m
준공 2023
대표건축가 Skidmore, Owings & Merrill(SOM), Urban Rivers
LDI Guangzhou Design Institution
조명 Leox Design Partnership
파사드 Shanghai PFT Construction Consulting Co.
주계약자 Zhongtian Construction Group Co., Ltd.
클라이언트 Guangzhou Star River Commercial Investment And Development Co, Ltd.
사진작가 Seth Powers
해당 프로젝트는 건축문화 2024년 7월호(Vol. 518)에 게재되었습니다.
The project was published in the July, 2024 recent projects of the magazine(Vol. 517).
July 2024 : vol. 517
Contents : SKETCH Strange and Ornate Line in Paris / Anastasia Lavru파리의 이상하고 화려한 선들 / 아나스타샤 라브루 : COMPETITION : RECENT PROJECT ITZAE / YEHA PARTNERS architects 잇재 / 건축사사무소
anc.masilwide.com
'Architecture Project > Office' 카테고리의 다른 글
| SK hynix Cheongju SUPEX Center (0) | 2024.08.15 |
|---|---|
| GRACE 573 (0) | 2024.08.13 |
| Oppo Technology and Research Centre Tower (0) | 2024.08.08 |
| The Spiral (0) | 2024.08.07 |
| Toranomon Hills Station Tower (0) | 2024.08.06 |
마실와이드 | 등록번호 : 서울, 아03630 | 등록일자 : 2015년 03월 11일 | 마실와이드 | 발행ㆍ편집인 : 김명규 | 청소년보호책임자 : 최지희 | 발행소 : 서울시 마포구 월드컵로8길 45-8 1층 | 발행일자 : 매일



