
오포 기술 및 연구 센터 타워
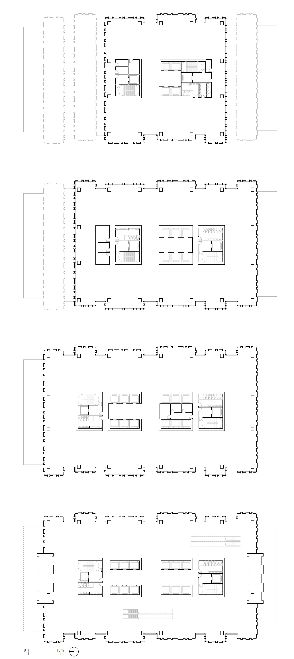
오포 기술 및 연구 센터 타워는 중국 청두의 남측, 휴대폰 제조업체인 오포(Oppo)의 기술 연구용 건물로 지어진 건축물이다. 이 프로젝트는 싱가포르-쓰촨 혁신 공원(Singapore-Sichuan Hi Tech Innovation Park) 마스터 플랜 내에서 중요한 역할을 한다. 42층으로 높이 솟아오른 수직 형태는 주변 저층건물 사이에서 인지도를 높여준다. 건물을 따라 형성된 수직의 홈은 건물의 큰 볼륨을 작게 나누며, 상부의 ‘랜턴’ 공간은 건물의 상부가 하늘에 녹아있는 것과 같은 효과를 준다. 건축가는 서로 다른 폭의 수직형 커튼월 시스템을 연속으로 사용하여, 유리를 통한 역동적이고 섬세한 패턴을 만들어 냈다. 다양한 문설주의 깊이는 파사드에 음영을 만들어 주변 환경에 긍정적인 영향을 준다.
오포 기술 및 연구 센터 타워는 수직 형태의 마을처럼 구상됐다. 5,000명이 넘는 엔지니어와 직원을 모두 수용할 수 있는 규모로 설계됐으며, 사용자에게 높은 수준의 일광을 보장하기 위해 수평 및 수직으로 이동하는 동선을 가진다. 평면 계획에서 주변과 엇갈리게 배치한 공간들은 일련의 ‘전망이 있는 방’의 이점을 가진다. 내부는 팀워크와 각종 연구에 도움이 되는 조용하고 고요한 환경을 유지할 수 있도록 구역을 분리하였고, 독립적인 업무를 위한 공간, 식사나 행사를 통해 직원이 교류할 수 있는 공간을 만들었다.





The Oppo Technology and Research Center Tower is located in the southern part of Chengdu, China, and serves as a research building for the mobile phone manufacturer Oppo. This project plays a significant role in the master plan of the Singapore-Sichuan Hi-Tech Innovation Park. The 42-story structure stands out among the surrounding low-rise buildings, enhancing its recognition. The perpendicular grooves along the building break down its large volume, while the “lantern” space at the top creates an effect of the upper part blending into the sky. The architect used a series of vertical curtain wall systems of varying widths, creating a dynamic and delicate pattern through the glass. The fluctuating depths of the mullions cast shadows on the facade, positively impacting the surrounding environment.
The Oppo Technology and Research Center Tower is located in the southern part of Chengdu, China, and serves as a research building for the mobile phone manufacturer Oppo. This project plays a significant role in the master plan of the Singapore-Sichuan Hi-Tech Innovation Park. The 42-story structure stands out among the surrounding low-rise buildings, enhancing its recognition. The perpendicular grooves along the building break down its large volume, while the “lantern” space at the top creates an effect of the upper part blending into the sky. The architect used a series of vertical curtain wall systems of varying widths, creating a dynamic and delicate pattern through the glass. The fluctuating depths of the mullions cast shadows on the facade, positively impacting the surrounding environment.








건축가 Gianni Botsford Architects
위치 중국, 청두
면적 68,000㎡
규모 지상 42층
높이 206m
준공 2023
대표건축가 Gianni Botsford
디자인팀 Gianni Botsford, Anahi Copponex, Liz Tatarintseva, Minghsuan Lo, Luigi Parise, Mike O’Hanlon, Hiroshi Takeyama, Luka Travas
경영지원 RJWu & Partner
구조 Zhejiang Huazhou Design Engineering Consulting co. Ltd
M&E Zhejiang Huazhou Design Engineering Consulting co. Ltd
인테리어 B+H Consulting International Inc.
조명 InhabitGroup
사진작가 Xiao Shihao
해당 프로젝트는 건축문화 2024년 7월호(Vol. 518)에 게재되었습니다.
The project was published in the July, 2024 recent projects of the magazine(Vol. 518).
July 2024 : vol. 517
Contents : SKETCH Strange and Ornate Line in Paris / Anastasia Lavru파리의 이상하고 화려한 선들 / 아나스타샤 라브루 : COMPETITION : RECENT PROJECT ITZAE / YEHA PARTNERS architects 잇재 / 건축사사무소
anc.masilwide.com
'Architecture Project > Office' 카테고리의 다른 글
| GRACE 573 (0) | 2024.08.13 |
|---|---|
| Star River Headquarters (0) | 2024.08.09 |
| The Spiral (0) | 2024.08.07 |
| Toranomon Hills Station Tower (0) | 2024.08.06 |
| Bonfiglioli HQ (0) | 2024.07.31 |
마실와이드 | 등록번호 : 서울, 아03630 | 등록일자 : 2015년 03월 11일 | 마실와이드 | 발행ㆍ편집인 : 김명규 | 청소년보호책임자 : 최지희 | 발행소 : 서울시 마포구 월드컵로8길 45-8 1층 | 발행일자 : 매일



