
양평주택 집宇집宙 는 부인의 암 완치를 5주년을 기념하는 젊은 부부와 그들의 반려견 반려묘를 위한 집이다. 집의 배치는 건축주가 희망하는 것과 대지의 조건이 절묘하게 맞물려 있다. 아침에 일출을 보면서 요가와 명상을 하고 싶다는 소망에 따라, 이웃집 사이에 일출을 볼 수 있는 위치를 찾아 침실의 동쪽 창을 냈고, 대지에 자리 잡은 돌의 위치와 높이에 맞춰 료칸처럼 독립적인 욕실을 구성해 안마당을 구성하여 집의 배치와 동선을 풀어냈다.
암 투병 이후의 삶을 위한 집이기에 처음부터 건강한 집이 목표였고 목구조가 우선적으로 고려되었다. 집은 목구조의 장점을 살리고 단점을 줄일 수 있게 하나의 지붕과 심플한 매스안에 다양한 내부 공간을 만들었다. 표면적은 적고 지붕 모양은 단순해서 하자의 우려가 적고 공사도 4개월만에 완성되었다.
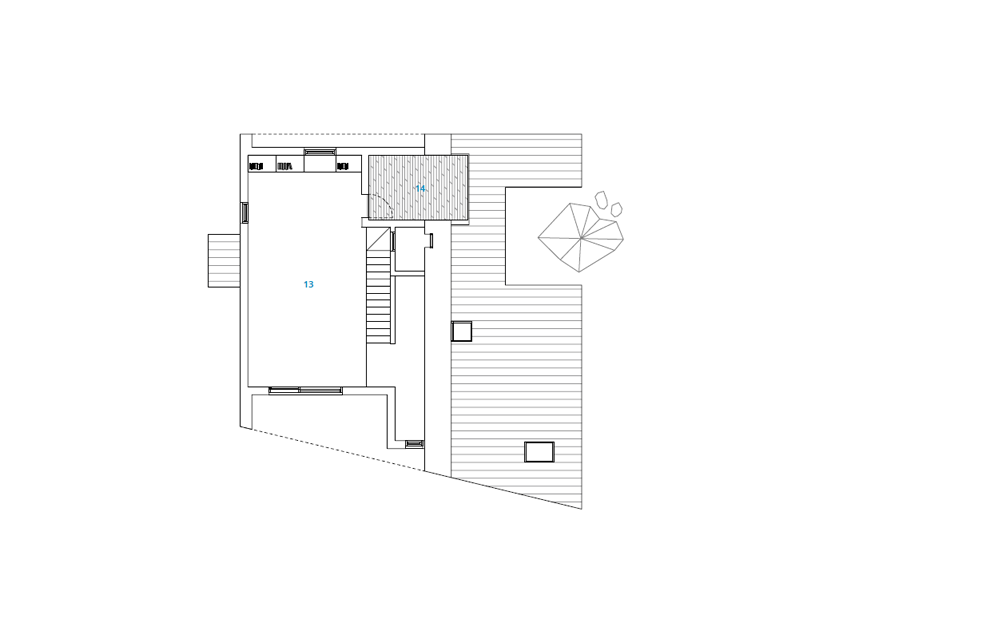
일반적인 방과 방으로 이루어지 집과 달리 집宇집宙 에는 슬라이딩 도어와 순환 동선으로 공간이 이루어져 있다. 이는 건축주의 집에 오는 손님들과 적당한 거리감과 공존을 위한 장치이다. 덕분에 40여평이 채 안되는 크지 않은 집이지만, 재택근무를 하면서 집에서 피아노 레슨도 하고 주말이면 친구들이 놀러와 숙박을 해도 불편함 없이 공간을 다양한 방법으로 확장하거나 분리하면서 유연하게 사용되고 있다.
집宇집宙라는 집의 이름은 ‘서로에게 지붕되고 기둥된다’는 의미로 건축주가 지은 이름이다. 집을 뜻하는 한자 宇(우)와 宙(주)는 지붕을 뜻하는 갓머리가 있는데, 큰 지붕 안에 다양한 항로와 궤도가 있는 집의 구조와 닮았다.

Yangpyeong House "宇宙" is a home for a young couple and their pets, commemorating the 5th anniversary of the wife's successful battle against cancer. The house's layout elegantly aligns with the desires of the homeowners and the conditions of the site. Responding to the owner’s wish to do yoga and meditation while watching the sunrise in the morning, a bedroom window facing east between neighboring houses was installed to capture the sunrise view. The placement of stones on the site and the height were considered when designing an independent bathroom resembling a Ryokan, forming a central courtyard, and resolving the arrangement and flow of the house.
As it was intended to be a home for life after a victory over cancer, prioritizing a healthy living environment was the initial goal, with a focus on timber framing. The house maximizes the advantages of timber framing, creating various internal spaces within a simple mass to minimize the drawbacks. With a small surface area and a simple roof shape, concerns about construction were minimized, and the project was completed in just four months.
Unlike typical homes with separate rooms, " 宇宙 " features sliding doors and a circular flow of spaces. This design maintains an appropriate distance and privacy when guests visit the homeowner. Thanks to this approach, the relatively small house, less than 40 pyeong (approximately 132 square meters), is used flexibly and comfortably. The space can be expanded or separated in various ways, accommodating activities like piano lessons during remote work and providing a relaxed stay for friends over the weekend.
The name " 宇宙 " means "to be a roof and pillar for each other," a name coined by the homeowners. The Chinese characters 宇 (U) and 宙 (Ju), meaning a house with a roof, resemble the structure of the house with various paths and orbits under a large roof.










건축가 건축사사무소 적정건축
위치 경기도 양평군 강상면 신화리
용도 단독주택
대지면적 427㎡
건축면적 130㎡
연면적 130㎡
규모 지상 2층
건폐율 30.04%
용적률 30.04%
설계기간 2020. 12. - 2021. 9.
시공기간 2022. 2. - 9.
준공 2022. 11.
대표건축가 윤주연
디자인팀 박세현
구조엔지니어 두항구조
기계엔지니어 청훈이엔지
전기엔지니어 건창기술단
시공 ㈜위빌 (현장소장:박영민)
발주자 이승준
사진작가 이원석
해당 프로젝트는 건축문화 2024년 2월호(Vol. 513)에 게재되었습니다.
The project was published in the February, 2024 recent projects of the magazine(Vol. 513).
February 2024 : vol. 513
Contents : COMPETITION : SKETCH A Landscape that is Hard to Pass / Johanna Sinkkonen 좀처럼 지나칠 수 없는 풍경 / 요한나 신코넨 : RECENT PROJECT IRIS Headquaters / RE:TMUS ARCHITECTS 아이리스 사옥 / 리트머스 건축사사무소 Ye
anc.masilwide.com
'Architecture Project > Single Family' 카테고리의 다른 글
| Villa Seung Seung (0) | 2024.03.29 |
|---|---|
| HMZ HOUSE (0) | 2024.03.19 |
| Yeoju Seo-ga(Project to Save the Plum Tree) (0) | 2024.03.15 |
| DAN HOUSE (0) | 2024.02.29 |
| Maison Noire (0) | 2024.02.28 |
마실와이드 | 등록번호 : 서울, 아03630 | 등록일자 : 2015년 03월 11일 | 마실와이드 | 발행ㆍ편집인 : 김명규 | 청소년보호책임자 : 최지희 | 발행소 : 서울시 마포구 월드컵로8길 45-8 1층 | 발행일자 : 매일



