
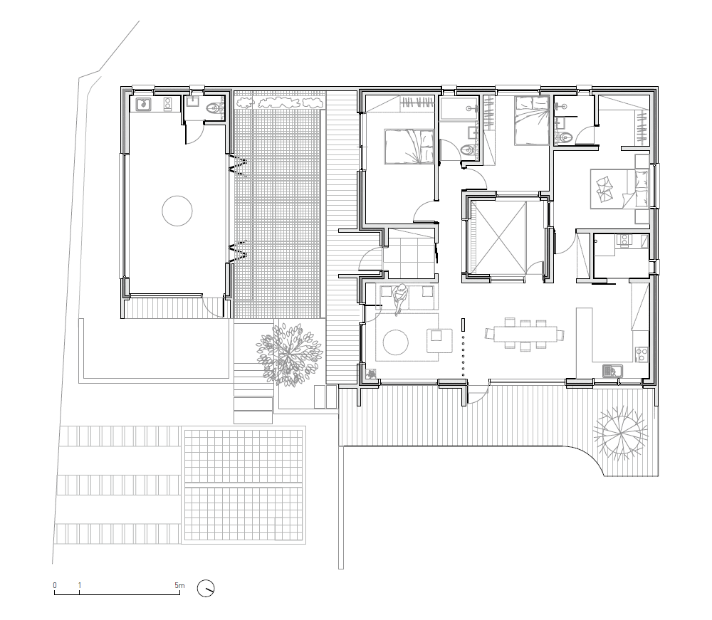
여주 서가(자두 나무 살리기 프로젝트)는 주변의 근경과 원경 모두 숲으로 둘러싸인 자연을 배경으로, 이형의 대지에 다양한 레벨을 통해 접근할 수 있도록 설계된 집이다. 건축주는 은퇴 이후의 삶을 고민했고, 아내의 정원과 남편의 목공방이 있는 집을 짓고자 했다. 이러한 요청 사항에 따라 두 가지 박스 형태의 기본 형태가 나왔다. 내부에는 작은 중정이 있으며, 원형의 천창이 있는 목공방이 자연스럽게 조화를 이룬다. 집의 평면이 단조롭고 간결하다 보니 그 부분을 보완하기 위한 디자인 요소로 처마, 각기 다른 기둥, 그에 따른 각 선들의 조합을 통해 입면상의 여러 레이어(켜)를 만들었다. 또한 오래 전부터 있던 자두 나무는 집과 공방 사이의 자연스러운 거리감을 만들어 냈다. 나무를 감싸는 형태로 설계된 낮은 담장, 외부 계단, 주진입 마당은 주거 공간 안에 다양한 분위기를 형성해준다. 내외부는 노출 콘크리트 마감으로 마감됐으며, 차가운 느낌의 인테리어를 보완하기 위하여 천장에 목재를 사용하거나 따뜻한 느낌의 톤으로 바닥을 마감하였다. 이외에도 조명과 문의 색상을 신경써서 계획했고, 집의 주생활 공간인 주방, 식당, 거실은 얇은 환봉과 기둥을 통해 완벽한 분리보다는 통합된 하나의 공간 속에 각기 다른 기능으로 구분되도록 설계했다.

The Yeoju Seo-ga (Project to Save the Plum Tree) is a house designed with multiple levels on a unique-shaped site surrounded by both nearby and distant forests serving as a natural backdrop. The homeowner contemplated life after retirement and decided to build a house with a garden for his wife and a woodworking shop for himself. Based on these requests, two basic box-shaped forms emerged. The interior features a small courtyard, and a circular skylight in the woodworking shop harmonizes seamlessly. To complement the simplicity of the house's plan, design elements such as eaves, various columns, and combinations of different lines were employed to create multiple layers on the facade. The existing plum tree, which has been there for a long time, naturally establishes a sense of distance between the house and the shop. Low walls designed to embrace the tree, external stairs, and the main entrance yard create atmospheres within the living space. The interior and exterior are finished with exposed concrete, while cozy wooden ceilings and floors with warm tones are used to offset the cool feel. Careful attention was given to lighting and the colors of the doors. The main living areas, including the kitchen, dining room, and living room, were designed to be integrated into one space with different functions, achieved through thin partitions and columns rather than complete separation.









건축가 BYHAND ARCHITECTS OFFICE
위치 경기도 여주시 산북면 용도 단독주택
대지면적 1,135㎡
건축면적 164㎡
연면적 164㎡
규모 지상 1층
건폐율 14.45%
용적률 14.45%
설계기간 2022. 4. - 9.
시공기간 2022. 11. - 2023. 4.
준공 2023. 4.
대표건축가 서성직
프로젝트건축가 김영우
디자인팀 바이핸드 건축사사무소
구조엔지니어 인선이엔씨
기계엔지니어 (주)태영EMC
전기엔지니어 가양전기
시공 유광옥, 서명주
발주자 유광옥, 서명주
사진작가 김용수
해당 프로젝트는 건축문화 2024년 2월호(Vol. 513)에 게재되었습니다.
The project was published in the February, 2024 recent projects of the magazine(Vol. 513).
February 2024 : vol. 513
Contents : COMPETITION : SKETCH A Landscape that is Hard to Pass / Johanna Sinkkonen 좀처럼 지나칠 수 없는 풍경 / 요한나 신코넨 : RECENT PROJECT IRIS Headquaters / RE:TMUS ARCHITECTS 아이리스 사옥 / 리트머스 건축사사무소 Ye
anc.masilwide.com
'Architecture Project > Single Family' 카테고리의 다른 글
| HMZ HOUSE (0) | 2024.03.19 |
|---|---|
| everything all at once (0) | 2024.03.18 |
| DAN HOUSE (0) | 2024.02.29 |
| Maison Noire (0) | 2024.02.28 |
| RIFT HOUSE (0) | 2024.02.23 |
마실와이드 | 등록번호 : 서울, 아03630 | 등록일자 : 2015년 03월 11일 | 마실와이드 | 발행ㆍ편집인 : 김명규 | 청소년보호책임자 : 최지희 | 발행소 : 서울시 마포구 월드컵로8길 45-8 1층 | 발행일자 : 매일



