
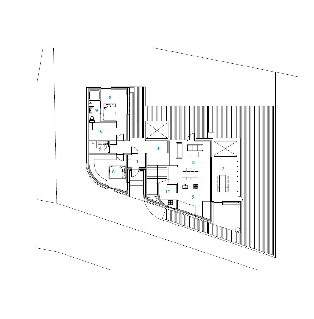
대지는 북쪽이 높고 남쪽이 낮은 경사지에 위치하고 서쪽은 도로가 있고 동쪽은 시원하게 열려 있는 땅이다. 차량은 도로의 낮은 면으로 진입하고 현관은 높은 곳에 진입하여 자연스럽게 레벨 차이를 이용하였다. 3개의 기단基壇을 만들어 배치하고 각각의 기단이 드러내기 위해 조금씩 엇갈려 계획하고 북쪽 부분에서 대지의 형상에 따라 곡선으로 이어지도록 하였다. 도로에서의 입면은 창을 최소화하고 매스가 드러나도록 하였다. 옥상으로 올라가는 계단의 2층의 외부에서 별도로 진입하도록 하여 수평의 흐름을 강조하였다. 외부 재료는 조적을 사용하였고 내부는 최대한 미니멀한 마감을 적용하였다. 지하에는 주차장과 함께 건축주의 취미 공간을 계획하였고 선큰을 통해 내부로 빛과 바람을 끌어들였다. 1층은 주방과 거실을 남쪽에 배치하고 북측에 안방과 드레스룸을 두어 조닝을 구분하였고 2층은 3개의 방을 남쪽에 가족실과 베란다는 북측에 계획하였다. 지하에서부터 이어지는 계단은 2층까지 자연스럽게 이어지고 가족실을 거쳐 원형의 외부 계단과 연결된다. 모든 실에서 외부와 연계되도록 건축적 장치를 마련했다. 지하의 선큰과 1층의 외부 데크, 2층의 베란다를 만들어 내부의 공간과의 접근성을 높였다. 남측의 창은 최대 5m가 넘은 큰 창호로 되어있어 채광과 환기에 유리하도록 하였고 북측과 도로가 있는 서측은 최소의 기능적인 창호를 계획하였다. 거실과 주방은 하나의 공간으로 최대 8m의 내부 공간을 연출하였고 부분적으로 슬라브를 오픈하여 시야적으로 2층과 연결되도록 하였다. 집과 외부에 있는 난간은 막혀있는 재료를 사용하여 프라이버시를 최대한 고려하였고 내부의 난간은 유리 난간을 사용하여 개방성과 경관을 돋보이도록 하였다. 공사 초기 지하 공사에서 암석을 제거하는 작업과 골조 공사에서의 잦은 설계 변경으로 예상보다 공사 기간이 길어졌다. 다양한 사람들의 의견을 모으고 협업하는 과정이 어려웠지만 결과적으로 예상했던 이미지로 이어져 다행스럽다.

The site is located on a slope that is high in the north and low in the south, with a road to the west and open land to the east. Vehicle access is on the lower side of the road and the entrance is on the higher side, naturally taking advantage of the level difference. Three podiums were created and arranged, with each podium staggered slightly to reveal the others, and curved in the northern part to follow the shape of the site. The elevation from the street was designed to minimize windows and reveal the mass. The horizontal flow was emphasized by providing a separate entrance from the outside of the second level of the stairs leading to the rooftop. Masonry was used for the exterior materials, and the interior finish was as minimalistic as possible. The basement was planned as a hobby space for the client, along with a parking garage, and a sunken yard brings light and breeze into the interior. The first floor zones are divided by placing the kitchen and living room on the south side and the master bedroom and dressing room on the north side. On the second floor, three rooms were planned on the south side, with the family room and veranda on the north side. The stairs from the basement lead naturally to the second floor, pass through the family room, and connect to the circular external staircase. Architectural devices were arranged to ensure that all rooms are connected to the outside. A sunken basement, an exterior deck on the first floor, and a veranda on the second floor were created to increase access to the interior spaces. The windows on the south side are large, up to more than 5 meters, to allow for abundance of light and ventilation, while the north and west sides, which face the road, have minimal functional windows. The living room and kitchen were combined into one space, creating an interior space of up to 8 meters, and the slab was partially opened to visually connect to the second floor. The railings on the exterior of the house are made of blocked materials to maximize privacy, while the interior railings are made of glass to enhance the openness and views. The construction period took longer than expected due to the work of removing rocks from the initial underground work and frequent design changes in frame construction. The process of gathering input and collaborating with various people was challenging, but we are glad that the end result is the image we envisioned.











건축가 건축사사무소 공장
위치 경기도 광주시 오포읍 능평리 522-16
용도 단독주택
대지면적 604㎡
건축면적 242.97㎡
연면적 382.97㎡
규모 지하 1층, 지상 2층
건폐율 40.23%
용적률 36.52%
설계기간 2022. 1. - 3.
시공기간 2022. 3. - 2023. 6.
준공 2023. 6.
대표건축가 정우석
프로젝트건축가 정우석
디자인팀 기성윤
사진작가 김창묵
해당 프로젝트는 건축문화 2024년 1월호(Vol. 512)에 게재되었습니다.
The project was published in the January, 2024 recent projects of the magazine(Vol. 512).
January 2024 : vol. 512
Contents : RECORDS ‘Rural Reconstruction and Regeneration, Perspectives of Land Use’, The 3rd Urban & Architecture and Urbanism Forum 2023 ‘농촌공간 재구조화 및 재생, 토지 이용에서 바라보다’, 2023 제3차 AURI 건축도시포
anc.masilwide.com
'Architecture Project > Single Family' 카테고리의 다른 글
| everything all at once (0) | 2024.03.18 |
|---|---|
| Yeoju Seo-ga(Project to Save the Plum Tree) (0) | 2024.03.15 |
| Maison Noire (0) | 2024.02.28 |
| RIFT HOUSE (0) | 2024.02.23 |
| Risco White (0) | 2024.02.20 |
마실와이드 | 등록번호 : 서울, 아03630 | 등록일자 : 2015년 03월 11일 | 마실와이드 | 발행ㆍ편집인 : 김명규 | 청소년보호책임자 : 최지희 | 발행소 : 서울시 마포구 월드컵로8길 45-8 1층 | 발행일자 : 매일



