
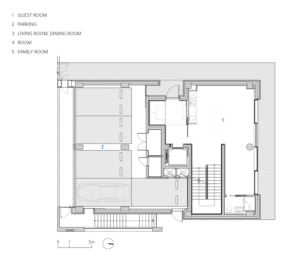
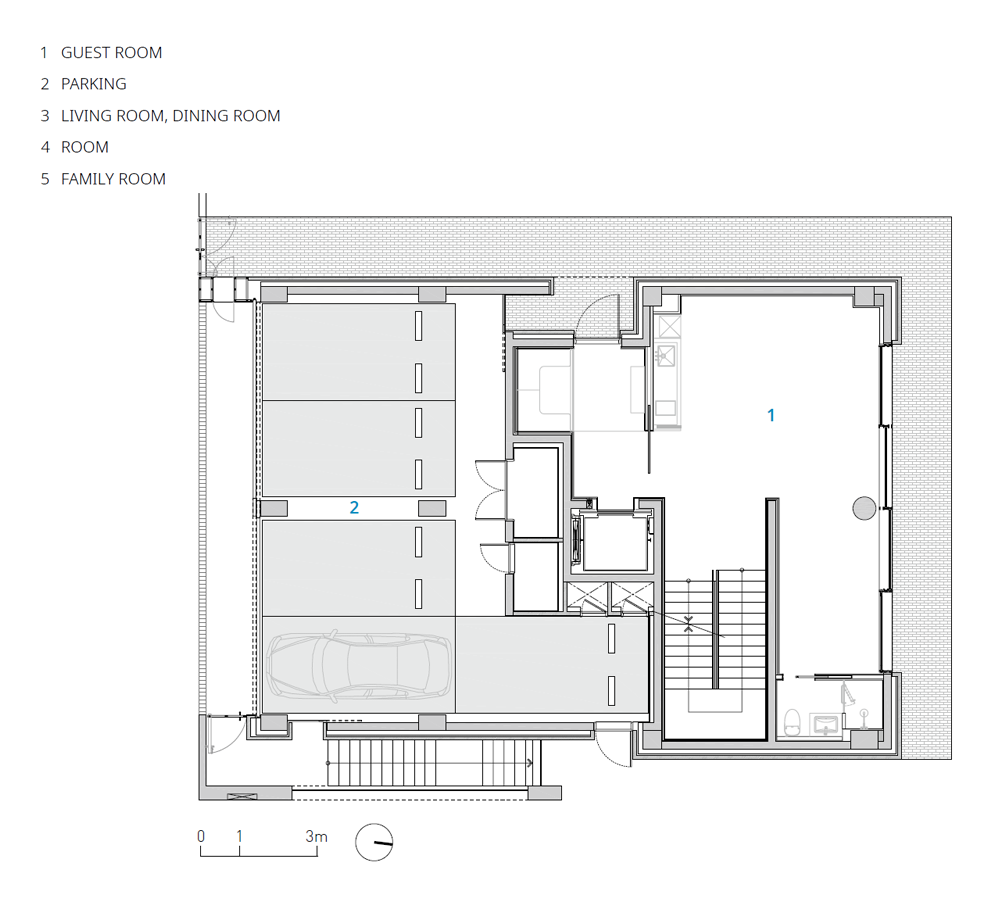
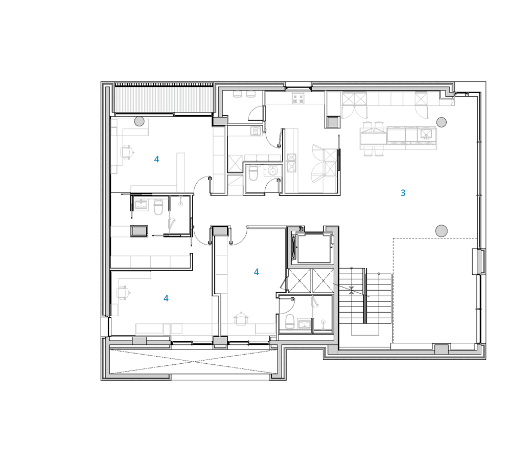
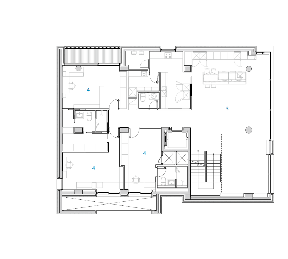
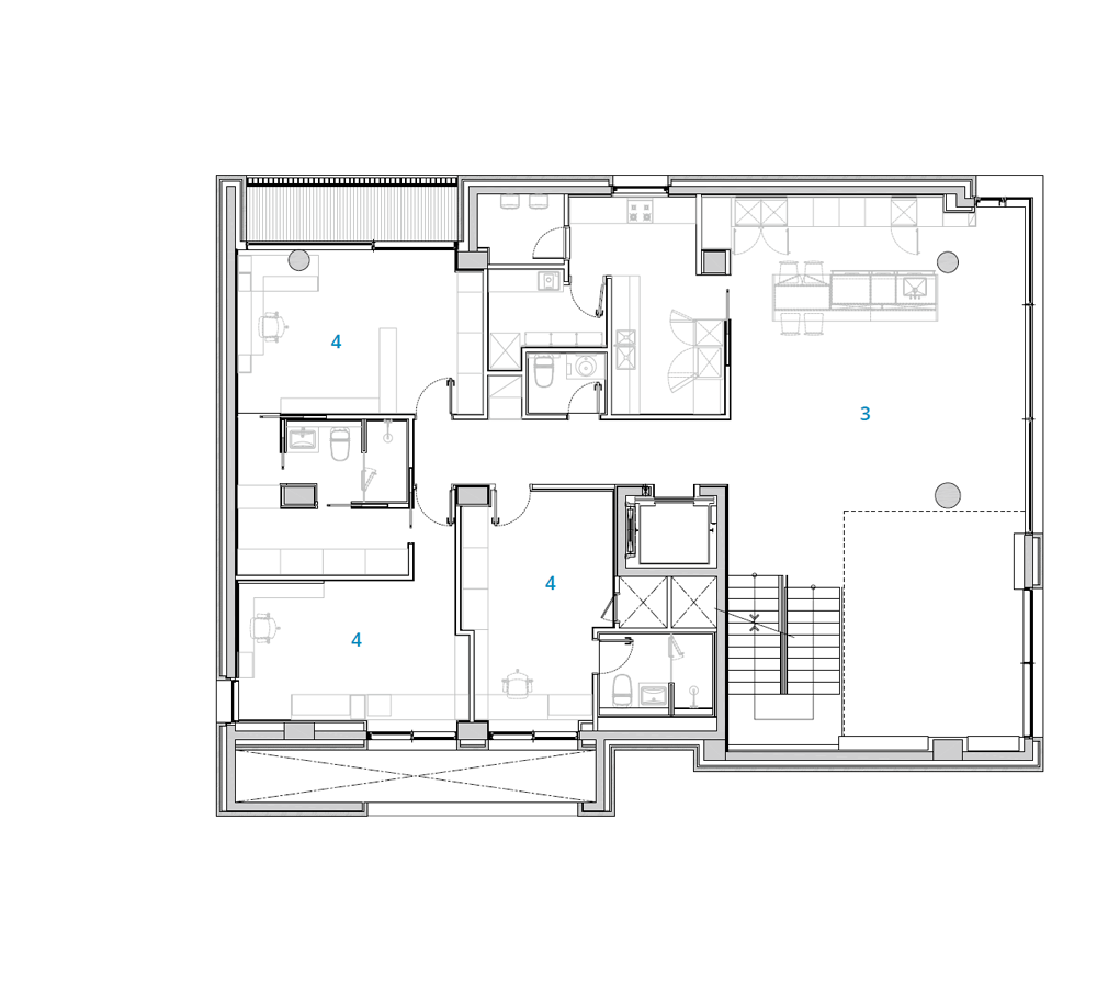
가로틈집은 다자녀를 둔 부부 내외를 위한 집이자 일터가 복합된 공간이다. 전형적인 아파트의 생활을 갓 벗어난 건축주는 부모와 아이들의 각각 독립된 생활 공간과 더불어 자연 속에서 가족이 더불어 공유할 수 있는 장소를 요구했다. 도심지 언덕에 위치한 대지는 오랜 동안 터를 지켜온 거대한 현사시 나무가 자생 중이었고 북향 너머로는 서울 남산을 가득 품은 열린 조망을 지니고 있었다. 반면, 나머지 향들은 협소한 전면 도로와 양 옆의 인접 주거지에 둘러 싸여 있어 서로 간의 내밀한 프라이버시가 침해되는 상황이었다. 결국 남측 도로에 맞닿은 배치를 통해 북쪽으로 열린 마당을 구성하고 내향적인 공간 속에서 다양한 테라스와 중정을 계획하여 자연과의 적극적인 관계 맺기를 의도했다. 부부와 자녀의 삶, 그리고 업무를 담은 다양한 생활의 켜는 층별로 구분되며 각 영역 간의 소통을 위한 매개 공간과 다양한 층간 보이드를 두고 소통의 깊이를 더했다. 2개 층을 아우르는 거실은 자칫 단절되기 쉬운 자녀와 부부의 생활 공간을 연계하는 동시에 주변의 녹음과 남산의 풍광을 적극적으로 내부로 끌어들이는 소통의 장치이다. 더불어 오롯히 마당으로 열려있는 1층 내실은 주거와 업무의 생활을 전이하는 완충과 무용(無用)의 영역으로 두었다. 시간에 따라 변화하는 햇살과 바람을 담을 수 있는 여러 테라스와 중정은 자라나는 아이들을 위한 유희의 공간이다. 무채색 치장 벽돌로 이루어진 간결한 매스는 의장을 더하는 대신 프로그램을 파사드에 투영시키도록 하였다. 가족들의 삶의 층위는 수평의 틈 창으로 적층되어 거리에서의 풍부한 시각적 질감과 새로운 풍경을 그려낼 것이다.

Rift house is a combined home and workplace for a couple with several children. Fresh out of a typical apartment life, the clients wanted a place where the parents and children could have their own separate living spaces, but also a place where the family could enjoy nature together. The site, located on a hill in the city center, was home to a giant poplar tree that had been there for a long time, and had an open view of Seoul and Namsan Mountain to the north. On the other hand, the other sides of the house were surrounded by narrow roads and neighboring residences on both sides, which compromised the privacy of each other. In the end, the layout facing the road on the south side was designed to create an open yard to the north, and various terraces and courtyards were planned within the introverted space to actively engage with nature. The daily lives of the couple and their children, as well as the various aspects of life such as work, are divided into different floors, with intermediary spaces for communication between each area and voids between the floors. The living room, which spans two floors, is a device for communication that connects the living spaces of the couple and their children, which can easily be disconnected, and also actively draws the surrounding greenery and the scenery of Namsan into the interior. In addition, the inner room on the first floor, which opens completely to the yard, is used as a buffer and a zone of inactivity between residential and working life. Several terraces and a courtyard that capture the changing sunlight and breezes over time provide a playful space for the growing children. The simple massing of neutral-colored stucco allows the program to be projected onto the façade, rather than adding design. The layers of the family’s life will be stacked with horizontal gap windows, creating rich visual textures and new vistas from the street.












건축가 (주)엘제이엘건축사사무소 + (주)이권건축사사무소
위치 서울특별시 용산구 이태원동
용도 단독주택, 근린생활시설
대지면적 449.28㎡
건축면적 240.82㎡
연면적 772.75㎡
규모 지하 1층, 지상 3층
건폐율 53.60%
용적률 101.24%
설계기간 2021. 5. - 2022. 3.
시공기간 2022. 4. - 2023. 5.
준공 2023. 6.
대표건축가 (LJL Architects) 이승진 / (2K1 Architecture) 이주형, 권경남
디자인 PM,인테리어 (주)이일공
구조엔지니어 (주)이루구조기술사사무소
기계엔지니어 (주)태인엠이씨
전기엔지니어 (주)태인엠이씨
시공 (주)제효
사진작가 노경
해당 프로젝트는 건축문화 2024년 1월호(Vol. 512)에 게재되었습니다.
The project was published in the January, 2024 recent projects of the magazine(Vol. 512).
January 2024 : vol. 512
Contents : RECORDS ‘Rural Reconstruction and Regeneration, Perspectives of Land Use’, The 3rd Urban & Architecture and Urbanism Forum 2023 ‘농촌공간 재구조화 및 재생, 토지 이용에서 바라보다’, 2023 제3차 AURI 건축도시포
anc.masilwide.com
'Architecture Project > Single Family' 카테고리의 다른 글
| DAN HOUSE (0) | 2024.02.29 |
|---|---|
| Maison Noire (0) | 2024.02.28 |
| Risco White (0) | 2024.02.20 |
| The Hole with the House Around (0) | 2024.02.19 |
| L House (0) | 2024.02.12 |
마실와이드 | 등록번호 : 서울, 아03630 | 등록일자 : 2015년 03월 11일 | 마실와이드 | 발행ㆍ편집인 : 김명규 | 청소년보호책임자 : 최지희 | 발행소 : 서울시 마포구 월드컵로8길 45-8 1층 | 발행일자 : 매일


