
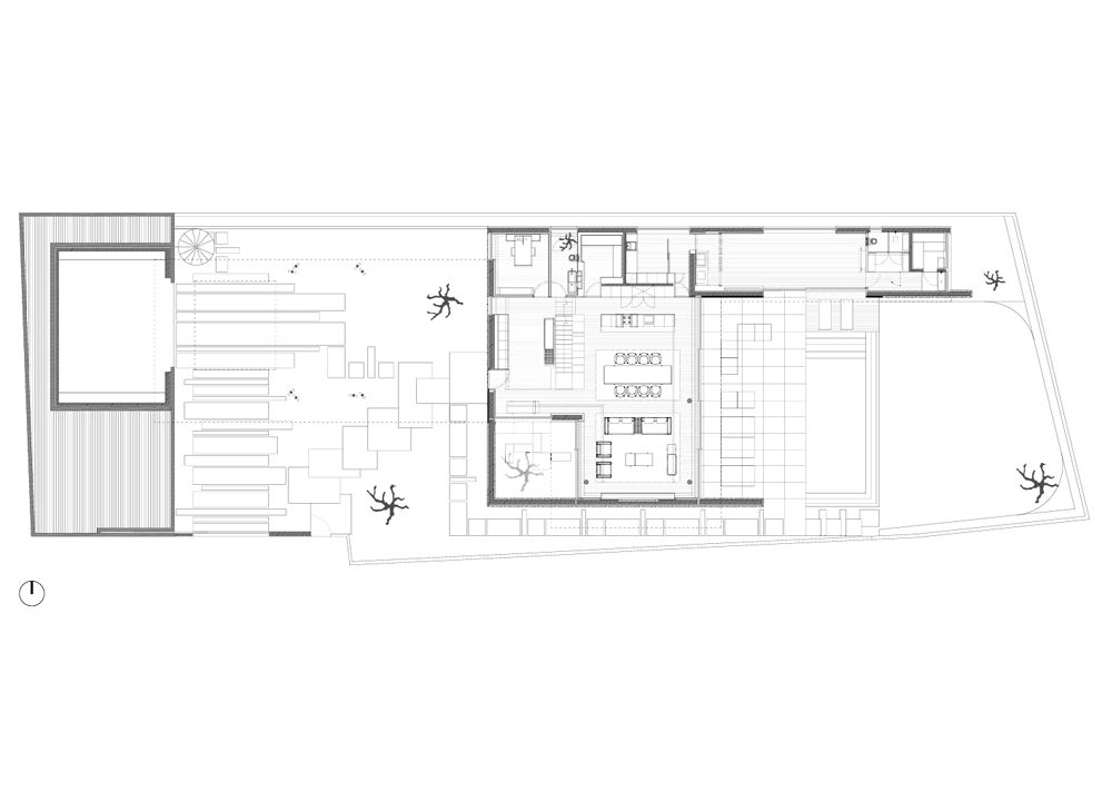
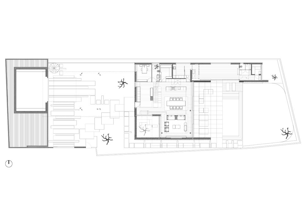
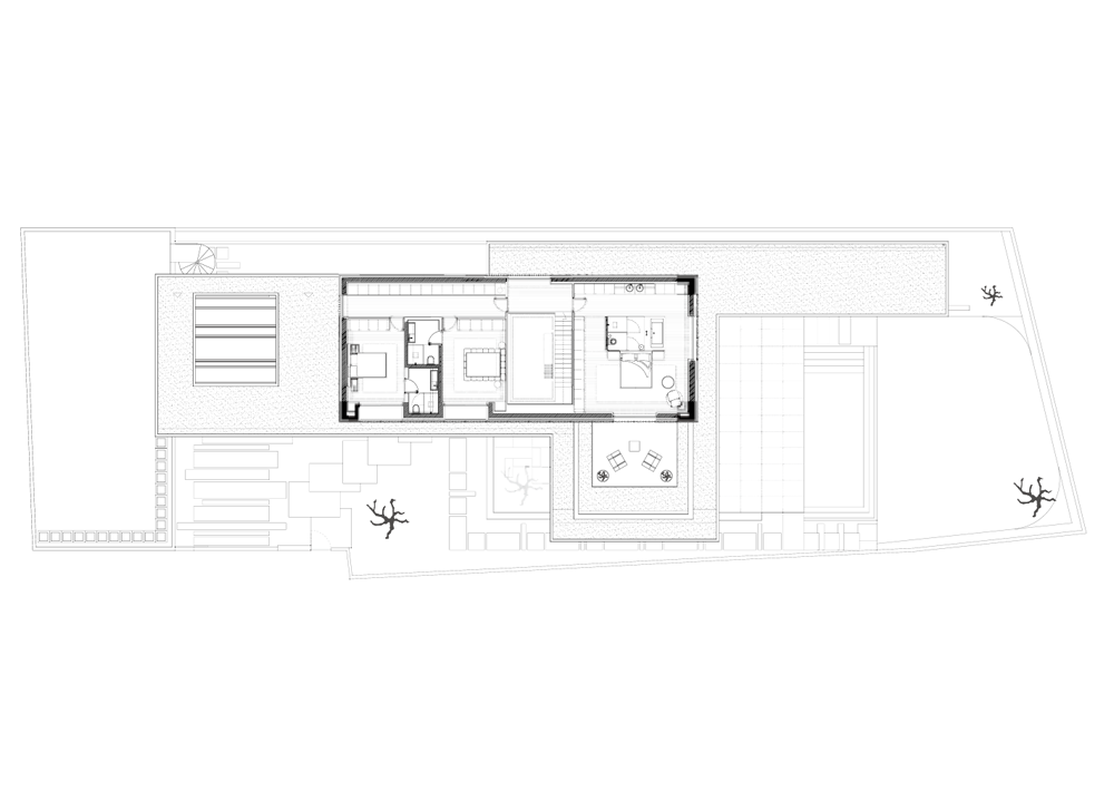
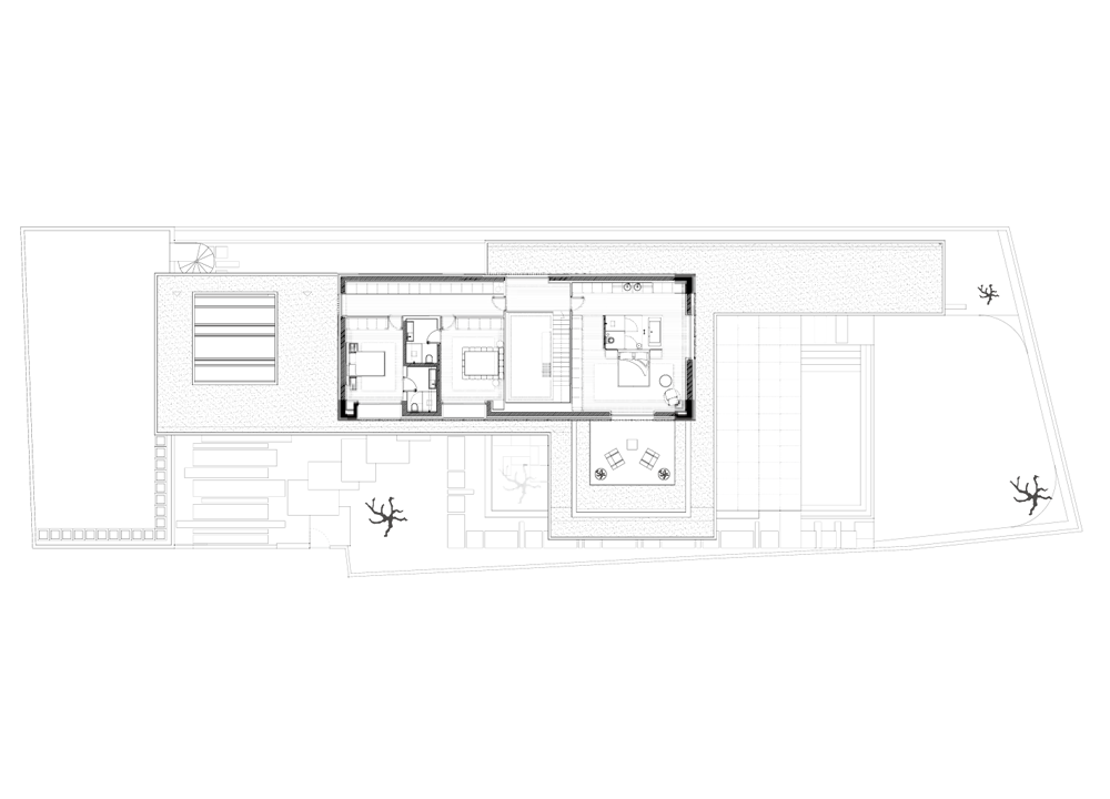
리스코 화이트 주택은 넓은 초원 위에 브라간사(Bragança) 공의 오래된 성과 중세의 탑이 그림처럼 펼쳐지는 바르셀리뉴스 카바도(Cávado) 강의 남단에 자리한다. 건축가는 자연적으로 주어진 여건과 대지가 지닌 역사적인 유산을 수용하여 이를 작은 주택을 통해 담백하게 전달하고자 했다. 기존 대지는 고저 차가 있어, 옹벽으로 지지된 두 개의 플랫폼 형태로 조성되어 있었다. 건축가는 기존의 두 레벨 위에 건축물을 자연스럽게 배치하여 바르셀리뉴스의 경치를 두 가지 높이에서 즐길 수 있도록 계획됐다. 1층의 매스는 낮은 레벨을 따라 넓게 펼쳐지고, 높은 레벨에 연결된 2층 매스는 그 위에 올라탄 형태로 계획됐다. 대지 위에 고요히 자리한 리스코 화이트 주택의 외관은 수직선이 강조된 하얀 콘크리트 블록 형태가 특징이다.















건축가 Risco Singular - Arquitectura, Lda
위치 포르투갈, 바르셀루스, 바르셀리뉴스
면적 339.80㎡
준공 2022
대표건축가 Paulo Costa, Sónia Abreu
엔지니어 Joist Concept - Engenharia
인테리어 Risco Singular - Arquitectura
조경설계 Sara Ferreira
시공 Campos e Lopes- Sociedade de construção
감리 Paulo Costa
사진작가 Ivo Tavares Studio
해당 프로젝트는 건축문화 2023년 12월호(Vol. 511)에 게재되었습니다.
The project was published in the December, 2023 recent projects of the magazine(Vol. 511).
December 2023 : vol. 511
Contents : Records Imaginative Architect’s Drawing Exhibition, Moon Hoon 상상을 짓는 건축가의 그림 전시, 문훈 Waiting for the Light Within Seoul’s Underground World, Realization of Dominique Perrault’s ‘Lightwalk’ 서울 지하 세
anc.masilwide.com
'Architecture Project > Single Family' 카테고리의 다른 글
| Maison Noire (0) | 2024.02.28 |
|---|---|
| RIFT HOUSE (0) | 2024.02.23 |
| The Hole with the House Around (0) | 2024.02.19 |
| L House (0) | 2024.02.12 |
| House with an Eye (0) | 2024.02.06 |
마실와이드 | 등록번호 : 서울, 아03630 | 등록일자 : 2015년 03월 11일 | 마실와이드 | 발행ㆍ편집인 : 김명규 | 청소년보호책임자 : 최지희 | 발행소 : 서울시 마포구 월드컵로8길 45-8 1층 | 발행일자 : 매일



