
눈의 주택은 건축주의 요청에 따라 짧은 기간에 진행된 프로젝트다. 건축가는 시공의 편의성을 높이고 시간을 절약하기 위해 현장에서 조립할 수 있는 소나무 단열 샌드위치 패널을 사용했다. 소나무 패널은 외부 마감에 적합한 외장재이며, 건설 현장에서 37km 떨어진 지역 조립장에서 CNC 기계로 생산되었다. 현장으로 조달된 패널은 4명의 인원과 이동식 크레인으로 5시간 만에 조립했다. 또한 지역에서 생산된 건축 자재를 사용하며 탄소 발자국을 크게 줄였으며, 굴착한 토사는 조경에 재활용했다. 26cm의 단열재가 포함된 총 두께 40cm의 벽체는 난방비를 50% 이상 절감한다.
턱솔이음을 사용해 조인트의 나사와 볼트 사용을 최소화했고, 내부의 목재 패널 위에는 추가적인 마감재를 적용하지 않았다. 다만, 시간이 지나며 목재가 노랗게 바래는 것을 방지하기 위해 천연 아마 오일과 화이트 미네랄 페인트로 코팅했다. 천연 목재를 사용해 실내 온습도가 조절되며, 기분 좋은 소나무 향도 맡을 수 있다.
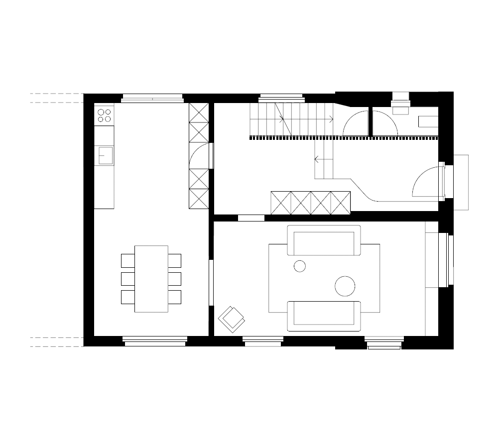
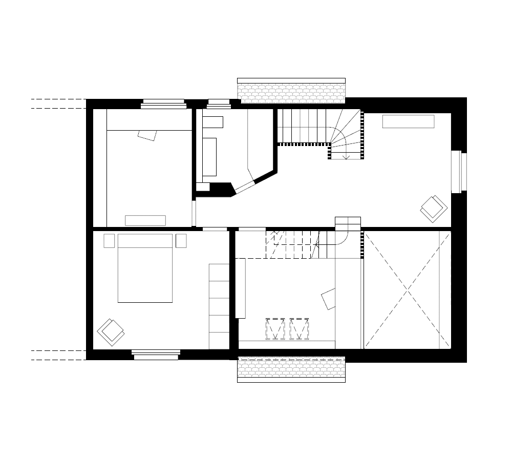
내부 공간에는 손님용 접객실, 그네가 설치된 아이 방, 500권의 서적을 보관할 수 있는 복층 도서관, 요가 및 명상실 등을 계획했으며, 옥상 테라스와 현관 부분도 증축했다. 전면 파사드에는 CNC로 제작한 눈(Eye) 형태의 3D 아트를 적용했다. 시간대의 변화에 따라 눈에 그림자가 드리워지면, 마치 건물이 살아 있는 듯한 느낌이 든다.

















건축가 Studio Anna Jach GmbH
위치 스위스, 취리히
용도 주거시설
연면적 155㎡
준공 2023
대표건축가 Anna Jach
아티스트 Drzach & Suchy
사진작가 Alexandre Kapellos
해당 프로젝트는 건축문화 2023년 11월호(Vol. 510)에 게재되었습니다.
The project was published in the November, 2023 recent projects of the magazine(Vol. 510).
November 2023 : vol. 510
Contents : Records ‘Drawing the Future of East Asian Traditional Architecture’, 2023 Hanok Policy Symposium ‘동아시아 전통건축의 미래를 그리다’, 2023년 한옥정책 심포지엄 The ‘Diplomatic Venue’ Returns after 100 Years, De
anc.masilwide.com
'Architecture Project > Single Family' 카테고리의 다른 글
| The Hole with the House Around (0) | 2024.02.19 |
|---|---|
| L House (0) | 2024.02.12 |
| Places in Karuizawa (0) | 2024.02.05 |
| SIX FRAMES (0) | 2024.02.02 |
| House in Kamakura (0) | 2024.01.31 |
마실와이드 | 등록번호 : 서울, 아03630 | 등록일자 : 2015년 03월 11일 | 마실와이드 | 발행ㆍ편집인 : 김명규 | 청소년보호책임자 : 최지희 | 발행소 : 서울시 마포구 월드컵로8길 45-8 1층 | 발행일자 : 매일



