
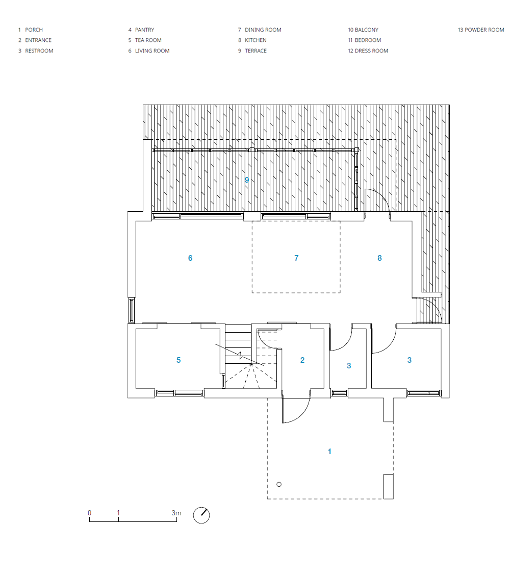
대지는 ‘괴산 자연드림 파크 내 단독주택 단지에 위치한다. 배산임수의 양호한 환경이었지만 남쪽 면의 산이 가까이 있고 진입도로가 대지 남쪽에 붙어있었다. 전형적인 남향집은 주 생활 공간이 남쪽을 향한다. 하지만 괴산 흑당은 남쪽에 도로면으로 집을 생활 공간이 있으면 프라이버시가 좋지 않고, 산 그림자가 길게 드리우는 입지였다. 따라서 달리 남쪽 볕만 집안에 들이면서도 프라이버시를 보호하는 북향의 뷰를 살리는 집이 되어야 했다. 이에 따라 진입로 가까이 집을 앉혀 북쪽으로 거실과 안마당을 연달아 배치하고, 실내와 연결된 데크와 포치, 테라스의 다양한 외부공간으로 풍부하게 확장될 수 있게 구성했다. 내부에는 개방감을 극대화하기 위한 다양한 공간의 확장이 일어난다. 1층은 공용부로 LDK가 하나로 연결되어 넓게 보인다. 이에 그치지 않고 LDK는 북쪽 발코니로 1차 확장이 만들어진다. 폴딩 도어를 열면 북쪽 안마당으로 수평적인 2차 확장이 생긴다. 북쪽 발코니는 2.3 미터의 넓은 폭을 가지고 있다. 북쪽의 찬 기운을 한번 걸러주는 썬룸 역할도 하게 된다. 공간의 확장은 내부에서도 발생한다. 거실에서 남쪽으로 면하는 장지문을 열면 좌식 사랑방이 나온다. 수직 확장도 있다. 다이닝 식탁 위는 2층 바닥으로 막혀있지 않고 지붕까지 연결되어 수직적으로 확장되는 구성이다. 내부의 확장이 있는 부분에 오렌지색 무늬목 루버를 벽과 천장을 이어붙여 시각적 열림을 강조했다. 인테리어는 무늬목 루버와 장지문으로 포인트를 줬고, 그 외는 건축주의 살림살이로 채우는 공간은 배경이 되도록 백색으로 처리했다.

The site is located in a single-family housing complex within Goesan Natural Dream Park. Although the site has favorable conditions with mountains in the back and facing water in the front, the mountain on the south side was quite close and the access road was located on the southern side of the site. A typical south-facing house has the main living space facing south. However, Maison Noire was located in a position where having the living space on the south side would not provide much privacy and a long shadow would be casted by the mountain. Therefore, it had to be a house that would allow sunlight to enter the house from the south, while also taking advantage of the north-facing view to protect privacy. Accordingly, the house was placed close to the access road, the living room and courtyard were arranged in succession to the north, allowing for expansion to the various external spaces of the decks, porches, and terraces connected to the interior. Inside, various spaces were expanded to maximize the sense of openness. The ground floor is a common area where the LDK is connected, appearing spacious. In addition, the LDK is expanded to the north balcony, creating the first extension. Folding doors open to create a secondary horizontal extension to the north courtyard. The north balcony is wide with a width of 2.3 meters, and doubles as a sunroom that filters out the cold north winds. Expansion of space also occurs internally. From the living room, you can open the sliding doors facing south to find the sitting room. There is also vertical expansion. The space above the dining table is not closed off by the second floor, but extends vertically to the roof. In the interior expansion area, orange veneer louvers used to connect the walls and ceiling to emphasize visual openness. The interior was accentuated with veneer louvers and sliding doors that use paper, and the rest of the space was painted white to serve as a background for the client’s household items.











건축가 건축사사무소 적정건축
위치 충청북도 괴산군 칠성면 율원리 괴산자연드림파크 내
용도 단독주택
대지면적 417.00㎡
건축면적 93.07㎡
연면적 126.21㎡
규모 지상 2층
건폐율 22.32%
용적률 30.27%
설계기간 2020. 10. – 2021. 06.
시공기간 2021. 9. - 2022. 2.
준공 2022. 2.
대표건축가 윤주연
프로젝트건축가 윤주연
디자인팀 박세현, 김소원
구조엔지니어 두항구조
기계엔지니어 청훈이엔지
전기엔지니어 건창기술단
시공 (주)위빌(현장소장: 박용호)
발주자 황민수
사진작가 이원석
해당 프로젝트는 건축문화 2024년 1월호(Vol. 512)에 게재되었습니다.
The project was published in the January, 2024 recent projects of the magazine(Vol. 512).
January 2024 : vol. 512
Contents : RECORDS ‘Rural Reconstruction and Regeneration, Perspectives of Land Use’, The 3rd Urban & Architecture and Urbanism Forum 2023 ‘농촌공간 재구조화 및 재생, 토지 이용에서 바라보다’, 2023 제3차 AURI 건축도시포
anc.masilwide.com
'Architecture Project > Single Family' 카테고리의 다른 글
| Yeoju Seo-ga(Project to Save the Plum Tree) (0) | 2024.03.15 |
|---|---|
| DAN HOUSE (0) | 2024.02.29 |
| RIFT HOUSE (0) | 2024.02.23 |
| Risco White (0) | 2024.02.20 |
| The Hole with the House Around (0) | 2024.02.19 |
마실와이드 | 등록번호 : 서울, 아03630 | 등록일자 : 2015년 03월 11일 | 마실와이드 | 발행ㆍ편집인 : 김명규 | 청소년보호책임자 : 최지희 | 발행소 : 서울시 마포구 월드컵로8길 45-8 1층 | 발행일자 : 매일



