
극적인 미학, 고요한 분위기, 빛의 춤
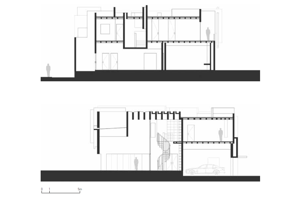
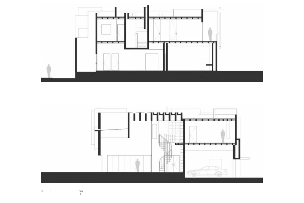
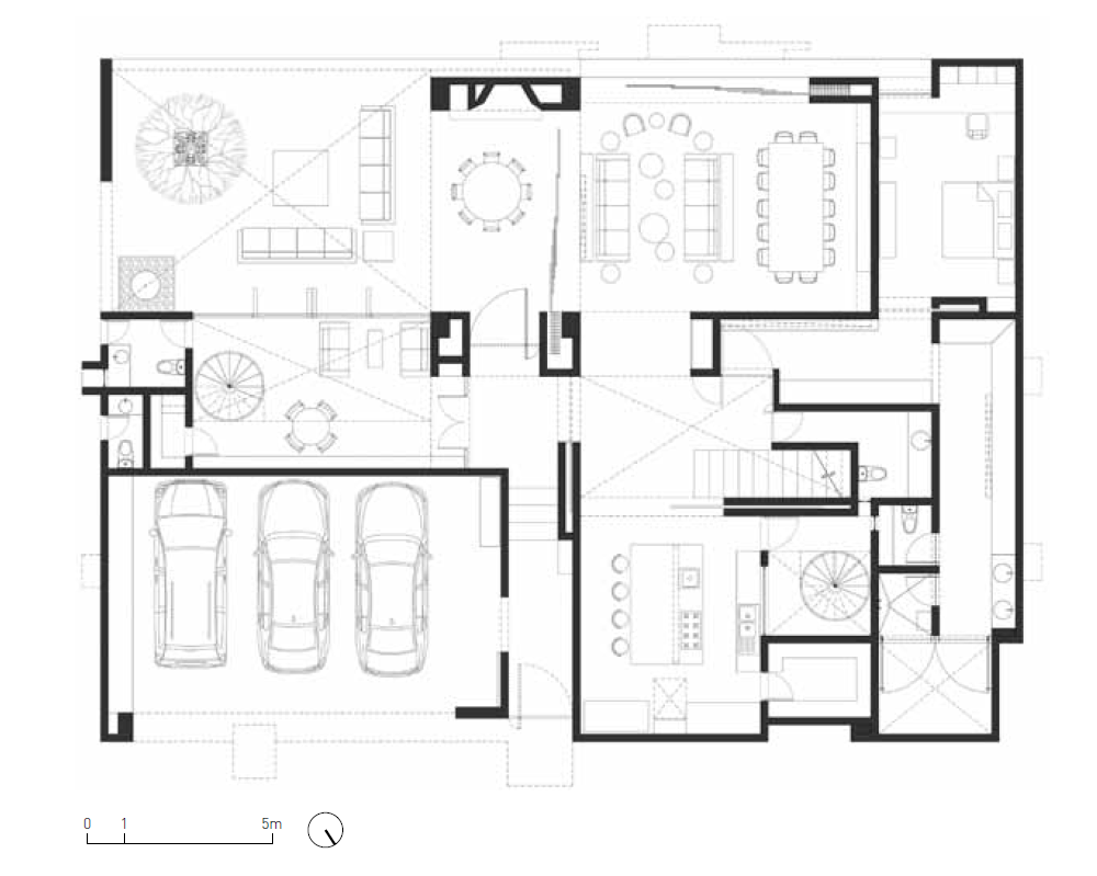
멕시코 산루이스포토시의 그림 같은 풍경 안에 자리 잡은 HMZ 주택은 전통적인 경계를 뛰어넘는 감각적인 건축 언어를 가지고 있는 건축물이다. 거주자 내면을 들여다보게끔 만드는 공간은 삶에 대한 헌신적인 자세로 자연 요소들과 매끄럽게 조화를 이루며 다양한 영감을 이끌어 낸다. HMZ 주택의 가장 특징적인 부분인 입면은 주택의 프로그램을 크게 드러내지 않는다. 입체적인 입면은 마치 아름다운 풍경 속 자리 잡은 신비와 탐험의 장소인 것처럼 보이게 만든다. 전형적인 거주 공간들 사이 공간을 계산하며, 그 공간들을 찾아가는 여정에 다양한 크기의 매스를 배치한 건축가는 몰입감 있는 경험을 선사한다. 높이, 협소함, 거리, 그림자, 빛이 거주 공간에서 가장 중요한 요소이자, 완벽하게 마감된 노출 콘크리트가 빛과 다양한 상호 작용을 만들어 내고 있다.

Dramatic Aesthetics, Serene Atmosphere, Dance of Light
Nestled within the picturesque landscape of San Luis Potosi, Mexico, the HMZ House is an architectural marvel with a sophisticated design language that transcends traditional boundaries. The spaces created within invite introspection, seamlessly harmonize with natural elements, and elicit various inspirations through a devoted approach to life. The distinctive feature of the HMZ House, its facade, does not overtly reveal the plan of the residence. The three-dimensional facade gives the impression of a place settled in a beautiful landscape, evoking a sense of mystery and exploration. Calculating the spaces between typical residential areas and placing masses of various sizes along the journey through these spaces, the architect provides an immersive experience. Height, narrowness, distance, shadows, and light emerge as the most crucial elements within the spaces, with perfectly finished exposed concrete creating diverse interactions with light.









건축가 Lucio Muniain et al
위치 멕시코, 산루이스포토시
프로젝트면적 800㎡
준공 2023
디자인팀 Lucio Muniain, Juan Carlos GarcÍa, Gustavo Morales, Michel Hernández, Ignacio Balvanera, José Luis Arroyo
구조엔지니어 José Alfredo Blanco
시공 Juan Carlos GarcÍa, Michel Hernández, Gustavo Morales
사진작가 Edmund Sumner
해당 프로젝트는 건축문화 2024년 2월호(Vol. 513)에 게재되었습니다.
The project was published in the February, 2024 recent projects of the magazine(Vol. 513).
February 2024 : vol. 513
Contents : COMPETITION : SKETCH A Landscape that is Hard to Pass / Johanna Sinkkonen 좀처럼 지나칠 수 없는 풍경 / 요한나 신코넨 : RECENT PROJECT IRIS Headquaters / RE:TMUS ARCHITECTS 아이리스 사옥 / 리트머스 건축사사무소 Ye
anc.masilwide.com
'Architecture Project > Single Family' 카테고리의 다른 글
| House for a Family of Cats and Dogs (0) | 2024.04.11 |
|---|---|
| Villa Seung Seung (0) | 2024.03.29 |
| everything all at once (0) | 2024.03.18 |
| Yeoju Seo-ga(Project to Save the Plum Tree) (0) | 2024.03.15 |
| DAN HOUSE (0) | 2024.02.29 |
마실와이드 | 등록번호 : 서울, 아03630 | 등록일자 : 2015년 03월 11일 | 마실와이드 | 발행ㆍ편집인 : 김명규 | 청소년보호책임자 : 최지희 | 발행소 : 서울시 마포구 월드컵로8길 45-8 1층 | 발행일자 : 매일



