
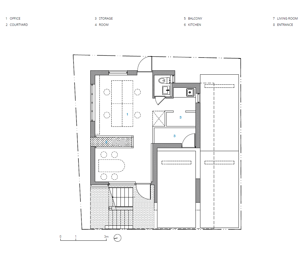
빌라승승은 초등학교를 다니는 두 딸이 있는 부부에게 꼭 맞는 도심 속 마땅한 땅 찾기로 시작하였다. 아이들의 초등학교와 멀지 않은 범위에서 주차가 가능하고 1층에 주차장과 사무실을 구성할 수 있는 땅. 정북조건을 적용했을 때, 임대 세대를 구성하고 신축 자금의 부담감을 조금이나마 덜 수 있어야 했다. 그렇게 찾은 땅은 남, 서, 북쪽은 인접 대지가 주택으로 둘러싸인 상태이지만 동쪽에 적당히 넓은 도로를 면하고 있었고, 도로에 면한 대지의 길이도 10m 정도 되었기 때문에 건축주가 원하는 계획 요소를 적용하기에 무리가 없었다.빌라승승은 인접 대지와의 이격 거리가 큰 북쪽에 주차장을 계획하면서 자연스럽게 공용부와 주거 공간이 남쪽으로 배치되도록 하였다. 남쪽에서도 오른쪽은 도로와 접한 곳이고, 왼쪽은 인접 대지와 접한 상태라 우리는 주거 공간을 도로에서 한걸음 물러선 왼쪽에 두기로 계획하였다. 그렇게 남은 공용부는 남쪽 도로변에 자리 잡았고, 이는 전체적인 매스에서 크게 변화를 줄 수 있는 요소가 되었다. 도로변에 접한 공용부는 외기에 노출되는 형태로 설계하여 전체 건물에서 1/5 정도가 비워지게 되었고, 마을로 열린 공용부를 형성하게 되었다.
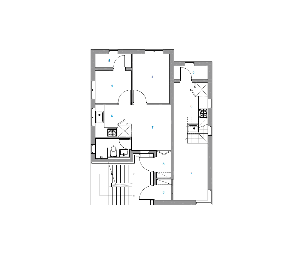
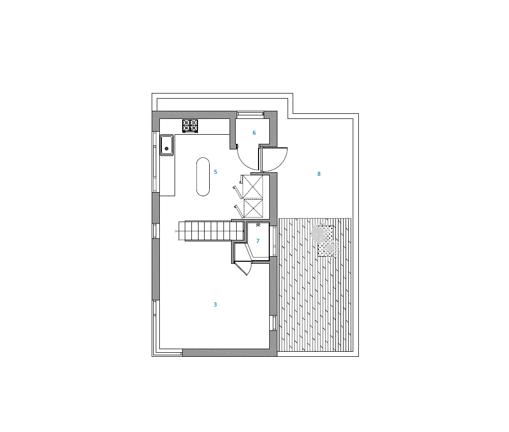
1층 근린생활시설 남쪽으로는 외부 환경 유입과 실내 환기 순환을 고려하여 슬릿한 오픈부를 만들어주었다. 그리고 마감재인 노출콘크리트와 시멘트 벽돌의 일차적인 물성을 건물 외부와 내부에서 이질감 없이 연계할 수 있도록 표현하였다. 단층의 투룸과 복층의 투룸으로 형성된 2층 임대 세대는 동네의 특성상 원룸의 수요보다는 신혼 부부나 젊은 세대의 수요가 많을 것이라 예상하였다. 건축주 세대인 3층 일부와 4층은 내부 계단을 둔 복층으로 계획하여 침실과 욕실을 콤팩트하게 3층에 계획하고, 거실과 주방과 옥상을 연계한 4층은 가족들이 온종일 머물 수 있도록 여유 있게 계획했다. 그리고 공용부는 법적인 최소의 면적을 유지하되 동네로 향한 생동감 있는 모습을 연출할 수 있도록 오픈된 철제 계단으로 계획하였다.
한 층당 20평을 넘는 면적에 임대 세대와 주인 세대까지 계획함에 있어 어려움이 있었지만, 직접 가족의 니즈와 라이프 스타일을 반영한 공간을 콤팩트하게 계획할 수 있었다. 내가 살 집을 내가 짓는 장점이 여기에 있지 않나 싶다. 이렇게 여러 가지 구상과 바람들로 채워진 빌라승승이 이곳 답십리동에 조용히 자리잡았다.
















건축가 Mandlda architects
위치 서울특별시 동대문구 답십리로56길 84
용도 단독주택(다가구주택)/근린생활시설
대지면적 126.00㎡
건축면적 75.56㎡
연면적 234.90㎡
규모 지상 4층
건폐율 59.97%
용적률 186.43%
대표건축가 김병진, 추상화
프로젝트건축가 김병진, 추상화
구조엔지니어 (주)케이피엔지니어링
기계엔지니어 세원엔지니어링(주)
전기엔지니어 세원엔지니어링(주)
시공 더지드건설
발주자 김병진, 추상화
사진작가 김창묵
해당 프로젝트는 건축문화 2024년 3월호(Vol. 514)에 게재되었습니다.
The project was published in the March, 2024 recent projects of the magazine(Vol. 514).
March 2024 : vol. 514
Contents : COMPETITION : SKETCH Silent River / Nikita Batrakov 침묵하는 강 / 니키타 바트라코프 : RECENT PROJECT Villa Seung Seung / MANDLDA Architects 빌라승승 / 만들다 건축사사무소 Samsong1957 / Unsangdong Architects 삼송1957 /
anc.masilwide.com
'Architecture Project > Single Family' 카테고리의 다른 글
| Oshigome Base (0) | 2024.04.16 |
|---|---|
| House for a Family of Cats and Dogs (0) | 2024.04.11 |
| HMZ HOUSE (0) | 2024.03.19 |
| everything all at once (0) | 2024.03.18 |
| Yeoju Seo-ga(Project to Save the Plum Tree) (0) | 2024.03.15 |
마실와이드 | 등록번호 : 서울, 아03630 | 등록일자 : 2015년 03월 11일 | 마실와이드 | 발행ㆍ편집인 : 김명규 | 청소년보호책임자 : 최지희 | 발행소 : 서울시 마포구 월드컵로8길 45-8 1층 | 발행일자 : 매일



