
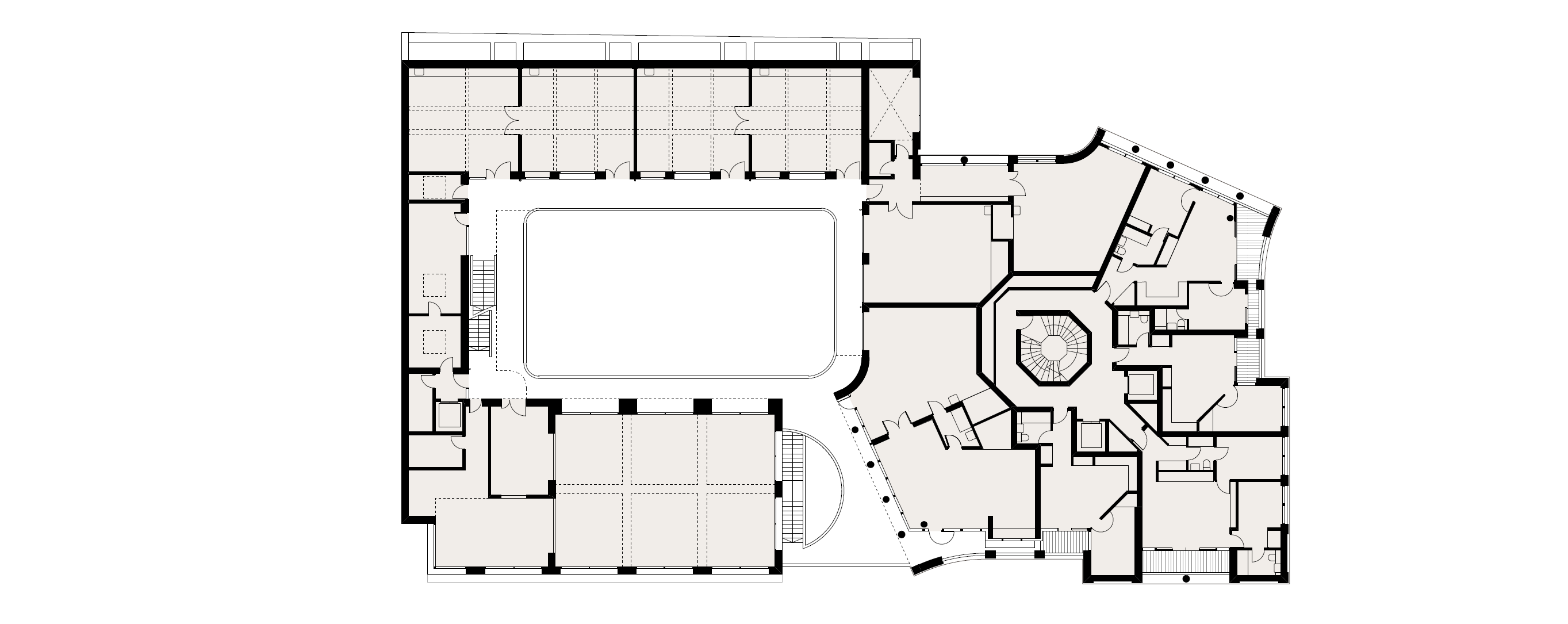
Located on Kingsland Road, one of Hackney’s busy arterial roads on the edge of a conservation area, Hackney New Primary School combines a community-led school with affordable homes and shops at street level. It represents an exemplary approach to hybrid architecture combining different functions without losing the strengths of either the original educational or residential building typologies.
Designed around a cloistered courtyard, the school has an inner-city character. The adjacent residential tower reads as both a landmark for the development as a whole and as a central European type apartment block with its covered loggia at street level. The buildings’ concrete coloured with red sand and red granite aggregate together with its red brickwork unify the pair, bringing together their unrelated uses while emphasising the design of the two buildings as coherent elements of urban design.
Site
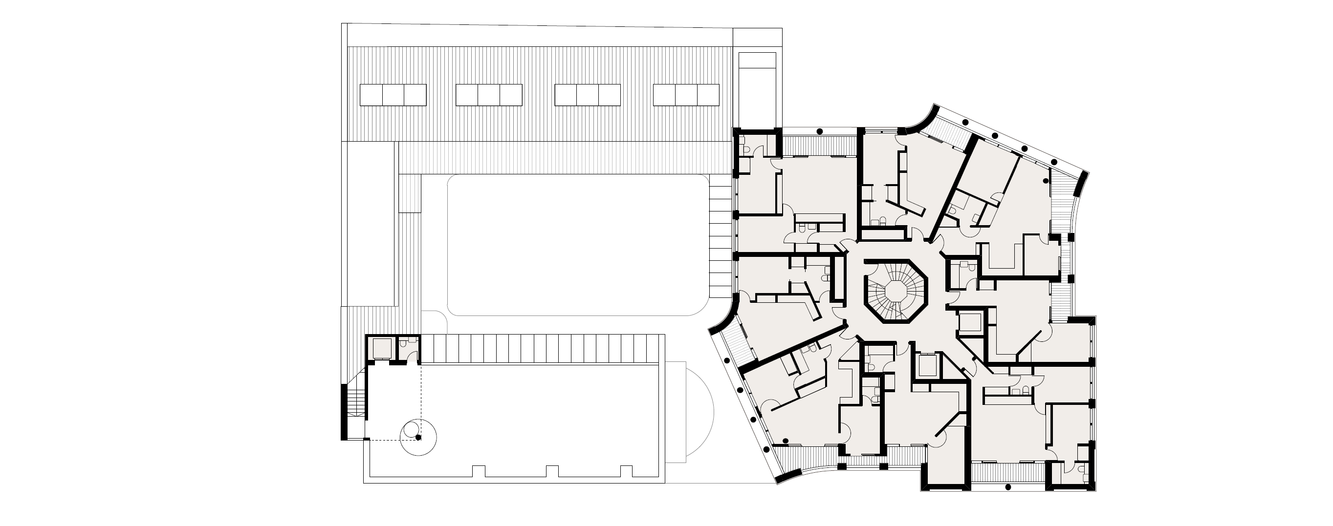
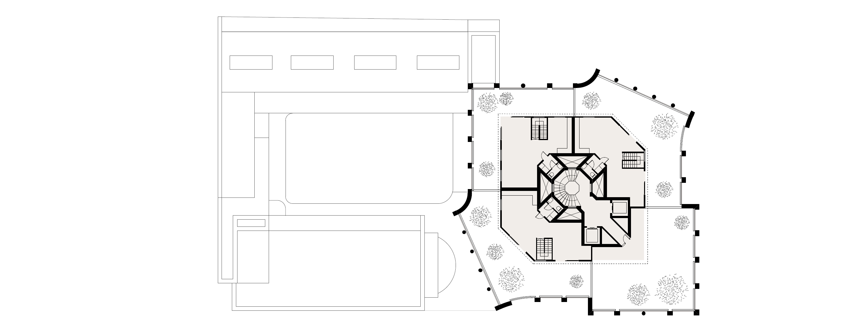
The 11-storey residential block protects the 3-storey school from noise and fumes along this major thoroughfare. Its compact plan frees up the site for the School and its generous open-air courtyard playground. This space is an important focal point for pupils and staff, engendering a collegiate spirit. It also brings natural light into the School.
The School
The cloistered gallery circulation orientates and organizes the school at all levels wrapping around the central courtyard. This is covered in canopies that provide shelter and shade while effectively controlling the scale of the School and neighbouring buildings for young children. Classrooms, music rooms, the main hall and administration offices all face the courtyard. They are faced with light ivory glazed bricks selected for their light reflecting properties. These also introduce colour to the outside space.
Generous mezzanines, roof terraces, play spaces and gardens occur on all levels of the school promoting outdoor teaching, conversations, and exercise throughout the school day. In addition to other semi-covered spaces and deep classroom window recesses, these bring the school’s walls to life, allowing pupils to inhabit them as a liminal threshold between formal and informal worlds or indoor and outdoor spaces. The entrance to the school creates the break between the residential tower and the school, an inviting point of arrival with its wildlife-inspired gates designed in collaboration with the artist Paul Morrison.
Apartment Building
The block has 68 apartments that share an orthogonal reinforced concrete central core. At the top of the tower is an open colonnade. The plan of the building is molded – “pinched” and “twisted” - creating a solid convex curve as it turns a corner. This is critical in terms of how the architecture plays with its context, introducing movement and depth. The storeys are paired, with loggias carved out of the mass of brickwork with a double-height order extending around the perimeter of the building, further animating the elevations.
There is a strong interplay between the façade and the city making its wall a threshold between the building and the city. The apartment building thus gains a civic presence that transcends its immediate function. This also true of the School where its street-facing elevation is constructed with a long plinth used by the general public as a bench, so further adding to the architecture’s liminal quality and its role as a piece of social infrastructure within the community.

영국 런던 해크니의 가장 번화한 간선도로 중 하나인 킹스랜드로드 보호구역 가장자리에 위치한 해크니 뉴 프라이머리 스쿨은 지역 사회 주도 학교와 집 그리고 상점이 통합된 곳이다. 원래의 교육적 또는 주거적 건물 유형의 장점을 잃지 않고 서로 다른 기능을 결합한 하이브리드 건축에 대한 모범적인 접근 방식을 나타낸다. 안뜰을 중심으로 설계된 이 학교는 도심 속 성격을 띠고 있다. 인접한 주거용 타워는 전체적으로 개발을 위한 랜드마크로 읽히기도 하고, 도로 위에 덮인 통나무가 있는 중앙 유럽형 아파트 블록으로 읽히기도 한다. 붉은 모래와 붉은 화강암 골재로 채색된 건물의 콘크리트와 붉은 벽돌은 두 건물을 하나로 묶고, 도시 디자인의 일관된 요소로서 두 건물의 디자인을 강조한다.
대지
11층짜리 주거 동은 3층짜리 학교를 소음과 큰 도로에서 나오는 연기로 부터 막아준다. 그 집합적인 평면은 학교와 그 관대한 개방형 정원 놀이터를 위해 대지를 자유롭게 한다. 이 공간은 학생과 교직원들에게 대학 정신을 불러일으키는 중요한 초점이다. 그것은 또한 학교에 자연광을 가져다 준다.
학교
회랑으로 둘러싸인 갤러리 순환은 중앙 뜰을 감싸고 있는 모든 층에서 학교를 지향하고 조직한다.이것은 보호소와 그늘을 제공하는 동시에 어린 아이들을 위한 학교와 이웃 건물의 규모를 효과적으로 통제하는 캐노피로 덮여 있다. 교실, 음악실, 본회의장, 행정실은 모두 안뜰을 향하고 있다. 그들은 빛을 반사하는 물성으로 인해 선정된 밝은 상아색으로 유약 처리 된 벽돌들을 마주하고 있다. 이는 또한 외부 공간에 색상을 도입해준다.
넓은 메자닌, 옥상 테라스, 놀이 공간, 정원은 학교의 모든 층에 존재하여 학교 수업 시간 내내 야외 수업, 대화, 운동을 장려한다. 반쯤 가려진 다른 공간들과 깊은 교실 창문의 움푹 들어간 곳들 외에도, 이것들은 학교의 벽을 생동감 있게 하여 학생들이 공식 세계와 비공식 세계 또는 실내와 실외 공간 사이의 한계점으로서 거주할 수 있게 한다. 학교 입구는 예술가 폴 모리슨과 함께 디자인된 야생 동물에서 영감을 받은 대문이 있는 매력적인 도착 지점으로, 주거 타워와 학교 사이의 쉼을 만들어 준다.
아파트 건물
한 동은 직각의 철근 콘크리트 중앙 코어를 공유하는 68개의 아파트들로 이뤄져 있다. 그 탑의 꼭대기에는 열린 기둥이 있다. 건물의 평면도는 코너를 돌면서 단단한 볼록 곡선을 만들며, "꼬집히고"와 "비틀어 진 채" 주형 된다. 이는 어떻게 건축물이 움직임과 깊이를 도입하며 그 맥락 속에서 역할을 하는지의 관점에서 중요하다.
층은 벽돌로 된 덩어리로부터 도려 내진 로지아(loggia)와 쌍을 이룬다. 건물의 둘레에 걸쳐 확장되는 이중 높이 순서가 있는 로지아(loggia)를 사용하여 고도를 더욱 생기 있게 한다.
파사드와 도시 사이에는 강한 상호작용이 있어 그 벽은 건물과 도시 사이의 문턱이 된다. 그러므로 아파트는 그 직접적인 기능을 초월한 시민적 존재감을 얻는다. 이는 또한 거리를 향한 입면이 일반 대중이 벤치로 사용하는 긴 주춧돌로 건설된 학교의 경우도 마찬가지이며, 더 나아가 건축물의 한계 품질과 지역사회 내의 사회 기반 시설로서의 역할을 더욱 강화한다.


















Architects Henley Halebrown
Location 333 Kingsland Road, London, United Kingdom
Area 6,500㎡(Residential), 1,735㎡(School), 300㎡(Retail)
Completion 2020
Structural engineer Techniker
MEP engineer Elementa (pre-contract)
Landscape Tyler Grange (pre-contract)
Planting Jennifer Benyon Design
Project manager QS RLB (pre-contract)
Acoustic engineer Pace Consult
Artist Paul Morrison
Main contractor Thornsett Structures
Client Downham Road Ltd (JV), Education Funding and Skills Agency (EFSA), The Benyon Estate, Thornsett, Hackney New School Academy Trust
Photographer Lorenzo Zandri, Nick Kane,
'Architecture Project > Education' 카테고리의 다른 글
| NAEPO NATURE PLAY GARDEN (0) | 2022.12.01 |
|---|---|
| MORE WITH LESS (0) | 2022.07.22 |
| KITAKAMI HEALTH & CHILDCARE SUPPORT COMPLEX (0) | 2022.07.18 |
| KINDERGARTEN PELEDZIUKAS EXTENSION (1) | 2022.07.14 |
| Child Care Center (0) | 2022.07.12 |
마실와이드 | 등록번호 : 서울, 아03630 | 등록일자 : 2015년 03월 11일 | 마실와이드 | 발행ㆍ편집인 : 김명규 | 청소년보호책임자 : 최지희 | 발행소 : 서울시 마포구 월드컵로8길 45-8 1층 | 발행일자 : 매일



