
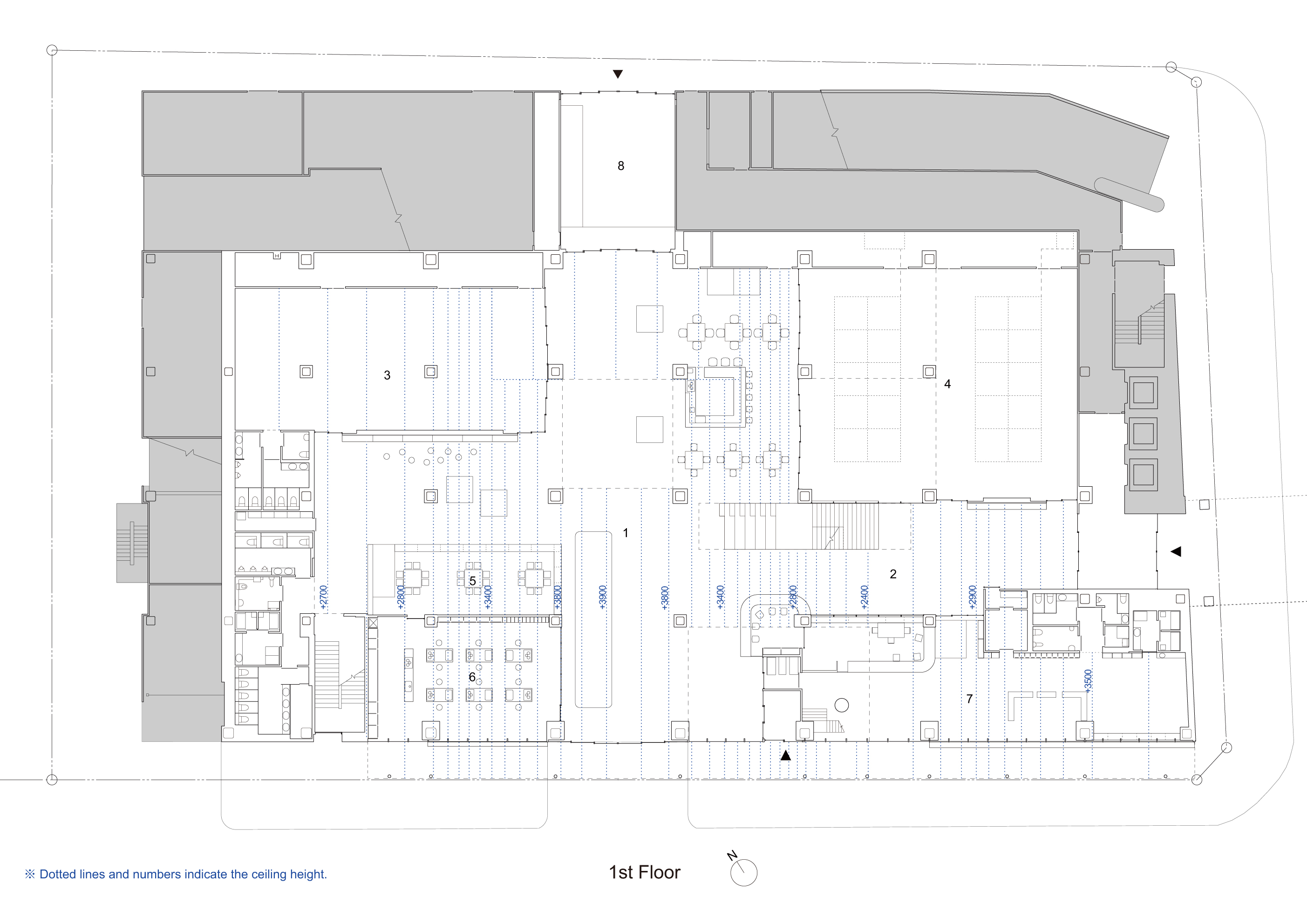
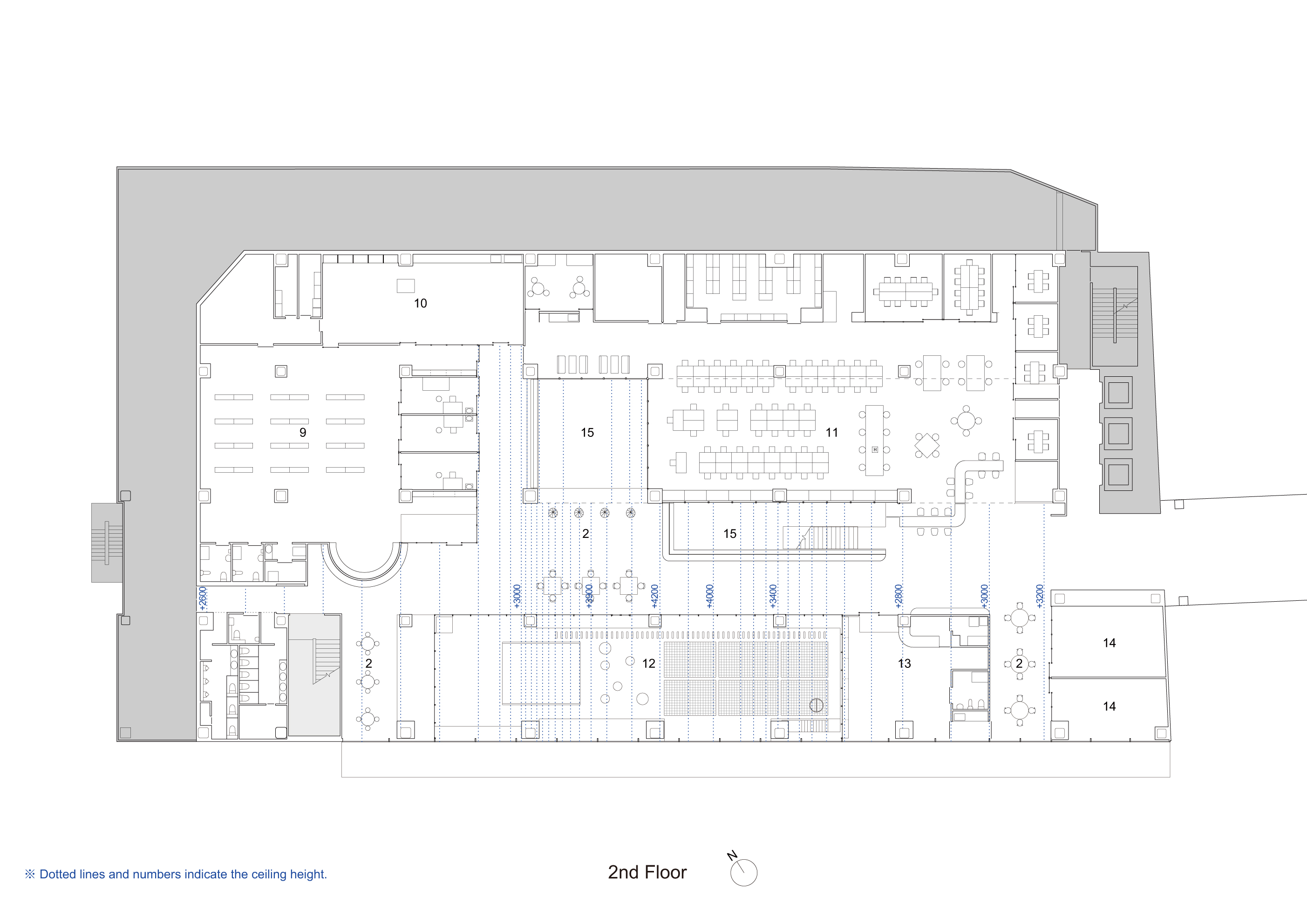
This project involves the conversion of the first and second floors of an eight-story commercial building located in the city center into a health and childcare support complex. In addition to providing functions including a hall for medical checkups, indoor playground, exhibition/lecture hall, consulting room, rental room, and office, we also aimed to create open spaces where people can freely visit and spend time not only for these purposes. The existing building consisted of simple rectangular grids with a floor area of about 2000㎡. There were hardly any openings in the exterior walls, so the interior of the building could not be seen from outside. For this reason, we decided to create an indoor plaza occupying two structural spans in depth by four structural spans in width in the center of the first floor and connect it to the city at large. It is a high-ceiling space partially with an atrium, equipped with a cafe and consultation counter and serving as an entrance and waiting area to the surrounding rooms with various functions. In addition, it is designed as a multi-purpose plaza that can accommodate mobile medical and catering vehicles, and host events. The entire floor, with the indoor plaza at the center, is covered by a gently undulating luminous ceiling. The ceiling, with a height difference of about 1.5m from 3.9m to 2.4m, is designed to ensure minimum head clearance for vehicles while leaving adequate duct space above the ceiling. Shadows and undulations created by the luminous ceiling give a sense of depth to the space. Under the undulating luminous ceiling, we have provided a variety of seating areas, both “with-shoes” and “shoe-free,” with varying textures and sitting height with the hope that this accumulation of everyday places would create a new landscape. The ceiling straddles the upper and lower floors, becomes a floor for the play equipment, and appears as eaves on the facade, so that it interacts with the existing shopping arcade and allows people’s activities inside to be seen from the street. In this project, we drastically changed the role of the building from a facility serving specific purposes to an architecture creating a new landscape where people from all walks of life gather by deconstructing a mundane grid-based commercial building using a gently undulating ceiling and floors.

물결치는 파도 아래 빛나는 공간, 기타카미 보건보육지원센터
도심 속의 상가건물 1층과 2층이 기타카미 보건보육지원센터로 새롭게 조성됐다. 센터는 건강검진을 위한 홀, 실내 놀이터, 전시/강연 홀, 상담실, 대여실, 사무실 등의 기능을 제공하는 곳으로, 사람들이 자유롭게 방문하며 시간을 보낼 수 있는 열린 공간이다. 기존의 공간은 단순한 직사각형 그리드로 구성되어 있었고, 외벽은 개구부가 거의 없어 외부에서 건물 내부를 볼 수 없었다. 새롭게 바뀐 공간은 1층 중앙에 세로 스팬 구조 2개와 가로 스팬 구조 4개 크기의 실내광장을 만들어 대도시와 쉽게 연결된다. 높은 천장, 아트리움이 있는 실내광장에는 카페도 있으며, 주변 다양한 기능의 공간으로 들어가는 입구이자 대기공간이기도 하다. 또한, 이동식 의료, 케이터링 차량과 행사를 개최할 수 있는 다목적 광장으로 이용될 수 있으며, 중앙에 실내광장이 있는 층 전체는 빛나는 물결 모양의 천장으로 덮여있다. 2.4m부터 3.9m까지 약 1.5m의 높이 차이가 있도록 천장 위로 덕트 공간을 확보하면서, 공간에 차량이 들어올 수 있는 최소 높이를 보장하도록 설계했다. 빛나는 천장이 만들어내는 그림자와 물결은 공간에 깊이감을 준다. 파도치는 빛의 천장 아래, 다양한 재료와 높낮이를 가진 ‘신발을 신는’ 좌석과 ‘신발을 벗는’ 좌석이 있는 휴식 공간을 제공했고, 이러한 일상적인 공간의 축적이 도시의 풍경을 새롭게 만들기를 바랐다. 1층과 2층을 가로지르는 천장은 2층 놀이기구의 바닥이 되면서, 입면에서는 처마처럼 모습을 드러내 기존의 상가와 상호작용하고, 거리에서 내부 사람들의 활동을 볼 수 있게 한다. 센터는 특정한 기능이 있는 편의시설에 새로운 풍경을 만들어낸다. 부드럽게 물결치는 천장과 바닥을 사용해 지루한 그리드 구조의 건물을 해체함으로써, 모든 계층의 사람들이 모이게 한다.
















Architects U+A / Unemori teco Associates
Location Kitakami, Iwate prefecture, Japan
Program Health center, Childcare support, Office
Site area 3,884㎡
Building area 3,097㎡
Gross floor area 14,216㎡
Renovation area 3,947㎡
Structure Steel frame
Building scope 1st and 2nd floor of 8 stories
Completion 2021. 3
Structural engineer Design Office MOMI
Mechanical engineer ZO consulting engineers
Sign design NIPPON DESIGN CENTER INC. IROBE DESIGN INSTITUTE
Textile design Talking about Curtains
Construction HAZAMA ANDO CORPORATION, OBARA CONSTRUCTION Joint venture group
Photographer Kai Nakamura
해당 프로젝트는 건축문화 2022년 4월호(Vol. 491)에 게재되었습니다.
The project was published in the April, 2022 recent projects of the magazine(Vol. 491).
April 2022 : vol. 491
Contents : RECORDS DIÉBÉDO FRANCIS KÉRÉ, WINNER OF THE 2022 PRITZKER ARCHITECTURE PRIZE 2022년 프리츠커 건축상 수상자, 디에베도 프란시스 케레 : NEWS / COMPETITION / BOOKS : SKET..
anc.masilwide.com
'Architecture Project > Education' 카테고리의 다른 글
| MORE WITH LESS (0) | 2022.07.22 |
|---|---|
| 333 Kingsland Road & Hackney New Primary School (0) | 2022.07.19 |
| KINDERGARTEN PELEDZIUKAS EXTENSION (1) | 2022.07.14 |
| Child Care Center (0) | 2022.07.12 |
| ALTO ANAPATI PRESCHOOL (0) | 2022.07.11 |
마실와이드 | 등록번호 : 서울, 아03630 | 등록일자 : 2015년 03월 11일 | 마실와이드 | 발행ㆍ편집인 : 김명규 | 청소년보호책임자 : 최지희 | 발행소 : 서울시 마포구 월드컵로8길 45-8 1층 | 발행일자 : 매일



