
The Child Care Center is born from a set of intentions directed to create an impact on future generations. Architecture as matter, space, light and its integration to nature. Earth, as raw material grouped in walls, draws the floor plan to create the living spaces. This material, which contains primitive and elemental information, linked to our memory and our senses, allows us to experience textures, colors, smells and a set of emotions that enrich perception and learning in early childhood.
This way, an introspective, inward-looking construction is created, as an incubator of the very life that takes place there. On the outside, earth volumes hide and protect the interior. On the inside, quite the opposite occurs. Solids build space and assemble the voids.
Cross ventilation, green roofs, adequate sunlight, the use of low environmental impact materials, are all considerations that are incorporated into the architectural design to guarantee the proper thermal confort of the users.
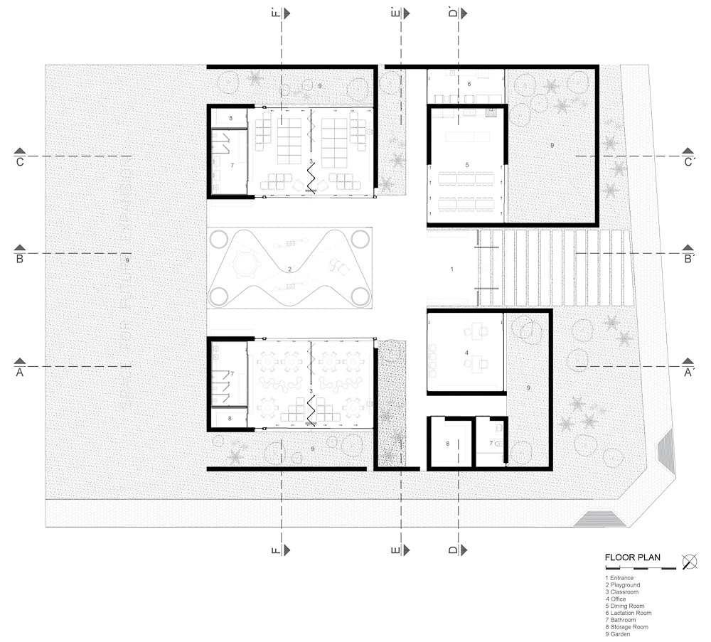
The Center consists of 4 large spaces: two large classrooms, which are subdivided into 2 each, a dining room and an administrative area. Each space, overturned on both sides to patios, visually communicate with the environment, eliminating the concept of the classroom as a closed space. The central courtyard, which functions as the children’s play area, becomes a focal point of the ensemble. It is a meeting point for different ages, a floor with various textures and materials, where you learn by playing and you play to learn.
This is how a common and ordinary suburban city block corner becomes the center of knowledge, center of learning, sower of the seeds that one day were planted there, and that little by little, the world will witness its fruits.

흙벽으로 보호하고 소통하는 인큐베이팅 공간, 파라과이의 어린이 케어센터
어린이 케어센터는 미래 세대에 영향을 미치는 공간이기 때문에 물질과 공간, 빛의 건축, 자연과의 통합 등을 필수적으로 고려하여 계획됐다.
흙은 벽을 연결시키는 원재료로써 평면도를 따라 활용 공간을 형성한다. 우리의 기억과 감각에 내재된 원시적이고 기본적인 정보를 담고 있는 이 재료는 유아기의 지각능력과 학습을 풍부하게 하는 질감, 색상, 향기 및 일련의 감정을 경험할 수 있도록 한다.
이에 따라, 삶의 인큐베이터로서 내성적이고 내향적인 구조가 만들어졌다. 외부에서는 흙벽이 내부를 숨기고 보호한다. 내부에서는 정반대의 상황이 발생한다. 솔리드는 공간을 만들고 보이드를 조립한다.
통풍, 녹색 지붕, 적절한 햇빛, 환경적으로 영향이 적은 재료의 사용은 모두 사용자의 적절한 온도를 보장하기 위해 건축 설계에 통합된 고려 사항이다.
이 센터는 4개의 넓은 공간으로 구성되어 있다. 2개의 큰 교실은 다시 2개로 세분화되며 식당과 관리 구역으로 나뉘다 양옆의 파티오로 구성된 공간은 시각적으로 환경과 소통하여 교실이 폐쇄적인 공간이라는 편견을 없앤다. 아이들의 놀이공간 역할을 하는 중앙 마당은 앙상블의 중심이 된다. 다양한 연령대가 만나, 놀면서 배우고 배우기 위해 놀 수 있는 여러 질감과 재질로 이루어진 장소다.
그렇게 평범하고 보통의 교외 도시 블록 모퉁이가 지식의 중심, 배움의 중심이 되며 언젠가 그곳에 심어진 씨앗을 뿌렸던 사람이 되고, 조금씩 세상이 그 열매를 목격하게 될 것이다.



















Architect Equipo de Arquitectura
Location Villeta, Paraguay
Area 450㎡
Project architect Viviana Pozzoli, Horacio Cherniavsky, María Paz Sánchez
Structural engineer Federico Taboada
Landscape Lucila Garay
Completion 2021
Client Las Tacuaras S.A.
Photographer Federico Cairoli
해당 프로젝트는 건축문화 2022년 4월호(Vol. 491)에 게재되었습니다.
The project was published in the April, 2022 recent projects of the magazine(Vol. 491).
April 2022 : vol. 491
Contents : RECORDS DIÉBÉDO FRANCIS KÉRÉ, WINNER OF THE 2022 PRITZKER ARCHITECTURE PRIZE 2022년 프리츠커 건축상 수상자, 디에베도 프란시스 케레 : NEWS / COMPETITION / BOOKS : SKET..
anc.masilwide.com
'Architecture Project > Education' 카테고리의 다른 글
| KITAKAMI HEALTH & CHILDCARE SUPPORT COMPLEX (0) | 2022.07.18 |
|---|---|
| KINDERGARTEN PELEDZIUKAS EXTENSION (1) | 2022.07.14 |
| ALTO ANAPATI PRESCHOOL (0) | 2022.07.11 |
| NURSERY IN ADAMÓW (0) | 2022.07.08 |
| OMBU AFUERA KINDERGARTEN (0) | 2022.07.08 |
마실와이드 | 등록번호 : 서울, 아03630 | 등록일자 : 2015년 03월 11일 | 마실와이드 | 발행ㆍ편집인 : 김명규 | 청소년보호책임자 : 최지희 | 발행소 : 서울시 마포구 월드컵로8길 45-8 1층 | 발행일자 : 매일



