
The main goal was to create a warm and welcoming space with children’s needs taken into account. Public space has an impact on people. Wooden architecture in public buildings is not very common in Lithuania due to the very strict fire requirements. The aspiration was to design a building with a smell of wood lingering in the air to inspire creativity, ownership, and openness.
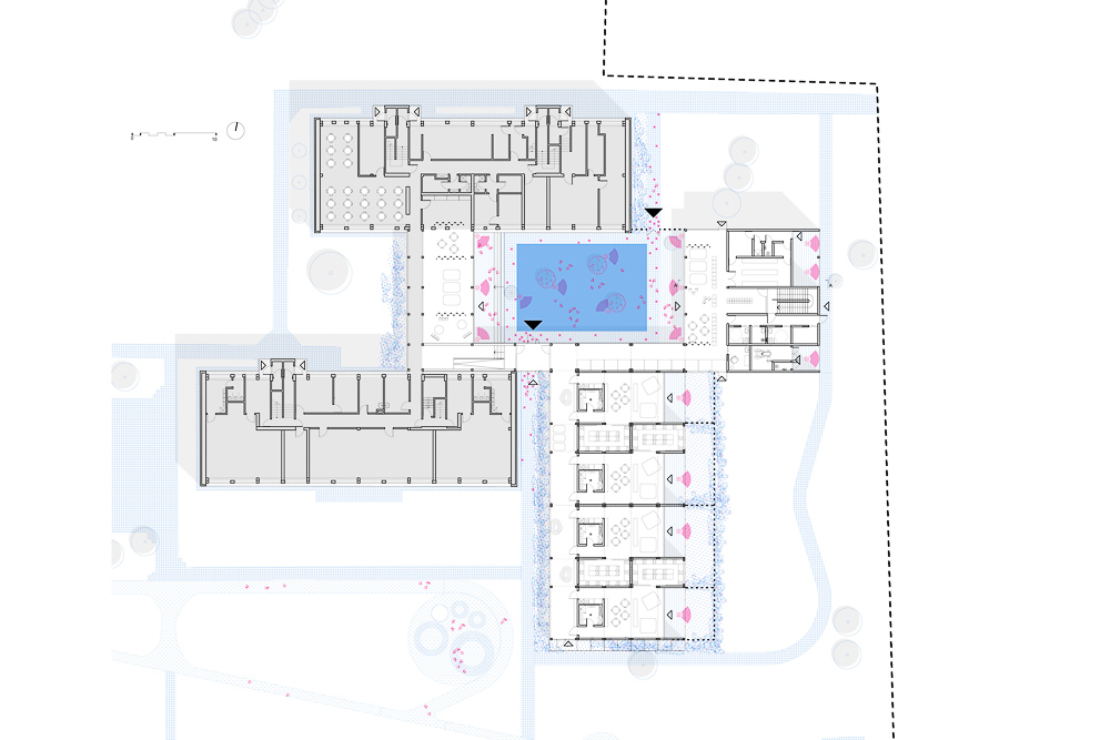
Here, it’s hard to tell where the outside space ends and the inside space begins. The children start their day by crossing through the kindergarten courtyard, once inside it is possible to observe not only the spaces, which one inhabits but the spaces adjacent to it as well: the courtyard, outdoor terrace, community halls, or the canteen. The children and the teachers feel more than just a part of their class, they feel as if all of them are the owners of the kindergarten. Similar ideas are applied, whilst aiming to let in as much light into the building as possible to create transparency and absorb light from the rooms close by.
The main change after the renovation is the formation of an enclosed courtyard of new and old housings. Children can go there independently for daily games. The yard becomes the main entrance space - parents, children, teachers meet in it, a community gathers here for some events. A simple solution that helps to develop a sense of community.
All the auxiliary spaces are designed to be open. That spikes a child’s curiosity and an open mind. Daily domestic life grabs the attention of children and therefore it is not hidden. The cleaner’s room under the stairs has a glass door through which the children can observe where the vacuum cleaner and fresh towels are placed. There is a big window in the dining room that allows children to observe the food preparation and wave to the cooks. These simple solutions create a home feeling where children can explore surrounding spaces, observe and learn from them.
One of the best solutions in this project is multi-functional spaces. Light and clear kindergarten halls are designed for playing games, music, exercise, and meetings. The main kindergarten space has an amphitheater, where lessons and games take place and when the time comes, folding beds are opened, and the space becomes the bedroom. The courtyard is a multipurpose space where children arrive in the morning, play during the day, and perform in front of their parents. On the second floor, there are entrances from the classrooms to the roof terrace. This terrace is not only suitable for having fun but also acts as an emergency exit. Two stairwells are connected through the terrace which serves as the evacuation path.
Wood and white, sun-catching walls create the atmosphere for a brave, free, and bright developing mind. You can feel wooden touch in the interior as well: wooden partition walls, which are comfortable to lean-to, wooden bookshelves for toys and books, natural wood doors. It is much nicer to sit on a wooden floor or play on a solid wood staircase. In general, wood brings more warmth and emotion to a public space. Tree plays an essential role in this project. We have even changed our initial project to save old spruce growing there. Other trees were also preserved and safely transferred to the surrounding area.

아이가 주인이 되는 개방적인 공간, 펠레지우카스 유치원 증축
이 프로젝트의 주요 목표는 아이들이 필요로 하는 게 무엇인지를 생각하여 따뜻하게 맞아주는 공간을 만드는 것이었다. 공공장소는 사람에게 영향을 미친다. 공공건물의 목조 건축물은 매우 엄격한 화재 요건 때문에 리투아니아에서 흔하지 않다. 창의성, 주인의식 및 개방성을 높이기 위해 나무 냄새가 나는 건물을 설계하고자 했다.
이곳은 외부 공간이 끝나는 지점과 내부 공간이 시작되는 지점을 구분하기 어렵다. 아이들은 유치원 안뜰을 지나가며 하루를 시작한다. 내부에서는 생활하는 공간뿐만 아니라 인접해 있는 공간, 예를 들어 안뜰, 야외 테라스, 커뮤니티 홀, 식당 등 주변 공간도 관찰할 수 있다. 아이들과 교사 모두가 유치원의 주인인 것처럼 느끼게 한다. 건물에 최대한 많은 빛을 들여 투명도를 높이고, 가까운 공간의 빛을 흡수하는 것을 목표로 했다.
리노베이션 이후 가장 달라진 것은 새롭고 오래된 주택으로 둘러싸인 안뜰이 생겼다는 점이다. 아이들은 스스로 정원에 가서 놀이를 할 수 있다. 이 정원은 주요 출입구 공간이 된다. 부모, 어린이, 교사가 그곳에서 만나고 지역 커뮤니티는 이벤트를 위해 여기에 모인다. 공동체 의식을 발달시키는 데 도움이 되는 간단한 해결책인 셈이다.
모든 보조 공간은 개방형으로 설계되었다. 이것은 아이의 호기심과 열린 마음을 불러일으킨다. 일상적인 활동은 아이들의 관심을 끌기 때문에 숨겨져 있지 않다. 계단 아래에 위치한 청소 도구실에는 유리문이 있어 아이들이 청소기와 깨끗한 수건이 놓여 있는 것을 볼 수 있다. 식당에는 큰 창문이 있어 아이들이 음식 준비하는 것을 볼 수 있고 요리사에게 손을 흔들 수도 있다. 이러한 간단한 교류는 아이들이 주변 공간을 탐색하고 관찰하고 배울 수 있는 집 같은 느낌을 준다.
이 프로젝트 최고의 설계 제안 중 하나는 다기능 공간이다. 밝고 깨끗한 유치원 홀은 게임, 음악, 운동 및 회의를 위한 장소로 설계되었다. 주요 유치원 공간에는 수업과 게임이 이루어지는 원형 극장이 있으며, 시간이 되면 접이식 침대를 펼쳐 침실이 된다. 정원은 아이들이 낮 동안에는 뛰어 놀고, 때로는 부모님 앞에서 공연하는 다목적 공간이다. 2층에는 교실에서 옥상 테라스로 가는 출입구가 있다. 이 테라스에서 재밌게 놀기도 하지만 동시에 비상구 역할도 한다. 두 개의 원형 계단은 대피 경로 역할을 하는 테라스로 연결된다.
나무와 햇살을 받는 흰 벽은 대담하고 자유롭고 밝은 마음을 키울 수 있는 위한 분위기를 조성한다. 기댈 수 있는 나무로 된 칸막이, 장난감과 책을 보관할 수 있는 나무 책장, 천연 나무문 등 인테리어에서도 따뜻한 나무의 질감은 느낌을 느낄 수 있다. 나무 바닥에 앉거나 단단한 나무 계단에서 노는 것은 심지어 훨씬 좋다. 일반적으로 나무는 공공장소에 더 많은 따뜻함과 감성을 가져다준다. 나무는 이 프로젝트에서 필수적인 역할을 한다. 그래서 그곳에서 자라고 있던 오래된 가문비나무를 보존하기 위해 초기 프로젝트를 변경했다. 다른 나무들도 잘 보존되어 주변 지역으로 안전하게 옮겨졌다.

















Architects DO ARCHITECTS
Location Pagiriai, Vilnius County, Lithuania
Program Public Kindergarten
Site area 14,569㎡
Building area 2,200㎡
Design period 2019 - 2021
Project architect Gilma Teodora Gylytė
Design team Gilma Teodora Gylytė, Ignas Uogintas, Justina Jauniškytė, Justas Paičius, Sabina Daugėlienė, Andrė Baldišiūtė, Algimantas Neniškis, Domantas Baltrūnas, Karolina Čiplytė, Motiejus Vyšniauskas, Vadim Babij
Construction UAB VT Statyba
Client Vilnius County Municipality
Photographer Aistė Rakauskaitė, Lukas Jusas
해당 프로젝트는 건축문화 2022년 4월호(Vol. 491)에 게재되었습니다.
The project was published in the April, 2022 recent projects of the magazine(Vol. 491).
April 2022 : vol. 491
Contents : RECORDS DIÉBÉDO FRANCIS KÉRÉ, WINNER OF THE 2022 PRITZKER ARCHITECTURE PRIZE 2022년 프리츠커 건축상 수상자, 디에베도 프란시스 케레 : NEWS / COMPETITION / BOOKS : SKET..
anc.masilwide.com
'Architecture Project > Education' 카테고리의 다른 글
| 333 Kingsland Road & Hackney New Primary School (0) | 2022.07.19 |
|---|---|
| KITAKAMI HEALTH & CHILDCARE SUPPORT COMPLEX (0) | 2022.07.18 |
| Child Care Center (0) | 2022.07.12 |
| ALTO ANAPATI PRESCHOOL (0) | 2022.07.11 |
| NURSERY IN ADAMÓW (0) | 2022.07.08 |
마실와이드 | 등록번호 : 서울, 아03630 | 등록일자 : 2015년 03월 11일 | 마실와이드 | 발행ㆍ편집인 : 김명규 | 청소년보호책임자 : 최지희 | 발행소 : 서울시 마포구 월드컵로8길 45-8 1층 | 발행일자 : 매일



