
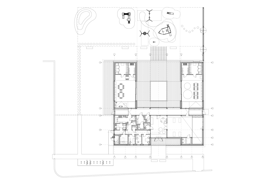
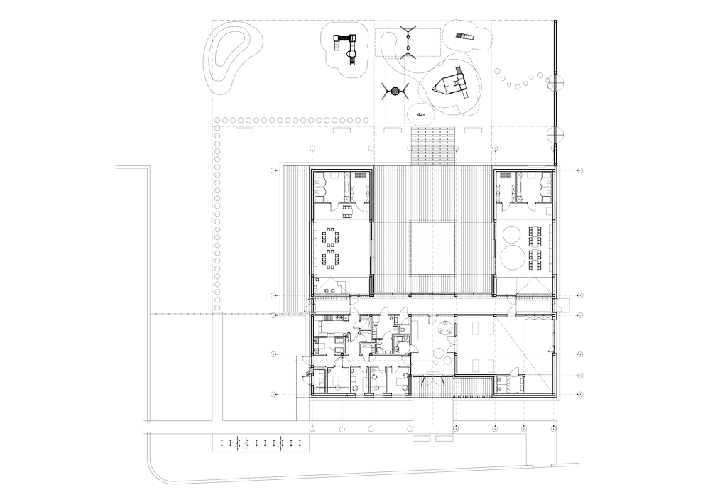
The nursery in Adamów is a local, public facility created for 50 children. There are two group rooms and extra playroom for sensory integration and sport activities. The playroom has a separate entrance and toilets so it can also be used by local community to organize small events or municipal council meetings. In the future it can be transformed to another group room for children in nursery or kindergarten.
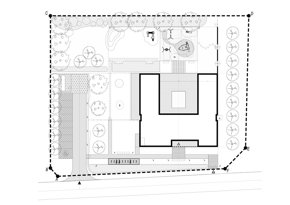
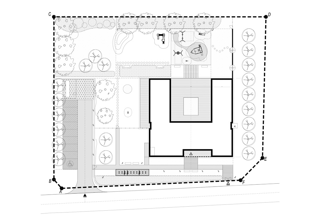
The location of the building was highly affected by a cemetery situated nearby. Nursery area is separated from the street and cemetery by a brick wall. Between the street and the wall there is an “enchanted orchard”. Children can get there walking down the winding path hidden in the grass and meadow, at the end of which a wicket opens. The building is horseshoe-shaped with a big terrace in the central part. It faces the south but building gives a shadow so children can play safely. The playground is an extension of the terrace. All the area is planted with trees, shrubs and various kinds of berry bushes which will grow and enrich this place.
The entrance to the building is located on the north. The main hall leads to the playroom, administrative-utility part and the cloakroom. From the cloakroom children enter two group rooms, each with spacious toilet and small storeroom. Children have access to a central terrace from all the rooms. In two group rooms there are big windows which can be open to create a 6m wide passage. When the weather is nice the exterior can become a seamless extension of the interior and all the space becomes a huge playground.
On the facades there are natural materials such as brick, wood and metal sheet. The terrace is made of composite boards because of safety reasons. To create a child-friendly space the building is downscaled. The roof slopes towards the terrace so the walls around it seems to be lower.
The nursery was friendly welcomed by the local inhabitants who described it as “futuristic” and the bear footprint became its logo as the bear is in Adamów’s arms.

모든 교실관 연결되는 안뜰, 말굽형태의 아다모 보육시설
아다모의 보육원은 50명의 어린이를 위해 만들어진 지역 공공시설이다. 2개의 그룹실과 감각 통합 및 스포츠 활동을 위한 놀이방이 있다. 놀이방에는 별도의 출입구와 화장실이 있어 지역 사회에서 소규모 행사나 시의회 회의에 사용할 수도 있다. 추후에는 어린이집이나 유치원의 아이들을 위한 또 다른 그룹실로 변형될 수 있다.
건물의 위치는 인근에 있는 묘지의 영향을 많이 받았다. 보육 구역은 벽돌 벽으로 거리와 묘지에서 분리되어 있다. 거리와 벽 사이에는 ‘재밌는 과수원’이 있다. 아이들은 잔디와 풀밭에 숨겨진 구불구불한 길을 따라 걸어갈 수 있으며, 그 끝에서 작은 문이 열린다. 건물은 중앙 부분에 큰 테라스가 있는 말굽 모양이다. 남향이지만 건물이 그림자를 만들어 아이들이 안전하게 놀 수 있다. 놀이터는 테라스의 연장선이다. 모든 공간은 이곳을 성장시키고 풍요롭게 할 나무, 관목 및 다양한 종류의 산딸기 덤불이 심어져 있다.
건물의 입구는 북쪽에 있다. 메인 홀은 놀이방, 행정 및 다용도실 및 휴대품 보관실로 연결된다. 휴대품 보관소에서 아이들은 넓은 화장실과 작은 창고가 있는 2개의 그룹 방으로 들어간다. 어린이는 모든 교실에서 중앙 테라스를 이용할 수 있다. 2개의 그룹실에는 6m 너비의 통로를 만들기 위해 개방할 수 있는 큰 창이 있다. 날씨가 좋으면 외부는 내부의 원활한 연장선이 될 수 있고 모든 공간은 거대한 놀이터가 된다. 정면에는 벽돌, 나무 및 금속 시트와 같은 천연 재료가 있다. 테라스는 안전상의 이유로 합성 보드로 만들어졌다. 어린이 친화적인 공간을 만들기 위해 건물을 축소했다. 지붕은 테라스 쪽으로 기울어져 있어 주변 벽이 더 낮아 보인다. 이 보육원을 ‘미래적’이라고 묘사한 지역 주민에게 환영을 받았고 곰이 아다모의 팔에 있는 것처럼 곰 발자국이 로고가 되었다.























Architects xystudio
Location Adamów, Łuków County, Poland
Program Kindergarten
Gross floor area 561㎡
Project architect Filip Domaszczyński, Dorota Sibińska, Marta Nowosielska
Completion 2020
Photographer xystudio
해당 프로젝트는 건축문화 2022년 4월호(Vol. 491)에 게재되었습니다.
The project was published in the April, 2022 recent projects of the magazine(Vol. 491).
April 2022 : vol. 491
Contents : RECORDS DIÉBÉDO FRANCIS KÉRÉ, WINNER OF THE 2022 PRITZKER ARCHITECTURE PRIZE 2022년 프리츠커 건축상 수상자, 디에베도 프란시스 케레 : NEWS / COMPETITION / BOOKS : SKET..
anc.masilwide.com
'Architecture Project > Education' 카테고리의 다른 글
| Child Care Center (0) | 2022.07.12 |
|---|---|
| ALTO ANAPATI PRESCHOOL (0) | 2022.07.11 |
| OMBU AFUERA KINDERGARTEN (0) | 2022.07.08 |
| NEW HEADQUARTERS OF THE FACULTY OF HUMANITIES, CHARLES UNIVERSITY (0) | 2022.05.31 |
| KAMPUS APARTMENTS (0) | 2022.05.12 |
마실와이드 | 등록번호 : 서울, 아03630 | 등록일자 : 2015년 03월 11일 | 마실와이드 | 발행ㆍ편집인 : 김명규 | 청소년보호책임자 : 최지희 | 발행소 : 서울시 마포구 월드컵로8길 45-8 1층 | 발행일자 : 매일



