
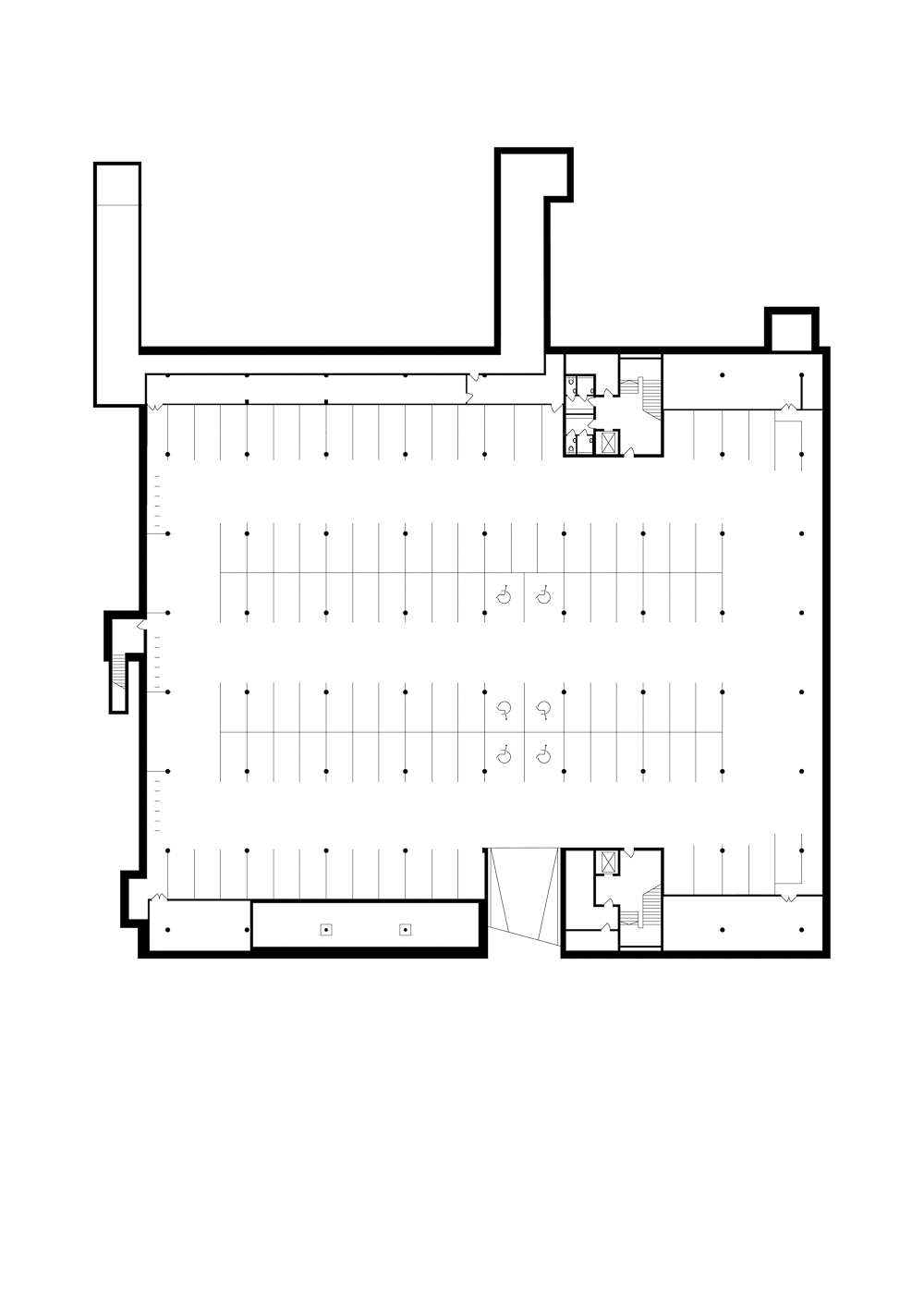
The original canteen and dormitory buildings by the architect Karel Prager are only the torso of an unfinished university campus on the banks of the Vltava River. The canteen itself was never fully used as intended. The 1980s building, built using a demanding lift-slab construction method with its deep central square disposition, had an indisputable architectural quality at the time of its construction. However, a radical change was necessary to accommodate new needs of the Faculty of Humanities.
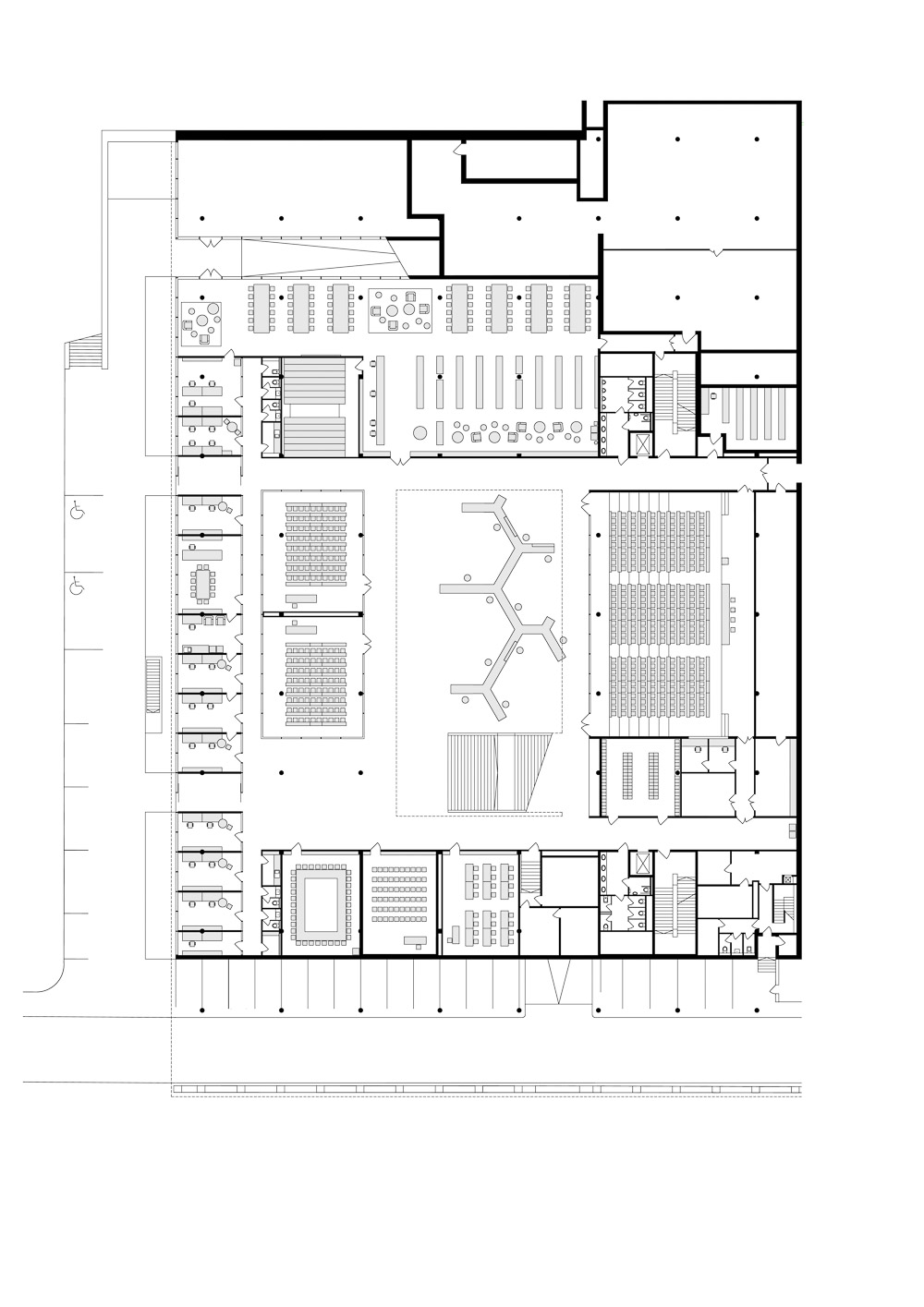
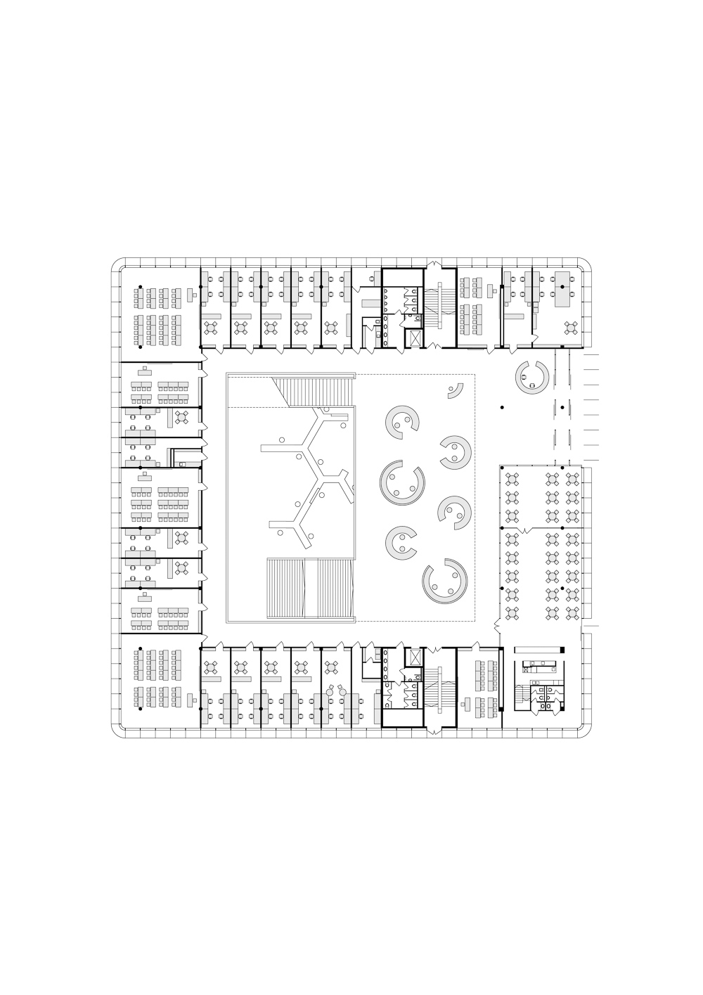
The conversion project preservers the external shape, height and proportions of the original canteen building. The main intervention is the creation of a generous central hall, illuminated from above, with daylight coming in between the trusses of the skylights. The hall is the heart and the social center of the faculty which spatially connects all three floors of the building. The entrance, located on the level of a raised plateau, enables a simple connection of all floors by two differently shaped one-flight staircases. Cantilevered galleries along the perimeter of the hall provide access to seminar rooms, teachers’ offices and two lifts with fire escape staircases. The lowest level of the hall accommodates large common lecture halls, auditorium, faculty’s library and the deanery.
Prevailing materials in the interior are exposed concrete combined with a fine metal ceiling mesh, black floor screed and white wooden elements and furniture. The space is dominated by a variably set seating furniture in orange. The external structural glazing is designed primarily as an effective acoustic protection against the noise from a six-lane ring road in the immediate vicinity of the building. Double-skin facade allows for natural ventilation and regulated sun shading of the interior space. Rounded glass corners are a link to the original architecture.
The conversion of the canteen is a part of a large complex which includes two high-rise dormitory buildings sharing a common base. Completion of the outdoor areas, access roads and greenery will be a subject of the next stage of the construction.

블타바 강 유역에 있는 기존의 찰스대학교의 구내식당과 기숙사 건물들은 캠퍼스에서 미완성에 가까운 곳이었다. 1980년대 건물은 중앙이 깊은 사각형 형태로 배치된 리프트-슬래브 공법의 건물도 당시에는 우수한 건축물 중 하나였으나, 현대 사회 인문학부에 필요한 공간으로 바뀌기 위한 작업들이 진행됐다.
새로운 본관건물은 기존의 건물이었던 구내식당 건물의 외부 형태와 높이는 거의 그대로 유지됐다. 건축가들의 주된 작업은 채광창인 트러스 사이로 넓게 들어오는 빛을 이용하여 중앙 홀을 만드는 것이었다. 중앙 홀은 건물의 3개 층을 연결해 주는 곳으로, 교수진의 사교 공간이자 주된 활동 공간이다. 바닥이 올라온 것 같은 높이에 있는 입구를 통하면, 두 개의 다른 모양으로 된 단층 계단을 이용해 모든 층에 쉽게 접근할 수 있다. 홀 주변을 따라 있는 캔틸레버 화랑을 통해 세미나실, 교사 사무실과 비상계단이 있는 2개의 엘리베이터로 갈 수 있다. 홀의 가장 낮은 층에는 공용 대형 강당, 강당, 교수 도서관과 집무실이 있다.
내부는 노출 콘크리트와 고급 금속 메쉬 천장, 검은색 스크리드 바닥으로 마감했으며, 흰색 목재 가구와 조형물이 주로 사용됐으며, 다양한 형태의 주황색 의자가 홀 공간을 채우고 있다. 외부를 감싼 유리는 건물 바로 옆에 있는 6차선 순환 도로에서 오는 소음을 막기 위해 사용되었다. 이중 스킨 파사드는 자연 환기와 실내 공간의 차양을 조절해준다. 둥글게 처리된 유리의 모서리는 원래 건물과 연결된다.
구내 식당이었던 건축물의 변화는 공용 공간과 두 개의 고층 기숙사가 있는 대학 캠퍼스 단지의 일부일 뿐이지만, 야외 공간과 진입로, 녹지를 완성하며 더 큰 그림을 그릴 수 있는 밑그림이 될 것이다.























Architects 쿠바 앤 필라시 아르히텍티 | Kuba & Pilař architekti
Location Prague, Czech Republic
Building area 4,974㎡
Gross floor Area 13,350㎡
Completion 2020
Project architect Ladislav Kuba, Tomáš Pilař, Martin Klimecky
Client Faculty of Humanities, Charles University
Photographer David Korsa
해당 프로젝트는 건축문화 2022년 3월호(Vol. 490)에 게재되었습니다.
The project was published in the March, 2022 recent projects of the magazine(Vol. 490).
March 2022 : vol. 490
Contents : RECORDS THE BEGINNING OF THE JOURNEY TO THE MUSEUM OF ART IN THE FOREST, 《MMCA GWACHEON PROJECT 2021: ART BUS SHELTER》 숲 속 미술관으로 가는 여정의 시작, 《MMCA 과천프로젝트 2..
anc.masilwide.com
'Architecture Project > Education' 카테고리의 다른 글
| NURSERY IN ADAMÓW (0) | 2022.07.08 |
|---|---|
| OMBU AFUERA KINDERGARTEN (0) | 2022.07.08 |
| KAMPUS APARTMENTS (0) | 2022.05.12 |
| HYEMYEONG CHILDREN’S PLAYGROUND (0) | 2022.04.28 |
| PANNAR PROJECT (0) | 2022.04.07 |
마실와이드 | 등록번호 : 서울, 아03630 | 등록일자 : 2015년 03월 11일 | 마실와이드 | 발행ㆍ편집인 : 김명규 | 청소년보호책임자 : 최지희 | 발행소 : 서울시 마포구 월드컵로8길 45-8 1층 | 발행일자 : 매일



