
Over the past decades, the world has encountered increasing challenges resulting from unprecedented rapid rates of technological advancements, increasing social and economic disparities, dangers from natural disasters, conflicting values and cultures and more recently, life-threatening pandemics.
Amidst such national and global crisis, “Sufficiency Economic Philosophy” elaborated by His Majesty King Bhumibol Adulyadej in 1974 has gained recognition as the beacon of hope guiding the nation towards an Inclusive and Sustainable Growth Model. The philosophy is based on the conviction that sufficiency thinking will strengthen human capabilities with wisdom, morality and immunities to cope with the unforeseeable changes and threats.
The project ‘PANNAR Sufficiency Economic and Agriculture Learning Center’ is established with the aim to inspire and disseminate the King’s Sufficiency Economic Philosophy to the Thai people. The project is located in Nakhon-Ratchasima on a 14 acres land which had been transformed through the New Agriculture Model from arid and rocky deserted areas to rice fields, reservoirs, vegetables gardens, groves of fruit and general usage trees, and areas for animal farming.
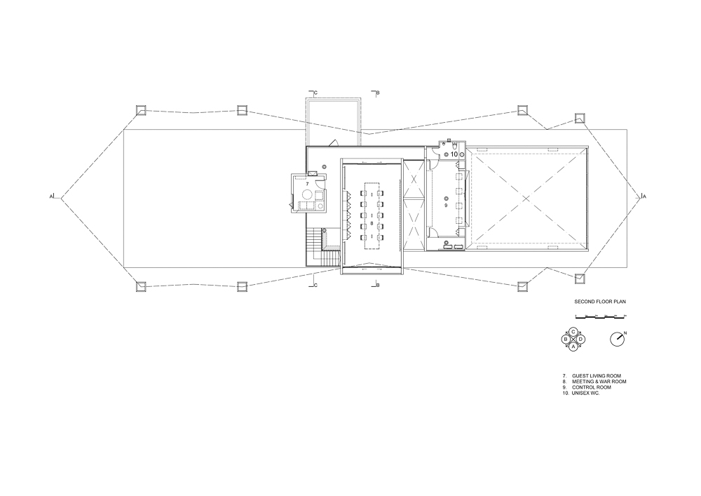
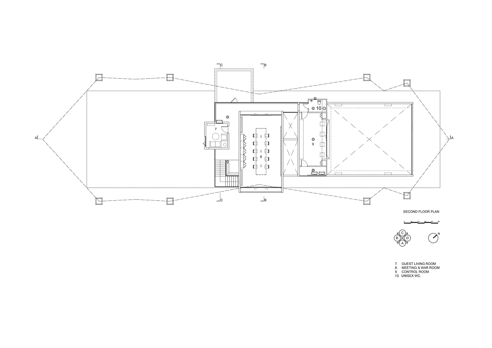
The main buildings in the project, The Activity Center, is a two-story building, designed to accommodate up to 100 people in a variety of functions. The first floor provides areas for lobby (reception), rooms for seminars and workshops, large canteen, and a kitchen. While the second floor contains offices and meeting spaces for staff, control room and facilities for invited trainers and resource persons.
In designing the buildings for the project, the architects were challenged to explore the essence of Sufficiency Economic Philosophy as related to architecture, especially whether the buildings must conform to traditional concepts of rural dwellings of bamboo huts or temporary shacks. After discussions with various stakeholders, the architects were able to demonstrate that local craftsmanship and local materials can become involved and transformed to create modern designs which are attractive, well suited for present day ways of life, durable as well as achieving harmony with the environment.
The activity center is placed as the landmark among the vast agriculture fields, It is designed as a large and open Pavilion to facilitate flexible usage of functions with natural lights and natural ventilation. The expansive and prominent roof made from locally grown bamboos helps to collect and drain rainwater towards small canals surrounding the building and in turn, redirect the water to feed other areas of the land before reaching the natural reservoirs for usage during the drought season.The natural color earthen walls, resulting from an experiment with local craftsmen’s skills and local soil further enhance “sufficiency thinking and mindset” in adapting locally available materials and capabilities for modern usage.
The activity center reflects the beliefs that architecture is a living science that must transform and grow with new development of technology in response to evolving human needs and behaviors.

지속 가능한 성장을 도모하는 파나르 프로젝트 지난 수십 년 동안 전 세계는 전례 없이 빠른 기술의 발전, 사회와 경제적 격차의 증가, 자연재해로 인한 위험, 문화와 가치의 갈등이 일어났으며 가장 최근에는 생명을 위협하는 전염병이라는 문제에 직면했다. 이러한 국가적, 세계적 위기 속에서 푸미폰 아둔야뎃 국왕이 1974년 제정한 “자족경제철학(Sufficiency Economic Philosophy)”은 국가를 포용적이고 지속 가능한 성장 모델로 이끄는 희망의 등불로 인정받았다. 자족경제철학은 충분한 생각을 한다면 예측할 수 없는 변화와 위협에 대처할 수 있는 지혜와 도덕성을 갖추게 하여 인간의 능력을 강화할 수 있을 것이라는 확신에 기반을 두고 있다.
‘파나르 자족 경제와 농업 학습 센터’ 프로젝트는 태국 국민이 국왕의 충족 경제 철학을 수용하고 전파할 수 있도록 설립되었다. 프로젝트는 메마르고 암석이 많은 황량한 지역을 논, 저수지, 채소밭, 과일, 일반 나무숲, 축산업과 같은 새로운 농업 형태로 변형시킨 낫콘라차시마의 14에이커 대지에 위치해 있다. 프로젝트의 주요 건물인 액티비티센터는 다양한 기능과 최대 100명을 수용할 수 있는 2층짜리 건물이다. 1층에는 로비(리셉션), 세미나와 워크숍을 위한 공간, 대형 매점과 주방이 있다. 2층에는 직원을 위한 사무실과 회의 공간이 있고, 초빙된 트레이너와 리소스 담당자를 위한 제어 시설이 있다.
프로젝트를 위한 건물을 설계할 때 건축가는 건물이 대나무 오두막이나 임시 판잣집의 농촌 주거의 전통적인 개념을 따라야 하는지와 같은 건축과 관련된 충족 경제 철학의 본질 여부에 관한 탐구에 도전을 받기도 했다. 다양한 이해 관계자와 논의한 후 건축가는 현지의 장인 정신과 현지의 자재를 사용했다. 또한, 변형을 통해 매력적이면서 현대 생활 방식에 적합하고 내구성이 있으며 환경과 조화도 이루는 현대적인 디자인을 만들어 낼 수 있었다.
액티비티센터는 넓은 농경지 사이의 랜드마크로 자리 잡았다. 자연 채광과 자연 환기를 통해 본래 기능을 유연하게 사용하는 넓고 개방된 파빌리온으로 설계되었다. 현지에서 재배한 대나무로 만든 넓고 돌출된 형태의 지붕은 빗물을 모아 건물 주변의 작은 수로로 배출해주고 가뭄 시 사용할 수 있도록 저수지에 도달하기 전 물을 다른 땅에 모이도록 방향을 바꿔준다. 현지 장인의 기술과 현지 토양의 실험을 통해 얻은 자연스러운 색상의 흙벽은 현지에서 구할 수 있는 재료와 기능을 현대적으로 적용할 수 있게끔 함으로써 '충분한 사고와 사고방식'이라는 개념을 더욱더 강조한다. 액티비티센터는 건축이 진화하는 인간의 요구와 행동에 대응하여 새로운 기술의 발전과 함께 변화하고 성장하는 살아있는 과학이라는 믿음을 반영하고 있다.



















Architect Vin Varavarn Architects
Location Nakhon Ratchasima, Thailand
Program Economic and Agriculture Learning Center
Gross floor area 1,600㎡
Building scope 2F
Principal architect Vin Varavarn Architects
Client T.C. Pharma-Chem Company Limited
Photographer Ketsiree Wongwan
해당 프로젝트는 건축문화 2022년 1월호(Vol. 488)에 게재되었습니다.
The project was published in the January, 2022 recent projects of the magazine(Vol. 488).
January 2022 : vol. 488
Contents : RECORDS NEW PROPOSAL FOR THE HOUSING PROBLEM IN SEOUL FOUND IN RURAL AREA 서울 주거 문제의 새로운 대안, 농촌에서 찾다 : NEWS / COMPETITION / BOOKS : SKETCH MY HOUSE ..
anc.masilwide.com
'Architecture Project > Education' 카테고리의 다른 글
| KAMPUS APARTMENTS (0) | 2022.05.12 |
|---|---|
| HYEMYEONG CHILDREN’S PLAYGROUND (0) | 2022.04.28 |
| THE CLOUDSCAPE OF HAIKOU (0) | 2022.02.15 |
| ARCHITECTURE LIBRARY CHULALONGKORN UNIVERSITY (0) | 2021.12.24 |
| LIBRARYJEONGBO-MARU (0) | 2021.12.23 |
마실와이드 | 등록번호 : 서울, 아03630 | 등록일자 : 2015년 03월 11일 | 마실와이드 | 발행ㆍ편집인 : 김명규 | 청소년보호책임자 : 최지희 | 발행소 : 서울시 마포구 월드컵로8길 45-8 1층 | 발행일자 : 매일



