
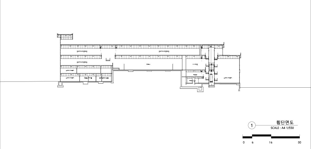
Knowledge Playground where there are free creation and diverse plays.
We propose a digital knowledge playground as a complex cultural space that will serve as a venue for various cultural and relaxation activities such as exhibitions, lectures, and performances for Chonnam National University students preparing for a new era. The knowledge playground, which is composed of free planes and an open spaces that deviate from the grids so that diverse thoughts and creations can be made, is expected to become a place to radiate youth, a central space for cultivating creative talents, and a space of stay where free digital plays and learning are possible.

자유로운 창작과 다양한 놀이가 있는 지식 놀이터(Play Ground), 전남대학교 디지털도서관 정보마루
새로운 시대를 준비하는 전남대학교 대학생들에게 전시·강연·공연 등 다양한 문화·휴식 활동의 장이 될 복합문화공간으로서 디지털 지식 놀이터를 제안한다. 다양한 사유와 창작이 이루어지도록 그리드 격자에서 벗어난 자유로운 평면과 개방형 공간으로 구성되는 지식 놀이터는 젊음을 발산하는 장소이자 창의인재 양성의 중심공간이 될 것이며, 자유로운 디지털 놀이와 학습이 가능한 머무름의 공간이 될 것으로 기대한다.










Architect rAS Architects
Location Buk-gu, Gwangju, Republic of Korea
Program Educational research facilities
Site area 989,860㎡
Building area 4,094.27㎡
Gross floor area 10,497.89㎡
Building scope B1, 4F
Design period 2016. 12 - 2017. 12
Completion 2021. 5
Principal architect rAS Architects Office, Durban Architects Office
Project architect Soohyun Kim, Sooyong Lee
Construction Bongrae Construction
Client Chunnam University
Photographer Changmook Kim
해당 프로젝트는 건축문화 2021년 9월호(Vol. 484)에 게재되었습니다.
The project was published in the September, 2021 issue of the magazine(Vol. 484).
September 2021 : vol. 484
Contents : RECORDS 39TH SEOUL ARCHITECTURE AWARD 서울시, 제39회 서울특별시 건축상 발표 WOOD PLASTIC COFFEE DECK, THE MATERIAL IN THE LEADING CARBON-NEUTRAL ERA 커피박 합성목재, 선..
anc.masilwide.com
'Architecture Project > Education' 카테고리의 다른 글
| THE CLOUDSCAPE OF HAIKOU (0) | 2022.02.15 |
|---|---|
| ARCHITECTURE LIBRARY CHULALONGKORN UNIVERSITY (0) | 2021.12.24 |
| LIBRARY AND SEMINAR CENTRE BOKU VIENNA (0) | 2021.12.22 |
| SHENZHEN COLLEGE OF INTERNATIONAL EDUCATION (0) | 2021.12.17 |
| MÄLARDALEN UNIVERSITY (0) | 2021.12.16 |
마실와이드 | 등록번호 : 서울, 아03630 | 등록일자 : 2015년 03월 11일 | 마실와이드 | 발행ㆍ편집인 : 김명규 | 청소년보호책임자 : 최지희 | 발행소 : 서울시 마포구 월드컵로8길 45-8 1층 | 발행일자 : 매일



