
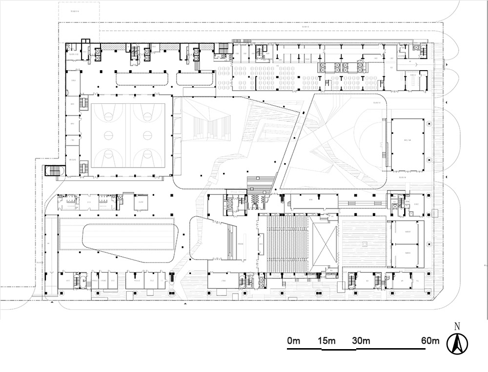
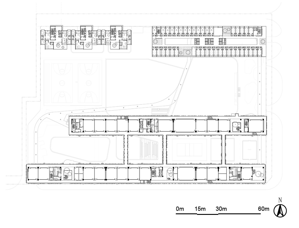
The SCIE was designed to accommodate 2,000 students and over 200 teachers on a site of around 20,000m2 in the heart of Shenzhen city. With a plot ratio of almost 5, the great challenge of the project is not just to accommodate a total floor area of over 100,000m2 including all the teaching facilities, dormitories, staff apartments in an efficient way, but also to provide enough sport facilities within the tight compound, at the same time to give porosity to allow cross ventilation and breathing feel...etc.
To give a clear and solid definition of identity for a school project in the sub-tropical city center of Shenzhen is the main focus of the design concept. The main concept of the design consists of several layers of meaning which address different aspects of the program in hand.
Blurred boundary, there is no solid walls surrounding the school. For us, the campus should not be an ivory tower that is isolated, rather, it is open and is interactive with the city. Podium, most of the programs are lifted up on the podium which gives more open-air space for activities and at same time create a landed natural retreat in the school. Vertical green, a vertical green system is introduced to provide Sun-shading and close relationship towards natural environment. Sports in space, due to lack of space, the sport programs are divided into 16 different units and incorporated into the building complex in different levels which add flexibility, playfulness, interaction, efficiency and unique experience in the whole campus. Sky gardens, in both living quarters and educational buildings, sky gardens are densely distributed to provide enough breathing corners.
The design for SCIE unifies different meanings and ideas that were generated through constant dialogues with the place, programs and the people in a holistic and organic manner to give the school a unique identity.

도시 속 숨쉬는 생태계, 심천국제교육대학교
심천시 중심부의 약 20,000m2의 부지에 위치한 심천국제교육대학교는 2,000명의 학생과 200명 이상의 직원을 수용한다. 건축면적의 거의 5배에 달하는 용적률로 지어진 건물의 중요한 목표는 모든 교육 시설, 기숙사, 직원 아파트 등 여러 기능을 100,000m2 이상의 연면적에 효율적으로 수용하면서도 교차 동선과 자연 환기의 기능을 수행할 수 있도록 하는 것이었다. 그리고 건물의 다공성과 동시에 합리적인 공간 조합을 통해 충분한 스포츠 시설을 내부에 확보하는 것도 중요한 부분이었다.
심천의 아열대성 기후와 도심이라는 조건에서 학교 건물에 대한 명확하고 확실한 정의를 제공하는 것, 그리고 다양한 프로그램에 발맞춰 이를 구성하는 여러 레이어의 혼합과 구성이 이번 디자인 콘셉트의 주요 초점이다.
학교를 둘러싼 단단한 벽은 없다. 캠퍼스는 고립된 상아탑이 아니라 열려 있고 도시와 상호작용하는 곳이어야 한다. 대부분의 프로그램을 단상 위에 배치해서 활동을 위한 야외 공간을 더 많이 제공한다. 또한, 수직 입면 녹화 시스템을 도입하여 차양 및 자연 환경과 긴밀한 관계를 제공한다. 공간 부족으로 인해 스포츠 관련 프로그램은 16개의 유닛으로 나뉘어 전체 캠퍼스에 통합되어 있다. 이는 전체 단지에 유연성, 즐거움, 상호 작용, 효율성 및 특별한 경험을 추가한다. 하늘정원은 생활관과 교육관 양쪽에 촘촘하게 분포되어 있어 넉넉한 휴식공간을 제공한다.
심천국제교육대학교의 디자인은 장소, 프로그램, 사람들과 끊임없는 대화를 통해 생성된 다양한 의미와 아이디어를 총체적이고 유기적인 방식으로 통합하여 학교 고유의 정체성을 부여한다.











Architect Li Xiaodong Atelier
Location Shenzhen, Guangdong, China
Site area 20,000m2
Gross floor area 100,000m2
Design period 2016 - 2017
Construction period 2017 - 2020
Completion 2020
Project architect Li Xiaodong Atelier
Design team Li Xiaodong, Zhang Sihui, Chen Ziyu, Wang Gutian, Li Le, Zhang Chenyang
Landscape architect Li Xiaodong Atelier
Collaborator Shenzhen Tongjiren Design Firm
Construction The 3rd Division China Construction Corp.
Photographer UK Studio
해당 프로젝트는 건축문화 2021년 9월호(Vol. 484)에 게재되었습니다.
The project was published in the September, 2021 issue of the magazine(Vol. 484).
September 2021 : vol. 484
Contents : RECORDS 39TH SEOUL ARCHITECTURE AWARD 서울시, 제39회 서울특별시 건축상 발표 WOOD PLASTIC COFFEE DECK, THE MATERIAL IN THE LEADING CARBON-NEUTRAL ERA 커피박 합성목재, 선..
anc.masilwide.com
'Architecture Project > Education' 카테고리의 다른 글
| LIBRARYJEONGBO-MARU (0) | 2021.12.23 |
|---|---|
| LIBRARY AND SEMINAR CENTRE BOKU VIENNA (0) | 2021.12.22 |
| MÄLARDALEN UNIVERSITY (0) | 2021.12.16 |
| ACADEMIC-ARK OTEMON GAKUIN UNIVERSITY (0) | 2021.12.15 |
| CUSANUS ACADEMY (0) | 2021.11.23 |
마실와이드 | 등록번호 : 서울, 아03630 | 등록일자 : 2015년 03월 11일 | 마실와이드 | 발행ㆍ편집인 : 김명규 | 청소년보호책임자 : 최지희 | 발행소 : 서울시 마포구 월드컵로8길 45-8 1층 | 발행일자 : 매일



