
The campus of the University of Natural Resources and Life Sciences (BOKU) in Vienna was extended by a timber construction with 3,000 m² of usable floor area. The new building offers space for a seminar centre, a library, offices for several departments and shared areas. The open entrance level and the public terrace create a communicative interface for students and faculty members from surrounding buildings. In addition to the atmospheric qualities of the wood surfaces, the high proportion of daylight contributes to a pleasant learning and working environment.
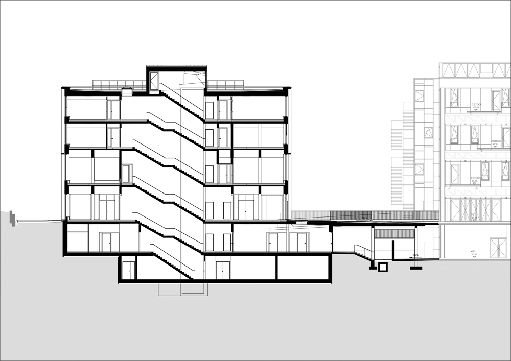
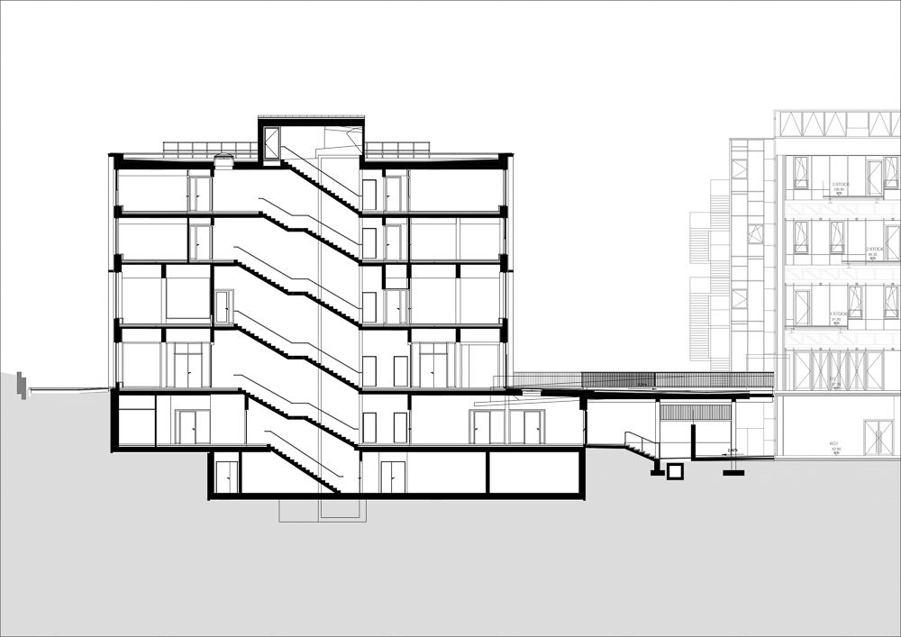
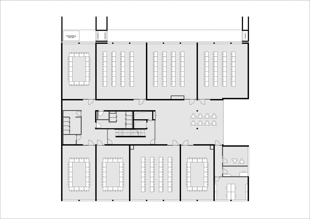
The appearance of the building is characterized by its timber skeleton construction. The façade grid of untreated wood is continued in the interior of the entrance level and the library as structural grid of the ceiling. The support structure becomes a design element.
Full-height glazing creates a dialogue between the interior and the surroundings. During the warm season individual glass elements can be opened to the terrace, thereby creating a meeting place for students. The four-story wooden structure was constructed from prefabricated cross-laminated timber elements. The base, which is partially underground, and the stairwell are made of reinforced concrete.
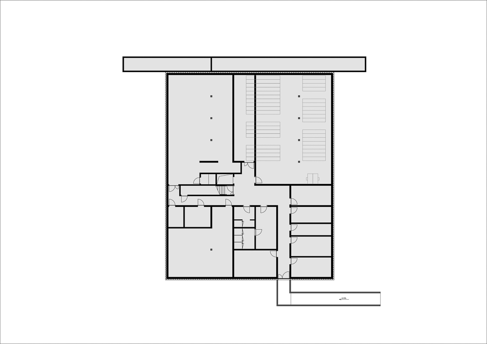
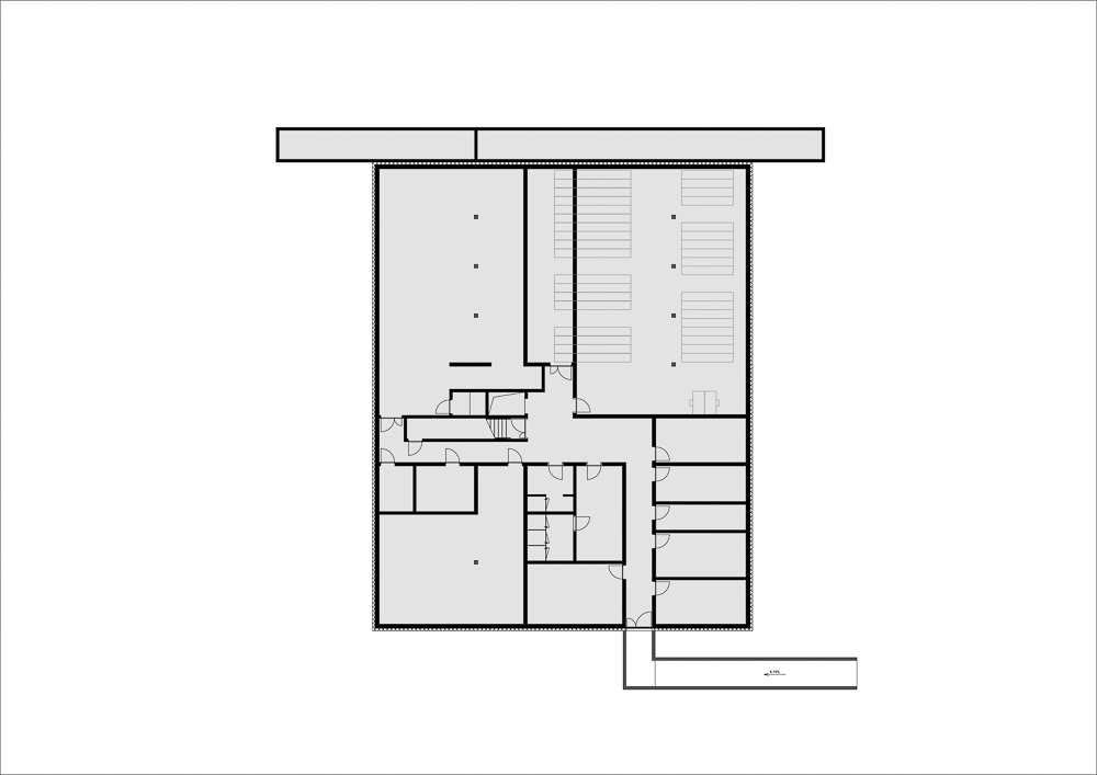
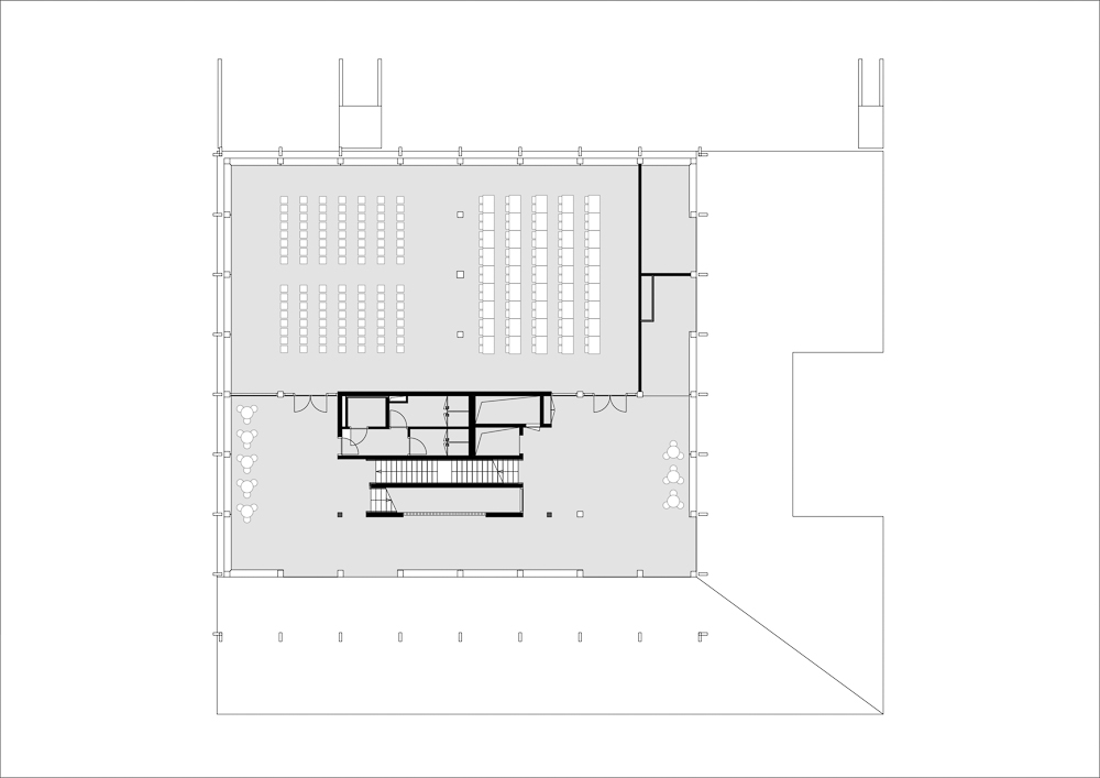
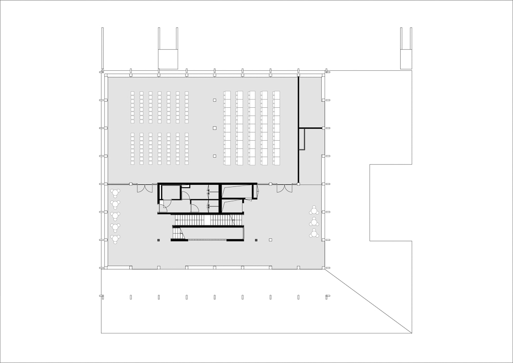
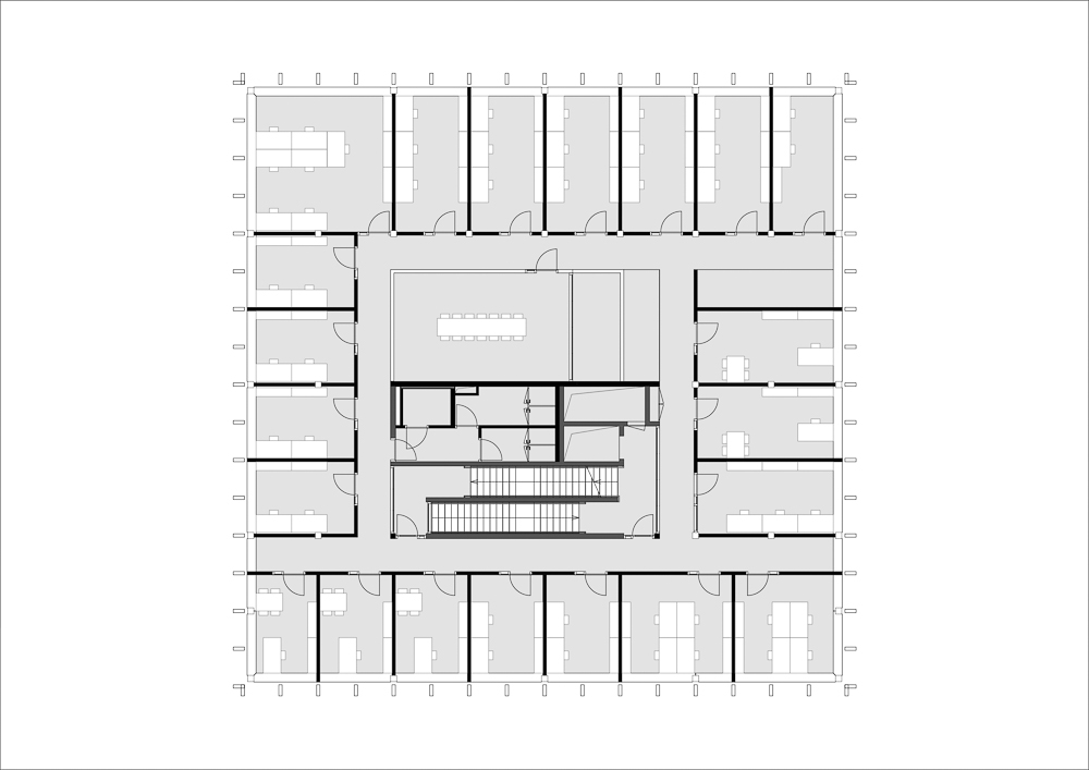
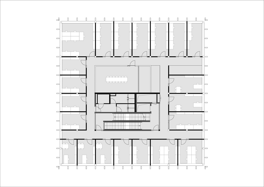
Public and highly frequented rooms are situated on the lower levels. The two large seminar rooms on the entrance level can be joined and opened towards the foyer to provide a large space for events. The learning spaces in the library, as well as the seminar rooms below, are orientated to the park in the northeast with its dense vegetation. The departments, each of which comprises offices, a meeting room and a small kitchen, are on the top two levels.
Modern digital technologies were used for planning and construction. After the design team had worked together to create a comprehensive BIM model, it was used to extract all relevant information to manufacture the individual CLT elements. Then ‘Stora Enso Wood Products’ fitted these elements with digital sensors to continuously capture the temperature and the humidity during transport and assembly. This information is used to ensure no environmental thresholds were crossed for any of the elements.
The building has been recognized for its sustainable design. It scored 965 out of 1,000 possible points of the Austrian klimaaktiv building standard, and was thus award the gold certificate. In addition to the climate-neutral construction materials, the compactness of the building and its positive effect on energy efficiency was applauded.

빈 보덴쿨투르 대학교 도서관과 세미나 센터 BOKU(University of Natural Resources and Life Sciences) 캠퍼스는 목구조 건물로 확장되었다. 새 건물은 세미나 센터, 도서관, 여러 부서를 위한 사무실 및 공유 공간을 위한 기능을 제공한다. 개방형 출입구와 공용 테라스는 주변 건물의 학생과 교수진의 소통이 가능한 공간을 만든다. 목재가 만드는 분위기 외에도 높은 비율의 자연채광은 쾌적한 학습 및 작업 환경에 기여한다.
건물의 외관은 목재 골격 구조가 특징이다. 원목 파사드 그리드는 천장을 구성하는 구조적 그리드로, 출입구와 도서관의 내부까지 연결된다. 그것을 지지하는 구조는 또 다른 디자인 요소다. 입면을 구성하는 통유리 개구부는 내부와 주변 환경 사이의 대화를 만든다. 따뜻한 계절에는 이를 테라스로 열어 학생들이 모이는 만남의 장소가 된다. 4층 규모의 목구조 건물은 조립식 교차 적층 목조로 구성되어 있다. 부분적으로 지하에 있는 기초와 계단실은 철근콘크리트로 조성됐다.
건물의 저층부에는 공용 공간과 출입 빈도가 높은 실들이 위치해 있다. 주 출입구 층에 있는 두 개의 큰 세미나실을 통합해서 로비 쪽으로 개방하면 넓은 행사 공간이 된다. 도서관 내 학습공간은 물론 그 아래에 위치한 세미나실도 울창한 초목이 있는 북동쪽 공원을 바라보고 있다. 대학의 각 부서실은 사무실, 회의실, 탕비실로 구성되어 있으며 건물의 상층부 2개 층에 위치한다.
현대 디지털 기술은 건축 계획과 건설 과정에 사용되었다. 설계팀이 종합적인 BIM 모델을 만들면, 여기에서 개별 CLT 요소를 제조하기 위해 모든 관련 정보를 추출했다. 그런 다음 각 CLT 요소에 디지털 센서를 장착하여 자재 운반 및 조립 중에 온습도를 지속적으로 모니터링했다. 이 정보는 모든 건설 요소에서 환경에 미치는 영향이 임계값을 초과하지 않도록 확인하는 데 사용됐다.
이러한 노력 덕분에 건물은 지속 가능한 건축 디자인으로 인정받을 수 있었다. 오스트리아 클리막티브 건축 기준 1,000점 만점에 965점을 받아 금상을 수상했다. 탄소 중립적인 건축자재 외에도 건물의 소형화와 에너지 효율에 대한 긍정적인 효과에 대해 찬사를 받았다.













Architect SWAP Architekten + DELTA
Location Vienna, Austria
Site area 3,500㎡
Building area 2,516㎡
Gross floor area 5,060㎡
Building to land ratio 72%
Floor area ratio 65%
Design period 2018. 1 -11
Construction period 2019. 4 - 2020. 6
Completion 2020
Principal architect SWAP Architekten
Project architect Christoph Falkner
Design team Georg Unterhohenwarter, Matthias Jahn, Gerfried Hinteregger
Structural engineer Bollinger + Grohmann ZT GmbH
Mechanical engineer teamgmi Ingenieurbüro GmbH
Electrical engineer Technisches Büro Braun GmbH
Construction Steiner Bau, Liebe Bau Weiz
Client BIG Bundesimmobiliengesellschaft m.b.H.
Photographer Hertha Hurnaus
해당 프로젝트는 건축문화 2021년 9월호(Vol. 484)에 게재되었습니다.
The project was published in the September, 2021 issue of the magazine(Vol. 484).
September 2021 : vol. 484
Contents : RECORDS 39TH SEOUL ARCHITECTURE AWARD 서울시, 제39회 서울특별시 건축상 발표 WOOD PLASTIC COFFEE DECK, THE MATERIAL IN THE LEADING CARBON-NEUTRAL ERA 커피박 합성목재, 선..
anc.masilwide.com
'Architecture Project > Education' 카테고리의 다른 글
| ARCHITECTURE LIBRARY CHULALONGKORN UNIVERSITY (0) | 2021.12.24 |
|---|---|
| LIBRARYJEONGBO-MARU (0) | 2021.12.23 |
| SHENZHEN COLLEGE OF INTERNATIONAL EDUCATION (0) | 2021.12.17 |
| MÄLARDALEN UNIVERSITY (0) | 2021.12.16 |
| ACADEMIC-ARK OTEMON GAKUIN UNIVERSITY (0) | 2021.12.15 |
마실와이드 | 등록번호 : 서울, 아03630 | 등록일자 : 2015년 03월 11일 | 마실와이드 | 발행ㆍ편집인 : 김명규 | 청소년보호책임자 : 최지희 | 발행소 : 서울시 마포구 월드컵로8길 45-8 1층 | 발행일자 : 매일



