
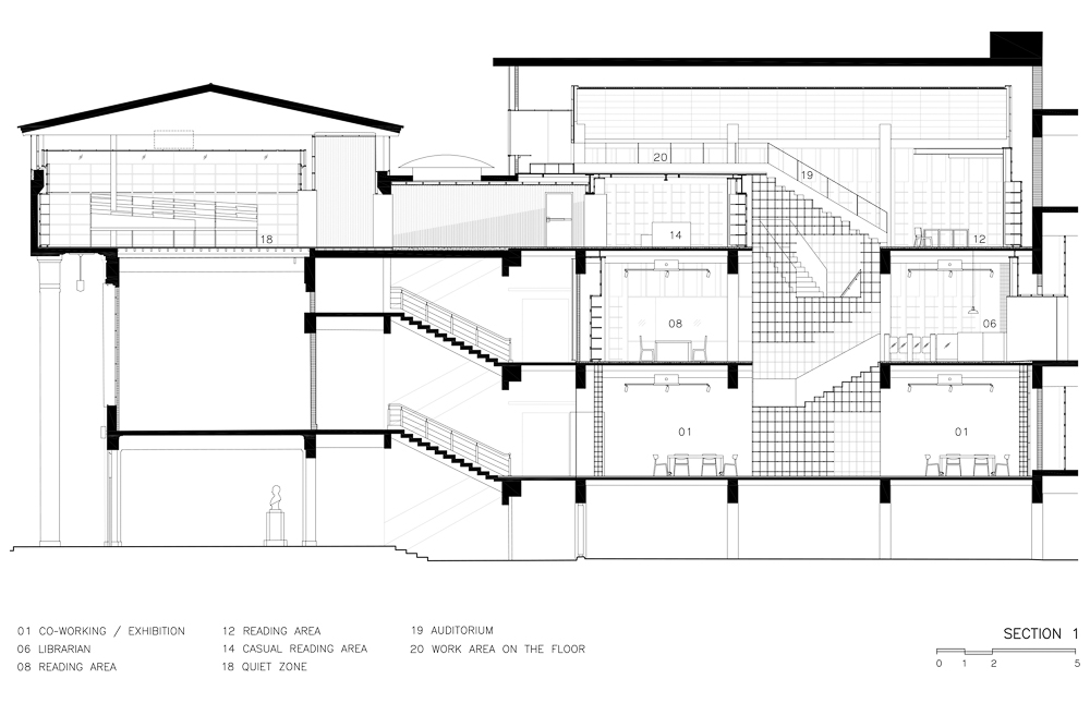
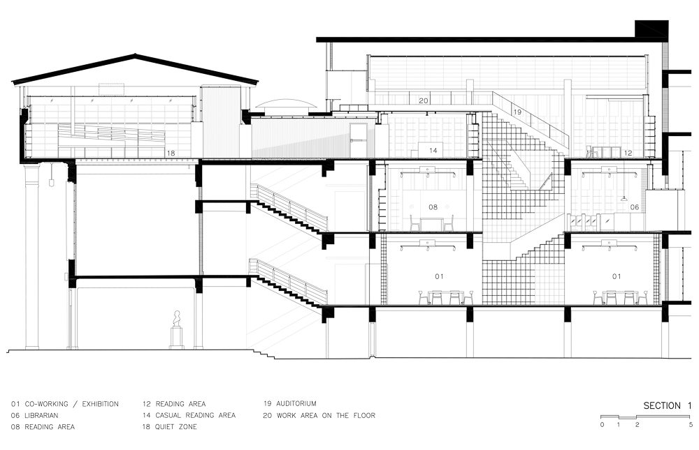
Libraries today may continue to play an a important role as a learning space but it may not be the same anymore. There is an urge to rethink what a learning space is; and in particular what a learning space for an architecture school could become. To re-activate the library, the project has expanded the meaning of the architecture library to be more than a place for reading books, but to become ‘a creative incubator’ for students of architecture. Various programs are integrated into the new library. They range from a co-working space, an exhibition space, a pin-up space to an occasional lecture space where the library becomes a place for the exchange of ideas, and it includes not only physical books as sources of knowledge and inspiration but also digital media, movies, exhibition, etc.
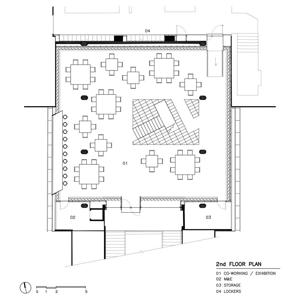
On its first level, a 3Ds grid system enveloping a co-working space provides an open-ended platform for students to create exhibitions or various events, to hang, fasten, insert, or to do anything with it. It becomes an experimental ground for architecture students to act on the space. The ever-changing exhibitions from various studios in the schools could inspire one another. The system is also available for pin-up spaces with magnetic pinboards and digital screen where anyone who walk pass can stop by to join the discussions.
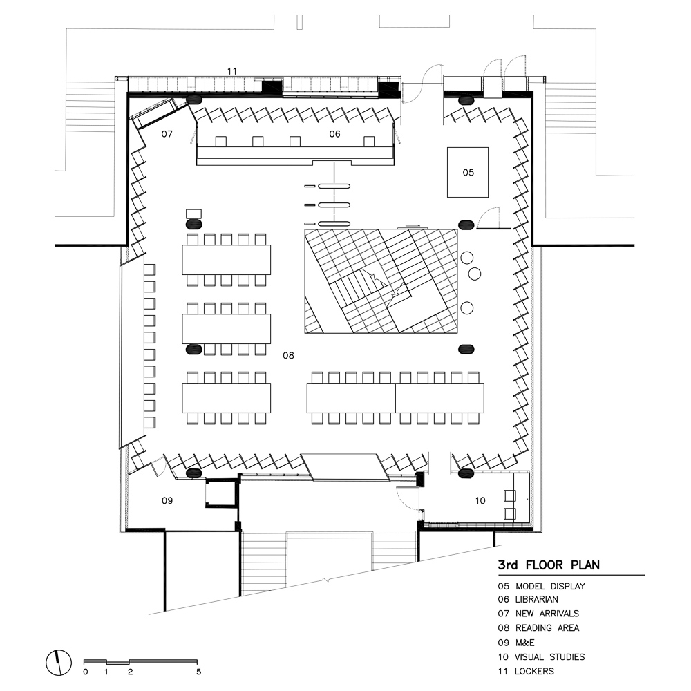
Although today a great deal of information is online. Content in books still have a different nature of curation and depth. While digital data already surrounds us virtually, the physical space of the library attempts to surround us with physical books and magazines. Showcase spaces showing book covers facing out are maximized, rather than the usual compressed stacks we see only book spines, inviting people to pick them up to read them.
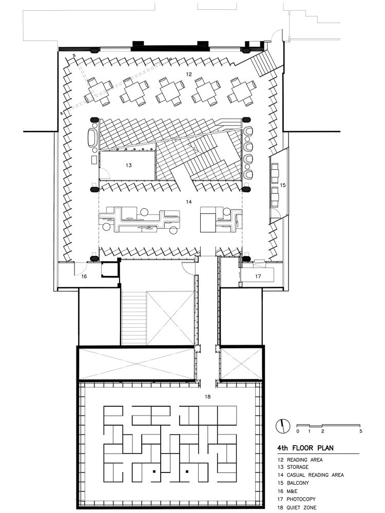
There still be a quiet zone for those who need to concentrate. Carrels are rearranged in a labyrinth configuration to minimize disturbance from the circulation around. The reflective ceiling reveals the plan of the luminous maze. On the top floor, the pixelated steps are reading area that, with rearrangement of the cushions, can be turned into an auditorium for occasional lectures or movies as another source of inspiration.
Different atmospheres and seating types allow people to choose according to their preference, from co-working space, tables looking to the outside, a quiet area, low table and sofa space for a relaxing setting, even to sitting on the floor. The students who work all night may even find a space to take a power nap on the mattress area on the mezzanine to refresh themselves before going to the next class.

건축학도의 다양한 요구를 수용하는 새로운 도서관, 출라롱콘대학교 건축도서관
오늘날 많은 정보를 온라인에서 찾을 수 있지만, 책의 내용은 여전히 다른 성질의 구성과 깊이를 보유한다. 오늘날 도서관은 여전히 학습 공간으로서 중요한 역할을 하지만, 더이상 예전과 동일한 역할은 아닐 수 있다. 출라롱콘대학교 건축도서관은 건축학을 공부하는 대학생들을 위한 학습 공간을 새롭게 정의하는 공간으로, 건축학도들의 ‘창의적 인큐베이터’가 됐다. 단순히 책만 읽는 공간을 뛰어 넘어, 다양한 프로그램이 이 도서관 안에 담겨 있다. 공동작업 공간, 전시 공간, 임시 설치 공간 등 대학생들의 참신하고 실험적인 아이디어가 교류될 수 있는 공간들이 구비되어 있다. 도서관 내에 마련된 강의 공간, 지식과 영감을 가져다 줄 다양하고 전문적인 서적 뿐만 아니라 디지털 미디어, 영화, 전시 등을 위한 공간도 준비되어 있다.
1층의 공동작업 공간을 둘러싸고 있는 3D 그리드 시스템은 학생들이 전시나 다양한 이벤트를 창조하고, 매달고, 고정하고, 집어넣는 등 무엇이든 할 수 있는 개방형 플랫폼이다. 건축학도들이 공간에 대한 다양한 활동을 할 수 있는 실험장인 것이다. 각 설계실에서 끊임없이 바뀌는 서로의 작품을 전시하는 공간은 학생들에게 영감을 불어넣는다. 자성의 핀 보드와 디지털 스크린이 있는 핀업 공간으로도 사용할 수 있으며, 지나가는 사람 누구나 들러 간이 크리틱을 가질 수도 있다.
도서관의 물리적 공간은 직접 가지고 읽을 수 있는 서적들과 잡지로 둘러싸여 있다. 서적의 등만 보이는 일반적인 형태의 서가가 아닌 책 표지가 바깥쪽을 향하도록 배치되는 서가가 책을 집어 들고 읽도록 자극한다. 집중이 필요한 사람을 위한 조용한 개인 열람실은 미로처럼 배열되어 주변에서 움직이는 사람들로부터 방해받지 않을 수 있다. 빛이 반사되는 천장은 이 미로식의 평면을 비춰주는 거울이다. 최상층의 스탠드형 공간은 독서 공간, 강의, 영화를 감상할 수 있는 강당으로도 활용 가능하다.
사람들은 취향에 따라 공동작업 공간, 바깥 풍경이 보이는 테이블, 조용한 개인 열람실, 편안한 휴식을 위한 낮은 테이블과 소파 공간, 바닥에 앉을 수 있는 공간 등을 선택할 수 있다. 이렇게 한 건축물 안에서 다양한 분위기와 좌석 유형에 따른 공간 활용은 “공간”을 탐구하고 고민하는 건축학도들을 위한 최적의 구성이기도 하다. 밤샘 작업이 잦은 학생을 위해 휴식과 낮잠을 위한 중층 낮잠 공간이 마련되어 있기도 하다.












Architect Department of ARCHITECTURE Co.
Location Wang Mai, Pathum Wan District, Bangkok, Thailand
Gross floor area 1,260㎡
Principal architect Twitee Vajrabhaya, Amata Luphaiboon
Project architect Chaiyapat Mirasena
Design team Boonvadee Laoticharoen, Pattamapa Komonniramit
Lighting APLD co., ltd.
Environmental graphic GA49 co., ltd.
Ceiling graphic be>our>friend studio
Structural engineer Jet
Structural Mechanical engineer Next 2nd co., ltd.
Electrical engineer Next 2nd co., ltd.
Construction management Prime Engineering Architectural Consultants co., ltd.
Construction Thaweemongkol Construction (2000) co., ltd.
Client Faculty of Architecture, Chulalongkorn University
Photographer W Workspace
해당 프로젝트는 건축문화 2021년 9월호(Vol. 484)에 게재되었습니다.
The project was published in the September, 2021 issue of the magazine(Vol. 484).
September 2021 : vol. 484
Contents : RECORDS 39TH SEOUL ARCHITECTURE AWARD 서울시, 제39회 서울특별시 건축상 발표 WOOD PLASTIC COFFEE DECK, THE MATERIAL IN THE LEADING CARBON-NEUTRAL ERA 커피박 합성목재, 선..
anc.masilwide.com
'Architecture Project > Education' 카테고리의 다른 글
| PANNAR PROJECT (0) | 2022.04.07 |
|---|---|
| THE CLOUDSCAPE OF HAIKOU (0) | 2022.02.15 |
| LIBRARYJEONGBO-MARU (0) | 2021.12.23 |
| LIBRARY AND SEMINAR CENTRE BOKU VIENNA (0) | 2021.12.22 |
| SHENZHEN COLLEGE OF INTERNATIONAL EDUCATION (0) | 2021.12.17 |
마실와이드 | 등록번호 : 서울, 아03630 | 등록일자 : 2015년 03월 11일 | 마실와이드 | 발행ㆍ편집인 : 김명규 | 청소년보호책임자 : 최지희 | 발행소 : 서울시 마포구 월드컵로8길 45-8 1층 | 발행일자 : 매일



