
The project encompasses a brand-new building as well as a renovation of Paul Hedqvist’s listed public bath from 1932, located within a historic district by the river. With public functions, such as a library, open study areas, auditorium, café, and exhibition hall, Mälardalens University will be a new centre of science and landmark in Eskilstuna.
The competition for a new university building in Eskilstuna was announced in 2014, and the mission was to create a river-facing “building with character”, while also incorporating Paul Hedqvist’s iconic public bath from 1932. Eskilstuna’s urban history is a protected area of Swedish national interest for cultural heritage, which is clearly felt in the city centre, with its preservation of various periods of high-quality architecture. The public bath was the first modernist building to be built outside Stockholm.
Based on historical context, 3XN wants to contribute with architecture that takes into account the national focus on the various important additions of character to the area throughout history, while strengthening Eskilstuna’s new status as a city of knowledge.
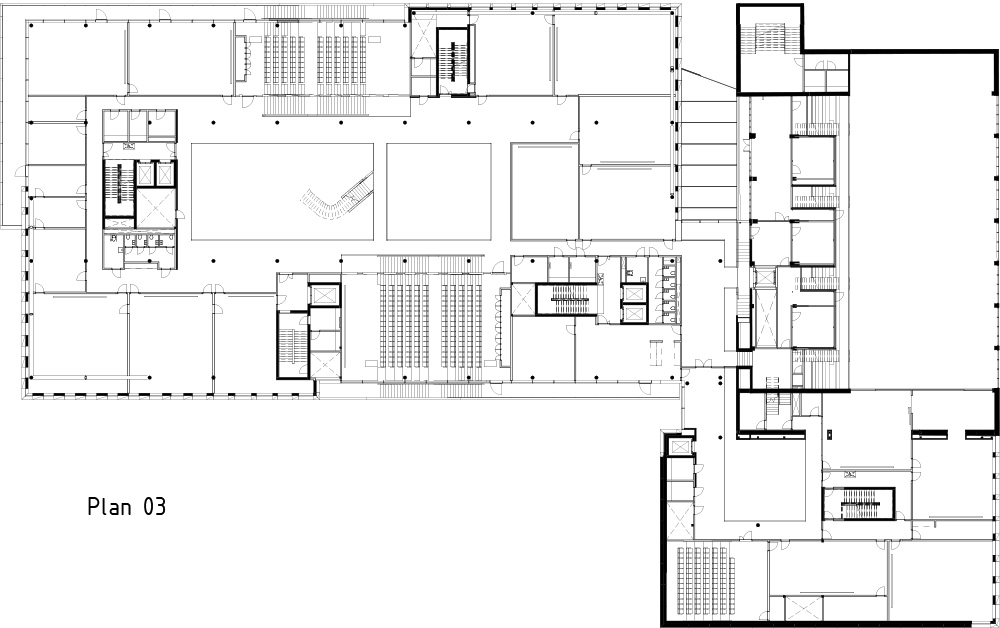
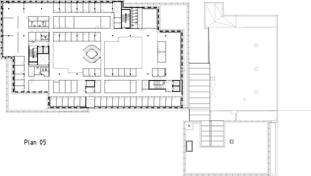
Mälardalens University offers educational facilities and workplaces for 4,000 students and 350 employees. The vision has been to create an open and inspiring learning environment that encourages natural interaction between students and staff. The new extension is carefully adapted to Paul Hedqvist’s public bath, which will be the new central hub and social meeting place on Campus.
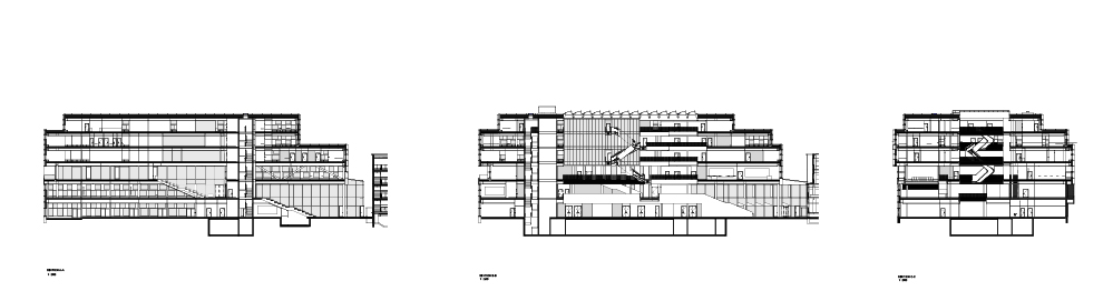
By dividing the new building into smaller units that are closely connected, total volume is reduced, providing for a natural dialogue with the original scale of the public bath. References to the functionalist architecture of the bath can be seen in the geometry and surfaces of the new building. The historic building is intertwined with the new volume into a common unit with open areas. The public bath is the heart, and all student facilities are found under one roof, including a café, library, study, and lecture halls.
Pursuant to the conditions of the competition, the entire neighbourhood preserves its composition of various buildings of character from different eras within the 17th century grid plan worthy of preservation, including a new landmark from our time. The facades consist of curtain wall elements hung on the frame edges of the structure. A variety of angled aluminium cassettes, creating open and closed sections across the facade, allows for varied and dynamic daylight penetration. The angle and depth of the aluminium cassettes vary depending on the orientation of the facade and the underlying functions, enabling control of sunlight penetration and daylight conditions. With its homogenous, clean facades in white aluminium, a dialogue is created between the new building and the modernist architecture of the public bath. In its vibrant and agile manifestation, the facade of the new building will be a symbol for Eskilstuna as a future city of knowledge.

새롭게 태어난 모더니즘의 유산, 멜라달렌 대학교
이 건물은 폴 헤크비스트(Paul Hedqvist)가 1932년에 설계한 공중목욕탕 건물의 리노베이션과 더불어 새롭게 증축된 건물이다. 도서관, 열린 학습 공간, 강당, 카페, 전시 홀과 같은 공공 기능을 갖춘 멜라달렌 대학교는 과학의 새로운 중심지이자 에스킬스투나의 랜드마크가 됐다.
에스킬스투나의 새 대학 건물에 대한 공모는 2014년에 개최됐고, 폴 헤크비스트의 상징적인 공중목욕탕을 통합하는 동시에 강을 마주 보고 있는 “특색 있는 건물”을 짓고자 했다. 에스킬스투나는 도심에서 느껴지는 문화유산에 대한 스웨덴의 국가적 관심이 높은 보호구역으로, 역사적으로 다양한 시대의 건축물을 보존하고 있는 구역이다. 공중목욕탕은 스톡홀름 외곽에 지어진 최초의 모더니즘 건물이기도 하다.
이러한 역사적 맥락을 바탕으로 건축가는 이 지역에 다양한 특성을 추가하고자 하는 국가적 초점을 건축을 통해 기여하고자 했다. 동시에 지식의 도시로서 에스킬스투나의 새로운 위상을 강화하고자 했다.
멜라달렌 대학교는 4,000명의 학생과 350명의 직원을 위한 교육 시설과 직장을 제공한다. 디자인 목표는 학생과 교직원 간의 자연스러운 소통을 장려하는 개방적이고 영감을 주는 학습 환경을 만드는 것이었다. 새롭게 증축되는 부분은 캠퍼스의 중앙 허브이자 모임의 장소가 될 공중목욕탕에 세심하게 구획되었다.
신축 건물을 목욕탕과 밀접하게 연결하기 위해 작은 단위로 분할하여 전체 부피를 줄이고, 본래의 목욕탕 규모와 어울리게 계획했다. 대중탕의 흔적은 새 건물의 기하학적 구조와 입면에서 볼 수 있다. 공중목욕탕 건물은 새로운 볼륨과 얽혀 있어 개방된 공간이 있는 장소다. 카페, 도서관, 서재, 강당 등 학생을 위한 모든 시설이 한 지붕 아래에 있다.
공모의 조건에 따라, 현시점의 새로운 랜드마크가 될 이 건물을 포함해 17세기의 격자 평면 내에서 전체적인 계획은 각기 다른 시대의 다양한 성격을 가진 공간이 보존되도록 계획됐다. 건물의 정면은 구조 프레임 가장자리에 매달린 커튼월로 구성된다. 다양한 각도의 알루미늄 시트는 입면 전체에 개방 및 폐쇄 구역을 생성하고, 다채로운 자연채광을 건물로 들인다. 알루미늄 파사드 유닛의 각도와 깊이는 입면의 방향과 기능에 따라 달라지므로, 자연 채광을 제어할 수 있다. 흰색 알루미늄의 균일하고 깨끗한 입면으로 새 건물과 대중목욕탕의 모더니즘 건축 사이에 대화가 이루어진다.








Architect 3XN + AIX ARKITEKTER
Location Eskilstuna, Sweden
Gross floor area 23,974㎡
Completion 2020
Project architect 3XN
Interior architect AIX architects
Landscape architect Land Landskapsarkitekter
Consultant Sweco Arkitects
Construction Serneke AB
Client Mälardalens Högskola
Photographer Åke Lindman, Anders Bobert, Jason Strong, Jonas Bilberg
해당 프로젝트는 건축문화 2021년 9월호(Vol. 484)에 게재되었습니다.
The project was published in the September, 2021 issue of the magazine(Vol. 484).
September 2021 : vol. 484
Contents : RECORDS 39TH SEOUL ARCHITECTURE AWARD 서울시, 제39회 서울특별시 건축상 발표 WOOD PLASTIC COFFEE DECK, THE MATERIAL IN THE LEADING CARBON-NEUTRAL ERA 커피박 합성목재, 선..
anc.masilwide.com
'Architecture Project > Education' 카테고리의 다른 글
| LIBRARY AND SEMINAR CENTRE BOKU VIENNA (0) | 2021.12.22 |
|---|---|
| SHENZHEN COLLEGE OF INTERNATIONAL EDUCATION (0) | 2021.12.17 |
| ACADEMIC-ARK OTEMON GAKUIN UNIVERSITY (0) | 2021.12.15 |
| CUSANUS ACADEMY (0) | 2021.11.23 |
| DONGMYUNG GIRL'S HIGH SCHOOL WUNYEONDANG (0) | 2021.10.20 |
마실와이드 | 등록번호 : 서울, 아03630 | 등록일자 : 2015년 03월 11일 | 마실와이드 | 발행ㆍ편집인 : 김명규 | 청소년보호책임자 : 최지희 | 발행소 : 서울시 마포구 월드컵로8길 45-8 1층 | 발행일자 : 매일



