
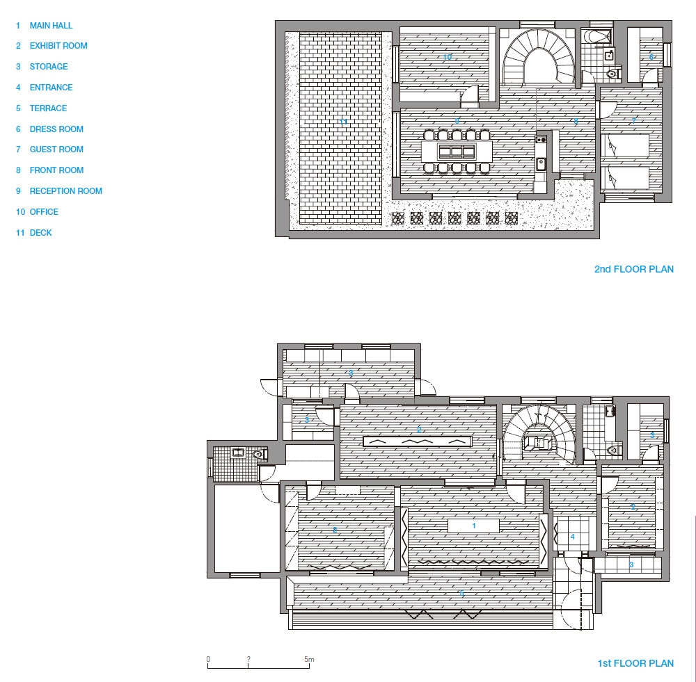
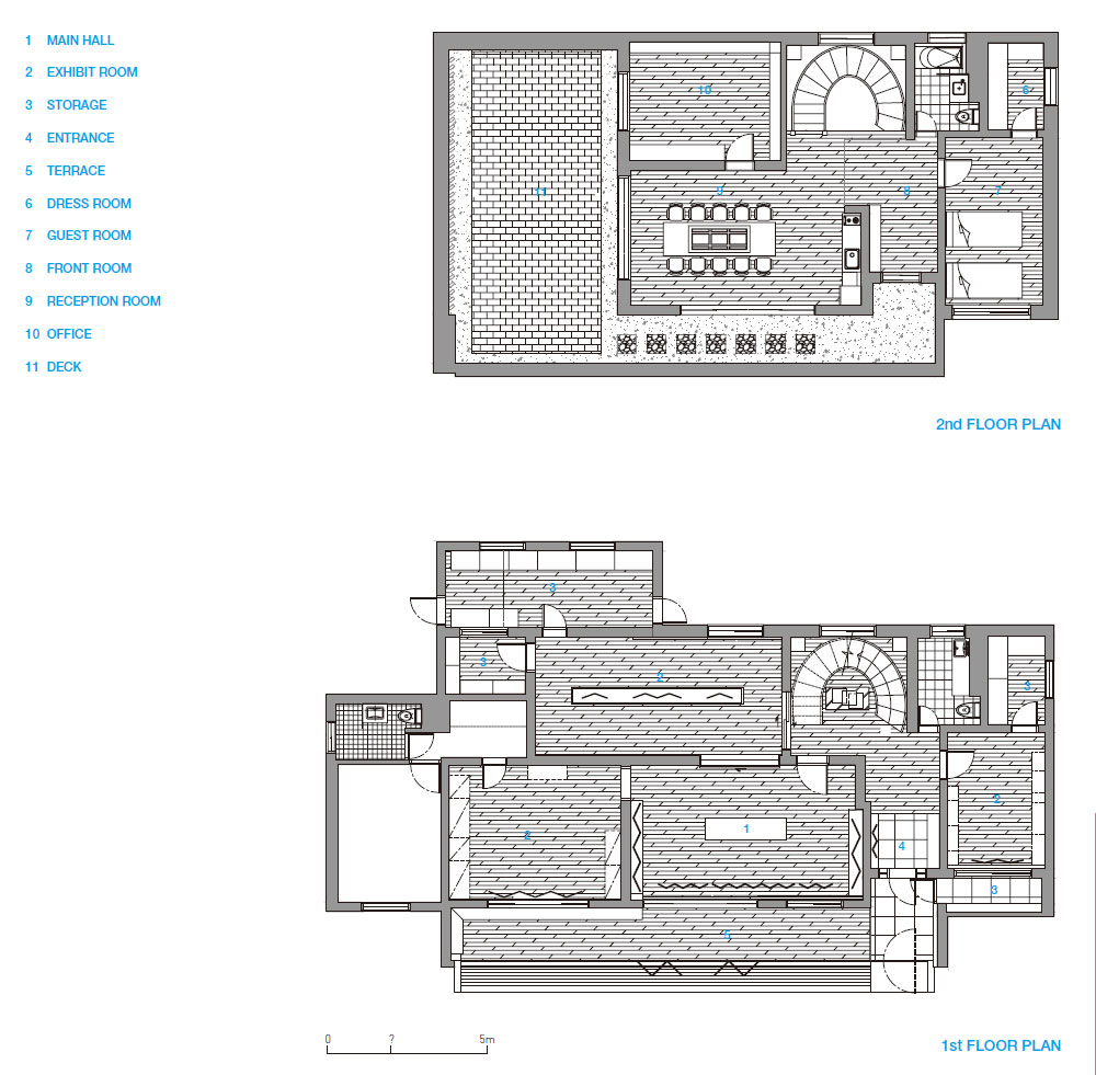
This Dongmyeong Girls' High School project is a project to reconstruct the building used as the founder's residence in Dongmyeong Girls' High School into a space to display the embroidery works and artworks owned by the school founder. At that time, in a situation where it was not allowed due to the change of the education law, the alumni association came forward and raised funds to create a complex cultural space that was used as a guest room for alumni and members of Dongmyeong Girls' High School. It was a situation that clearly showed how buildings over 40 years old can be destroyed by the hands of contractors as they have been
used as general residential spaces for a long time. It is a project that restores the history of this place by carefully tearing it apart one by one like the excavation of cultural assets, rather than a general method of demolition, and finding, restoring, and reinstalling the precious heritage hidden within, such as brick and interior finishes. The door that disappears in the new reconstruction process was also reused as a table on the second floor, preserving as much of the past space as possible. At the request of the reunion, all the materials were organized together, and the exhibition items were framed, displayed, and planned. It is a project that showed no regrets about the usual belief that an architect should work with emotion rather than reason, heart rather than head, and passionate affection for the owner and project rather than technology.

동명여자고등학교 운연당 리모델링
이 프로젝트는 동명여고 내 설립자 사택으로 사용되었던 건축물을 학교설립자 소유의 자수작품들과 미술품을 전시하는 공간으로 재구성하는 프로젝트다. 당시, 교육법 변경으로 주거 건축이 불허되는 상황에서 동창회가 나서서 기금을 모았고 동명여고 구성원들 모두가 사랑방처럼 사용하는 복합문화공간으로 만들기로 한 것이다. 사십 년도 넘은 건축물이 일반 주거공간으로 오랫동안 사용되면서 업자들의 손을 거치면 어떻게 망가질 수 있는지를 극명하게 보여주는 상황이었다. 때문에 일반적인 철거 방법이 아닌 문화재 발굴처럼 하나하나 조심스럽게 뜯어내야 했다. 그 속에 숨겨져 있던 소중한 유산인 옛 벽돌 마감, 실내 마감을 찾아내어 복원하고, 다시 설치하는 등 이 장소의 역사를 복원하는 프로젝트였다. 새로운 재구성 과정에서 사라지는 문 또한 이층 공간에 테이블로 재사용하면서 최대한 과거의 흔적을 모두 보존했다. 그리고 동창회의 요청으로 모든 사료들을 함께 정리하여 전시 품목을 액자로 만들어 전시하고 기획하는 모든 과정에 참여한 의미 있는 프로젝트다. 건축가는 이성보다는 감성, 머리보다는 가슴, 기술력보다는 건축주와 프로젝트에 대한 뜨거운 애정을 가지고 임해야 한다는 평소 소신을 유감없이 발휘했던 프로젝트다.







Architect Archigroup MA
Location Daejo-Dong, Eunpyeong-gu, Seoul, Republic of Korea
Program Exhibition
Construction period 2012. 4 - 10
Principal architect Byungan You
Design team Yongkang Kim, Yuri Kim
Construction Archigroup MA_Yongkang Kim, Jinwon Gho
Client Dongmyung Girl's High School
Photographer Archigroup MA
해당 프로젝트는 건축문화 2021년 7월호(Vol. 482)에 게재되었습니다.
The project was published in the July, 2021 issue of the magazine(Vol. 482).
July 2021 : vol. 482
Contents : RECORDS 2021 SEOUL LIVING DESIGN FAIR 2021 서울리빙디자인페어 : NEWS / COMPETITION / BOOKS : SKETCH BETWEEN PERSON AND ARCHITECTURE / NIKITA BATRAKOV 사람과 건축 사이..
anc.masilwide.com
'Architecture Project > Education' 카테고리의 다른 글
| ACADEMIC-ARK OTEMON GAKUIN UNIVERSITY (0) | 2021.12.15 |
|---|---|
| CUSANUS ACADEMY (0) | 2021.11.23 |
| MONTESSORI KINDERGARTEN (0) | 2021.09.07 |
| SKKU GLOBAL LOUNGE (0) | 2021.09.03 |
| LÉONARD DE VINCI TECHNICAL COLLEGE (0) | 2021.06.17 |
마실와이드 | 등록번호 : 서울, 아03630 | 등록일자 : 2015년 03월 11일 | 마실와이드 | 발행ㆍ편집인 : 김명규 | 청소년보호책임자 : 최지희 | 발행소 : 서울시 마포구 월드컵로8길 45-8 1층 | 발행일자 : 매일



