
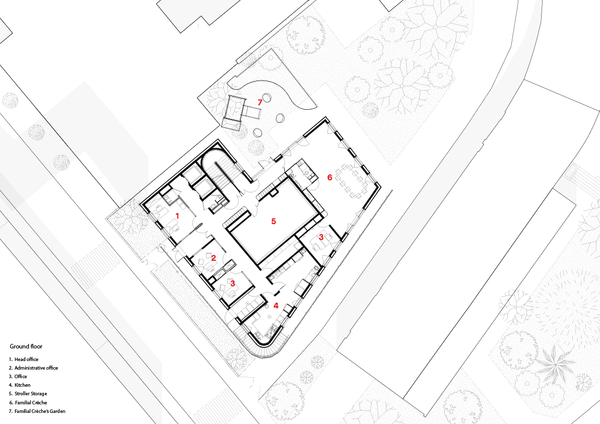
Circular economy. Making more with less. More environmental performance, a smarter use of the floor, a better management of investment and maintenance costs, and a strong will to embody the City of Paris innovative and proactive commitment towards reusing materials and building with a concern for landscape. Thus, the solid oak façade of the building is entirely built up from reused and transformed landing doors. This wooden second skin gives to the building a sense of cohesiveness, of air, light and porosity; openness and protection. The building physiognomy, façades and green rooftop generate a new landscape in which the building itself is more perceived as part of a garden than just adjoining the street.

순환 경제. 적은 자원으로 더 많은 것을 만드는 것. 더 나은 환경 성능, 더 똑똑한 바닥 사용, 더 나은 투자 및 유지 관리 비용 관리, 그리고 자재를 재사용하고 조경에 대한 관심을 가지고 건물을 짓는 파리의 혁신적이고 능동적인 약속을 구현하려는 강한 의지. 그래서 건물의 견고한 오크 파사드는 재사용 및 변형된 승강장 도어로만 지어졌다. 목재로 된 이 두 번째 외피는 건물에 응집력, 공기, 빛, 다공성, 개방성과 보호의 느낌을 부여한다. 건물의 형상, 파사드 및 녹색 옥상은 건물 자체가 단순히 거리에 인접하는 것보다 정원의 일부로 인식되는 새로운 풍경을 생성한다.


















Architects BFV ARCHITECTES
Location Paris, France
Program Nurseries
Design period 2017
Construction period 2018 - 2020
Completion 2020
Technical consultant BERIM
Acoustic ACOUSTIQUE VIVIE
Engineering BOYER
Recycling advise BELLASTOCK
Landscape LAURE PLANCHAIS
Performances Rt2012-20% / effinergie + / plan climat ville de paris / hqe performance circular economy
Client Ville de Paris
Photographer Come Bocabeille
'Architecture Project > Education' 카테고리의 다른 글
| ILLSIN HALL AJOU UNIVERSITY (0) | 2022.12.08 |
|---|---|
| NAEPO NATURE PLAY GARDEN (0) | 2022.12.01 |
| 333 Kingsland Road & Hackney New Primary School (0) | 2022.07.19 |
| KITAKAMI HEALTH & CHILDCARE SUPPORT COMPLEX (0) | 2022.07.18 |
| KINDERGARTEN PELEDZIUKAS EXTENSION (1) | 2022.07.14 |
마실와이드 | 등록번호 : 서울, 아03630 | 등록일자 : 2015년 03월 11일 | 마실와이드 | 발행ㆍ편집인 : 김명규 | 청소년보호책임자 : 최지희 | 발행소 : 서울시 마포구 월드컵로8길 45-8 1층 | 발행일자 : 매일



