
Banseokjip is located on the north side of Gileum Station, in a low-rise residential alley that remains among the large-scale Gileum New Town apartment complexes. The alleyway filled with detached houses corresponds to the apartment complex on the opposite side, and the shops are gradually on the lower floors, and the houses are being filled with store houses that sit on the upper floors. The owner wanted to provide a space in this alley to live with the old woman.
Among the buildings in the alley without a special expression, the program of neighborhood living facilities on the first floor and multi-family housing on the upper floor was placed just like the surrounding buildings, but we struggled to create a unique impression of this building. Since it was a space where families who had been living apart were living together again with their mother, it was a residential space composed of two households, but I wanted to give it the feeling of a single detached house. To this end, the shape of a small house that sits on top of the downstairs neighborhood living facility was created, and different materials were used to emphasize the feeling.
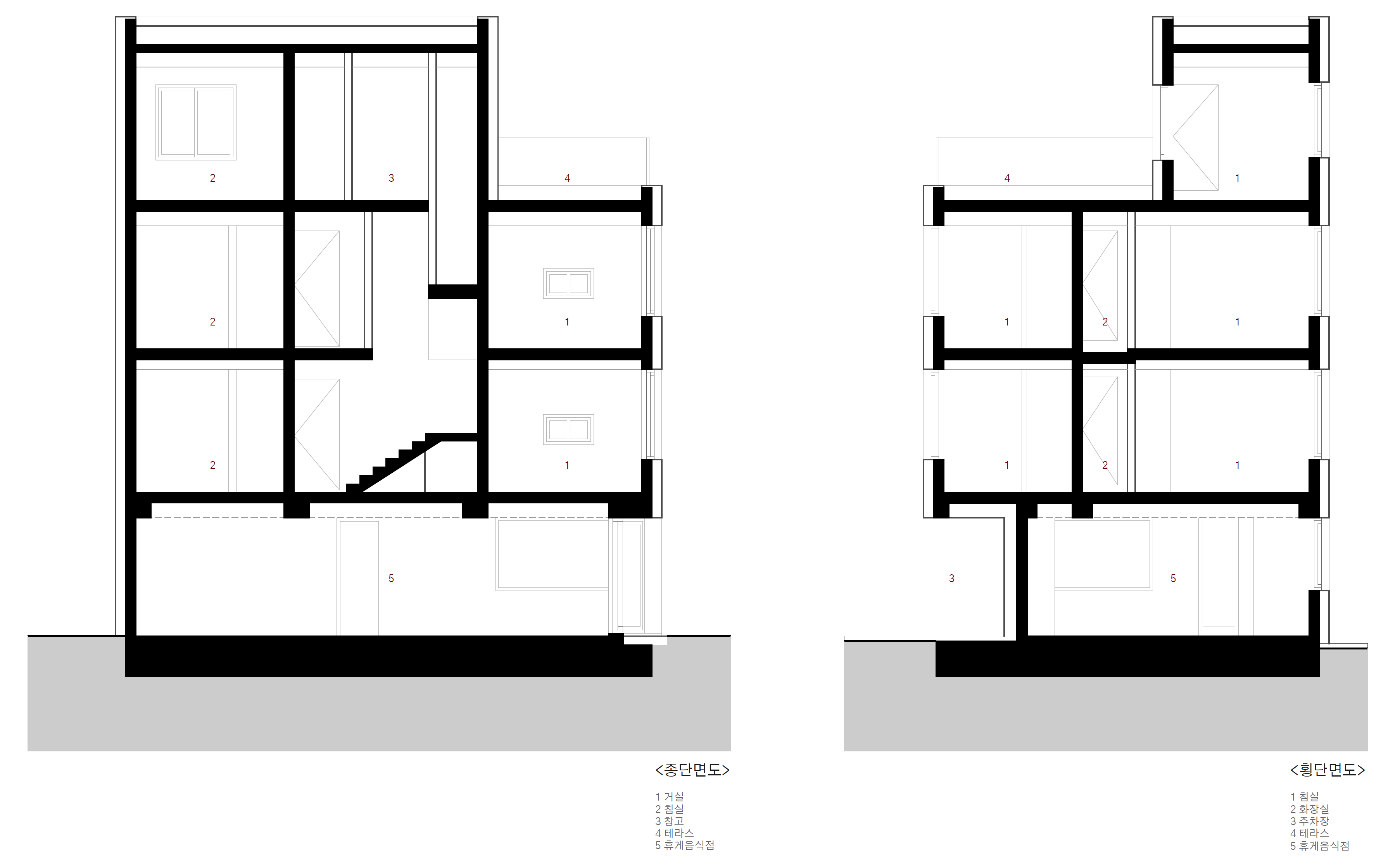
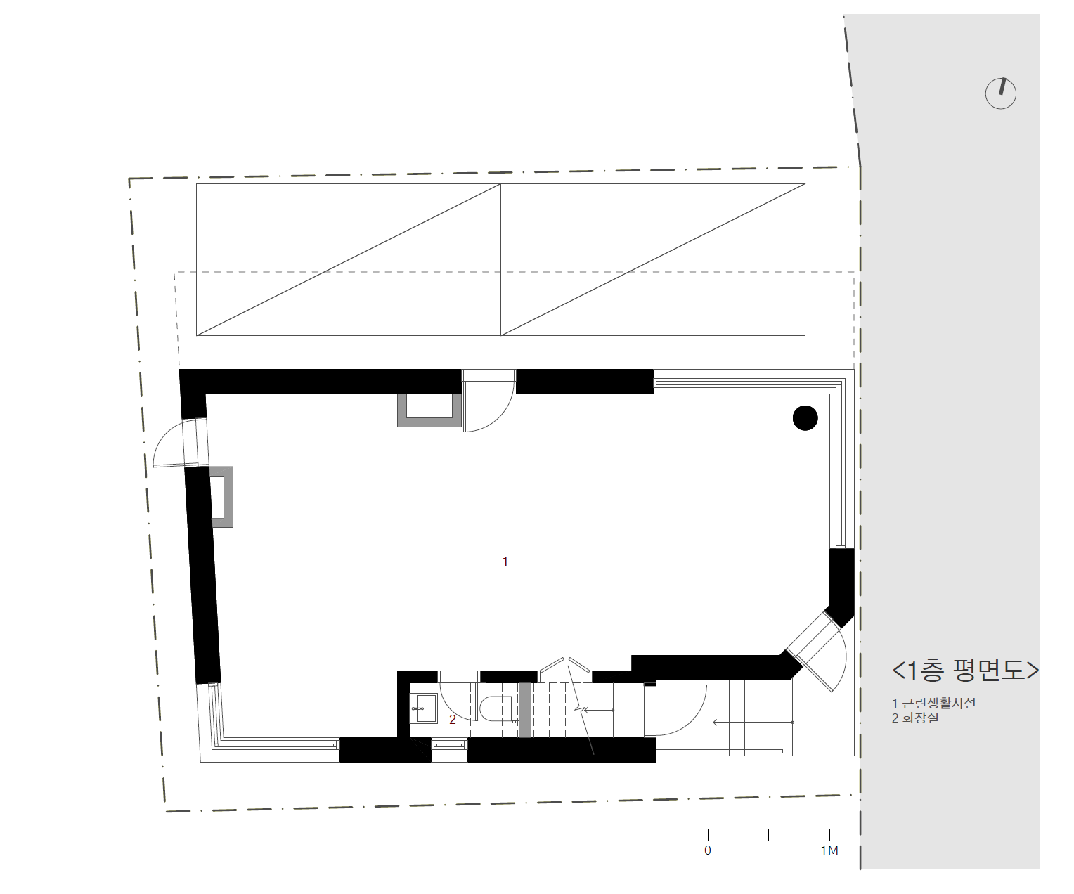
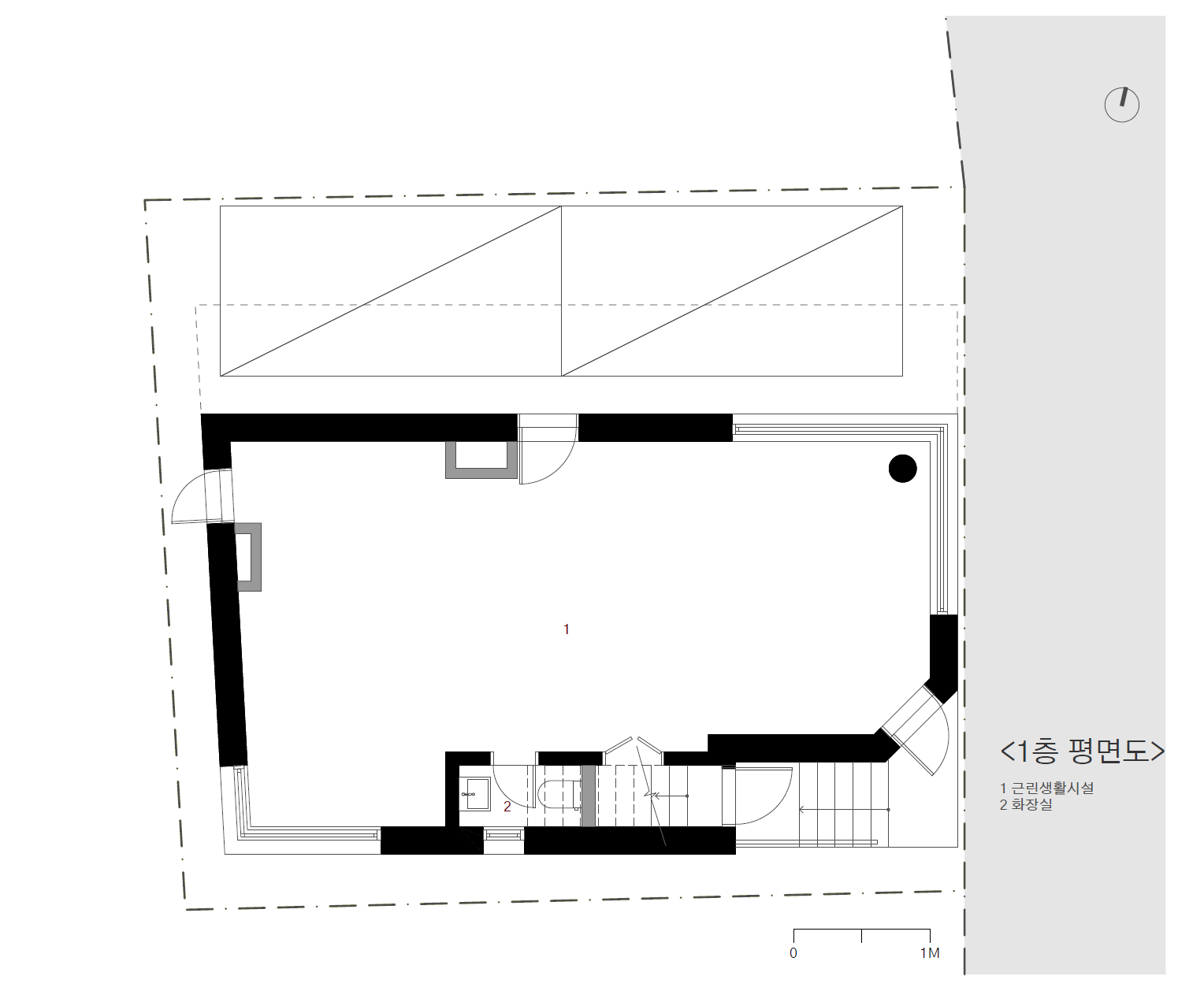
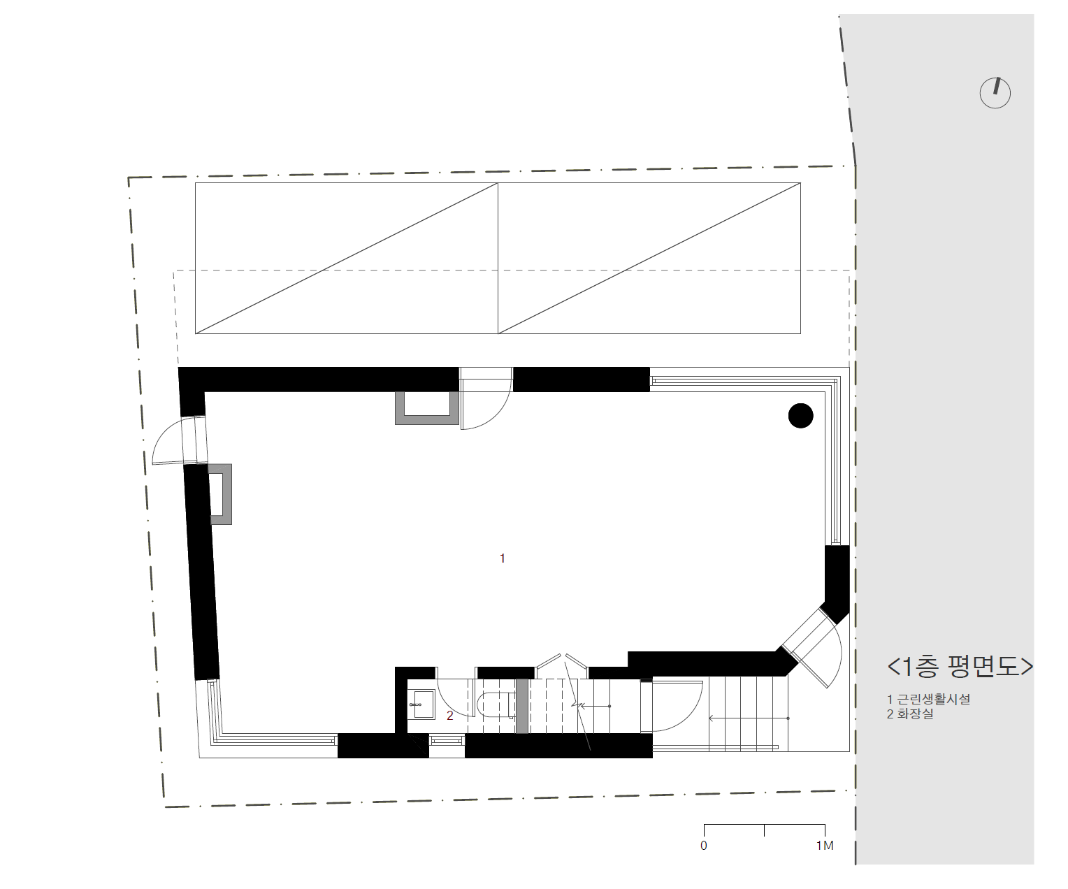
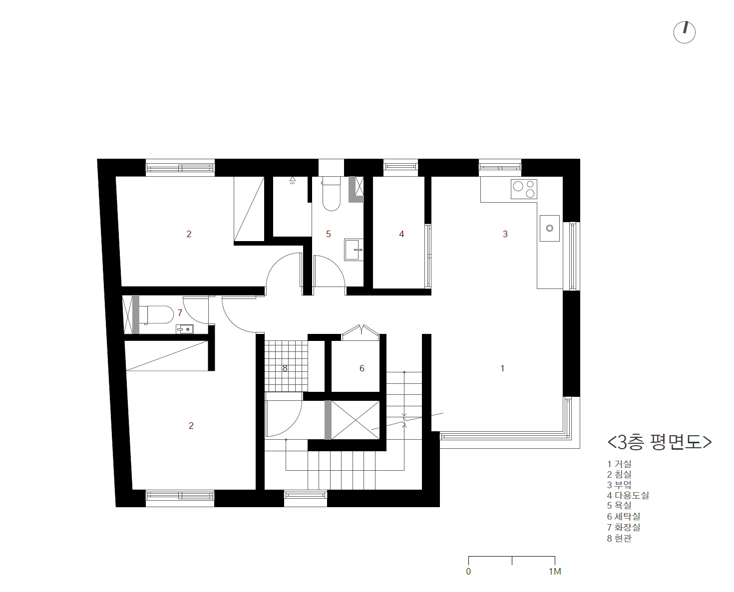
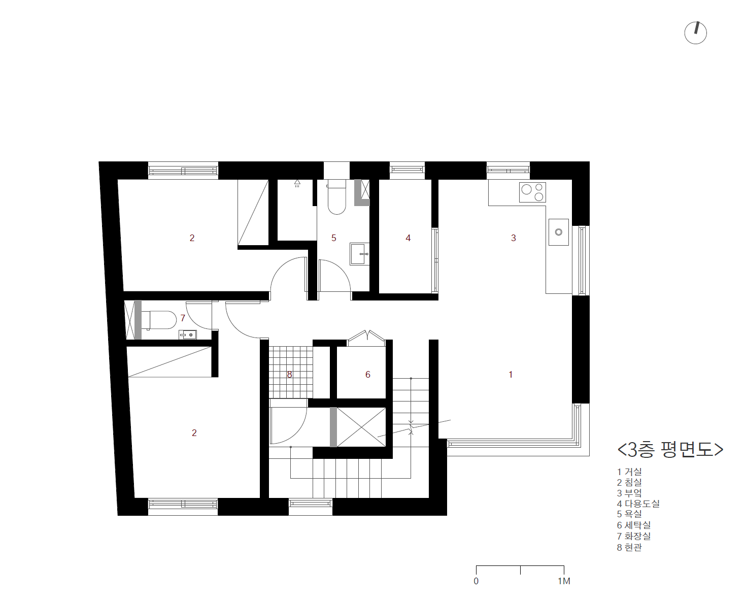
The first floor was placed facing the road suitable for commercial use and finished with bright tiles to increase awareness and brighten the alley. In consideration of the traffic flow of visitors, which may be congested on the narrow front road, the entrance on the first floor has a diagonal line at the corner of the building. On the first floor, which is solidly positioned like a rock with a bright white tile finish, a soft red house is placed that harmonizes with the brick buildings that make up the alley. For the mother of the owner, who has lived in a detached house all her life, the main entrance of the house is separated by an external staircase to form a movement line that goes through a small transition space from the road. Entering through the main entrance, two households are located on the 2nd and 3rd floors along the stairs. You can go out to the roof terrace through the internal stairs of the third-floor household, which consists of two floors. From the rooftop, you can see the low rooflines of the neighborhood, which are being developed little by little, from the same eye level.

반석집은 길음역 북측, 대규모로 들어선 길음뉴타운 아파트단지들 사이에 남아있는 저층 주거지 골목에 위치해 있다. 단독주택이 들어선 골목길은 맞은 편의 아파트 단지에 대응하며 점차 저층에 상점을 갖추고 주거가 상부로 올라앉은 점포주택으로 채워지고 있었다. 건축주는 이 골목에 노모와 함께 살아갈 공간을 마련하고자 했다.
특별한 표정이 없는 골목의 건물들 사이에서 주변과 똑같이 1층에는 근린생활시설, 상층에는 다가구주택이라는 프로그램을 배치했지만, 이 건물만의 특별한 인상을 만들어내고자 고민했다. 흩어져서 생활하던 가족들이 다시 어머니 곁에 모여 사는 공간이었기 때문에 두 가구로 구성된 주거공간이지만 하나의 단독주택 같은 느낌을 주고자 했다. 이를 위해 아래층 근린생활시설 위에 올라앉은 작은 집의 형태를 만들었고, 서로 다른 재료를 사용하여 그 느낌을 강조했다.
1층은 상업용도에 적합하게 도로에 면하게 배치하고 밝은 타일로 마감하여 인지성을 높이고 골목을 환하게 밝혀줄 수 있게 했다. 좁은 전면도로에서 자칫 혼잡할 수 있는 방문자의 동선을 고려하여, 1층의 출입구는 건물 코너 부분에 사선을 만들어 넣었다. 밝은 흰색 타일 마감으로 반석처럼 단단하게 자리 잡은 1층 위에는 골목을 구성하는 벽돌건물들과 어우러지는 부드러운 붉은색 집을 올려놓았다. 평생을 단독주택에서 살아온 건축주 어머니를 위해 주택의 주출입구는 외부계단으로 분리해 도로에서 약간의 전이공간을 거쳐 들어가는 동선을 구성했다. 주출입문 통해 들어선 내부에는 계단을 따라 2층과 3층에 두 가구가 위치한다. 두 개 층으로 구성된 3층 세대의 내부계단을 통해 옥상 테라스로 나갈 수 있다. 옥상에서는 조금씩 개발되고 있는 동네의 낮은 지붕선들을 같은 눈높이에서 바라볼 수 있다.












Architects SOBO architects
Location Gireum-dong,Seongbuk-gu, Seoul, Republic of Korea
Site area 121.4㎡
Building area 72.72㎡
Gross floor area 219.38㎡
Building scope 4F
Building to land ratio 59.90%
Floor area ratio 180.71%
Construction period 2020. 09 - 2021. 04
Completion 2021. 04
Principal architect Sohyun Jeon
Project architect Sohyun Jeon, Hyunbo Shin
Design team Suzi Lee
Structural engineer Eden Structure Consultant
Mechanical engineer Jungyeon Engineering
Electrical engineer Jungyeon Engineering
Construction LAWOO
Photographer Choonggun Lee
해당 프로젝트는 리빙즈, 디테일 04호에 게재되었습니다.
The project was published in LIVINGS, Detail 04
[BOOK] LIVINGS, Detail 리빙즈, 디테일 03호, 04호
<LIVINGS, Detail 리빙즈, 디테일 03호, 04호> 72개의 형태와 라이프스타일을 담은 주거공간, 국내외 “디테일한 주택 프로젝트”의 엮음 매월 국내외 다양한 건축물들을 소개해 온 <월간 건축문화>가 <
www.masilwide.com
'Architecture Project > Multifamily' 카테고리의 다른 글
| TH PALACE (0) | 2022.06.22 |
|---|---|
| VARANDA (0) | 2022.06.22 |
| RESIDENCE EISENERZ (0) | 2022.06.17 |
| BYULNAE HOUSING (0) | 2022.06.16 |
| LIVING LANDSCAPE (0) | 2022.06.15 |
마실와이드 | 등록번호 : 서울, 아03630 | 등록일자 : 2015년 03월 11일 | 마실와이드 | 발행ㆍ편집인 : 김명규 | 청소년보호책임자 : 최지희 | 발행소 : 서울시 마포구 월드컵로8길 45-8 1층 | 발행일자 : 매일



