
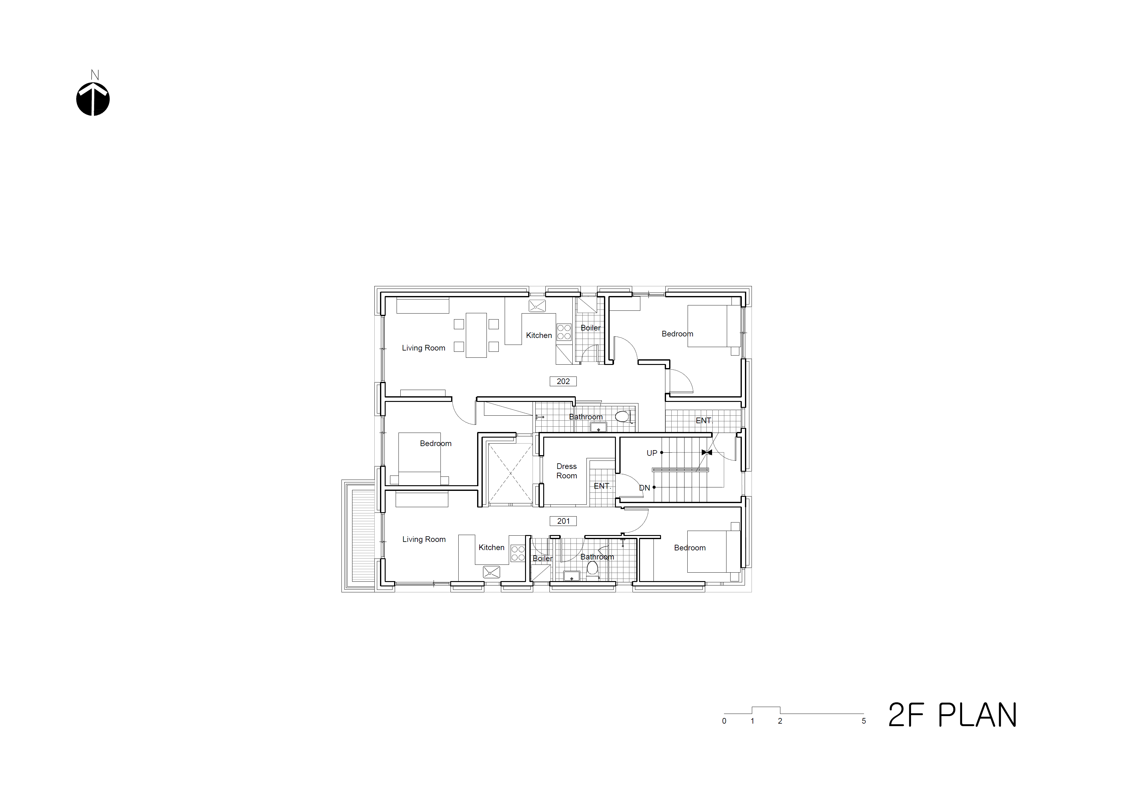
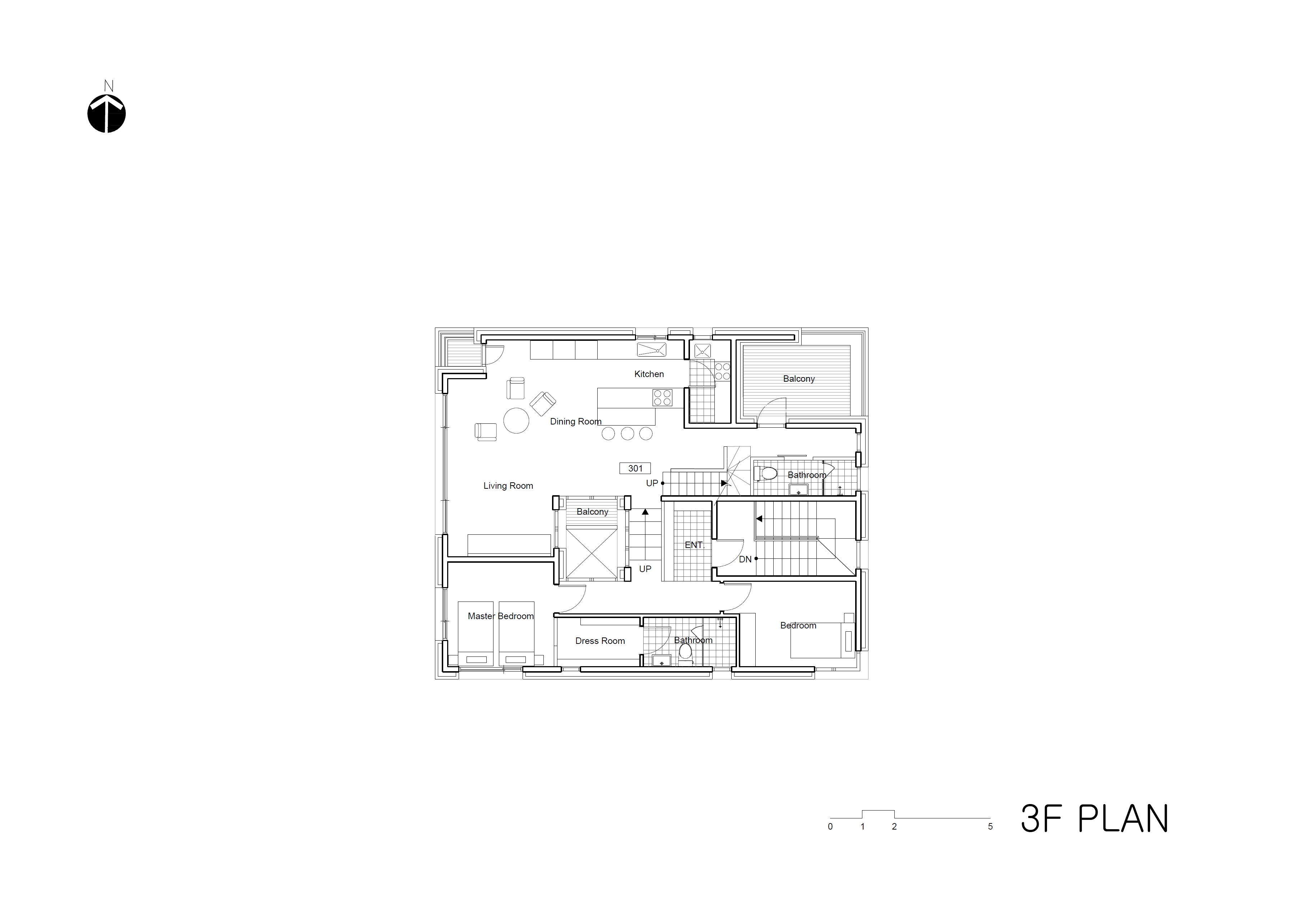
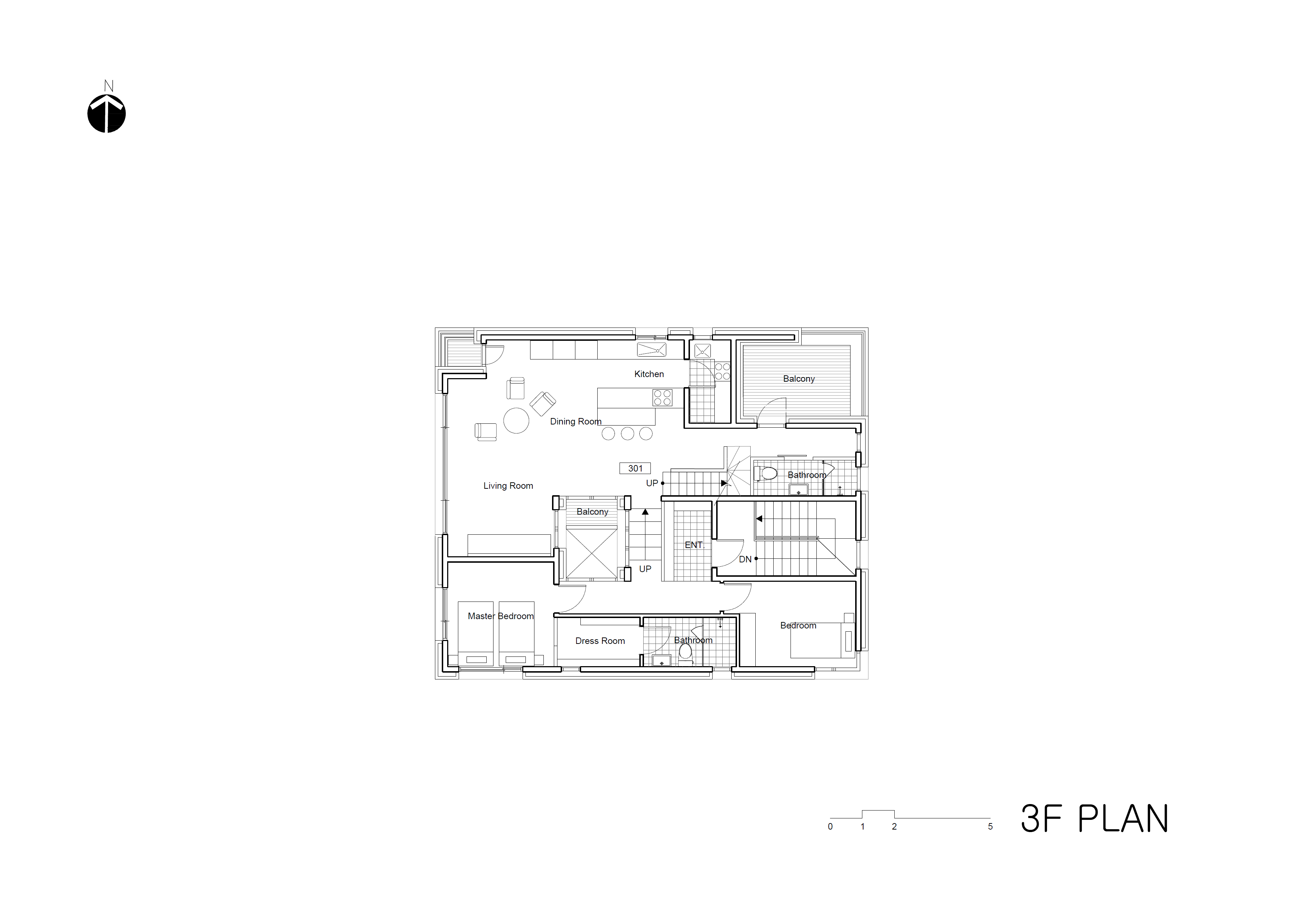
The access road is floating above the sunken garden, and while walking towards the door as if being sucked in, When you reach the front door, there is a courtyard facing the sky. Each house has windows and balconies facing each other through the courtyard. The light from the south is brought in through this small courtyard. The difference in elevation of the land naturally creates a skip floor, so the entrances of the 5th houses are all on different levels. Both living room and dining room are mainly arranged to the west with an open view to the pocket park. When entering the 3rd floor master's entrance hall, the master bedroom and a small room are arranged east to west, and when you go up the stairs facing the courtyard, the kitchen, dining and living room are placed in a row to bring in the west view and light into the house. A higher floor height is formed at the location of the sofa and a skylight is placed so that you can feel the change of seasons.

별내 다가구주택은 별내신도시 작은 공원 앞 경사지에 위치한다. 남북으로 약 1.2 미터 가량의 대지의 레벨차이를 활용해서 스킵 플로어의 구성으로 서쪽의 공원 뷰를 다섯 세대 모두 거실에서 즐길 수 있다. 공원 앞 건물로 들어가는 길은 산책로가 된다. 진입로는 선큰정원 위에 떠 있다. 진입로를 따라 들어가 현관 앞에 서면 하늘을 향한 중정이 있고, 각각의 집들이 마주한 창과 발코니가 있다. 이 작은 중정을 통해 남쪽의 빛을 끌어온다. 대지의 등고 차는 자연스럽게 스킵 플로어를 만들어 5세대의 입구들은 모두 다른 레벨에 놓이는데, 포켓공원으로 열린 뷰를 갖는 서쪽으로 주로 거실을 배치한다. 3층 주인세대의 현관으로 들어서면 안방과 작은 방을 동서로 배치하고 중정을 바라보며 계단을 오르면 주방과 거실을 연속적으로 놓아 서쪽의 뷰와 채광을 집 안쪽으로 끌어들인다. 소파의 위치에 약 1.5미터 높은 층고를 형성하며 천창을 두어 수직적인 공간 속에서 사계절의 변화를 느낄 수 있다. 옥상에서는 직접 길러 먹을 수 있는 작은 텃밭과 옥상 조경, 그리고 파고라를 배치해서 계절별로 야외활동을 할 수 있다.























Architects O-Scape Architecten
Location Byulnae-Dong, Namyangju-Si, Republic of Korea
Site area 246.1 m2
Building area 131.09m2
Gross floor area 299.22m2
Building scope B1, 3F
Building to land ratio 53.27%
Floor area ratio 121.58%
Construction period 2020. 10 - 2021. 06
Completion 2021. 06
Principal architect Sunyoung Park
Project architect Sunyoung Park
Design team Woosung Jeon, Hyunbi Park, Jooyoung Kim
Structural engineer C-on Enc.
Mechanical engineer Seungjin Emc.
Electrical engineer SJ Emc.
Construction Cheongmyung Const.
Photographer Hakhyun Lim
해당 프로젝트는 리빙즈, 디테일 04호에 게재되었습니다.
The project was published in LIVINGS, Detail 04
[BOOK] LIVINGS, Detail 리빙즈, 디테일 03호, 04호
<LIVINGS, Detail 리빙즈, 디테일 03호, 04호> 72개의 형태와 라이프스타일을 담은 주거공간, 국내외 “디테일한 주택 프로젝트”의 엮음 매월 국내외 다양한 건축물들을 소개해 온 <월간 건축문화>가 <
www.masilwide.com
'Architecture Project > Multifamily' 카테고리의 다른 글
| BANSEOK HOUSE (0) | 2022.06.21 |
|---|---|
| RESIDENCE EISENERZ (0) | 2022.06.17 |
| LIVING LANDSCAPE (0) | 2022.06.15 |
| CURTAIN CALL (0) | 2022.06.15 |
| WOHO BERLIN (0) | 2022.06.14 |
마실와이드 | 등록번호 : 서울, 아03630 | 등록일자 : 2015년 03월 11일 | 마실와이드 | 발행ㆍ편집인 : 김명규 | 청소년보호책임자 : 최지희 | 발행소 : 서울시 마포구 월드컵로8길 45-8 1층 | 발행일자 : 매일



