
The rental apartment house is located in Sargans in Switzerland, at the intersection of three wide valleys, where they create a fertile lowland between the otherwise steep peaks of the surrounding Alps. The Principality of Liechtenstein and famous ski resorts are in close proximity.
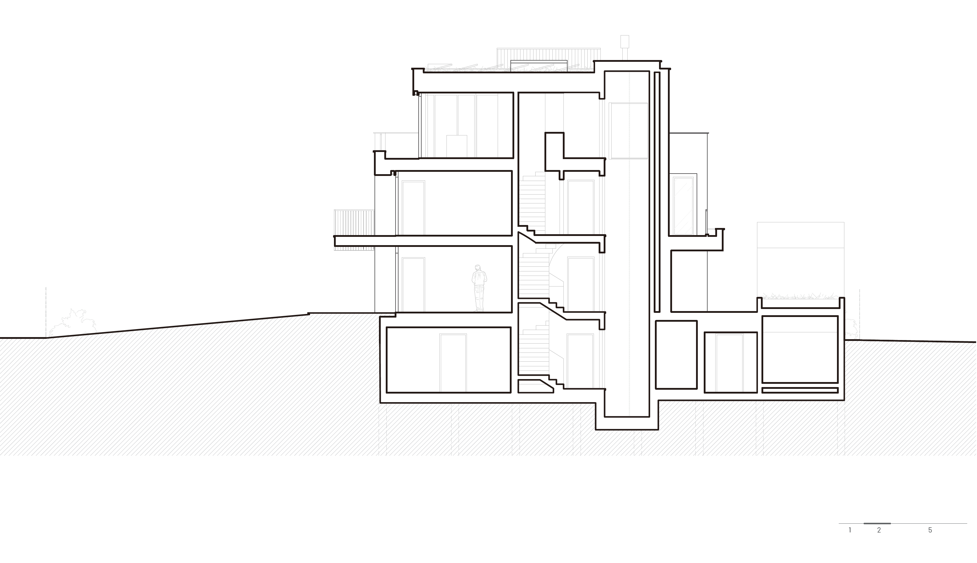
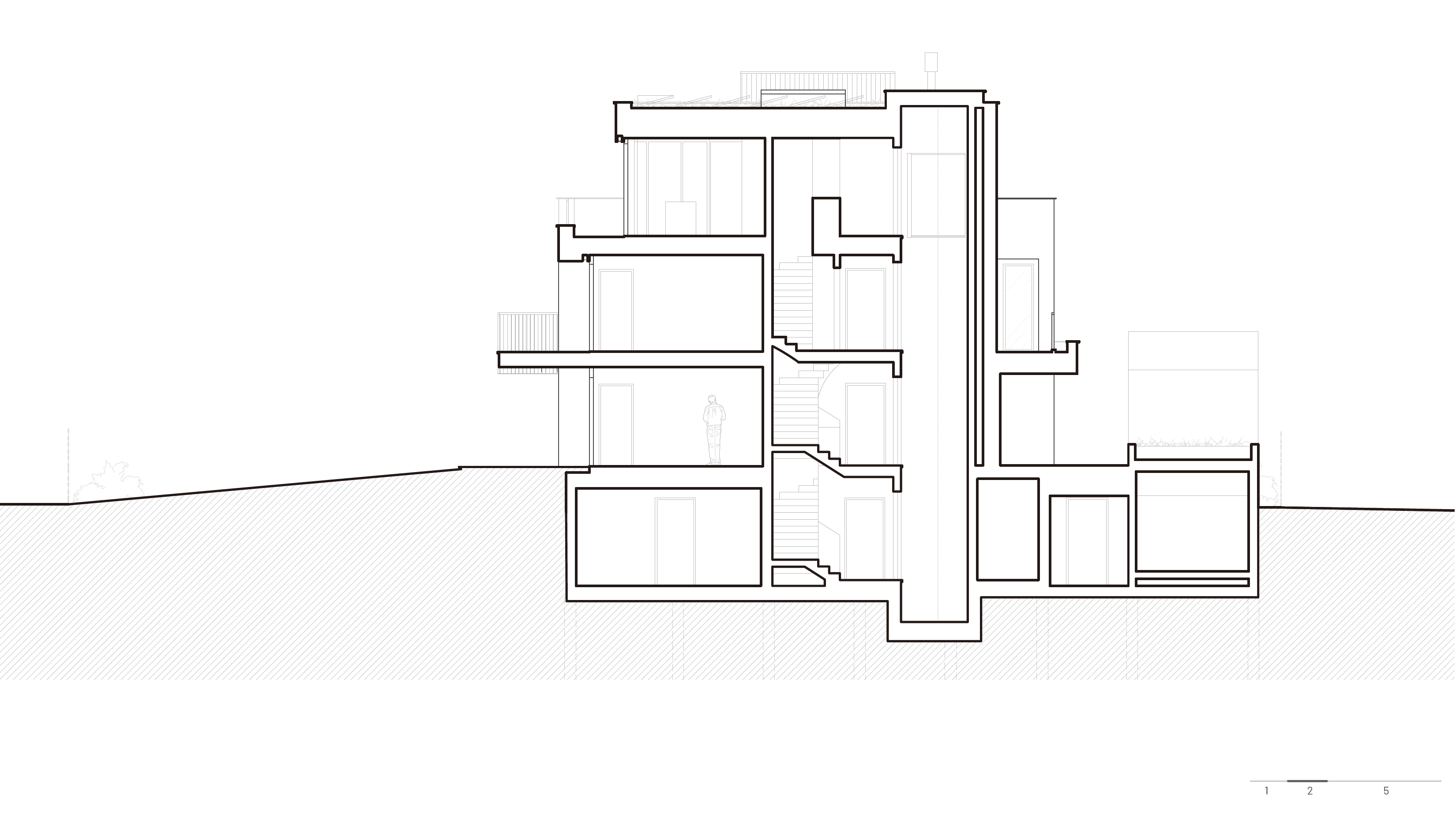
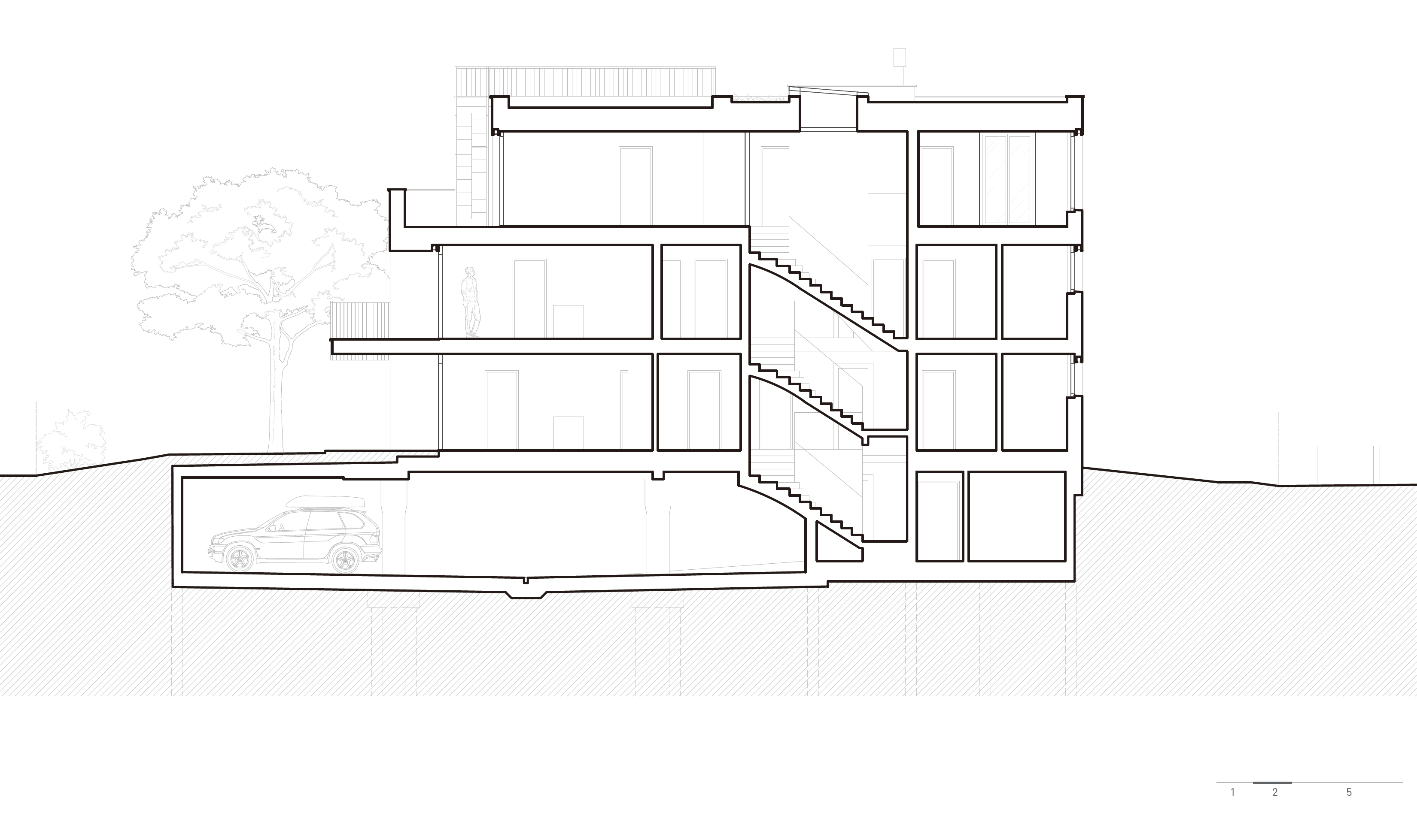
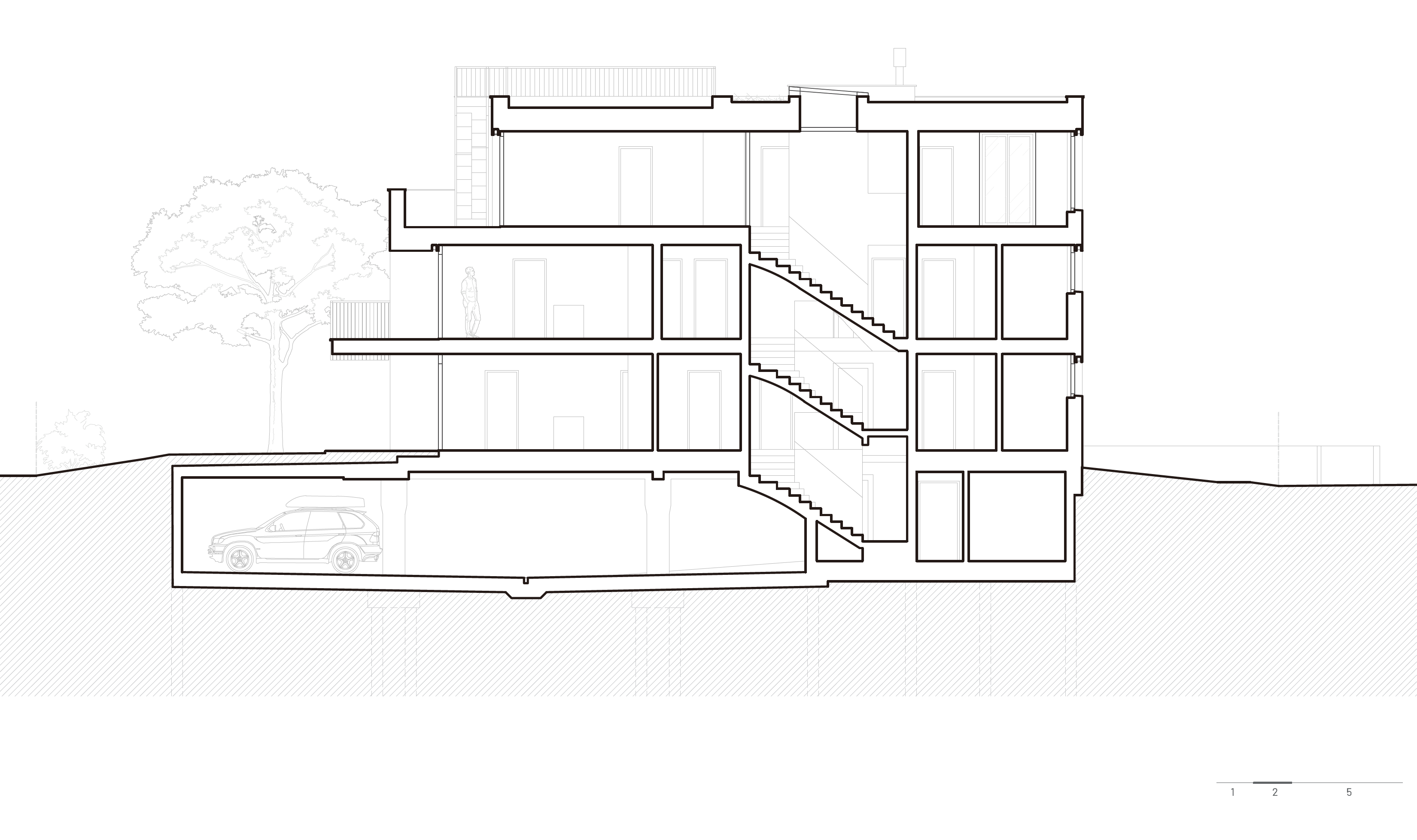
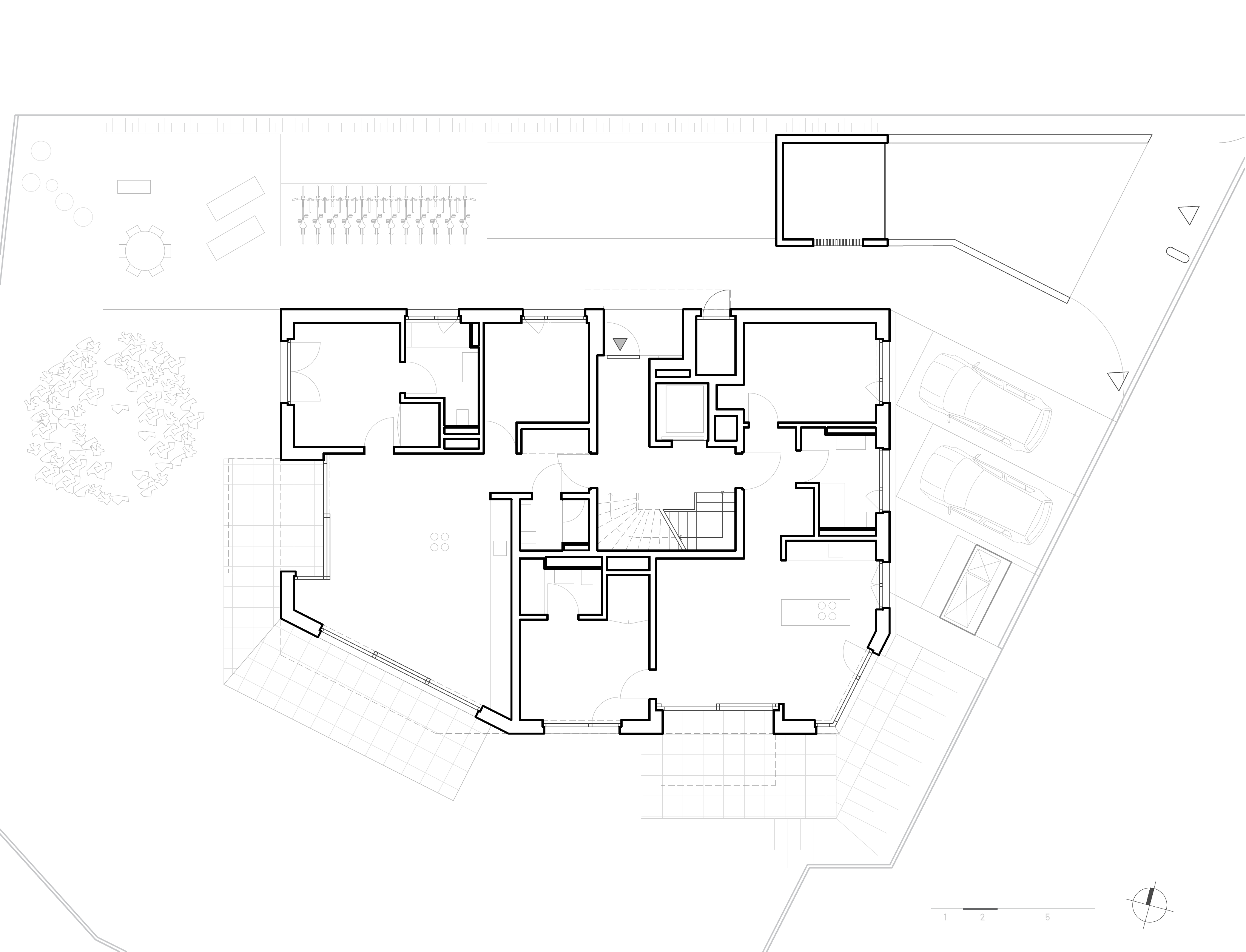
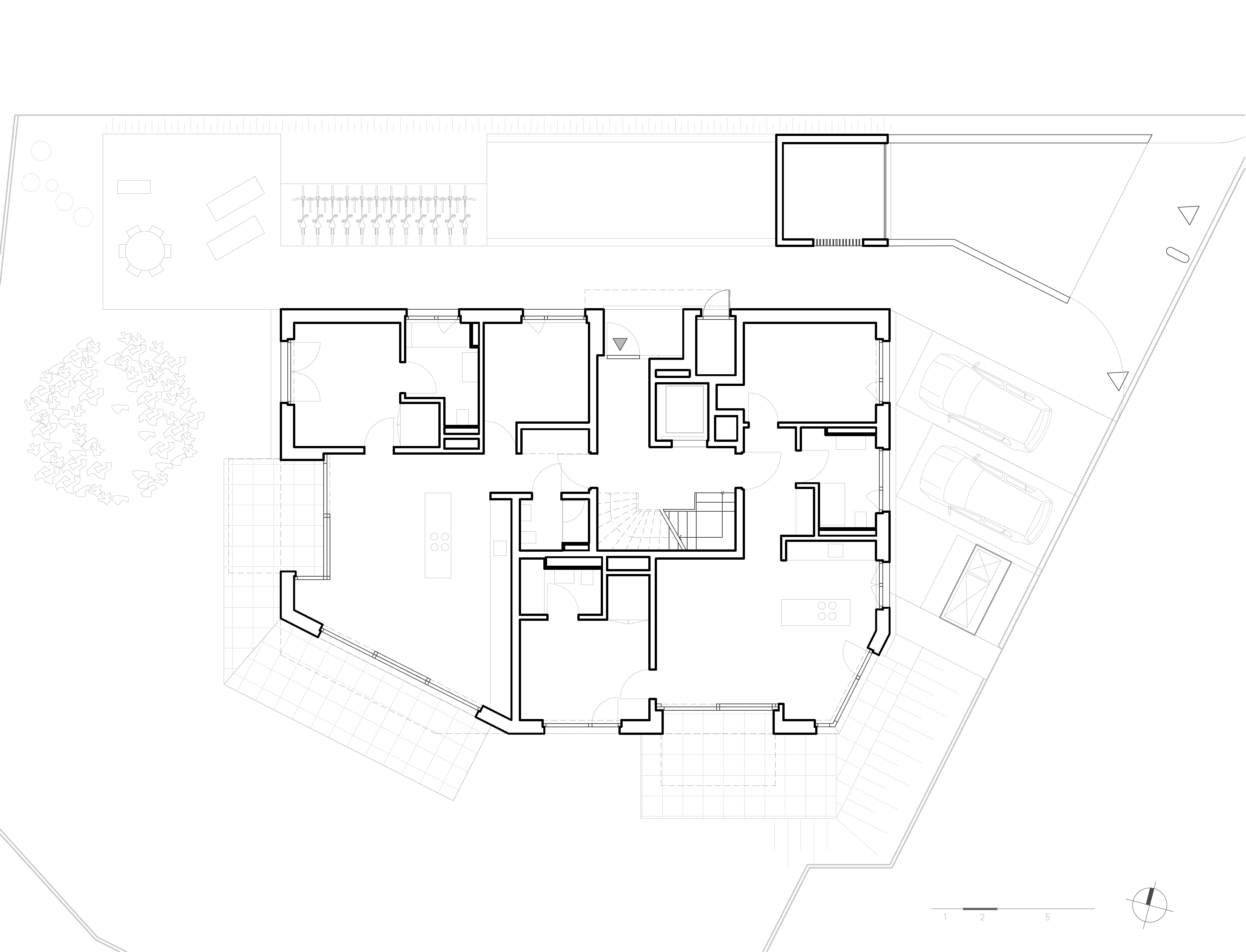
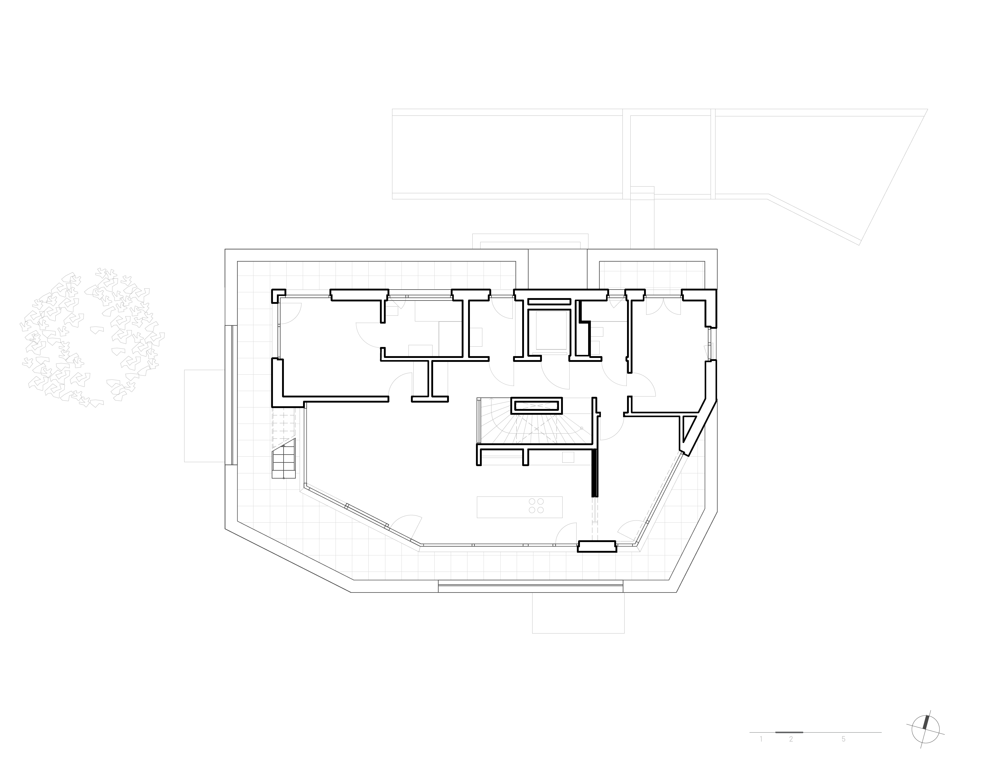
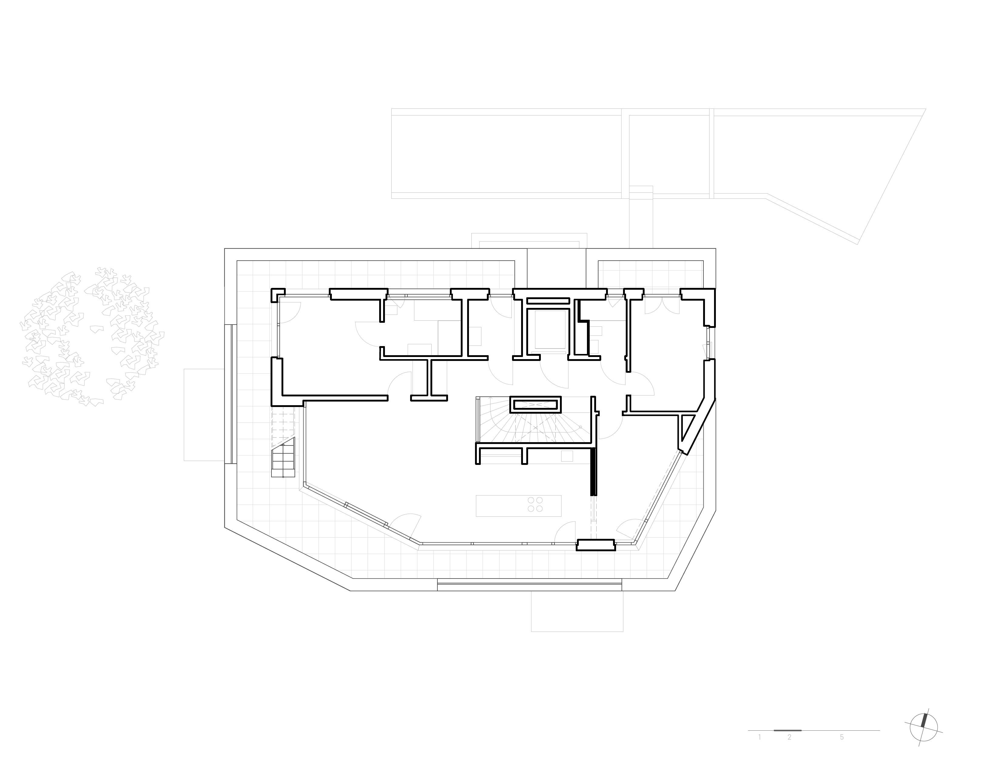
The surrounding mountains have become one of the main principles, which shaped the project and the design. Their peaks are important points at which the views from the rooms were oriented and thus forming the proportions and floor plans of the house. The pinkish Verrucano-Schiefer stone, which is found in the local mountains, has become a reference for the materialization of the facade and interior spaces. With regard to sustainability and ecology, a very compact envelope of the whole house was designed. The house is cut as a carved stone, different parts of the facades are defined by unique plaster surfaces and enjoy the play of light and shadow. The colour of the house changes during the day from light grey at dawn to pink at sunset. The other concept of the house was its housing specifics - rental apartment housing. The materials used in the project had to be of high quality, durable and neutral in order to meet the expectations of a different spectrum of potential tenants.
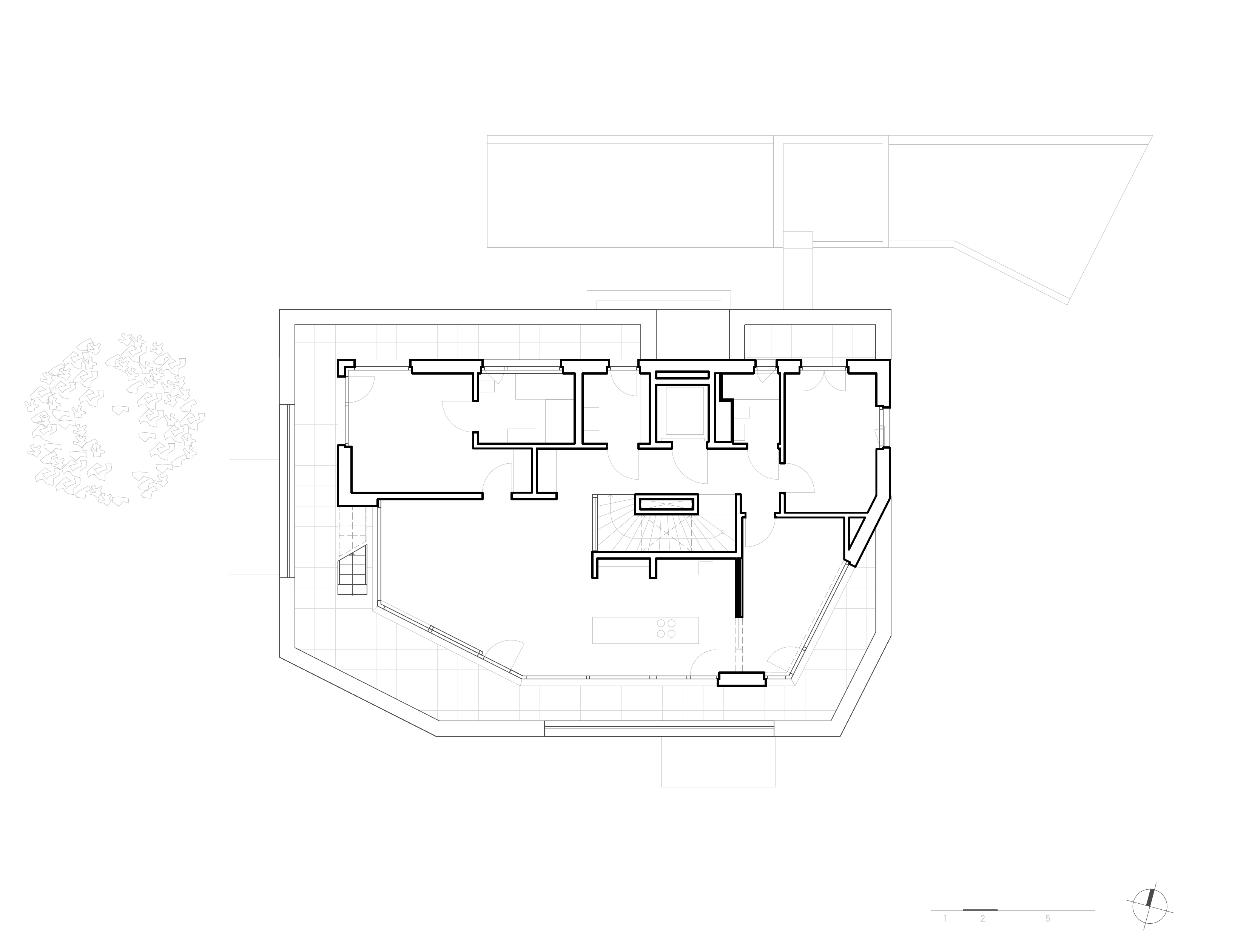
The spatial organization had to be clear and the use of rooms variable, so no blind corridors without windows and a direct connection to the living areas, so when entering the apartment, a view of the surrounding landscape is always guaranteed. The apartments are not divided into a living and sleeping area, the rooms are accessible from the living room and this trick makes the area of the apartment more efficient. The staircase, terraces and outside common areas are places, where the tenants meet, greet and interact with each other. The house is constructed on pillars going into the bearing layer of the subsoil to a depth of 16-20m. The lower structure is designed using waterproof concrete. Vertical load-bearing structures and ceiling slabs are from monolithic reinforced concrete.

아이제네르츠 공동주택은 스위스의 자르간스, 알프스의 가파른 봉우리 사이에 비옥한 저지대를 형성하는 자리로, 세 개의 넓은 계곡이 교차하는 지점에 위치한다. 주변의 아름다운 산의 풍경은 집을 설계하는 데 중요한 요소 중 하나였다. 산봉우리는 핵심이 되어 방의 전망이 이를 향하게 하며, 이 집의 비율과 평면을 형성한다. 현지 산에서 발견되는 분홍빛이 도는 베루카노 점판암 석재 (Verrucano-Schiefer)는 파사드와 내부 공간의 구체화를 위한 참고 자료가 되었다. 지속 가능성 및 생태계를 고려하여 집 전체는 최대한 조밀하게 설계됐다. 집은 마치 조각된 돌처럼 절단되었으며, 파사드의 다양한 부분은 독특한 석고 표면으로 정의되며 빛과 그림자의 놀이를 즐긴다. 하루 동안 집의 색감은 새벽의 밝은 회색에서 일몰의 분홍색으로 변한다. 아이제네르츠에 사용된 자재는 다양한 임차인들의 기대치를 충족시키기 위해 고품질에 내구성 좋은 것들이다. 내부 공간은 세대마다 공간 구성이 명확하며, 방의 사용은 가변적이다. 창문이 없는 사각지대의 복도 없이, 거실과 직접 연결되어 있어 아파트에 들어갈 때 주변 풍경의 전망이 항상 보장된다. 아파트는 거실과 수면 공간으로 구분되지 않고, 방을 거실에서 접근할 수 있으며 이 방법은 아파트 면적을 보다 효율적으로 만든다. 계단, 테라스 및 외부 공용 공간은 거주자가 서로 만나고 인사하고 상호 작용하는 장소가 된다. 이 외에도, 구조적인 측면에서 16-20m 깊이의 심토로 들어간 기초를 가지며, 하부 구조는 방수 콘크리트가 사용됐다. 수직 하중 지지 구조 및 천장 슬래브는 모놀리식 철근 콘크리트로 만들어졌다.
















Architects Apropos Architects
Location Sargans, Switzerland
Site area 902㎡
Building area 428㎡
Gross floor area 1,022㎡
Building scope B1, 3F
Construction period 2018 - 2020
Completion 2020
Project architect Michal Gabaš, Eva Gabaš Rosenová, Tomáš Beránek
Structural engineer Statika3
Photographer Alex Shoots Buildings
해당 프로젝트는 리빙즈, 디테일 04호에 게재되었습니다.
The project was published in LIVINGS, Detail 04
[BOOK] LIVINGS, Detail 리빙즈, 디테일 03호, 04호
<LIVINGS, Detail 리빙즈, 디테일 03호, 04호> 72개의 형태와 라이프스타일을 담은 주거공간, 국내외 “디테일한 주택 프로젝트”의 엮음 매월 국내외 다양한 건축물들을 소개해 온 <월간 건축문화>가 <
www.masilwide.com
'Architecture Project > Multifamily' 카테고리의 다른 글
| VARANDA (0) | 2022.06.22 |
|---|---|
| BANSEOK HOUSE (0) | 2022.06.21 |
| BYULNAE HOUSING (0) | 2022.06.16 |
| LIVING LANDSCAPE (0) | 2022.06.15 |
| CURTAIN CALL (0) | 2022.06.15 |
마실와이드 | 등록번호 : 서울, 아03630 | 등록일자 : 2015년 03월 11일 | 마실와이드 | 발행ㆍ편집인 : 김명규 | 청소년보호책임자 : 최지희 | 발행소 : 서울시 마포구 월드컵로8길 45-8 1층 | 발행일자 : 매일



