
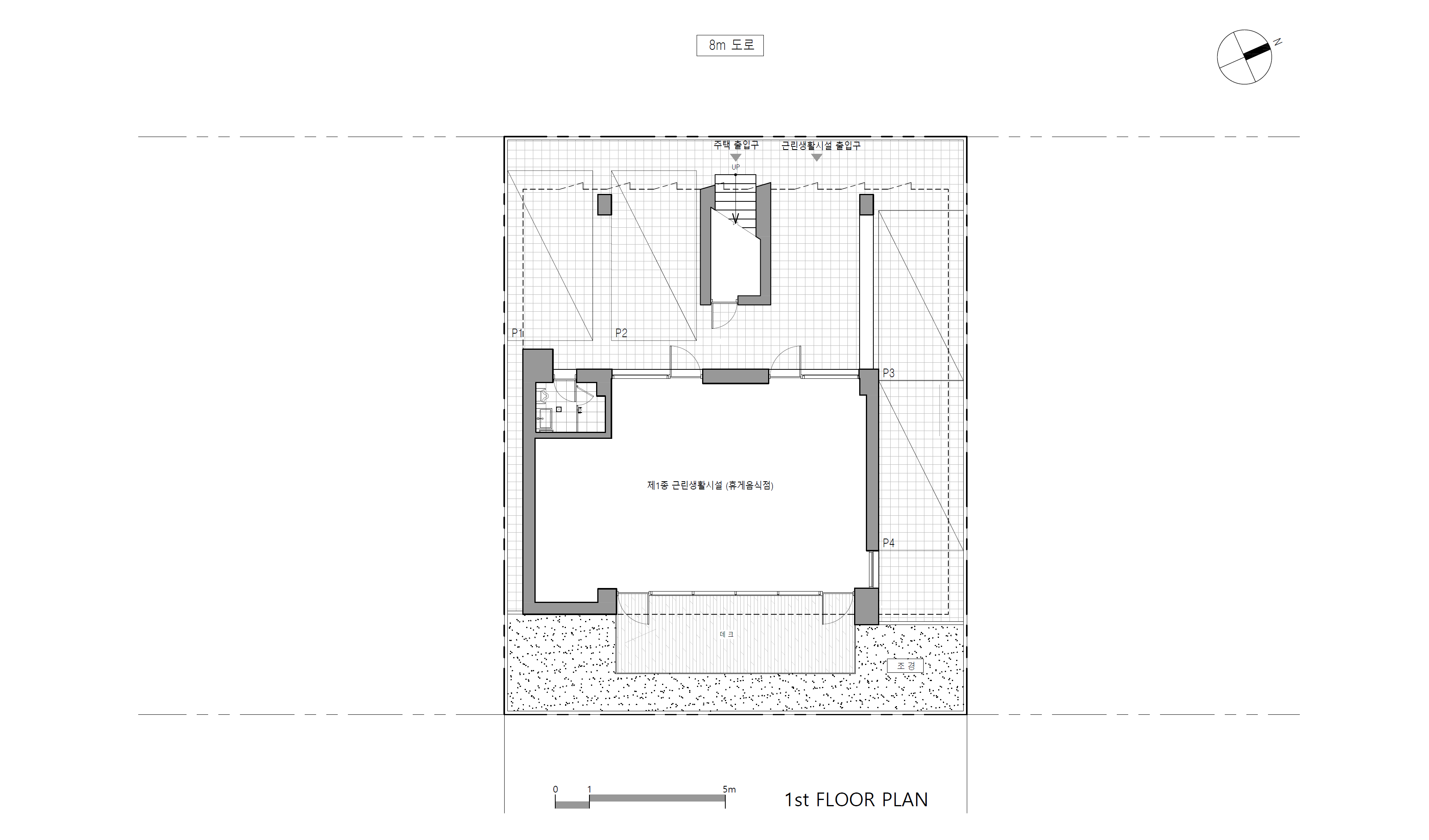
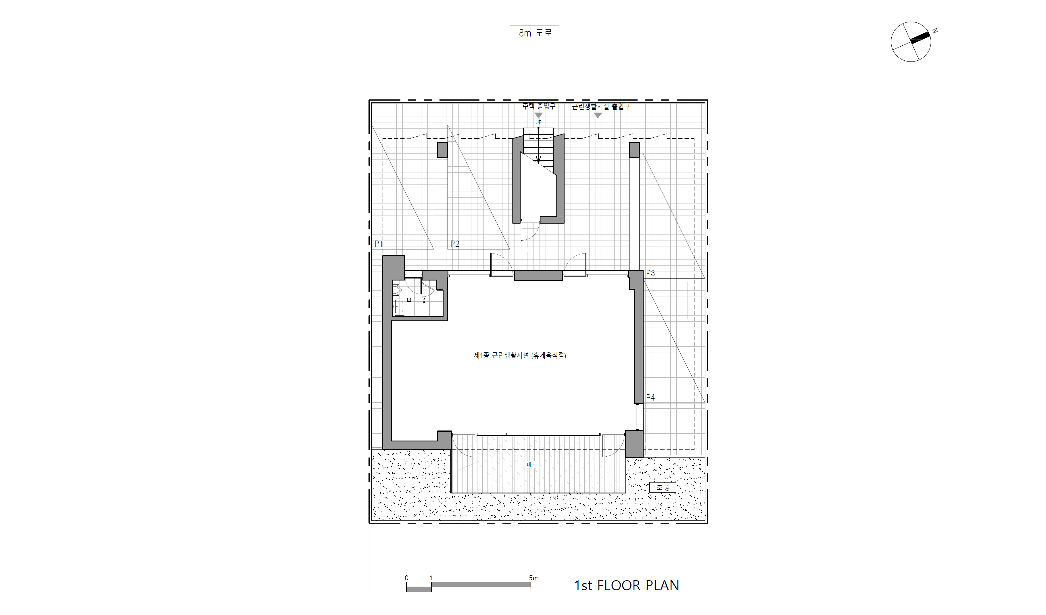
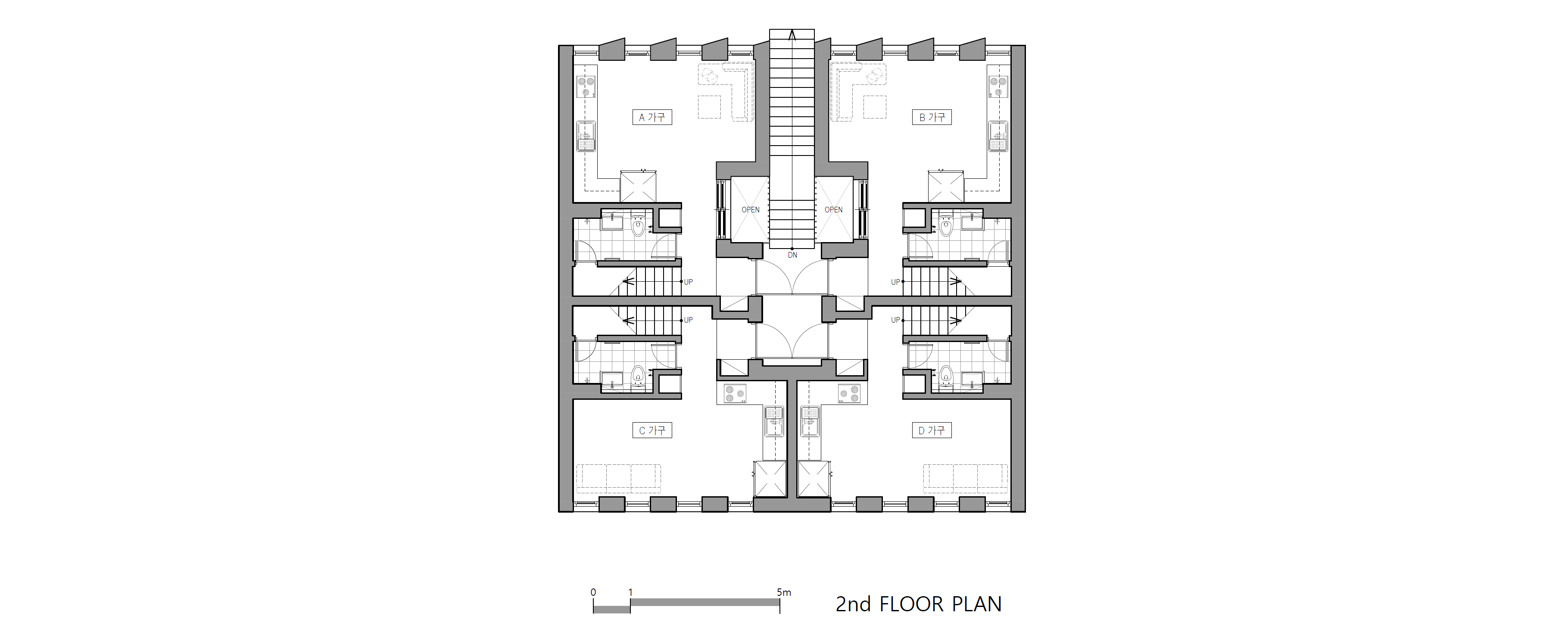
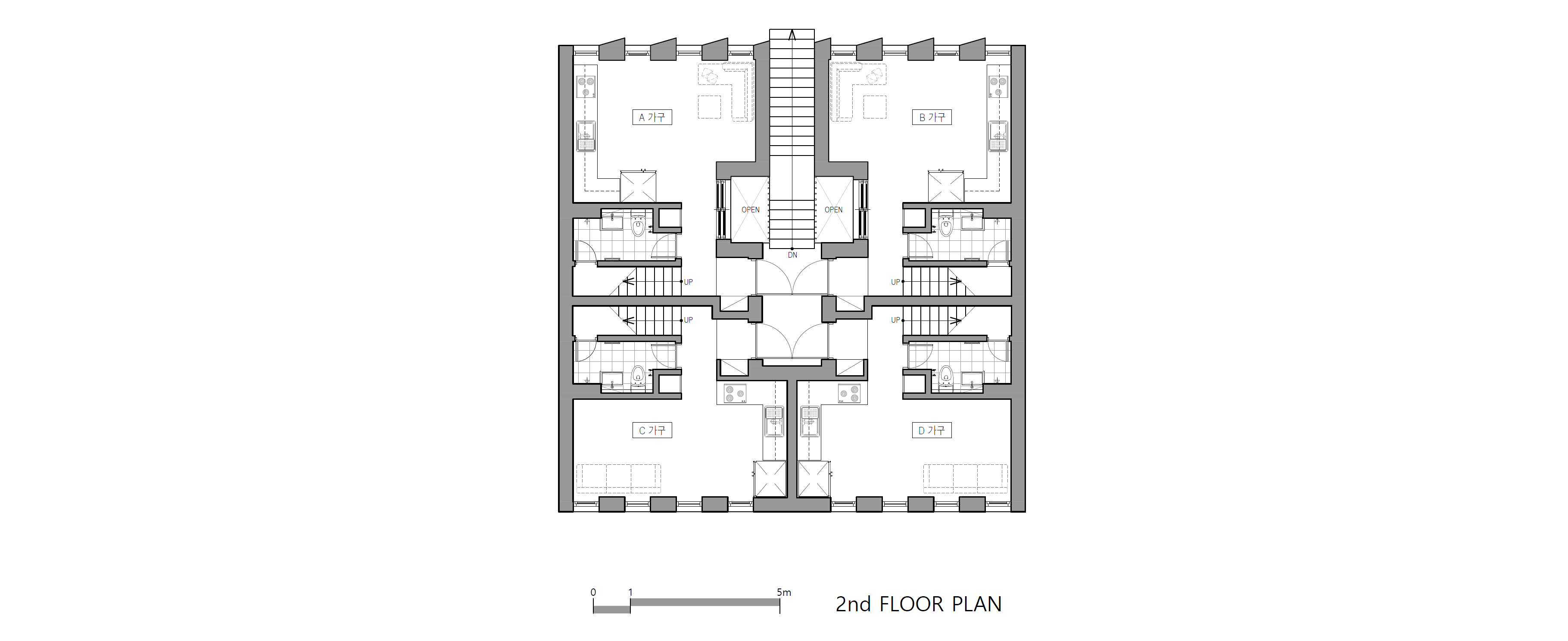
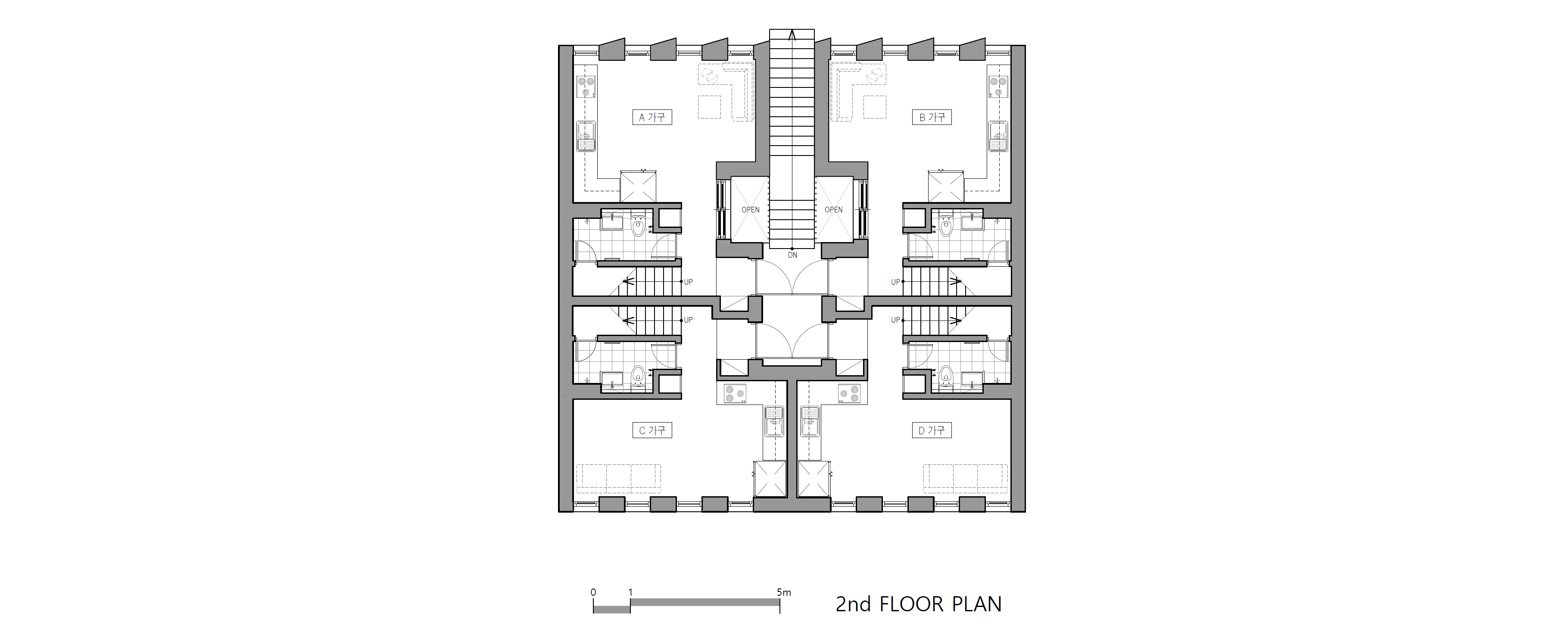
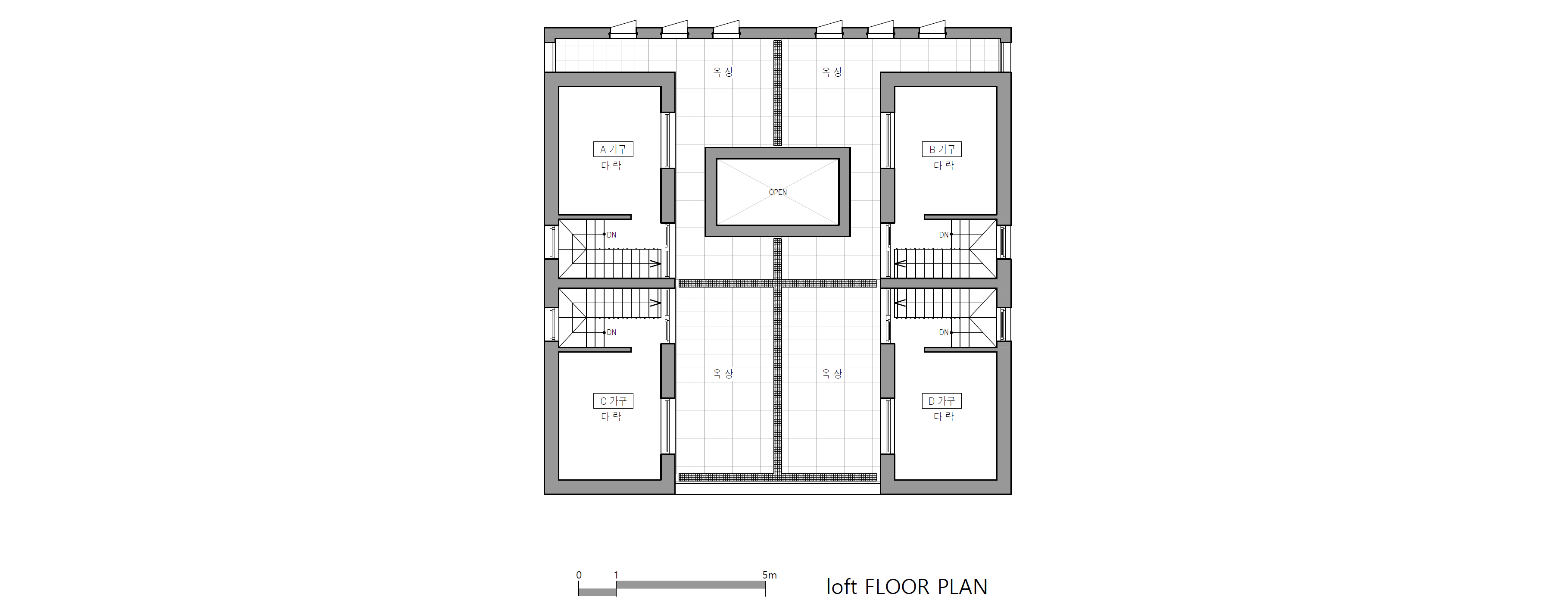
Like quadruplets, all four double-story households are accessed from the second floor, making the exclusion of the elevator a reasonable option. Moreover, as all households can have an attic and rooftop garden, the hierarchy of landlords and tenants was eliminated, and the physical conditions of an equal living environment were satisfied. It is common for people living in commercial houses to have a large window, but draw the curtains and step back, being reluctant to approach it. If there is the deep and low light shining from the west, that light is just a light one wants to avoid. The biggest goal of the curtain-like facade was to illuminate each person’s life through the narrow and long windows, block the glare from the west side with a curved side like a curtain, and allow the residents to take a step closer to the windows. As the site is lower than the six-lane main road, the shop on the first floor is not exposed. In addition, since the front was used for the entrance and parking lot of the house, we thought it would be better to strongly appeal the existence and position of the shop as the entire house, rather than the shop itself. We hoped that the facade, which simply repeats like a curtain, would create a strong impression that can be perceived from the speed of a car.

복층으로 구성된 네쌍둥이 같은 4가구는 4개의 집 모두 2층에서 출입하게 되어 엘리베이터 배제가 합리적 선택지가 되었고 모두 다락과 옥상정원을 가질 수 있어 임대인과 임차인의 위계를 지우고 동등한 거주 환경의 물리적 조건을 만족하게 했다.
큰 창을 내고선 그 앞에 다가서기 저어한 마음에 커튼을 드리우고 뒤로 한 켠 물러서는 것이 상가주택에서 사는 사람들의 일반적 모습이다. 거기에 깊숙하고 낮게 드리우는 서향 빛을 맞는 다면 그 빛은 다만 피하고 싶은 조명이다. 좁고 긴 창으로 한사람, 한사람 그 생활이 조명되고 서향의 눈부심을 커튼처럼 굽어진 면으로 막아서고 그 창 앞으로 한발 더 나아가도록 하는 것이 커튼 같은 입면 구성의 가장 큰 목표였다.
왕복 6차선의 메인도로 보다 낮은 대지의 특성상 1층 상가는 드러나지 않는다. 거기에 더해 주택의 출입구와 주차장을 전면에 내준 상황이라 상가의 존재, 입지는 상가 자체가 아닌 집 전체로 강하게 어필하는 것이 더 나은 방법이라 생각되었다. 자동차의 속도에서 인지되는 강한 인상을 단순하게 반복되는 커튼 같은 입면이 만들어주기를 기대했다.


















Architects TODOT architects
Location Goyang-si, Gyeonggi-do, Republic of Korea
Site area 230.7㎡
Building area 138.02㎡
Gross floor area 341.92㎡
Building to land ratio 59.83%
Floor area ratio 148.21%
Building scope 3F
Principal architect Byeonggyu Cho, Seungmin Mo
Construction MARU DESIGN CONSTRUCTION
Photographer Jinbo Choi
해당 프로젝트는 리빙즈, 디테일 04호에 게재되었습니다.
The project was published in LIVINGS, Detail 04
[BOOK] LIVINGS, Detail 리빙즈, 디테일 03호, 04호
<LIVINGS, Detail 리빙즈, 디테일 03호, 04호> 72개의 형태와 라이프스타일을 담은 주거공간, 국내외 “디테일한 주택 프로젝트”의 엮음 매월 국내외 다양한 건축물들을 소개해 온 <월간 건축문화>가 <
www.masilwide.com
'Architecture Project > Multifamily' 카테고리의 다른 글
| BYULNAE HOUSING (0) | 2022.06.16 |
|---|---|
| LIVING LANDSCAPE (0) | 2022.06.15 |
| WOHO BERLIN (0) | 2022.06.14 |
| ROTTMANNSBODEN DUPLEX (0) | 2022.06.14 |
| JINGWAN-DONG HOUSE (0) | 2022.06.10 |
마실와이드 | 등록번호 : 서울, 아03630 | 등록일자 : 2015년 03월 11일 | 마실와이드 | 발행ㆍ편집인 : 김명규 | 청소년보호책임자 : 최지희 | 발행소 : 서울시 마포구 월드컵로8길 45-8 1층 | 발행일자 : 매일



