
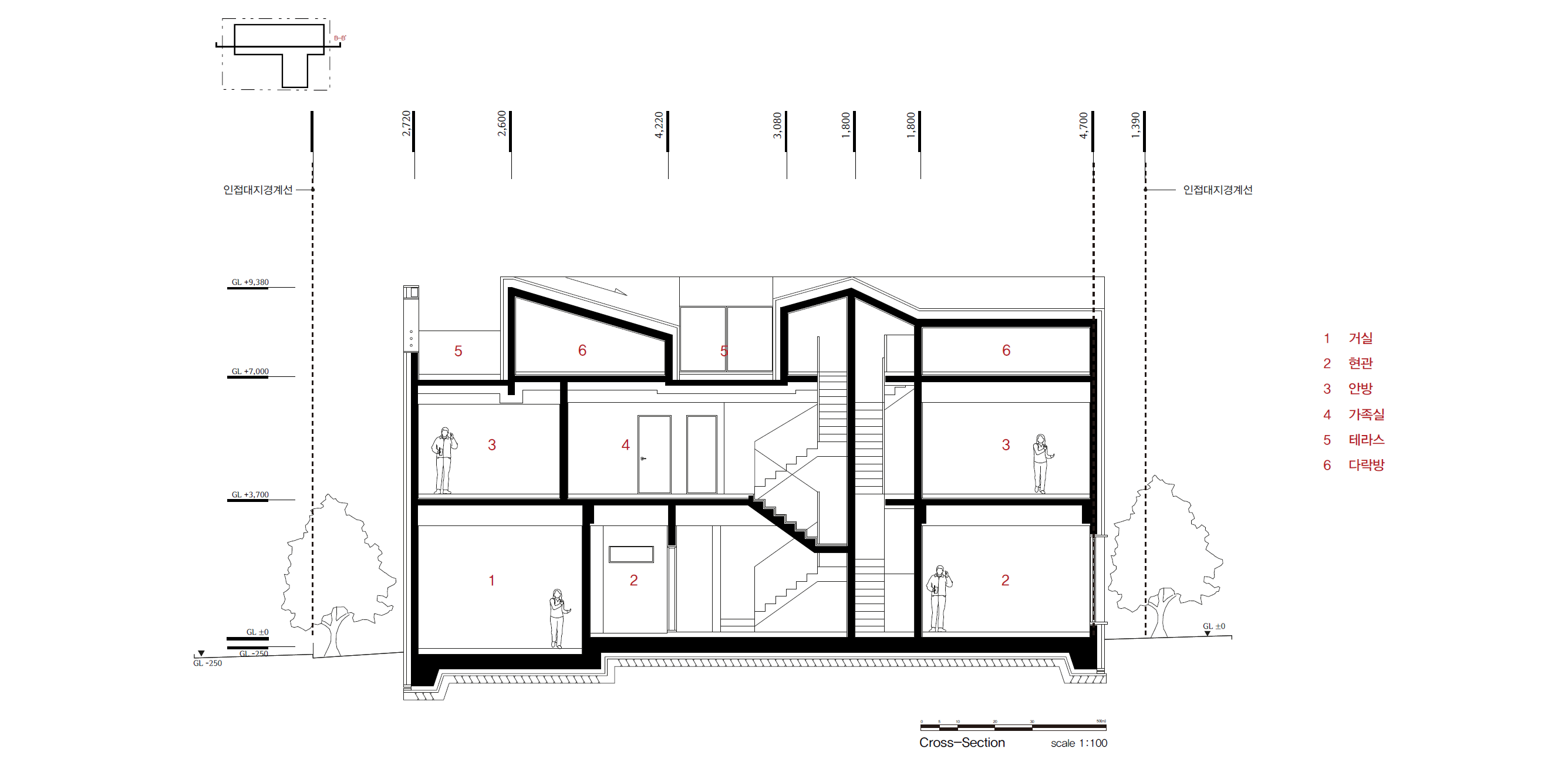
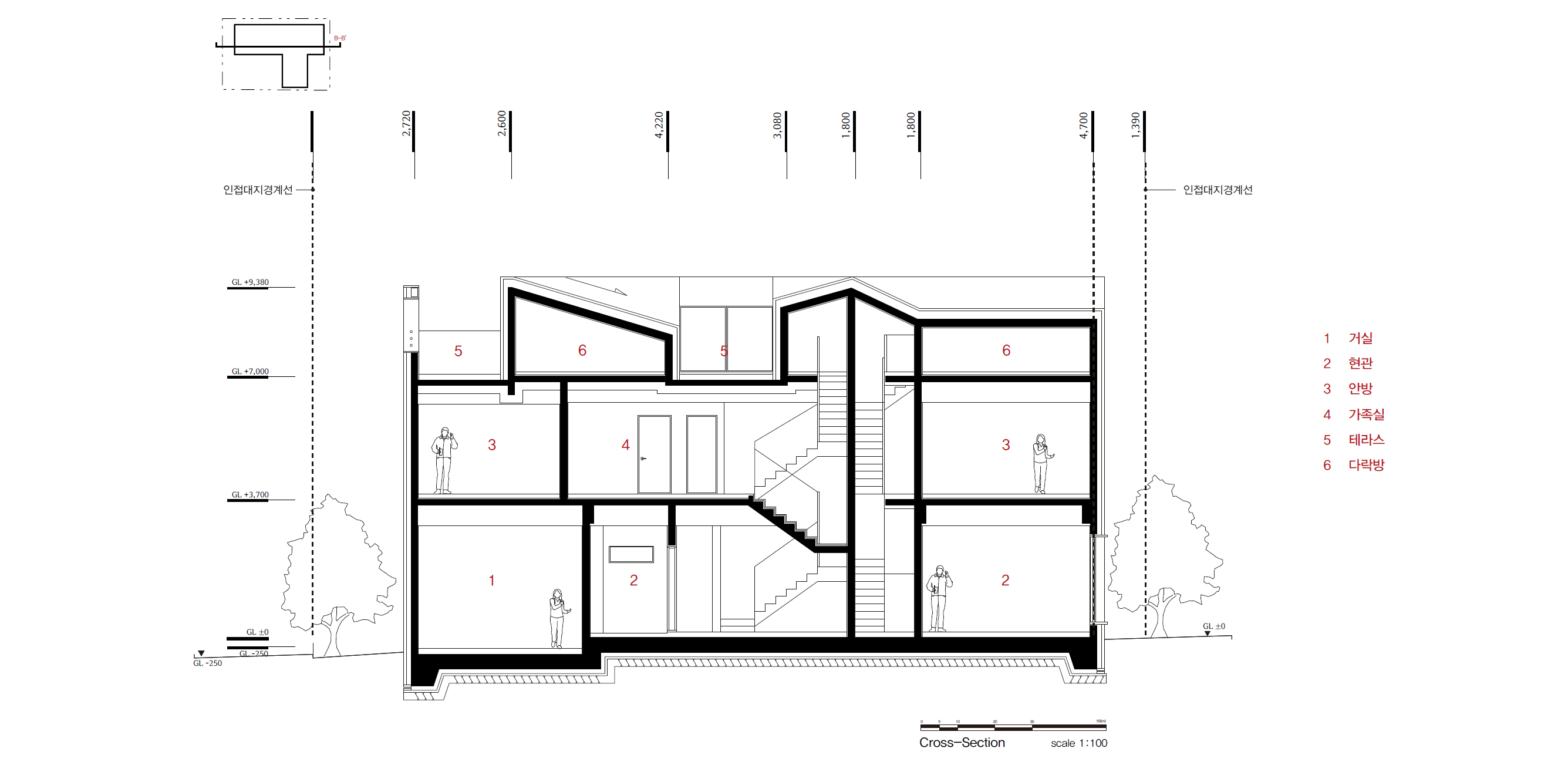
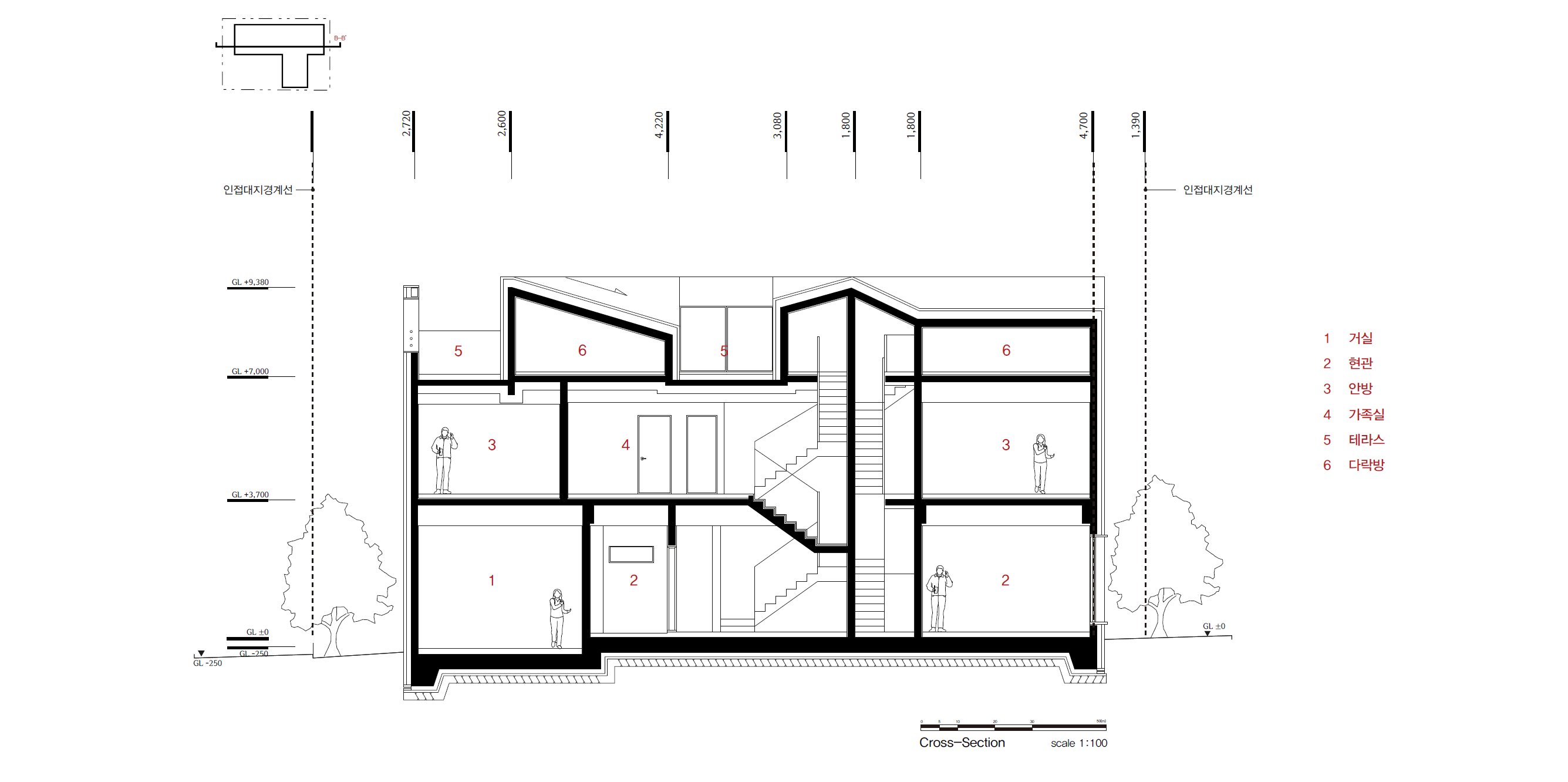
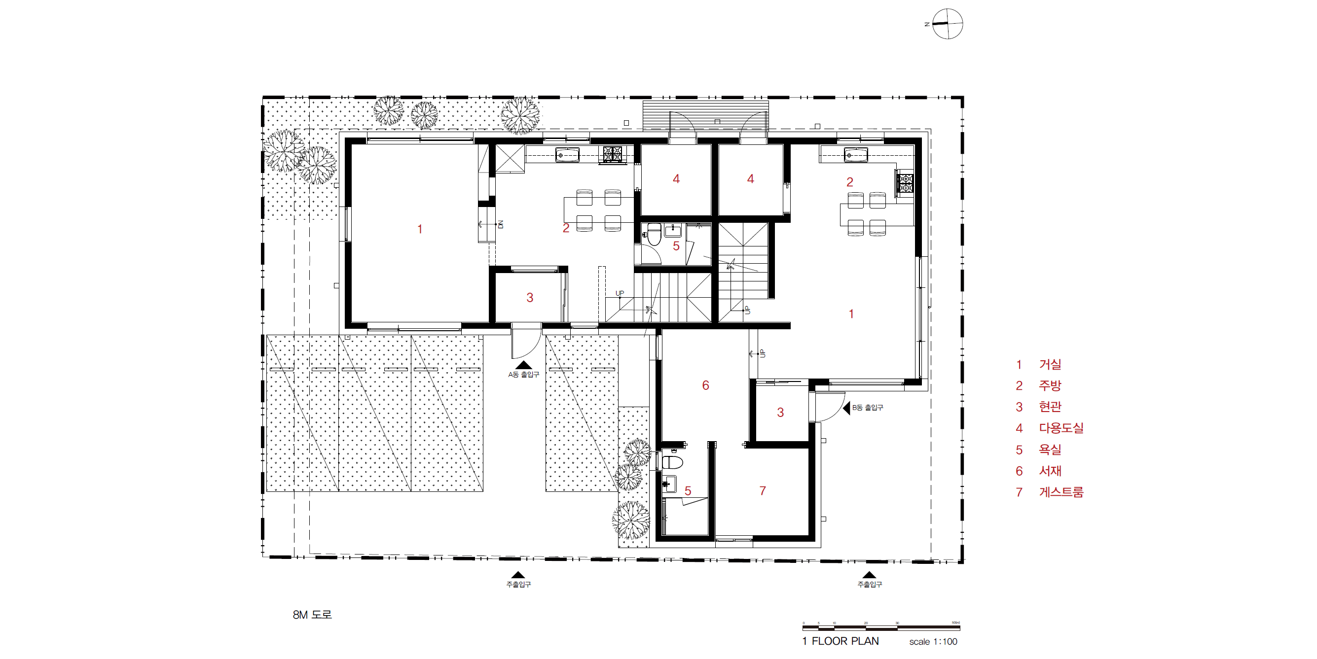
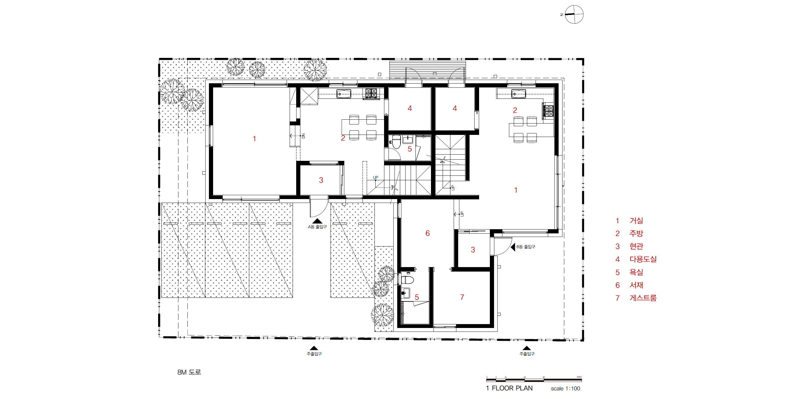
The Jingwan-dong house that resembles the foot of the mountain becomes an extension of the flow of mountain, and the two separate households are connected to each other and lead to one house. Two households live, but when viewed from the outside, it can be constructed as a whole by making it feel as an integrated entity. The entrance(porch) for each households and all rooms for each are completely divided. In the harmony created by the blue sky, nature, and static architecture, a space for meditation and contemplation was created. In the flow of nature, architecture and scenery, people and space, and affection naturally connects and continues between people and people.

은평구 산자락 아래 산을 닮은 진관동 주택은 두 개의 분리된 세대가 연접하여 한 집처럼 보이는 듀플렉스하우스다. 외부에서 바라볼 때는 통합된 개체로 한 세대가 사는 단독주택처럼 느껴지지만, 각각의 세대를 위한 현관과 모든 공간이 분리되어 있다. 진관동 주택은 푸른 하늘과 자연, 그리고 정적인 건축이 만들어낸 조화 속에서 자연을 관조하며 사색에 잠길 수 있는 공간이다. 자연의 흐름 속에서 건축과 풍경, 사람과 공간, 사람과 사람 사이에 자연스레 연이 맺어지며 정이 이어진다.














Architects The Nine Architects
Location Jingwan-dong, Eunpyung-gu, Seoul, Republic of Korea
Site area 330㎡
Building area 146.82㎡
Gross floor area 239.78㎡
Building scope 2F
Building to land ratio 44.49%
Floor area ratio 72.66%
Construction period 2016. 04 - Mar. 20183. 03
Completion 2018. 11
Principal architect Jahong Ku
Project architect Jahong Ku, Wonjea Lee
Design team Seunghyeon Son
Structural engineer TAE YOUNG
Mechanical engineer TAE YOUNG
Electrical engineer TAE YOUNG
Construction DONGHOO
Photographer THE NINE STUDIO
해당 프로젝트는 리빙즈, 디테일 04호에 게재되었습니다.
The project was published in LIVINGS, Detail 04
[BOOK] LIVINGS, Detail 리빙즈, 디테일 03호, 04호
<LIVINGS, Detail 리빙즈, 디테일 03호, 04호> 72개의 형태와 라이프스타일을 담은 주거공간, 국내외 “디테일한 주택 프로젝트”의 엮음 매월 국내외 다양한 건축물들을 소개해 온 <월간 건축문화>가 <
www.masilwide.com
'Architecture Project > Multifamily' 카테고리의 다른 글
| WOHO BERLIN (0) | 2022.06.14 |
|---|---|
| ROTTMANNSBODEN DUPLEX (0) | 2022.06.14 |
| LIVING ON THE ROOF (0) | 2022.06.09 |
| SENSATION BUILDING (1) | 2022.06.09 |
| LH HAESIMDANG (0) | 2022.05.23 |
마실와이드 | 등록번호 : 서울, 아03630 | 등록일자 : 2015년 03월 11일 | 마실와이드 | 발행ㆍ편집인 : 김명규 | 청소년보호책임자 : 최지희 | 발행소 : 서울시 마포구 월드컵로8길 45-8 1층 | 발행일자 : 매일



