
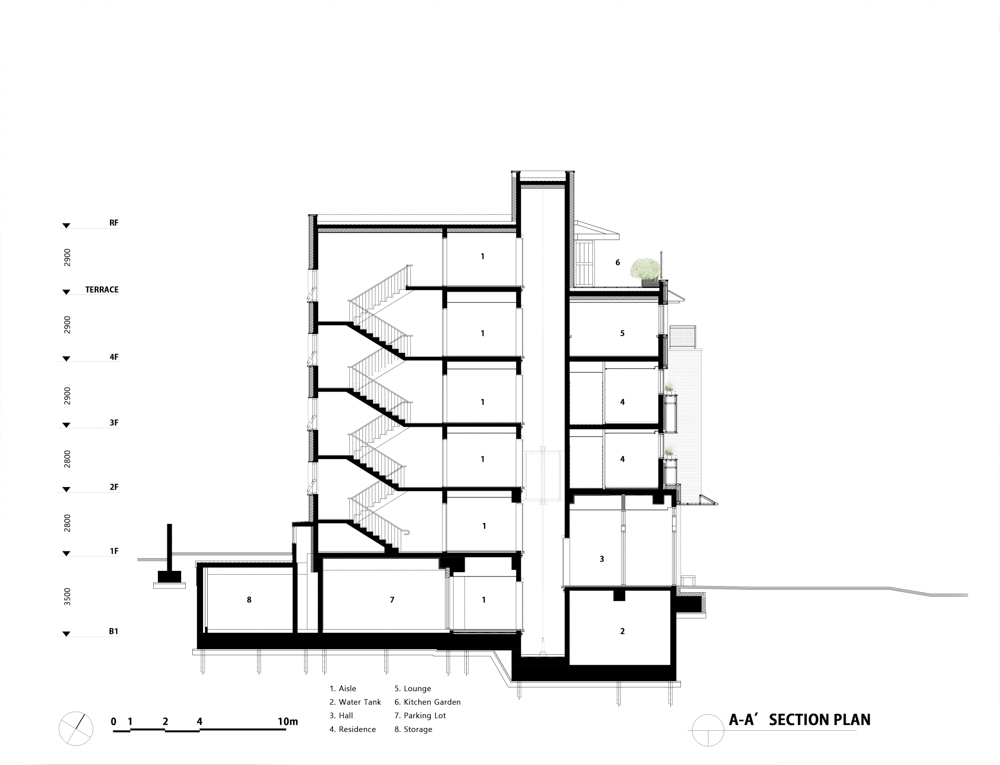
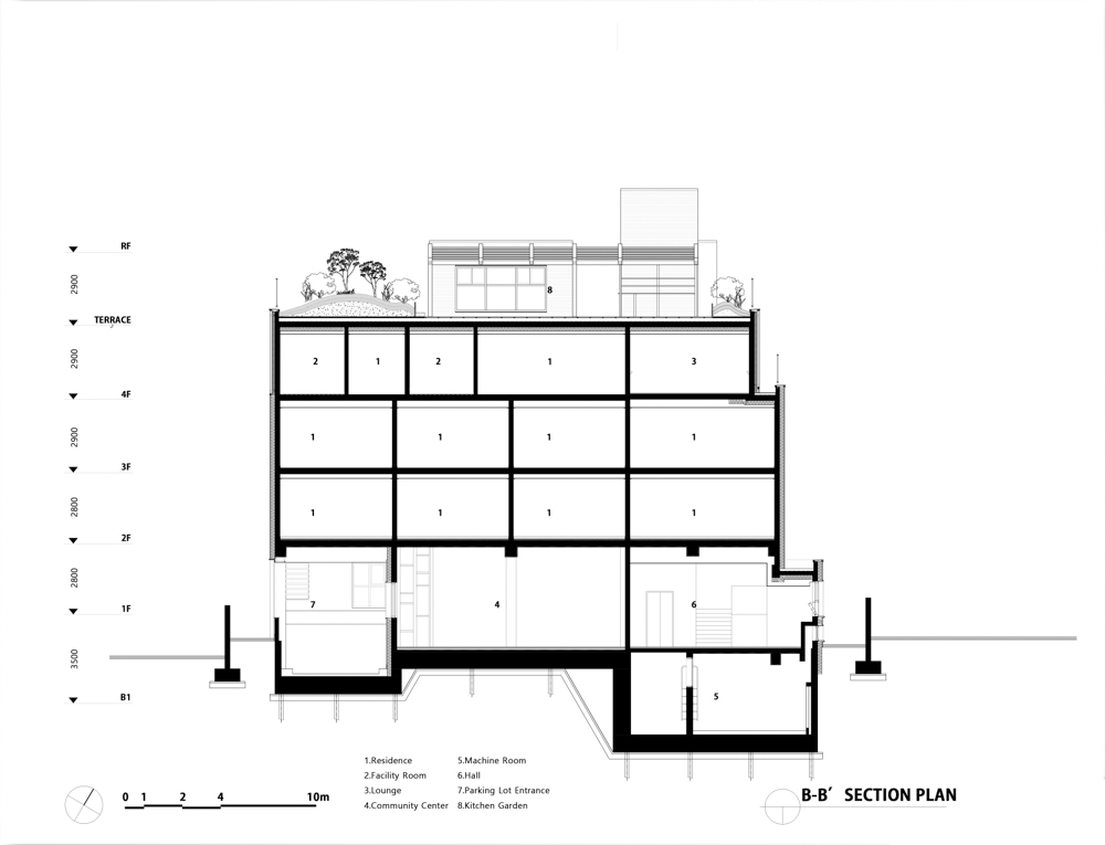
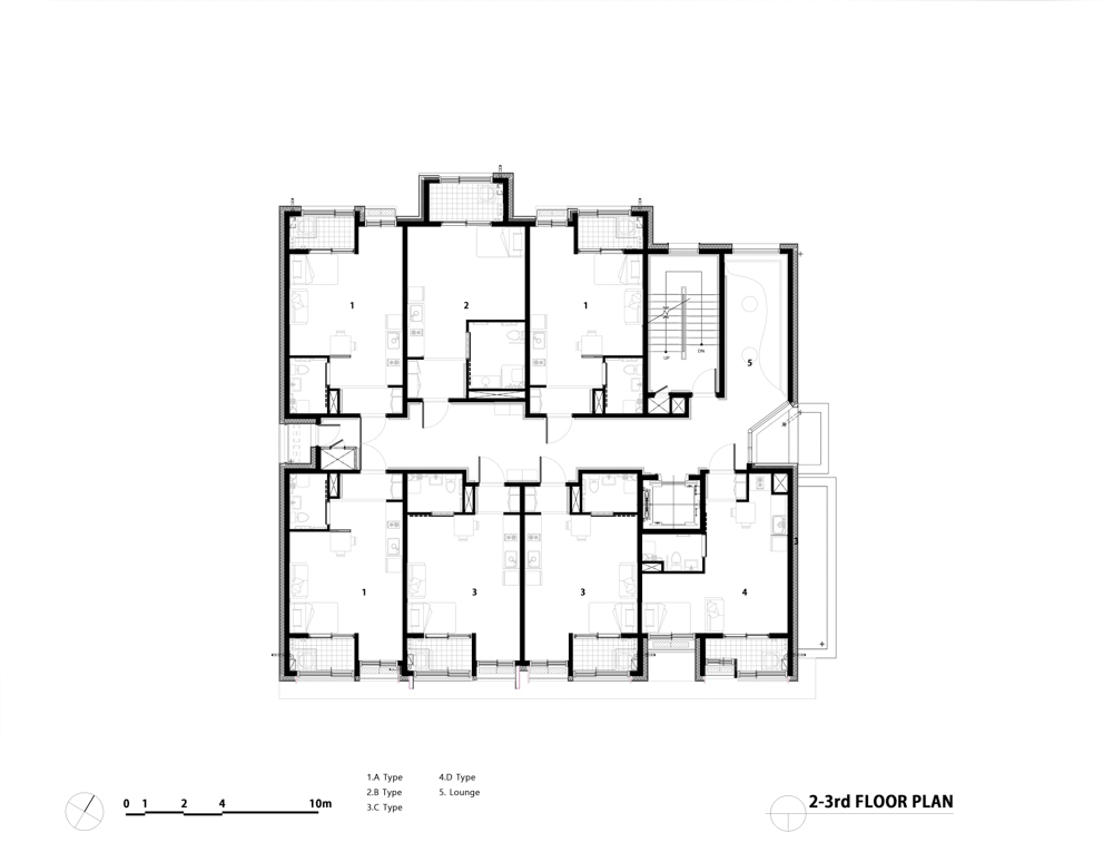
Urban public rental housing for the elderly
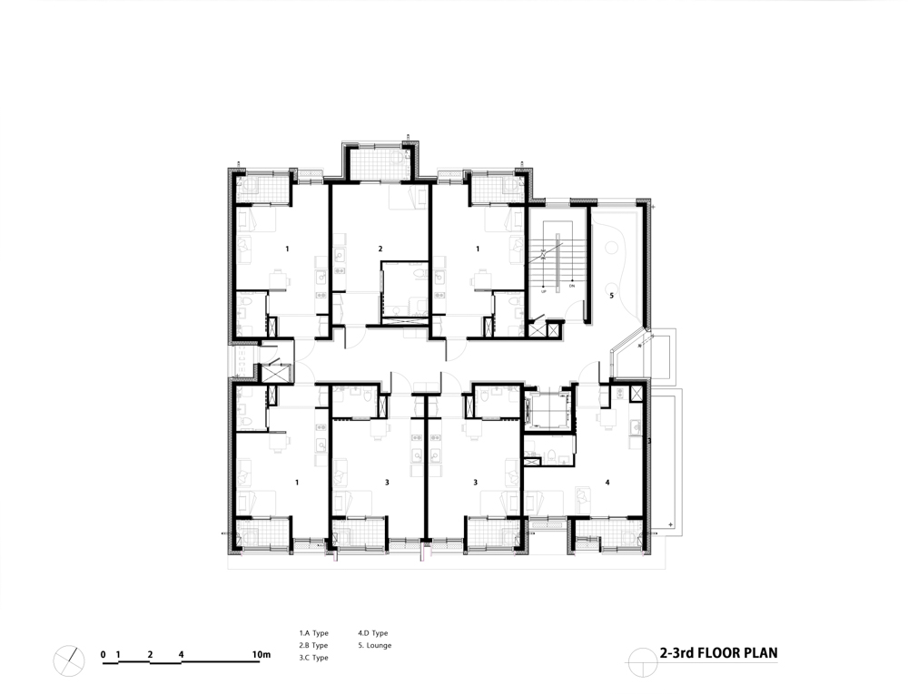
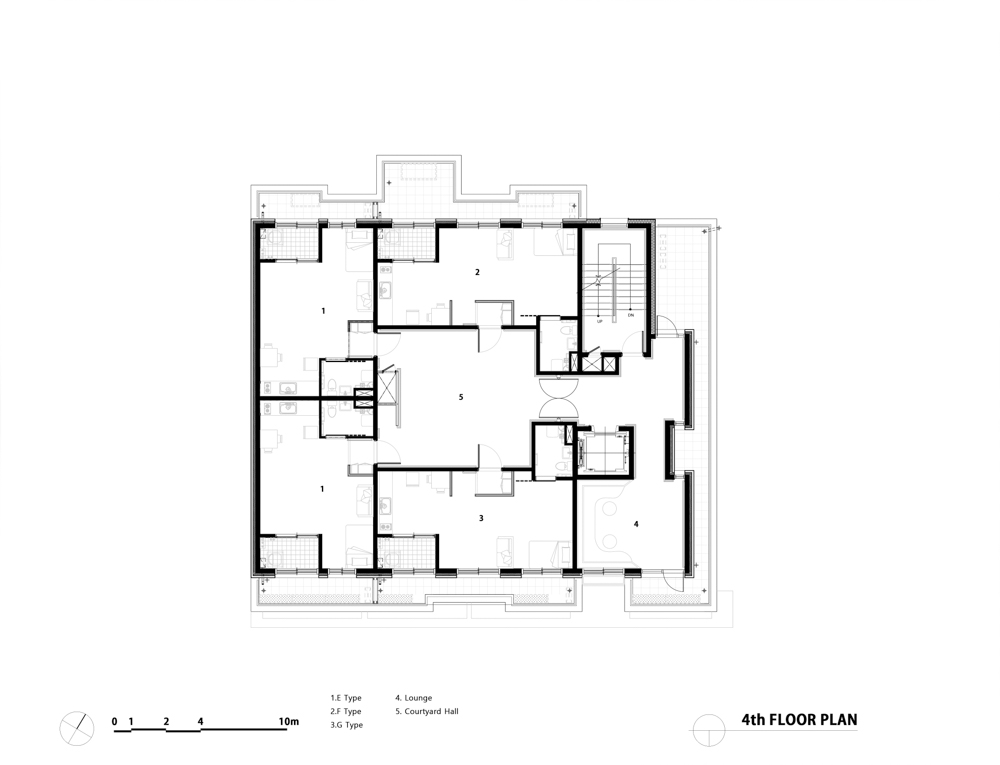
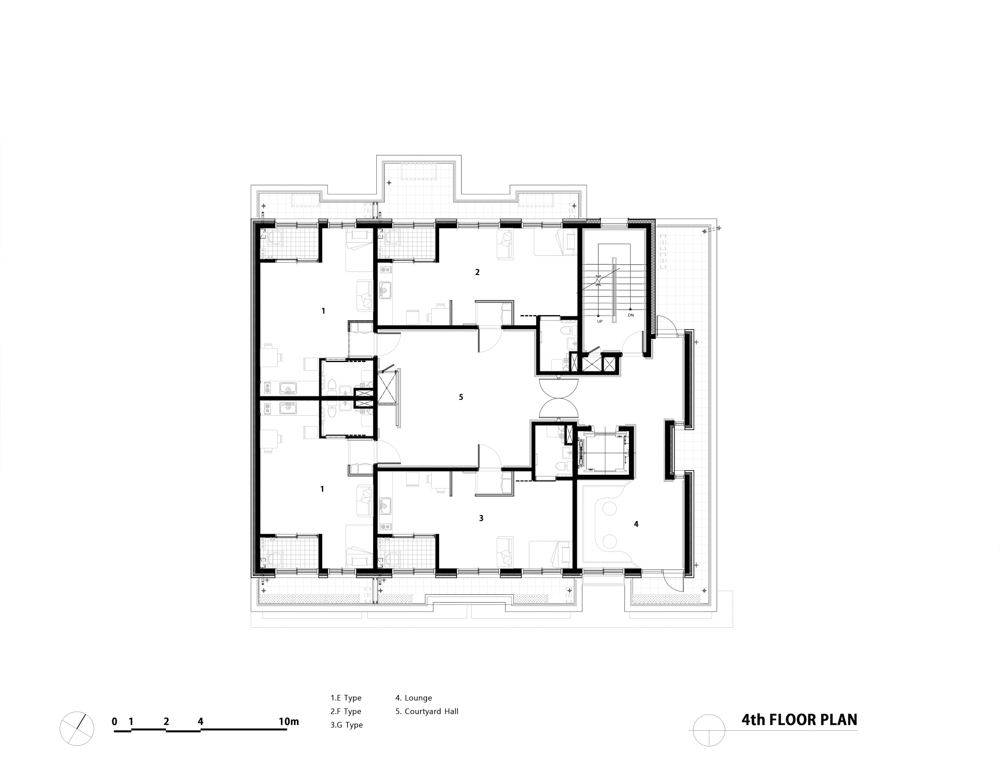
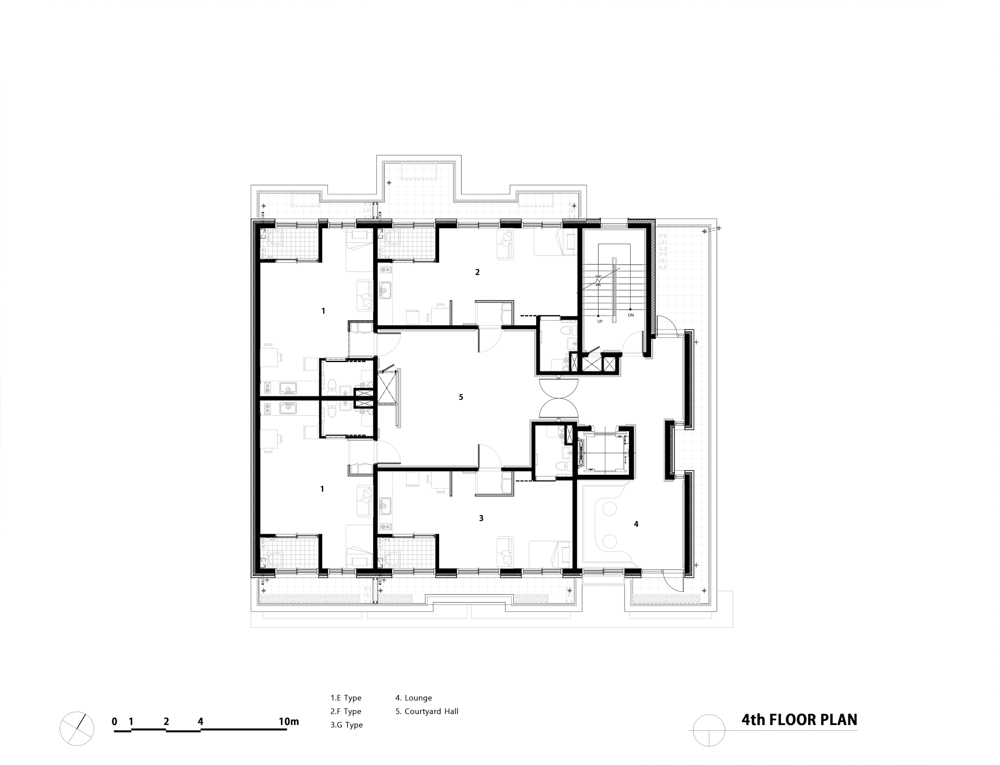
Haesimdang is an LH rental housing pilot model that responds to an aging society and aims to give a positive image of public rental housing to the region by contributing to the publicity and realizing social values in the city center. Haesimdang, which means “a house where we can live comfortably,” combines residential convenience facilities and services such as health and care so that we can live in harmony with the local community. This public housing is designed to accommodate the elderly as well as those with reduced mobility. The first floor is a space for the disabled, the second floor is a space for the elderly women, the third floor is a male elderly person, and the fourth floor is an elderly couple type to compose the space to suit the characteristics of the generation. A local community space was installed on the first floor adjacent to the roadside to provide a place of rest for local residents with inexpensive cafes and drinks. It is designed to allow rest, exchange and leisure activities to take place through the common living room, a community facility on each floor, and to find work in the rooftop eco- garden.
Urban public housing that responds to the climate emergency, by ‘biodiversity and biophlic design’
Haesimdang reflected the biophilic design in the architecture. Biophilic design is a design that harmonizes with nature and is based on ‘Biophilia’, which means love for living things. By harmonizing nature with modern architecture, it is possible to meet nature in everyday space.
First, the rooftop garden is designed as a permaculture that combines agriculture and sustainable gardens where various species and plants interact. Although it is a small rooftop space of 200m2, it plays the role of a eco-garden in the city where various ecosystems coexist and residents can do their pastimes. And, the interior green wall applied to the common spaces on each floor, including the community space on the first floor, provides a natural environment indoors so that residents and users can feel the pleasant atmosphere of nature. While many buildings have focused on energy production or saving to respond to the climate crisis, Haesimdang plays a positive role in the environment by securing biodiversity and establishing green spaces. Haesimdang will serve as a good example of the potential of a new role of public rental housing in response to climate change, promoting the residents’ community.
The public value of LH public rental housing
In the meantime, negative stereotypes about Public rental housing continued to exist in Korean society. Haesimdang will be a model that represents the possibility of the coexistence of architecture and nature in the city center as well as the pride of our neighborhood through spatial planning and architectural design specialized for the region and residents. It expects that it will improve the self-esteem and independence of the elderly, and will pursue healthy and positive coexistence with the local community.

고령자 맞춤형 도심형 커뮤니티 케어 공동체 주택
해심당은 고령화 사회에 대응한 LH 공공 리모델링 임대주택 시범모델이다. ‘편안한 마음으로 지낼 수 있는 집’이라는 해심당(海心堂)의 뜻처럼 기존 도봉구에 사는 고령 인구들이 지역사회와 함께 어울려 살 수 있도록 주거 편의 시설과 건강, 돌봄 등의 서비스가 연계된 생활형 SOC 공간을 일체화 했다. 이 새로운 주택모델은 고령자와 거동이 불편한 사람들을 위한 공간이다. 1층은 장애인을 위한 공간, 2층은 할머니들을 위한 공간, 3층은 할아버지, 4층은 고령자 부부형으로 나눠 세대 특성에 맞도록 공간을 구성했다. 층마다 특화된 디자인은 고령자와 함께 거동이 불편한 이들도 거주할 수 있게 설계되어 LH 최초로 소규모주택 BF 인증을 취득했다. 지상 1층 도로변에 인접한 곳에 있는 커뮤니티 공간은 지역주민에게 저렴한 가격의 음료와 쉴 수 있는 공간을 제공한다. 층별 커뮤니티 시설인 공동거실(경로당)은 휴식과 교류, 여가활동이 이루어진다. 하늘과 맞닿은 천창이 있는 최상층 복도(안마당)에서는 휴식과 여가를 즐기거나 옥상 텃밭에서 소일거리를 찾을 수 있다.
생물종 다양성 확보를 통해 기후위기에 대응하는 도심형 공동체 주택
건축가는 해심당을 설계하면서 바이오필릭 디자인(Biophilic design)을 반영했다. 바이오필릭 디자인은 생명체에 대한 사랑을 뜻하는 바이오필릭(Biophilic)에 기반을 둔, 자연과 함께하는 디자인을 말한다. 해심당은 현대적인 건축과 어우러지는 자연을 일상의 공간에서 만날 수 있게 했다. 먼저, 옥상 정원과 텃밭은 다양한 생물과 식물이 상호작용하는 지속 가능한 정원으로 농업이 결부된 퍼마컬처(Permaculture)로 설계했다. 비록 200㎡의 작은 옥상 공간이지만, 다양한 생태계가 공존하는 도심의 정원의 역할을 한다. 1층 커뮤니티 공간을 포함해 각층 공용공간에 적용된 벽면녹화는 자연을 실내에 제공하여, 거주민과 이용자들에게 자연의 쾌적한 분위기를 느낄 수 있도록 한다. 그동안의 많은 건물이 기후위기에 대응하기 위해 에너지 생산 또는 절감에 비중을 두었다면, 해심당은 생물종 다양성을 확보하고, 녹색 공간 구축을 통해 환경에 긍정적인 역할을 한다. 해심당은 주민의 커뮤니티를 도모하고, 기후 변화에 대응하는 새로운 공공건물로서 사회주택의 새로운 역할의 가능성을 보여주는 좋은 사례가 될 것이다.
공공의 가치, 그리고 지역사회와 상생
한국사회에서 임대주택에 대한 부정적인 시선은 지속해서 있었다. 해심당은 지역과 거주민에 특화된 공간계획과 건축 설계로 우리 동네의 자랑거리, 볼거리로 또, 기후위기에 함께 대응할 수 있는 공공의 멋진 장소, 건물이 될 것이다. 해심당은 어르신들의 자존감과 자립심을 향상하고, 지역사회와 건강하고 긍정적인 상생을 추구할 것으로 기대한다.




















Architects 지음플러스 + 가인건축사사무소 | GEEUMPLUS + GAIN ARCHITECTURE
Location Sirubong-ro, Dobong-gu, Seoul, Republic of Korea
Program Public rental housing & Neighborhood living facilities
Site area 665.7㎡
Building area 356.56㎡
Gross floor area 1,488.7㎡
Building scope B1, 4F
Building to land ratio 53.56 %
Floor area ratio 17.40%
Design period 2019 - 2020
Construction period 2020 - 2021
Completion 2021
Principal architect Seonghun Kim(GEEUMPLUS) / Jooho Yoon(Gain architecture)
Design team Changmin Lee(GEEUMPLUS)
Facade engineer MBK(Material of Building Korea)
Construction Hanmaek construction
Environment Design consulting of Community kitchen garden Yonsei University's Housing Welfare Research Consortium/ Social Venture. SymbiolivingTECH
Roof garden consruction & consulting Delicious garden Korea Inc.
Roof pargola construction Gojintnc
Client LH Social Housing Project Group
Photographer GEEUMPLUS, Hoonkoo Lee
해당 프로젝트는 건축문화 2022년 3월호(Vol. 490)에 게재되었습니다.
The project was published in the March, 2022 recent projects of the magazine(Vol. 490).
March 2022 : vol. 490
Contents : RECORDS THE BEGINNING OF THE JOURNEY TO THE MUSEUM OF ART IN THE FOREST, 《MMCA GWACHEON PROJECT 2021: ART BUS SHELTER》 숲 속 미술관으로 가는 여정의 시작, 《MMCA 과천프로젝트 2..
anc.masilwide.com
'Architecture Project > Multifamily' 카테고리의 다른 글
| LIVING ON THE ROOF (0) | 2022.06.09 |
|---|---|
| SENSATION BUILDING (1) | 2022.06.09 |
| BO 52 (0) | 2022.05.18 |
| MAGNOLIA HILL APARTMENTS (0) | 2022.05.17 |
| AUX ENTREPÔTS (0) | 2022.05.11 |
마실와이드 | 등록번호 : 서울, 아03630 | 등록일자 : 2015년 03월 11일 | 마실와이드 | 발행ㆍ편집인 : 김명규 | 청소년보호책임자 : 최지희 | 발행소 : 서울시 마포구 월드컵로8길 45-8 1층 | 발행일자 : 매일



