
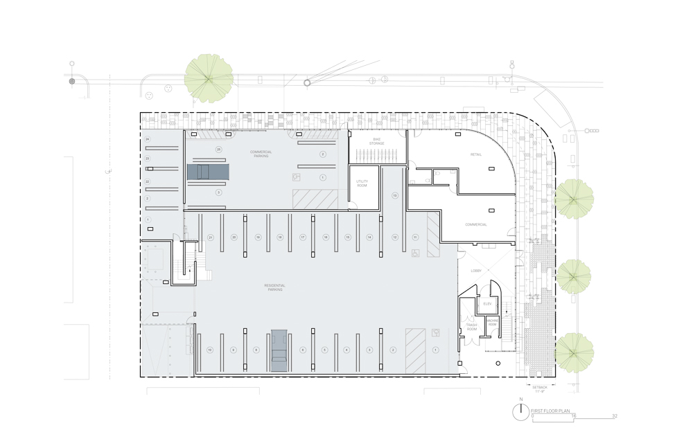
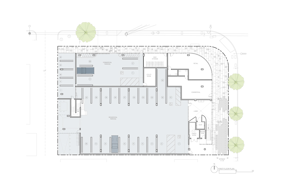
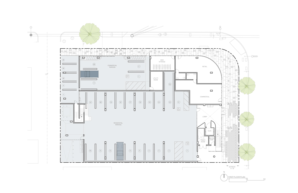
This 19-unit mixed-use multi-family building includes three stories of flats and double-height mezzanine loft apartments, as well as 1600 square feet of retail on the ground floor. The site of a former gas station has been transformed into a model for more compact, responsible urban living. The permeable layers of the perforated aluminum facade creates an ever- changing screen that sparkles in the sun and glows at night, while simultaneously providing shade to cool the building, reducing noise, enhancing privacy, and still allowing for spectacular views, great natural light and ventilation from prevailing breezes which pass through its millions of perforations. The material reappears as a strategic arrangement of screens on the east, west and north-facing walls, lending a subtle rhythm to the exterior circulation while filtering direct sunlight thru the facade. This lends unexpected visual depth, enhancing the structure’s geometric texture. Its unique architectural form and integrated function creates a high-performing building that is an expression of the people who live there and the environmental and cultural context in which it is built.
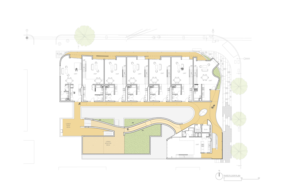
The building form is also shaped to create a light filled courtyard on the second level providing residents with a secure and welcoming surrounding while connecting directly to the street below. Exterior walkways eliminate the need for climate-controlled circulation, while allowing for cross ventilation and ample daylight from a multitude of directions. Large areas of glazing and operable window maximize daylighting and optimize building performance. Indoor air quality was emphasized by minimizing off-gassing. Formaldehyde-free MDF cabinetry, no-VOC paints, natural linoleum, and LED lighting were used to minimize pollution from materials. These details, coupled with the qualities and character found throughout, distinguish this project from similar projects and benefit not only each individual resident but also the community at large.

햇빛과 바람이 물결처럼 흘러들어오는 집, 마그놀리아 힐 공동주택
'마그놀리아 힐 공동주택'은 19개의 유닛으로 이루어진 복합 다가구 건물로, 주택은 복층과 단층의 아파트가, 1층에는 48평 정도의 상점이 있다. 주유소가 있던 자리에 지어진 마그놀리아 힐은 보다 컴팩트하고 책임감 있는 도시 생활을 위한 모델로 재탄생했다.
외관의 타공된 알루미늄판은 햇빛을 통과시켜 한낮의 태양 아래에서 반짝거리고, 밤에는 빛이 새어나와 외관을 끊임없이 변화시킨다. 동시에 그늘을 만들어 건물의 열을 식히고 소음을 줄여 사생활을 보호한다. 수백만 개의 구멍은 자연채광을 가능하게 하고, 바람을 통과시켜 환기를 가능하게 하면서도 여전히 멋진 전망을 보여준다. 동쪽과 서쪽 그리고 북쪽 벽에 패널을 전략적으로 배치해 외관에 미묘한 리듬을 주면서 파사드를 통해 직사광선을 차단한다. 또한, 예상치 못한 깊이감을 제공하여 건물의 기하학적인 모습을 강조한다. 독특한 건축적 형태와 합쳐진 기능은 그곳에 사는 사람들과 건물이 지어진 환경적, 문화적, 맥락을 표현하는 고성능 건물을 만든다.
2층은 불빛으로 가득한 안마당이 거주자들에게 안정적이고 쾌적한 환경이 제공되며, 아래 도로와는 직접 연결된다. 외부 산책로는 여러 방향에서 불어오는 바람과 햇빛으로 온도조절 및 환기가 필요 없도록 했다. 넓은 유리창과 환기창은 채광을 극대화하고 건물의 성능을 높여준다. 실내 공기 질을 위해서는 배기가스를 줄여야 했다. 포름알데히드가 나오지 않는 MDF 수납장, no-VOC 페인트, 천연 리놀륨, LED 조명을 사용해 재료의 오염을 최소화했다. 이런 디테일들이 프로젝트의 질과 특성과 맞물려 비슷한 다른 프로젝트들과 차이를 만들고, 각 거주자뿐 아니라 지역사회에까지 좋은 영향을 줄 것이다.



























Architects Brooks + Scarpa
Location Valley Village, Los Angeles, USA
Gross floor area 2,108㎡
Building scope 4F
Completion 2021
Principal architect Lawrence Scarpa
Design team Angela Brooks, Micaela Danko, Tod Funkhauser, Jeffrey Huber, Dionicio Ichillumpa, Iliya Muzychuk, Chinh Nguyen, Fui Srivikorn, Diane Thepkhounphithack, Yimin Wu, Arty Vartanyan
Structural engineer John Martin Associates
Construction Hillock Land Company, Danny Kradjian
Photographer Tara Wujcik, Lawrence Scarpa
해당 프로젝트는 건축문화 2022년 2월호(Vol. 489)에 게재되었습니다.
The project was published in the February, 2022 recent projects of the magazine(Vol. 489).
February 2022 : vol. 489
Contents : RECORDS THE NATIONAL MUSEUM OF MODERN AND CONTEMPORARY ART DISCLOSES PLANS FOR 2022 국립현대미술관 2022년 전시 계획 공개 : NEWS / COMPETITION / BOOKS : SKETCH THE QUIET..
anc.masilwide.com
'Architecture Project > Multifamily' 카테고리의 다른 글
| LH HAESIMDANG (0) | 2022.05.23 |
|---|---|
| BO 52 (0) | 2022.05.18 |
| AUX ENTREPÔTS (0) | 2022.05.11 |
| ILOT QUEYRIES APARTMENT BUILDING (0) | 2022.05.10 |
| PORT-O-PRENZ (0) | 2022.05.09 |
마실와이드 | 등록번호 : 서울, 아03630 | 등록일자 : 2015년 03월 11일 | 마실와이드 | 발행ㆍ편집인 : 김명규 | 청소년보호책임자 : 최지희 | 발행소 : 서울시 마포구 월드컵로8길 45-8 1층 | 발행일자 : 매일



