
Mothers drinking their latte macchiatos, “Bio-Berg,” Mauerpark hippies, an artists’ neighborhood: Prenzlauer Berg stands for so many cliches. The lively area around Kollwitzplatz and Helmholtzplatz combines them all. In fact, there’s hardly another part of the city that has undergone as dramatic a transformation since the fall of the Berlin Wall.
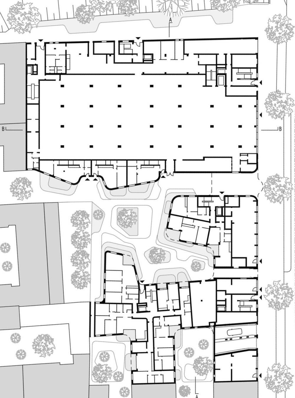
During the post-war period, many of the lots left empty by wartime. Damage had been filled with single-story supermarkets that are now being torn down and replaced with architecture that combines retail with much needed housing: Port-o-Prenz is an example of this. It now closes the block, fitting in with the existing architecture and thus complementing the heritage-protected ensemble of buildings around Gethsemane-Kirche. The street draws a straight line to the horizon with a direct view of Berlin’s Television Tower. With Port-o-Prenz, we have succeeded in realizing a project with top living quality, combining closed housing blocks that fit well in the surrounding neighborhood with a generous courtyard; taking account of the limited space available in our cities and offering a concept that points to the future in regard to the current housing crisis.
The inside of the block of the six linked buildings terraces to a playful, green landscape, resulting in a continuous and at the same time varied interior. Landscaped roof terraces and surrounding private plots combine to form a generous place of retreat in a lively urban environment. This flowing reinterpretation of the Berlin courtyards typical of the Wilhelmine period features views of the neighboring courtyards, resulting in a semi-public intimacy in which the residents of the new quartier can find a way to one another and to live as neighbors.
In each building, Port-o-Prenz combines various apartment types, preventing segregation. 240 units with 1~5 rooms are intended for various clienteles. This spatial constellation allows for a balanced residential structure of students, families, singles, and pensioners. In case of a change in personal living circumstances, it is thus possible to keep the familiar location, the social surroundings, and the neighborhood, and to move within the complex. These flexible living options are promoted by the rich infrastructure in the neighborhood. Depending on location, all apartments feature a balcony, loggia, or roof-top terrace.
The design of the street facade, with curved balconies and flowing transitions, reflects the organic flexibility and adaptability of the building concept. Wave-like, irregular balustrades run down the entire block. By way of slight color variations in the facade, the long gaze is divided into smaller units that correspond in terms of format to the architecture from the turn of the century, creating an optical link to the surroundings.

전쟁으로 비워진 땅 위에 지어진 차별 없는 아파트, 포르토프렌츠
라떼 마끼아또를 마시는 엄마들, 마우어 파크의 히피족들, 예술가의 동네, 바이오 베르크 등 프렌츠라우어 베르크를 표현하는 진부한 표현들은 많다. 콜비츠 광장과 헬름홀츠 광장 주변의 활기찬 지역은 이 모든 것이 합쳐져 있다. 사실 베를린 장벽이 무너진 이후 극적인 변화를 겪은 이 도시에 다른 부분은 거의 없다.
전쟁 후 많은 땅이 비어있었고, 단층의 슈퍼마켓에는 전쟁의 상처가 가득했다. 현재는 허물어지고 필요했던 주거시설과 상가를 결합한 건물이 들어섰다. 포르토프렌츠도 그 예로, 블록을 둘러싸 기존의 건축물과 맞물려 겟세마네 교회 주변의 유산으로 보호된 건물들을 보호한다. 거리는 베를린의 텔레비전 타워가 직접 보이게 일직선을 그리고 있다. 포르포프렌츠는 주변 지역과 어울리는 폐쇄형 주택으로 블록과 넓은 안뜰을 결합해 높은 주거 환경의 품질을 제공한다. 또한, 도시의 제한된 공간을 고려하여 현재 주택 위기에 대한 미래 지향적인 개념을 제시했다.
6개의 연결된 건물 블록 내부는 놀기 좋은 녹색 풍경의 테라스로 이어지며, 연속적이면서 동시에 다양한 인테리어를 연출한다. 조경된 옥상 테라스를 둘러싼 개인의 공간이 결합해 활기 넘치는 도시환경에서 넓은 휴식 공간을 제공한다. 빌헬미네 시대의 전형적인 베를린 안뜰을 재해석하는 이 흐름은 이웃 안뜰의 전망을 특징으로 한다. 그 결과, 새로운 구역의 주민이 서로에게 길을 찾고 이웃으로 살 수 있는 반 공개적인 친밀감을 만들어낸다.
포르토프렌츠의 각 건물은 다양한 유형의 아파트를 결합하여 차별을 방지한다. 1~5개의 객실이 있는 240개의 유닛은 다양한 고객을 위한 것이다. 이 공간적 구조는 학생, 가족, 1인 가구 및 연금 수급자가 균형 잡힌 거주를 할 수 있게 한다. 만약 개인의 생활에 변화가 생겨도 익숙한 장소, 사회환경, 이웃을 유지하며 단지 내에서 이동하는 것이 가능하다. 유연한 생활방식은 이웃의 풍부한 기반시설에 의해 만들어진다. 위치에 따라 모든 아파트는 발코니, 로지아 또는 옥탑 테라스가 있다.
곡선형 발코니와 흐르는 듯한 변화가 있는 거리의 입면 디자인은 유연하고 유기적인 건물의 콘셉트를 보여준다. 파도처럼 불규칙한 난간은 블록을 따라 내려간다. 입면의 색상 변화를 통해 긴 시선은 형식 면에서 세기 전환기의 건축물에 해당하는 더 작은 단위로 분할되어 주변과 광학적인 연결을 만들어낸다.




















Architects J.MAYER.H
Location Berlin, Germany
Gross floor area 28,000㎡
Building scope B1, 8F
Construction period 2018 - 2020
Structural engineer LHT GmbH
Client Trei Real Estate GmbH
Photographer David Franck
해당 프로젝트는 건축문화 2022년 2월호(Vol. 489)에 게재되었습니다.
The project was published in the February, 2022 recent projects of the magazine(Vol. 489).
February 2022 : vol. 489
Contents : RECORDS THE NATIONAL MUSEUM OF MODERN AND CONTEMPORARY ART DISCLOSES PLANS FOR 2022 국립현대미술관 2022년 전시 계획 공개 : NEWS / COMPETITION / BOOKS : SKETCH THE QUIET..
anc.masilwide.com
'Architecture Project > Multifamily' 카테고리의 다른 글
| AUX ENTREPÔTS (0) | 2022.05.11 |
|---|---|
| ILOT QUEYRIES APARTMENT BUILDING (0) | 2022.05.10 |
| FIVE CORNERS HOUSE (0) | 2022.04.27 |
| SAMJEON-DONG BLANC BLANC (0) | 2022.04.26 |
| CLOUD HOUSE (0) | 2022.04.21 |
마실와이드 | 등록번호 : 서울, 아03630 | 등록일자 : 2015년 03월 11일 | 마실와이드 | 발행ㆍ편집인 : 김명규 | 청소년보호책임자 : 최지희 | 발행소 : 서울시 마포구 월드컵로8길 45-8 1층 | 발행일자 : 매일



