
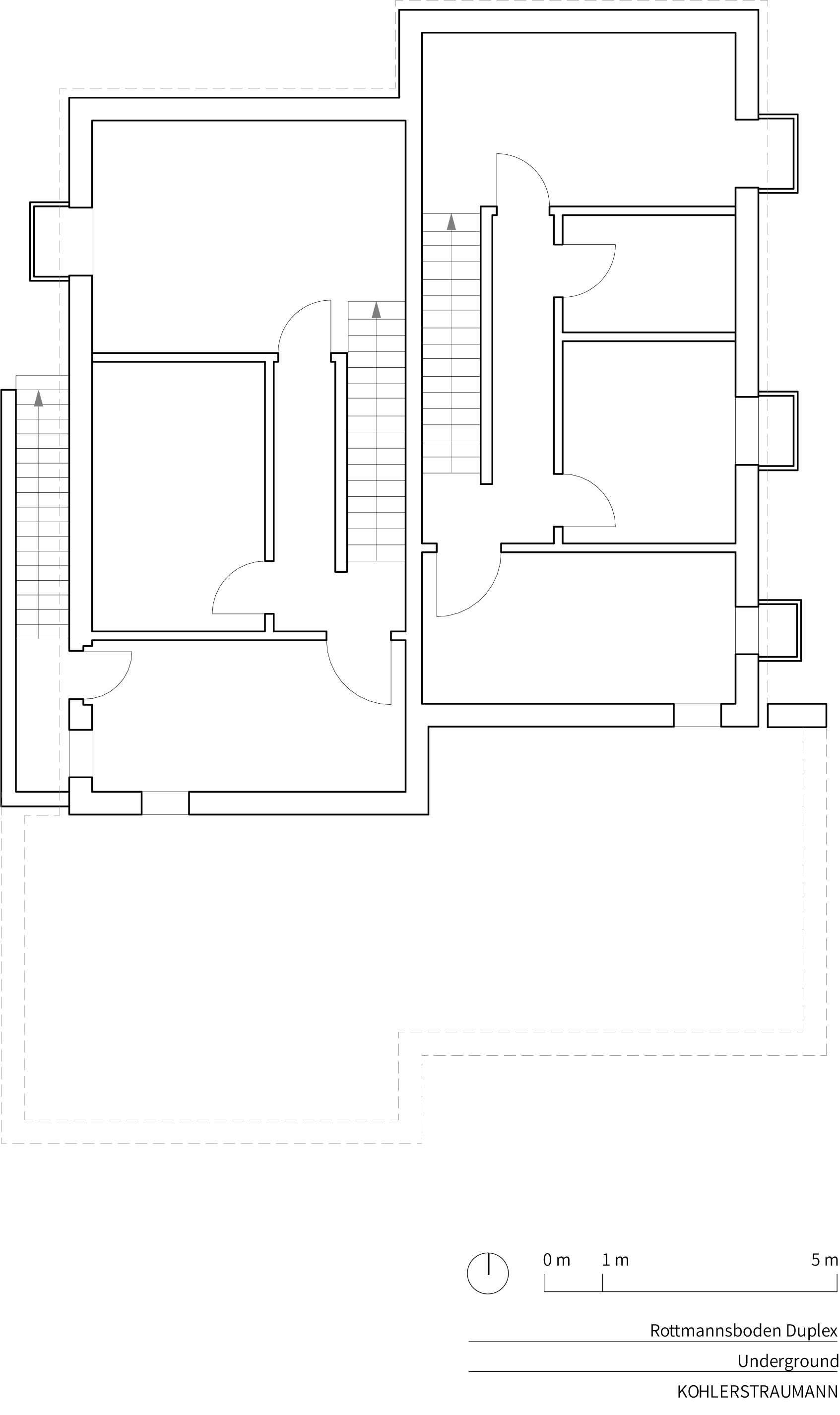
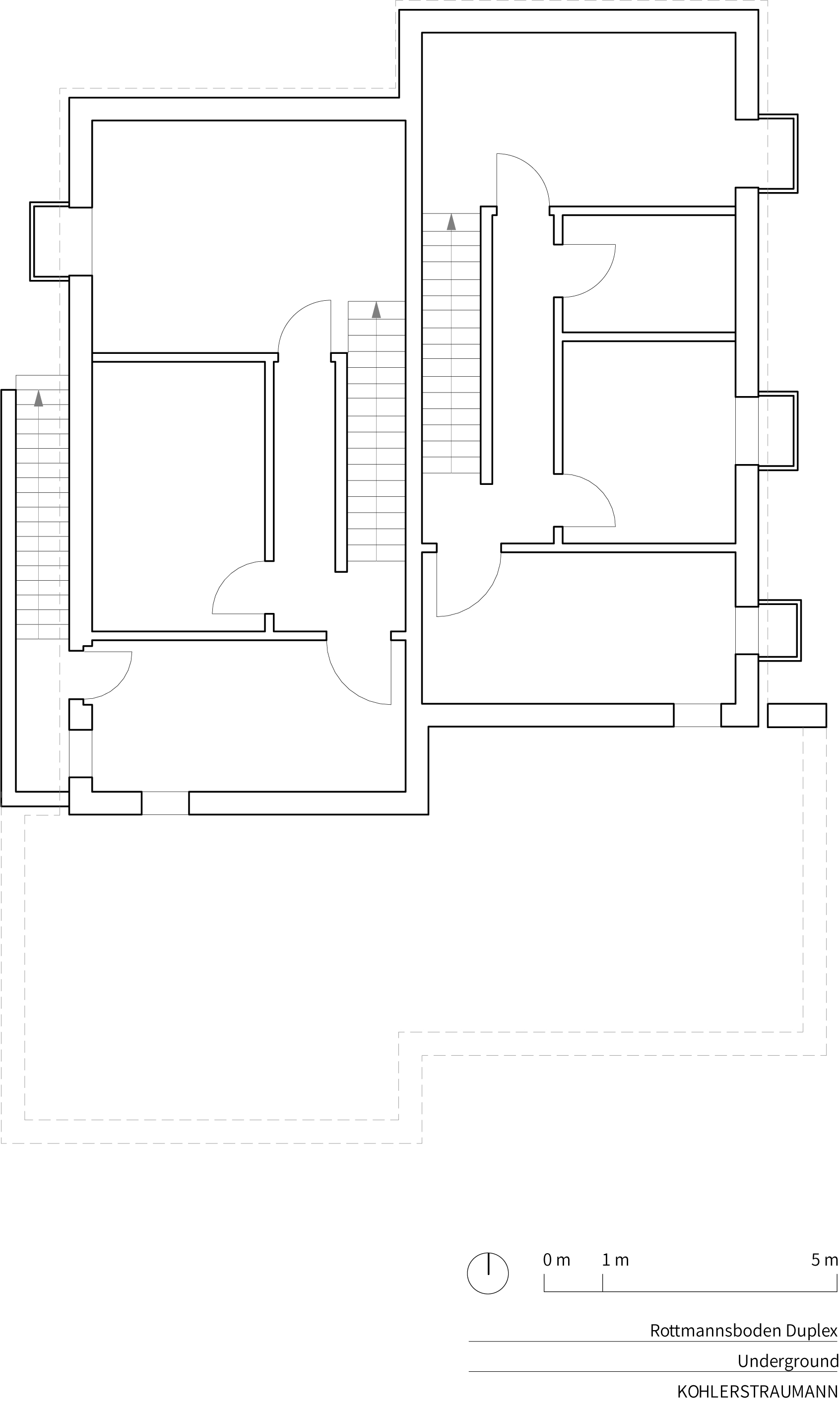
Situated in a moderately busy street of a calm neighborhood in Binningen - Switzerland, an exquisite semi-detached house is well integrated into an environment of single and multi-family houses. The project aimed to integrate two distinct users of double housing into one building. As a result, the form of the building reflects the unique design of two different users accommodated in a single house structure.
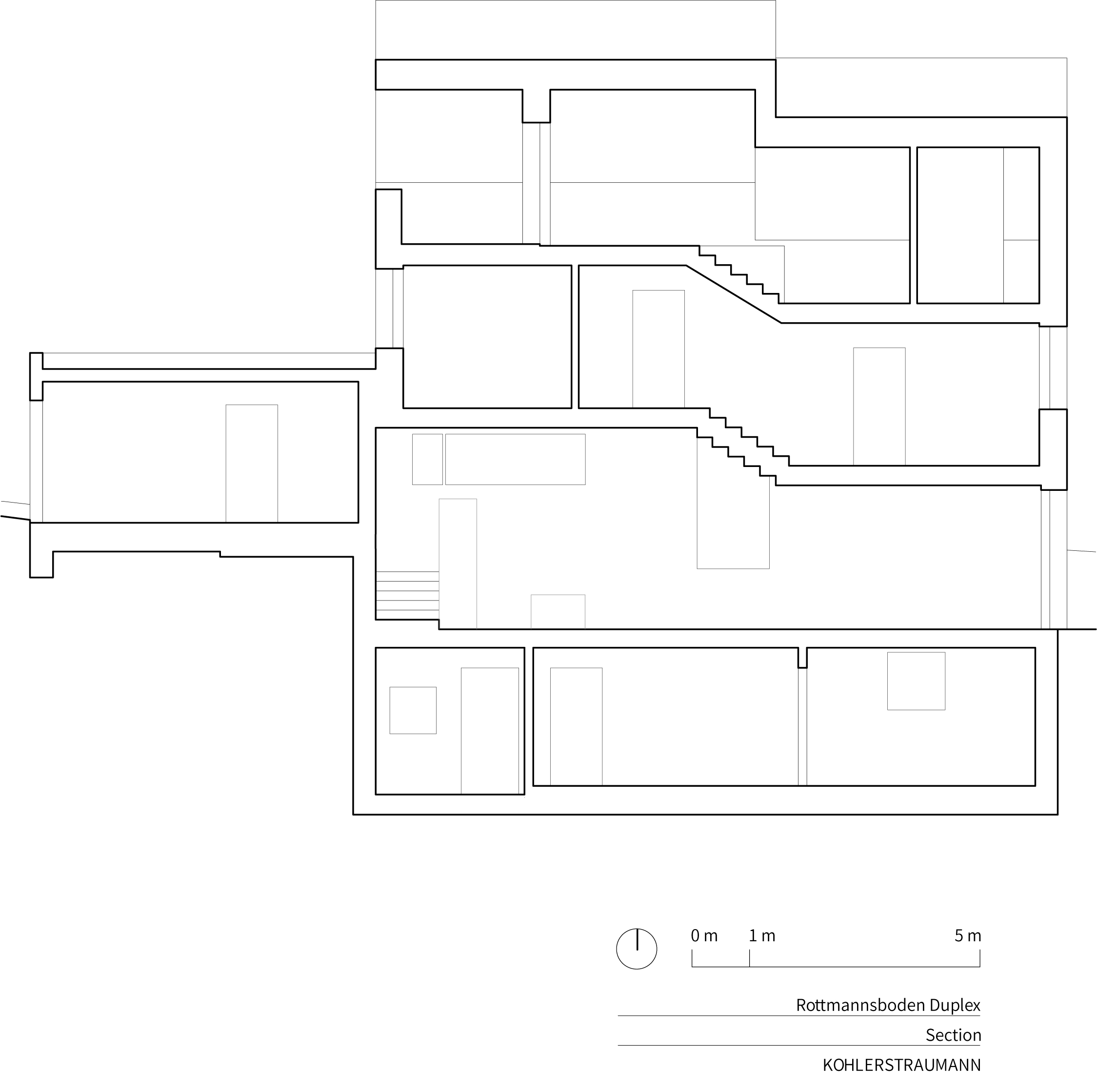
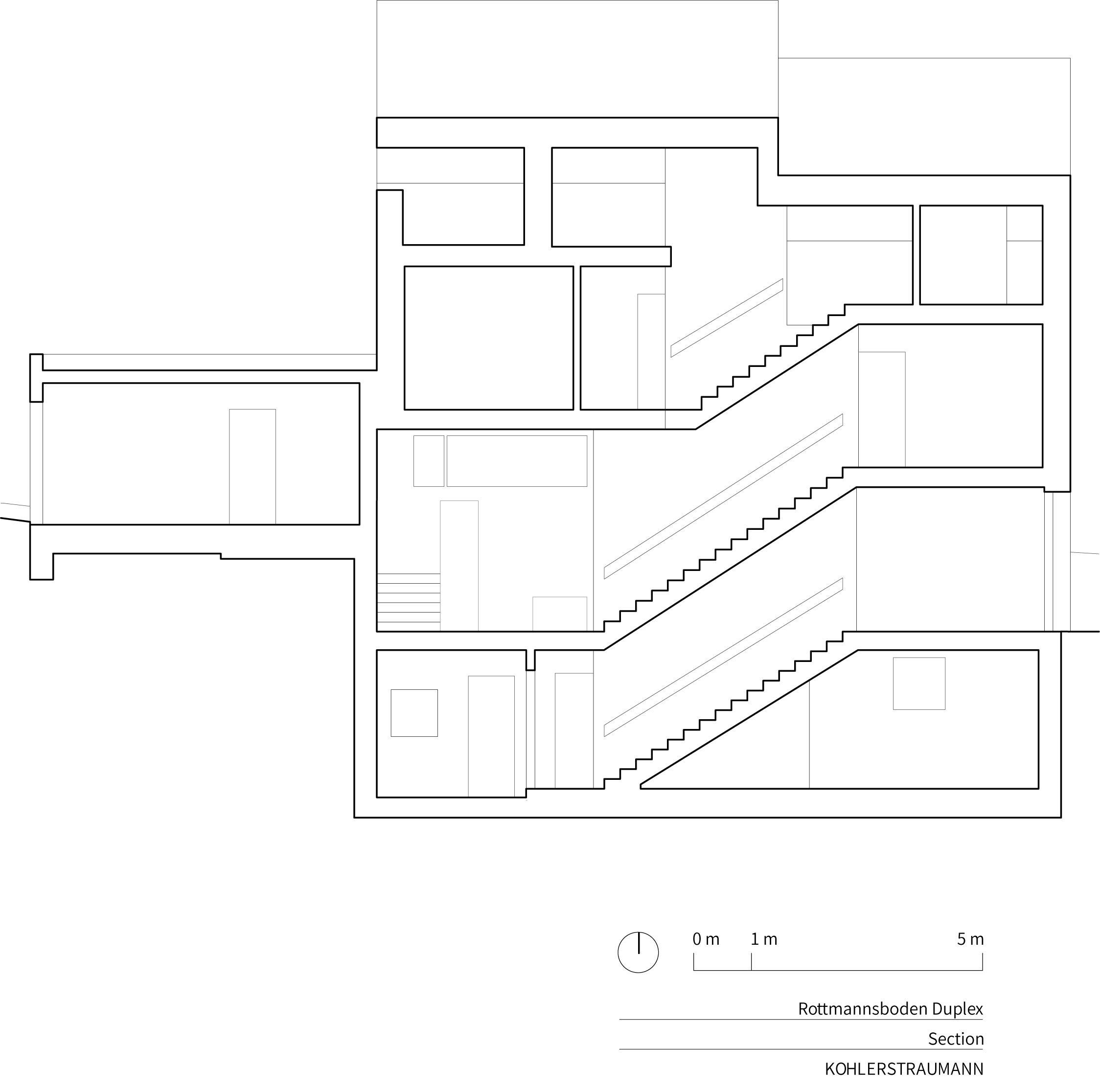
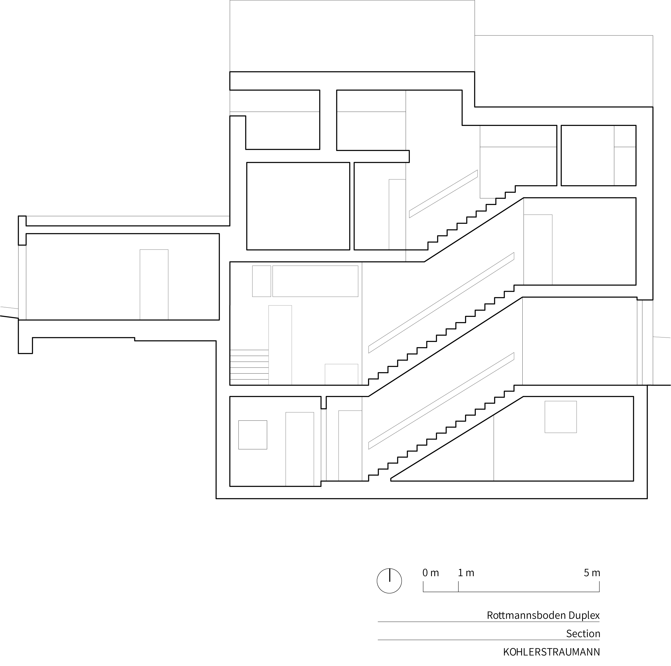
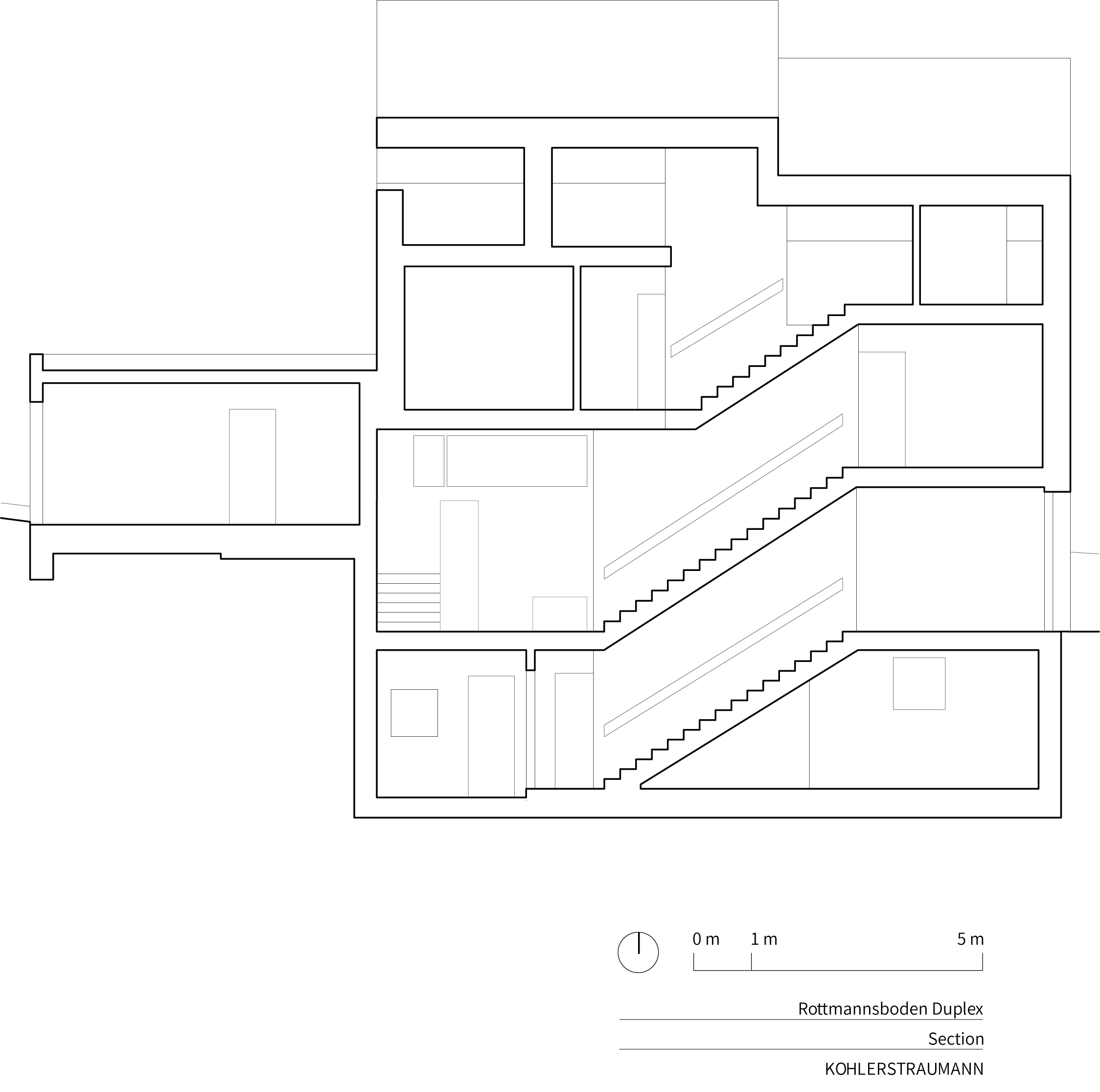
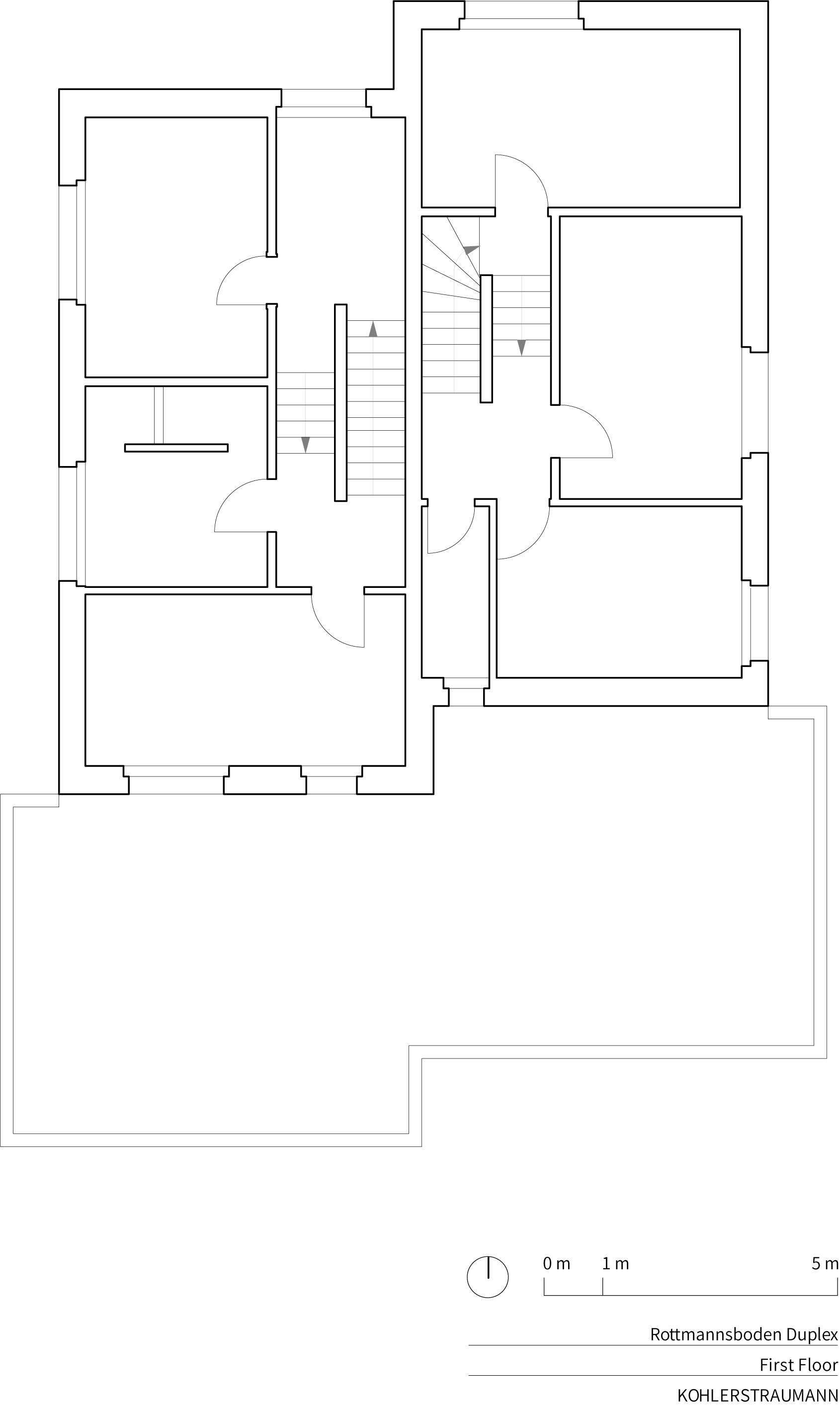
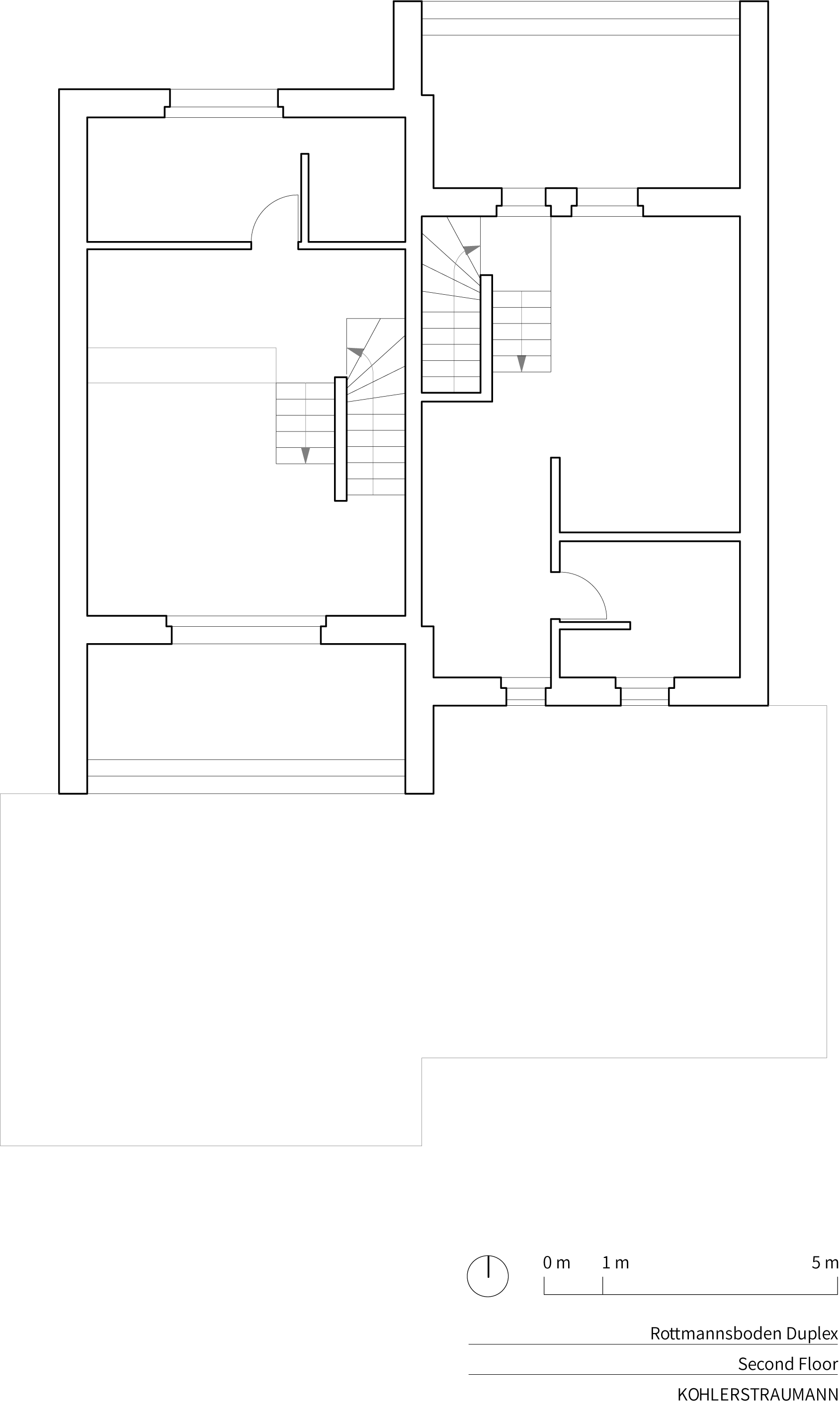
To meet the challenge of constructing on the existing topographical conditions, the building was separated into series of volumes and split levels. Accordingly, the volumes created spaces that attained optimum room heights with efficient usage for all spaces, inducing interest and character. This solution to the very challenging topographic situation offers an innovative design environment with the skilled arrangement of rooms and spaces that meets the needs of the residents.
The entrance volume detaches the main building from the street, offering a private space for the living area. This way the residents enjoy an intimate living space with a secluded environment from the street. Following the trail of existing terrain, the half-story staircase directs towards the open kitchen and living area which includes large glass openings with a tall and elevated design of the floor producing transparency that brings light into the interiors. These peculiar design features allow a bright and spacious kitchen and living area that allures residents to a more inviting, and multi-dimensional space.
The exposed surfaces of sand-blasted concrete material highlight the functionality of the material by performing as a protective layer for the rooms with its characteristic thermal protection. This feature reduces energy use of the house through good insulation and climate shielding properties. This material shelters the rooms and spaces during the months of hot summer temperatures and harsh climatic conditions by positioning to the southern side of the house.

로트만스보덴 듀플렉스하우스는 스위스 비닝엔의 한적한 동네에 세워진 두 세대를 위한 집이다. 건물의 형태는 단독주택 같지만 차이점을 가지고 있다. 기존의 지형 조건에 따라 건설해야 하는 어려움을 해결하기 위해 건물은 비슷한 형태의 스플릿 플로어로 분리된다. 모든 공간을 효율적으로 사용하여 최적의 방 높이를 얻을 수 있는 공간을 가진다. 까다로운 지형적 조건을 가졌음에도 건축가는 거주자의 요구를 충족시키는 공간들을 적절히 배치하여, 혁신적인 설계 환경을 제공한다. 입구 볼륨은 본관을 거리에서 분리하여 생활 공간에 프라이버시를 제공한다. 이를 통해 거주자는 거리에서 단절된 환경과 친밀한 생활 공간을 즐길 수 있다. 기존 지형의 흔적을 따라가는 반 층 계단은 큰 유리창과 높은 바닥 디자인을 포함한 개방형 주방과 거실로 향하며, 이는 내부에 빛을 들이는 투명성을 생성한다. 이러한 독특한 디자인 기능은 밝고 넓은 주방과 거실 공간을 제공하여 거주자들을 보다 매력적이고 다차원적인 공간으로 끌어들인다. 샌드블라스트 처리된 콘크리트 재료의 노출된 표면은 특징적인 열 보호 기능으로 실내를 보호하는 역할을 한다. 또한, 우수한 단열 및 기후 차폐 특성을 통해 주택의 에너지 사용을줄인다. 이 재료는 집의 남쪽에 사용하여 무더운 날씨가 지속되는 혹독한 여름 동안 방과 공간을 보호한다.

















Architects KOHLERSTRAUMANN
Location Binningen, Switzerland
Site area 627.00㎡
Building area 225.0㎡
Gross floor area 510㎡
Completion 2021
Design team Aaron Kohler, Marc Straumann
Structural engineer Sperisen Ingenieure GmbH
Electrical engineer Elektro Mühlethaler AG
Photographer Maris Mezulis
해당 프로젝트는 리빙즈, 디테일 04호에 게재되었습니다.
The project was published in LIVINGS, Detail 04
[BOOK] LIVINGS, Detail 리빙즈, 디테일 03호, 04호
<LIVINGS, Detail 리빙즈, 디테일 03호, 04호> 72개의 형태와 라이프스타일을 담은 주거공간, 국내외 “디테일한 주택 프로젝트”의 엮음 매월 국내외 다양한 건축물들을 소개해 온 <월간 건축문화>가 <
www.masilwide.com
'Architecture Project > Multifamily' 카테고리의 다른 글
| CURTAIN CALL (0) | 2022.06.15 |
|---|---|
| WOHO BERLIN (0) | 2022.06.14 |
| JINGWAN-DONG HOUSE (0) | 2022.06.10 |
| LIVING ON THE ROOF (0) | 2022.06.09 |
| SENSATION BUILDING (1) | 2022.06.09 |
마실와이드 | 등록번호 : 서울, 아03630 | 등록일자 : 2015년 03월 11일 | 마실와이드 | 발행ㆍ편집인 : 김명규 | 청소년보호책임자 : 최지희 | 발행소 : 서울시 마포구 월드컵로8길 45-8 1층 | 발행일자 : 매일



