
The alleys around the site of Myeonmok-dong were like an exhibition showing the transition of urban dwellings at a glance. Though the old detached houses, relatively younger multi-household homes, and the newly built apartment buildings exist in the same time and place, it feels unfamiliar and different. It is a desolate neighborhood with no trees or grass to be found. Although Myeonmok-dong is a neighborhood leaning at the foot of Mt. Yongmasan, there is almost no green space inside the block due to high residential density. Myeonmok-dong 40 years ago was mostly a place where detached houses with yards were lined up, and it was a neighborhood from where you could see the mountain. Now, it was a place with not a single blade of grass in sight, let alone the mountains.
The reason why it is difficult to realize sufficient space to come in contact with nature in urban dwellings (especially small apartment houses such as multi-household homes) is because of the thought that the space given to them is wasted. Underlying this perception are various interests in economics and returns, but we decided to change our mindset. Myeonmok-dong Varanda is not a partitioned area, but connected with nature to obtain an infinitely expansive volume, and to bring nature into the range of life rather than giving up space, increasing the value that can be converted into profit.
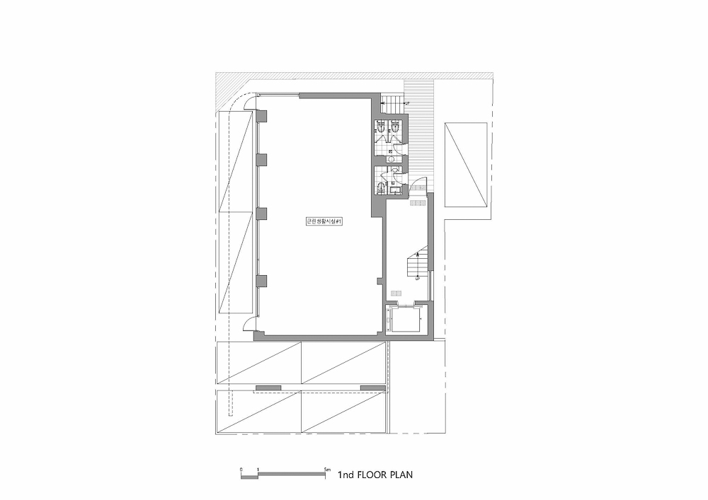
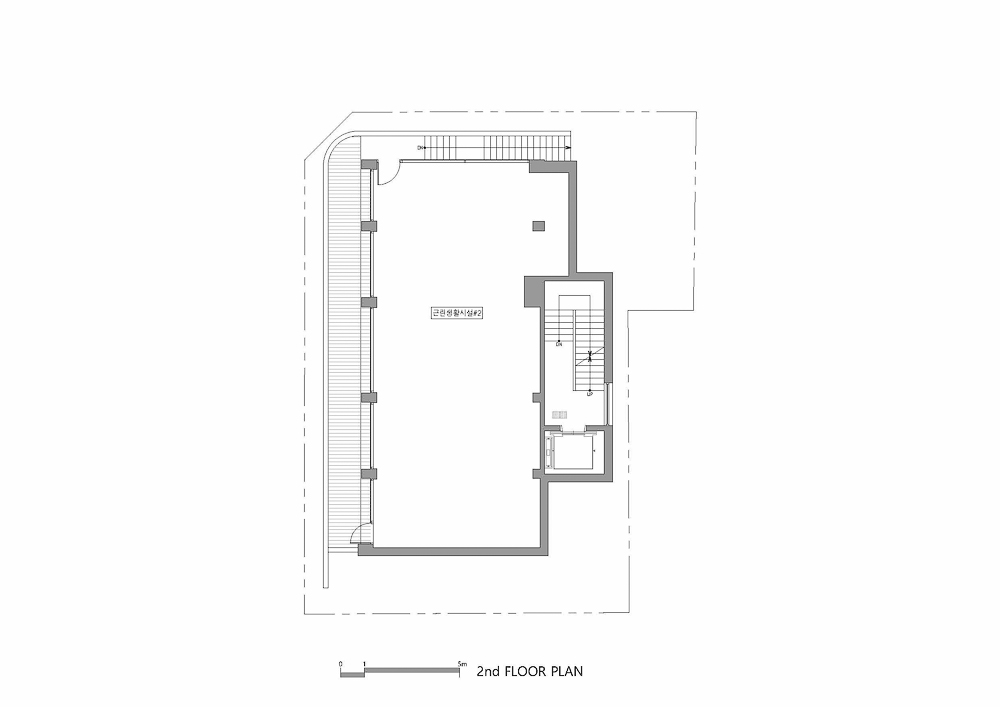
With this idea as the starting point, the architect applied the ‘veranda’ as an architectural element that incorporates nature into the house. Neighborhood living facilities and all residences (6 households) will be installed on the second floor in order to realize our goal of an equal living environment (for both landlords and tenants). The veranda of the neighborhood living facility on the second floor is used as a commercial space, and gives a deeper look to the space on the first floor. The location and size of the verandas of each residence on the 3rd to 5th floors are different, but they do have in common a 2.4m high solid wall and open Q-blocks surrounding them. This is a place where you can get in touch with nature without being disturbed by onlookers, and the open Q-Blocks are a window for communication that reveals the personality of the house, through which you can meet with neighbors.

면목동 대지 주변의 골목은 도시 주거의 변천을 한 눈에 보여주는 전시장 같았다. 오래된 단독주택과 비교적 덜 오래된 다가구주택, 이제 막 세워진 아파트가 같은 시간과 장소에 존재하고 있음에도 낯설고 이질감만 느껴졌다. 나무 한 그루, 풀 한 포기도 찾아볼 수 없는 삭막한 동네였다. 면목동은 용마산 자락에 기대고 있는 동네임에도 주거 밀집도가 높아 블록 안에 녹지가 거의 없다. 40년 전만 해도 면목동은 단독주택이 즐비했던 곳으로, 마당이 있었으며 골목을 나서면 저 멀리 용마산을 바라볼 수 있는 동네였다. 지금은 산은 고사하고 풀 한 포기 보기 힘든 곳이 되어 있었다.
자연과 마주할 충분한 공간이 도시 속 주거(특히 다가구주택 등의 소형공동주택) 공간 안에서 실현되기 어려운 까닭은 내어주는 공간을 아까운 것으로 여기기 때문이다. 이 인식의 기저에는 경제성과 수익에 대한 다양한 이해관계가 있지만, 건축가는 생각을 전환하기로 했다. ‘면목동 바란다’는 구획된 면적이 아닌 자연과 연결되어 무한히 확장되는 체적을 얻는 것, 내어주는 것이 아닌 자연을 내 생활의 범주에 들여오며 공간의 가치를 높인 것이다.
이런 생각에서 시작된 ‘면목동 바란다(varanda)’는 집에 자연을 담는 건축적 요소로 ‘베란다(varanda)’가 적용됐다. 2층 근린생활시설과 모든 주거(6가구)에 설치되는데, 이는 건축가가 목표하는 동등한 거주 환경(임대인, 임차인 모두)의 실현이다. 2층 베란다는 상업 공간으로 쓰임이 확장되며, 1층의 공간을 더욱 깊이 있게 보이도록 한다. 3~5층 각 주거의 베란다는 위치와 크기가 저마다 다른데, 공통적으로 2.4m 높이의 솔리드한 벽과 열린 큐블럭이 베란다를 둘러싼다. 이는 자연과 만나는 장소가 주변 시선의 방해 없이 오롯이 사용자를 위한 곳이며, 열린 큐블럭은 집의 개성을 드러내고 이웃과 만나는 소통의 창구다.



























Architects TODOT │ 투닷건축사사무소 주식회사
Location Sagajeong-ro, Jungnang-gu, Seoul, Republic of Korea
Program Office, Multi-family Housing
Site area 316.70㎡
Building area 183.28㎡
Gross floor area 615.36㎡
Building scope 5F
Building to land ratio 59.49%
Floor area ratio 199.73%
Design period 2020. 5 - 11
Construction period 2021. 2 - 11
Completion 2021. 11
Principal architect Byungkyu Cho, Seungmin Mo
Project architect Byungkyu Cho
Design team Chris Cheon, Jungho So, Keonkyu Shim
Structural engineer Delta Structure
Mechanical engineer Hanbit Safety Technology Group
Electrical engineer Chunil MEC
Construction Maru Design
Client Songwon36,Inc.
Photographer Casey Lee
해당 프로젝트는 건축문화 2022년 4월호(Vol. 491)에 게재되었습니다.
The project was published in the April, 2022 recent projects of the magazine(Vol. 491).
April 2022 : vol. 491
Contents : RECORDS DIÉBÉDO FRANCIS KÉRÉ, WINNER OF THE 2022 PRITZKER ARCHITECTURE PRIZE 2022년 프리츠커 건축상 수상자, 디에베도 프란시스 케레 : NEWS / COMPETITION / BOOKS : SKET..
anc.masilwide.com
투닷건축사사무소
TODOT ARCHITECTS
todot.kr
'Architecture Project > Multifamily' 카테고리의 다른 글
| IAN HOUSE (0) | 2022.06.23 |
|---|---|
| TH PALACE (0) | 2022.06.22 |
| BANSEOK HOUSE (0) | 2022.06.21 |
| RESIDENCE EISENERZ (0) | 2022.06.17 |
| BYULNAE HOUSING (0) | 2022.06.16 |
마실와이드 | 등록번호 : 서울, 아03630 | 등록일자 : 2015년 03월 11일 | 마실와이드 | 발행ㆍ편집인 : 김명규 | 청소년보호책임자 : 최지희 | 발행소 : 서울시 마포구 월드컵로8길 45-8 1층 | 발행일자 : 매일



