
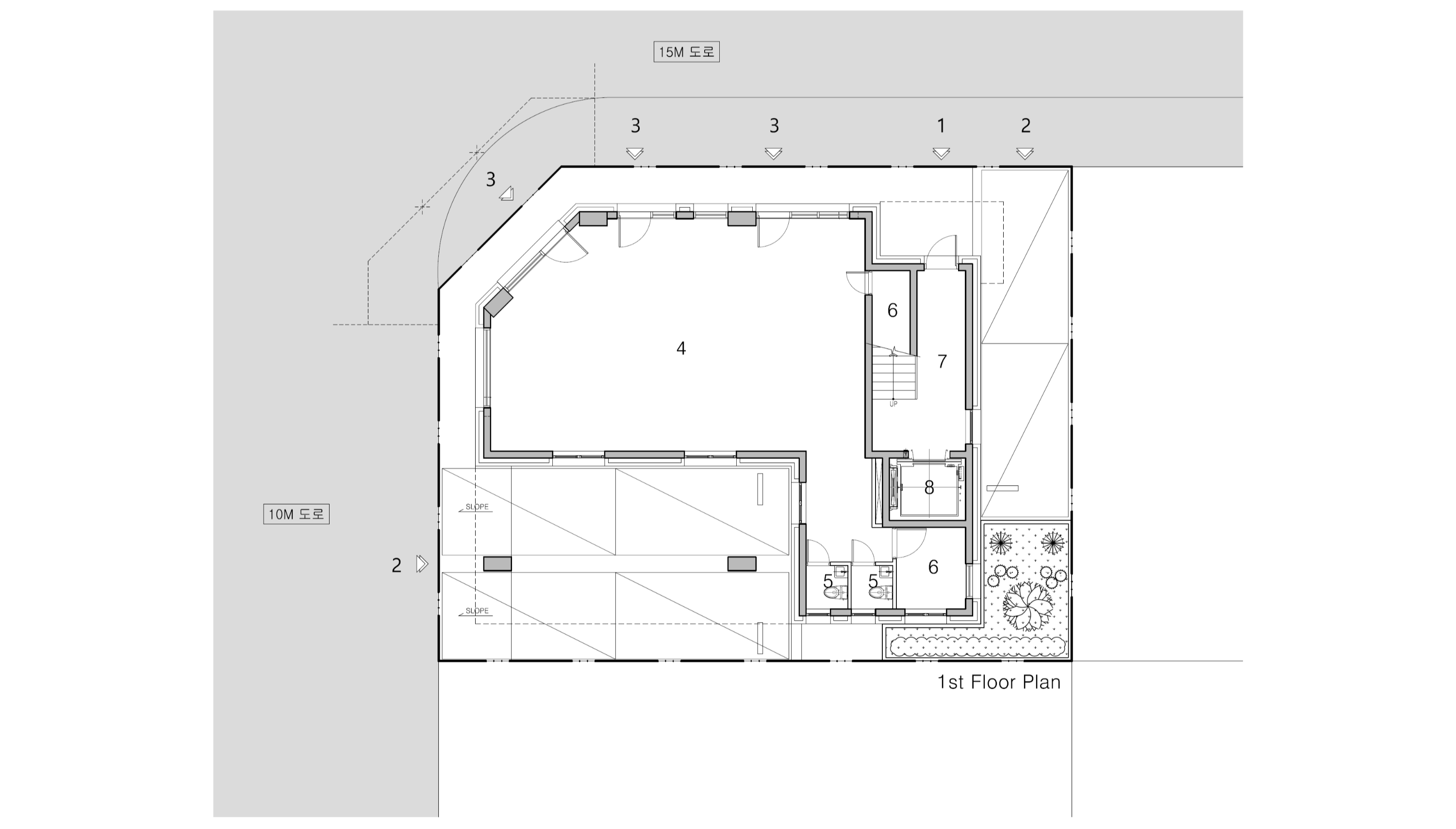
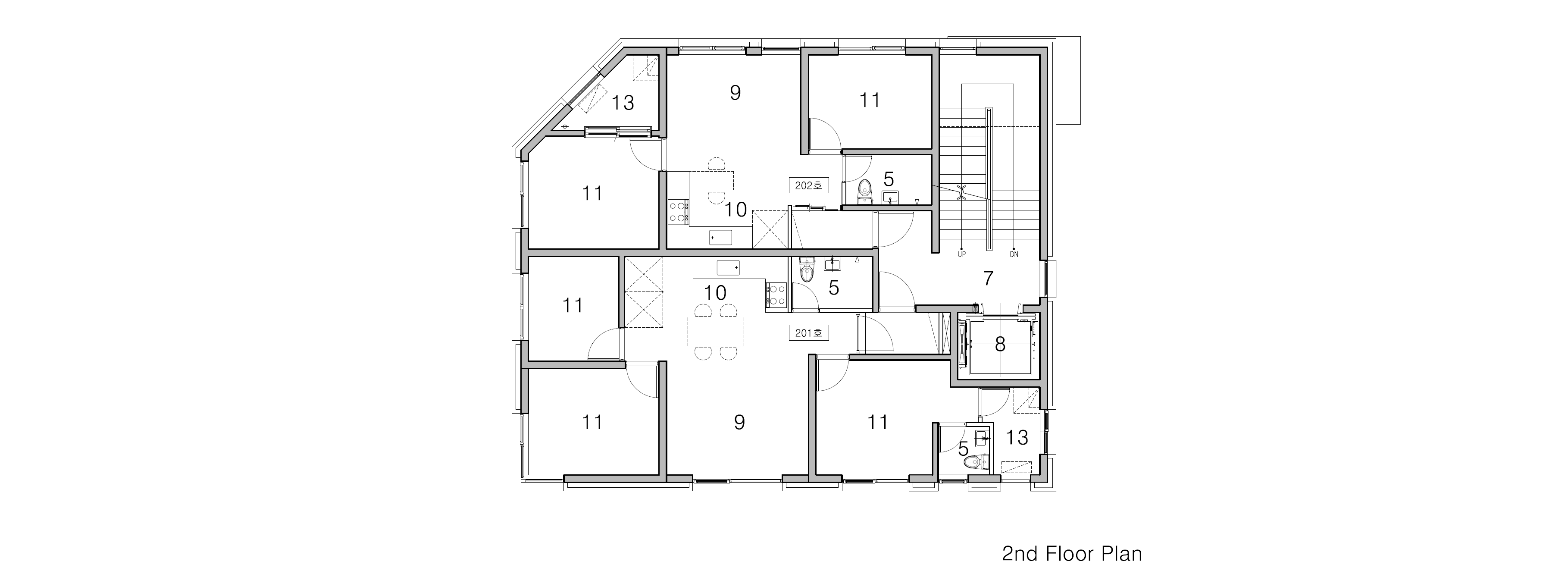
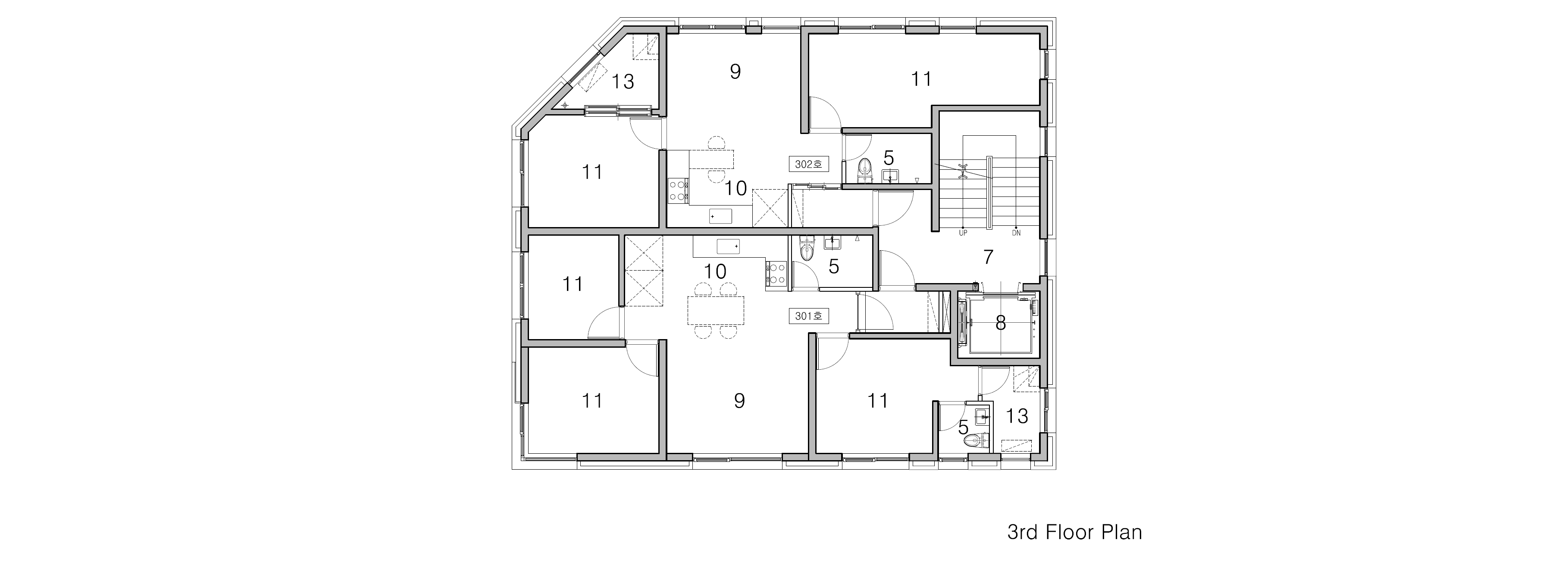
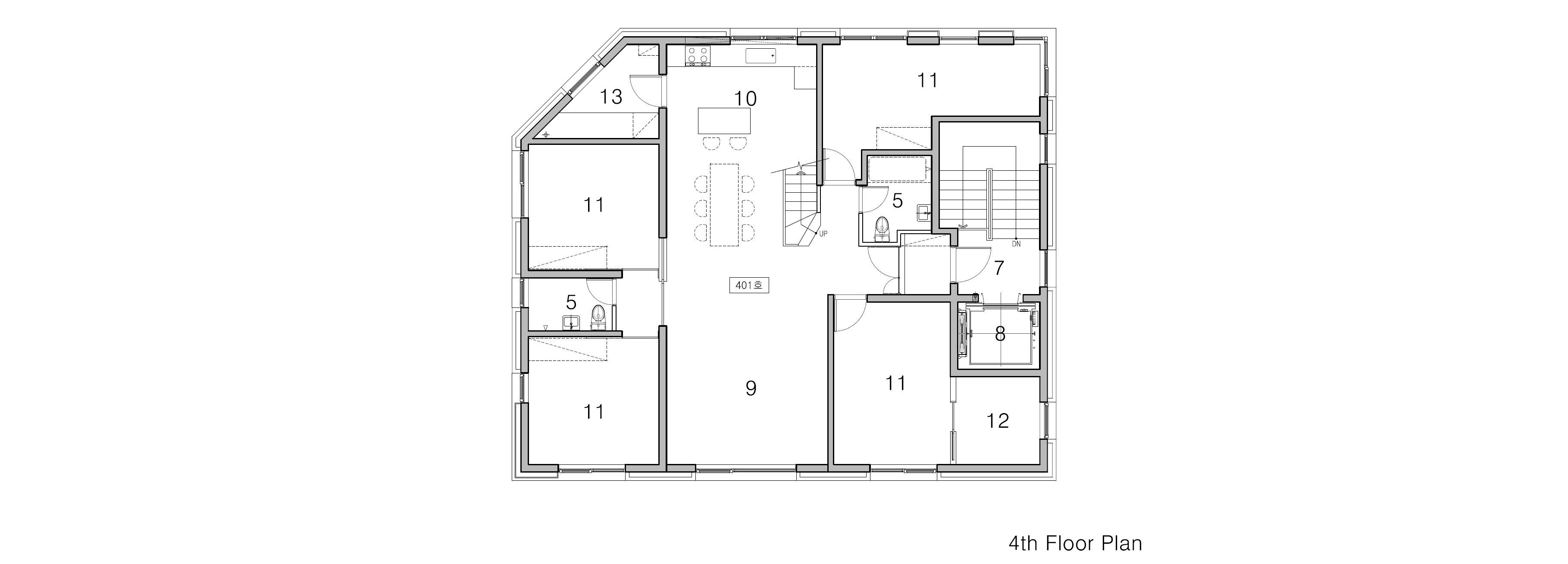
TH Palace is a house built on a migrant housing site of existing residents during the development of housing sites in the Gamil district of Hanam. On the fourth floor, a house where the client's family could live together with three generations was planned. The first floor was planned to be a commercial space(store), and the second and third floors were planned as rental households.
Due to the site’s condition that it is not affected by the right to sunlight, the floor height is higher than that of other houses, and it gives a warm feeling full of natural scenery and light throughout the house. TH Palace, which is located in a corner site, was planned with more focus on the shape and facade composition of the house as more than two sides have frontality. Moreover diagonal elements were appropriately used to give a sense of elevation. A terrace or balcony on the corner side are to allow it to be used as a resting and sharing space for the family, and on the other side, a small terrace that one can use as a private space was separately made, to allow the inside and outside of the house to be freely entered and exited as well as to provide a comfortable rest.

티에이치 팰리스는 하남감일지구 이주자택지에 지어진 주택이다. 4층은 건축주 삼대가 같이 어울려 살 수 있는 집이며, 1층은 상가, 2, 3층은 임대세대를 위한 주거공간이다. 일조권의 영향을 받지 않는 대지 조건으로 다른 주택에 비해 층고가 높으며, 집안 곳곳에서 자연경관과 채광이 가득한 따뜻한 느낌을 준다.
좋은 코너자리에 위치한 티에이치 팰리스는 2면 이상이 정면성을 가지게 되므로 집의 형태나 입면 구성에 사선 요소를 적정하게 사용하여 상승감을 주도록 했다. 대지의 코너변으로는 각 층 마다 발코니 또는 테라스가 있어, 가족들을 위한 휴식과 공유공간으로 사용 가능하다. 반대편으로는 혼자만의 사유적 공간으로 사용 가능한 작은 테라스로 별도가 조성되어 집의 내부 공간과 외부 공간을 자유롭게 드나들며, 편안한 휴식의 공간을 가질 수 있다.
















Architects ISMORE & CREATIVE ARCHITECT
Location Gamil-ro, Hanam-si, Gyeonggi-do, Republic of Korea
Site area 254.00㎡
Building area 150.71㎡
Gross floor area 532.48㎡
Building to land ratio 59.33%
Floor area ratio 198.35%
Building scope 4F
Construction period 2020. 07 - 2021. 03
Completion 2021. 03
Principal architect YoungA Mun
Project architect YoungA Mun
Design team Sora Kim, Dongjun Jin, Seonjeong Kim
Structural engineer CH Structural engineer Co.Ltd
Mechanical engineer KUNCHANG Engineering Co.,Ltd.
Electrical engineer KUNCHANG Engineering Co.,Ltd.
Construction Green Construction Co., Ltd.
Photographer Changmook Kim
해당 프로젝트는 리빙즈, 디테일 04호에 게재되었습니다.
The project was published in LIVINGS, Detail 04
[BOOK] LIVINGS, Detail 리빙즈, 디테일 03호, 04호
<LIVINGS, Detail 리빙즈, 디테일 03호, 04호> 72개의 형태와 라이프스타일을 담은 주거공간, 국내외 “디테일한 주택 프로젝트”의 엮음 매월 국내외 다양한 건축물들을 소개해 온 <월간 건축문화>가 <
www.masilwide.com
'Architecture Project > Multifamily' 카테고리의 다른 글
| HWADAMJAE (0) | 2022.06.24 |
|---|---|
| IAN HOUSE (0) | 2022.06.23 |
| VARANDA (0) | 2022.06.22 |
| BANSEOK HOUSE (0) | 2022.06.21 |
| RESIDENCE EISENERZ (0) | 2022.06.17 |
마실와이드 | 등록번호 : 서울, 아03630 | 등록일자 : 2015년 03월 11일 | 마실와이드 | 발행ㆍ편집인 : 김명규 | 청소년보호책임자 : 최지희 | 발행소 : 서울시 마포구 월드컵로8길 45-8 1층 | 발행일자 : 매일



