
Hwadamjae locates at an alley of old market in Myeonmok-dong. The day when we first visited the site, people were bustling in the market street and was full of energy, the smell of many foods stimulated nose. Also, various colors of signboards were filling the street as various stores are standing along both side of the street. I came to think that it would be awkward to build a new multi-family house right next to the market road and that it would not go well with the local atmosphere. However, we’ve proceeded the plan by organizing experiences of site visit and deciding some directions. It was hoped that it would become a more neat and solid-faced building in the bustling old market roads, various floating populations, unorganized street landscapes and residential environments. In the process of setting the volume of the building and selecting the materials, these standards were maintained, and the constructed results tried to face the distance with a more neutral expression.
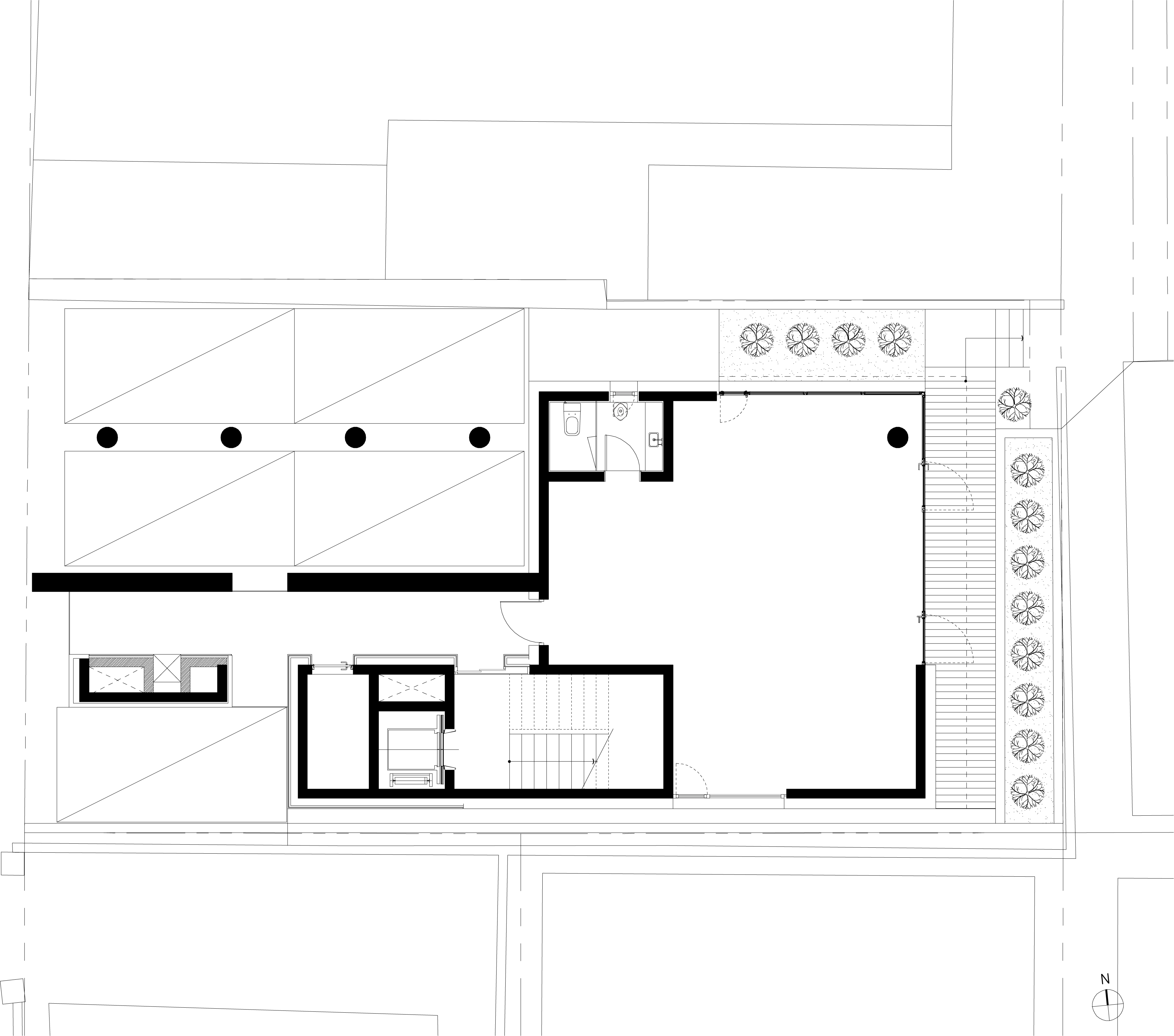
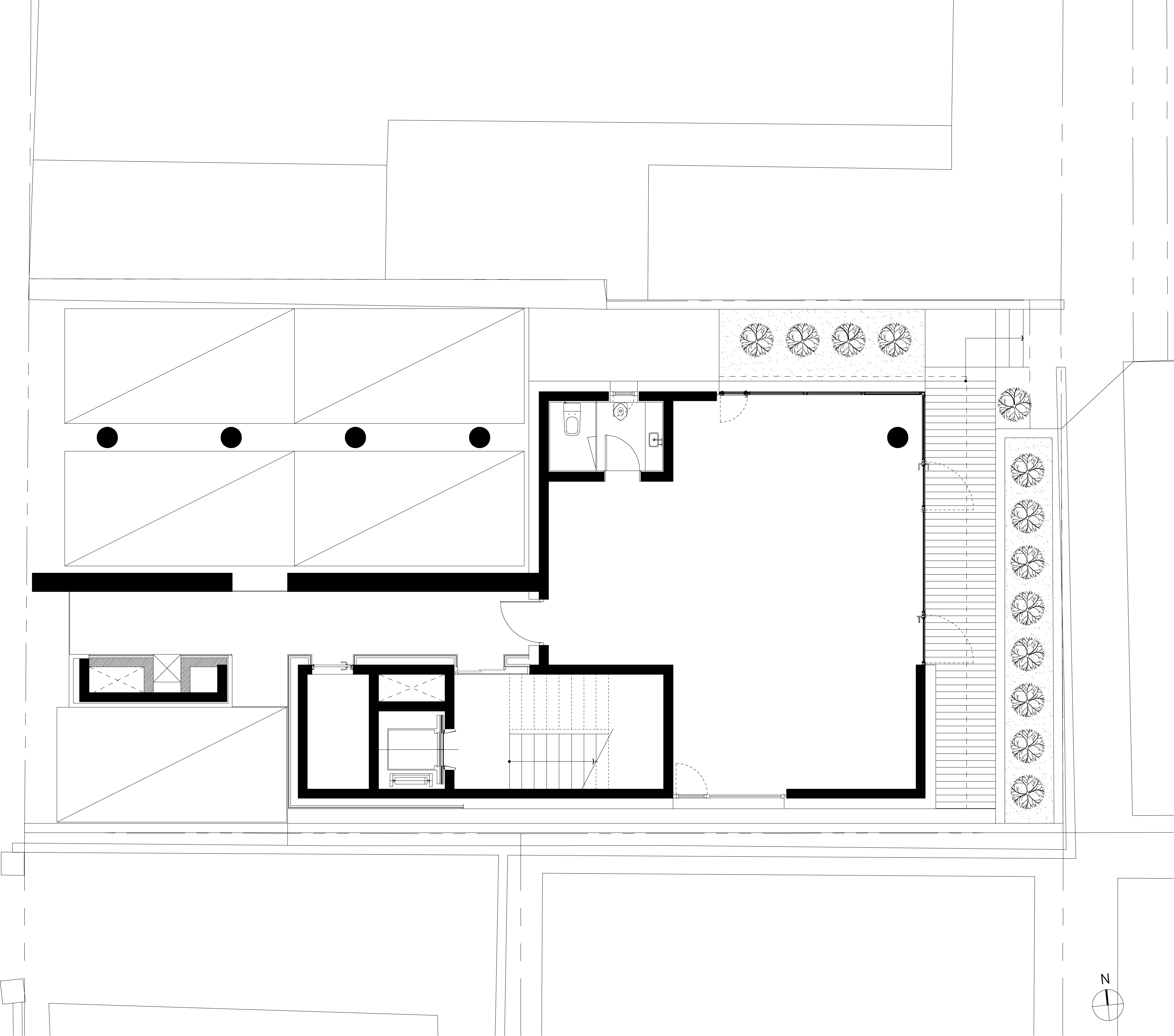
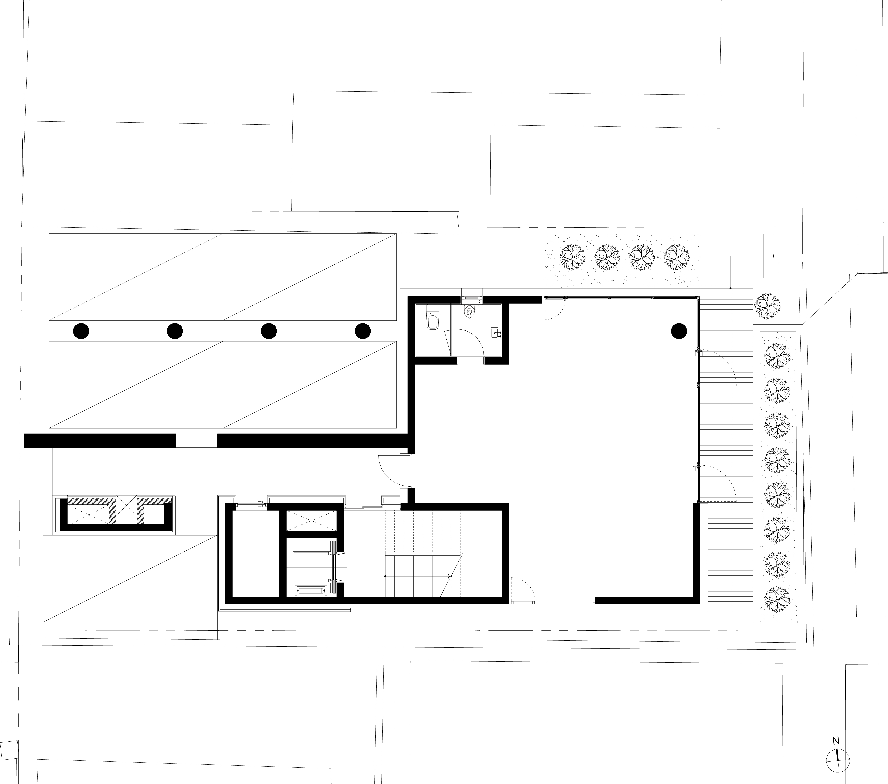
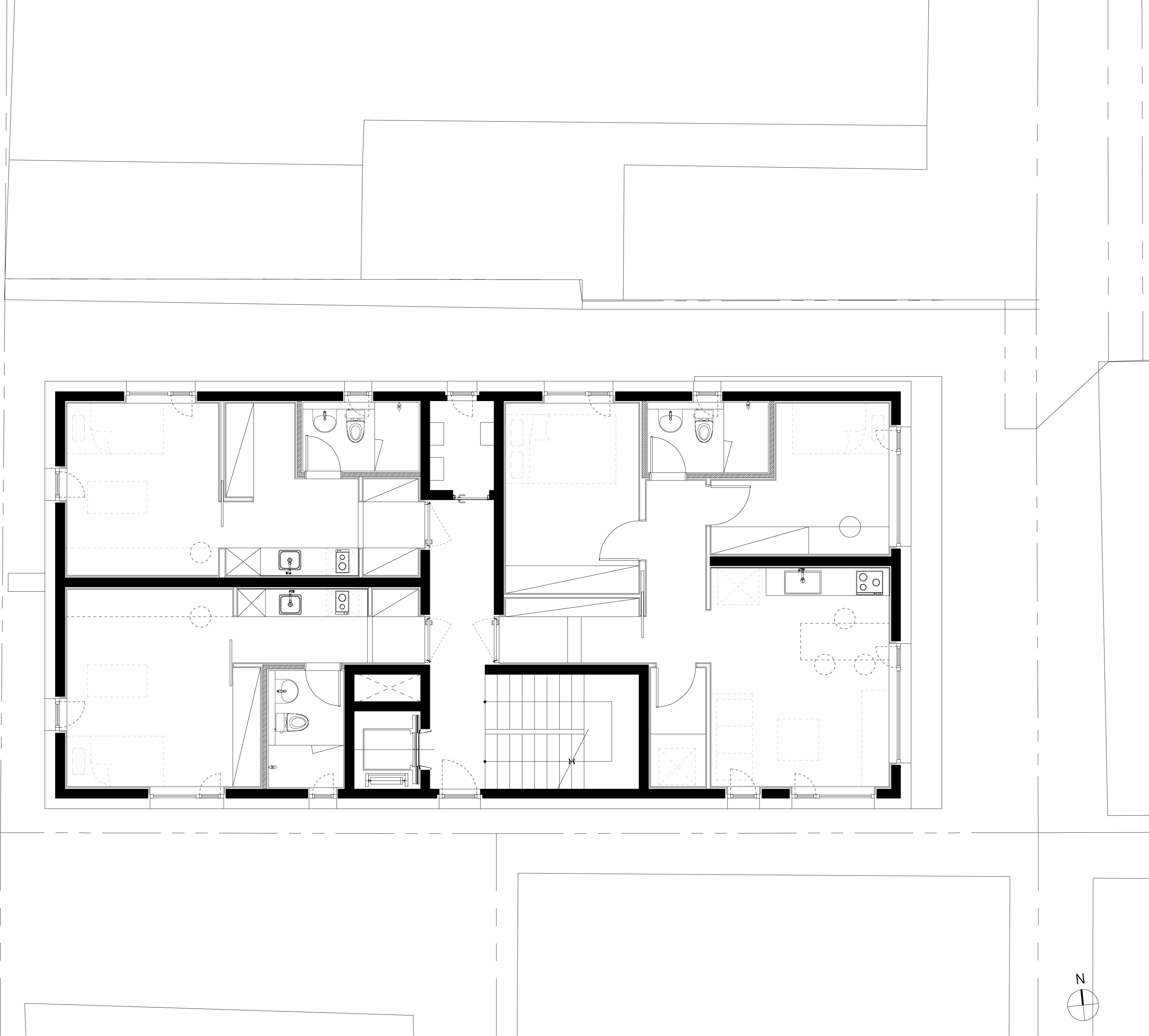
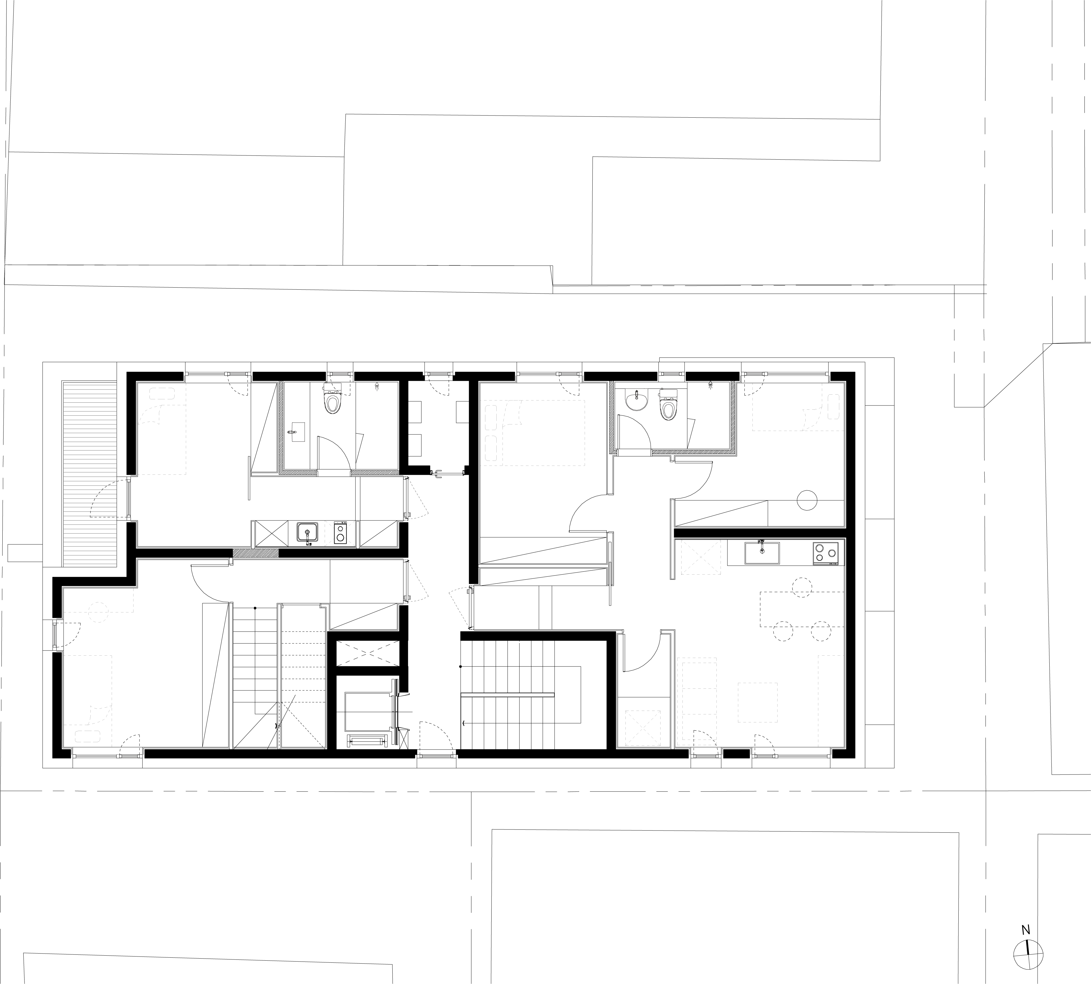
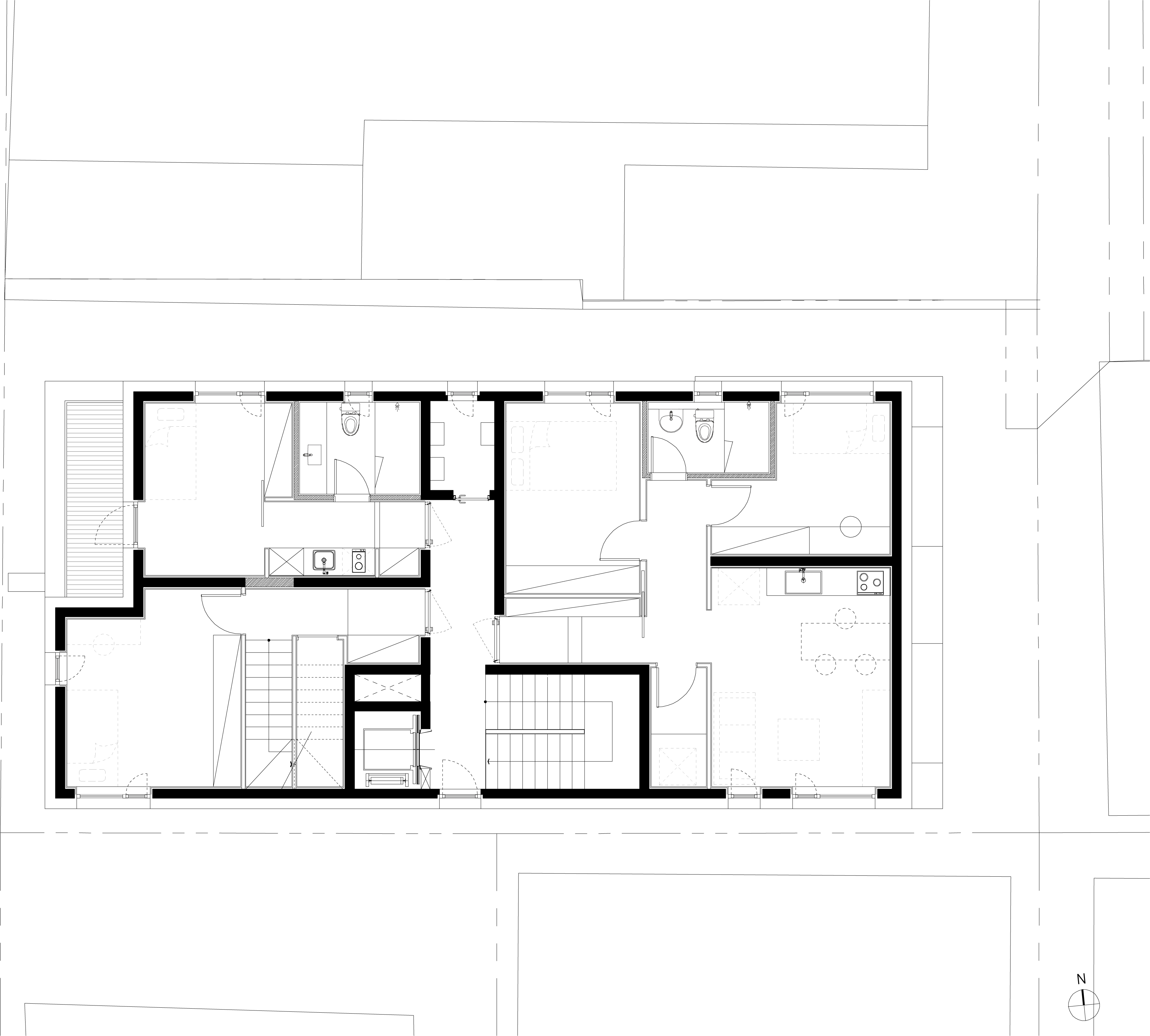
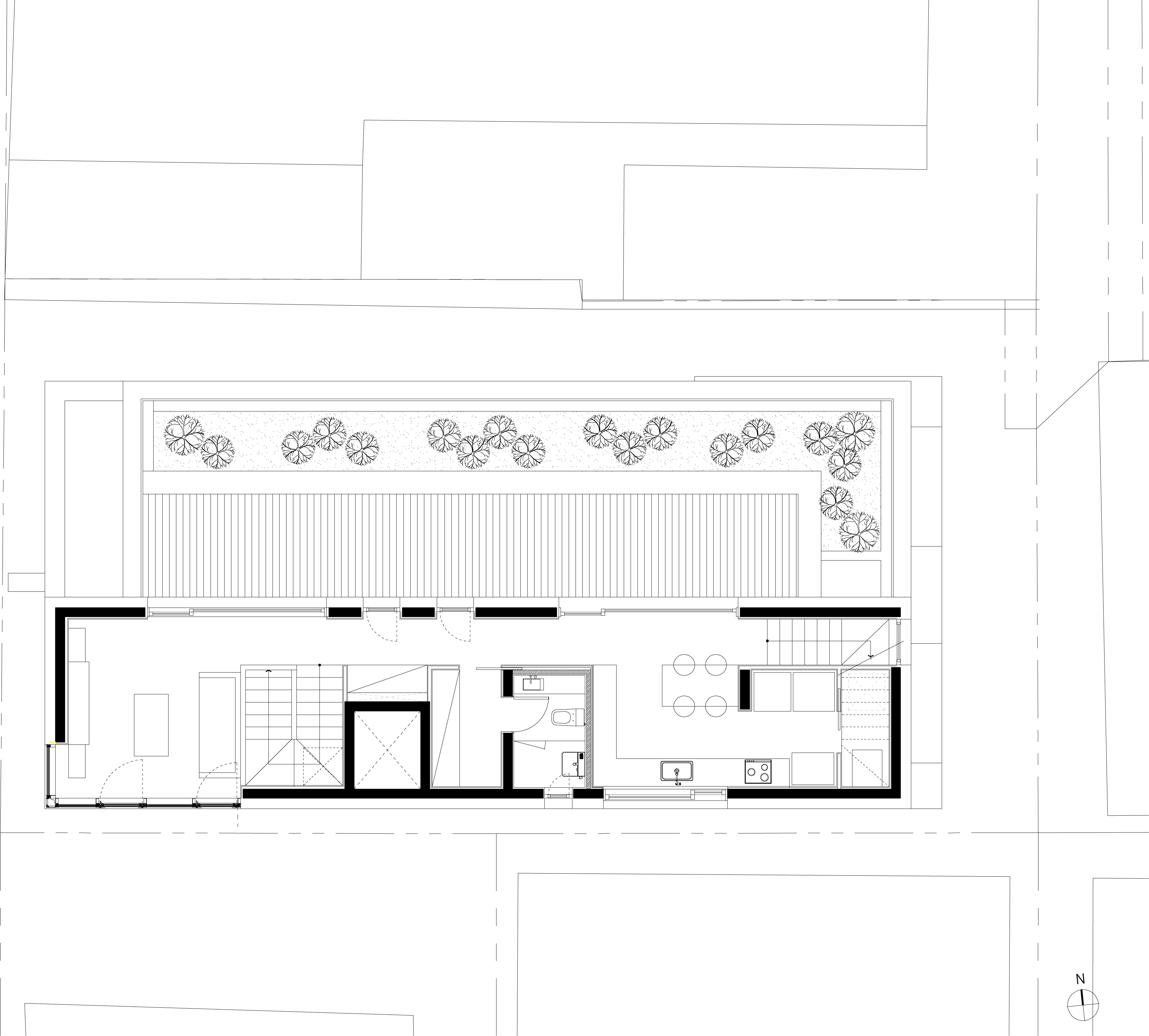
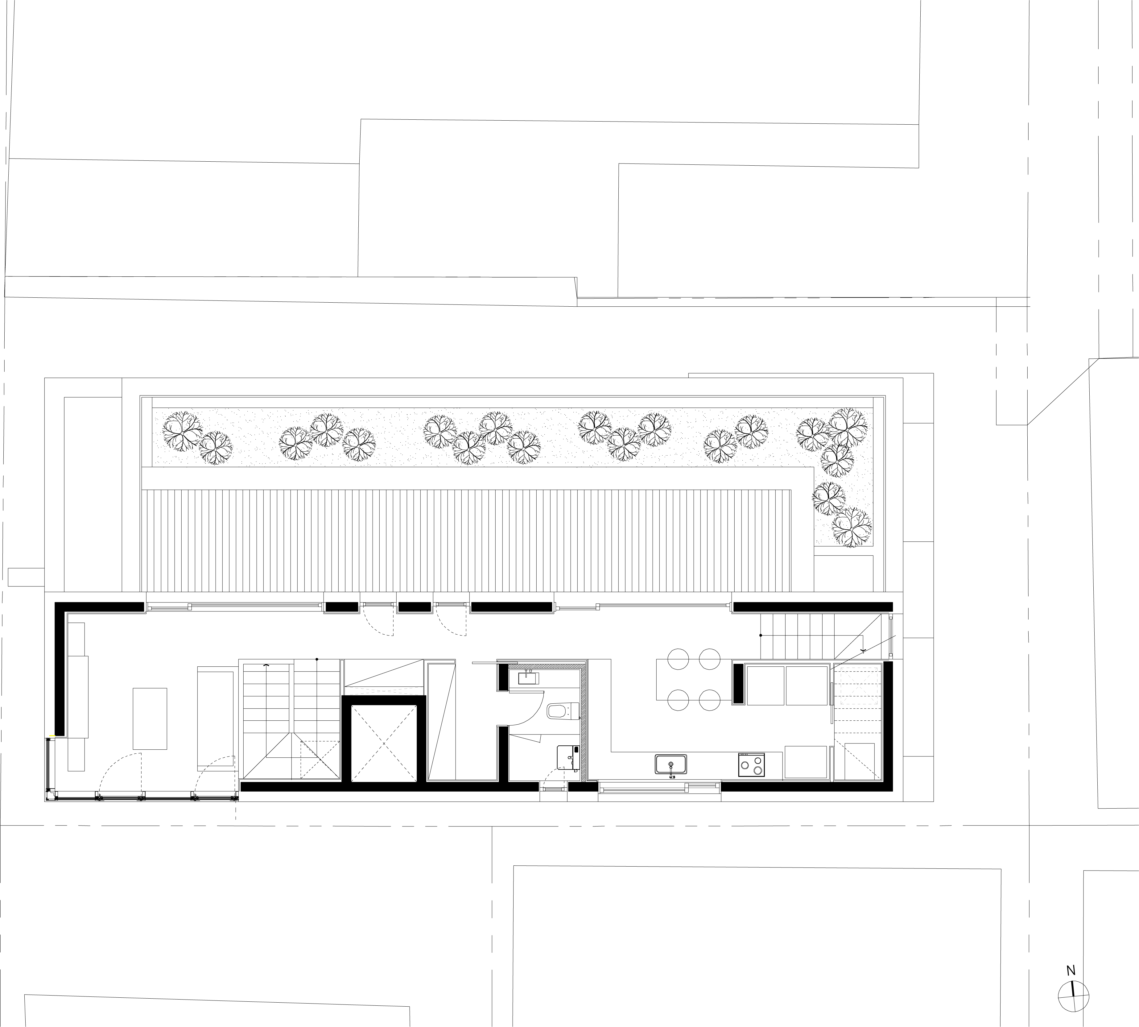
The land is a general residential area where height restrictions due to sunlight are applied. The shape of the land stretched in the east-west direction is a very disadvantageous condition in the height limit by sunlight. Therefore, to utilize sunlight restrictions appropriately the height of each level has adjusted, and long exterior terrace has created on the final level to the northern direction. On the first floor, a small parking lot in the form of piloti was planned on the west side facing the road, and a small neighborhood living facility was planned inside. Most of the piloti parking lots in the alleyway are left like shady or abandoned spaces, but Hwadamjae faces the street as an organized space by applying exposed concrete and wood finish. In order to overcome the disadvantages of neighborhood living facilities by going deep into the ground due to the parking lot plan, a secret space away from the noise of the street was prepared by planning a spacious deck and landscape.
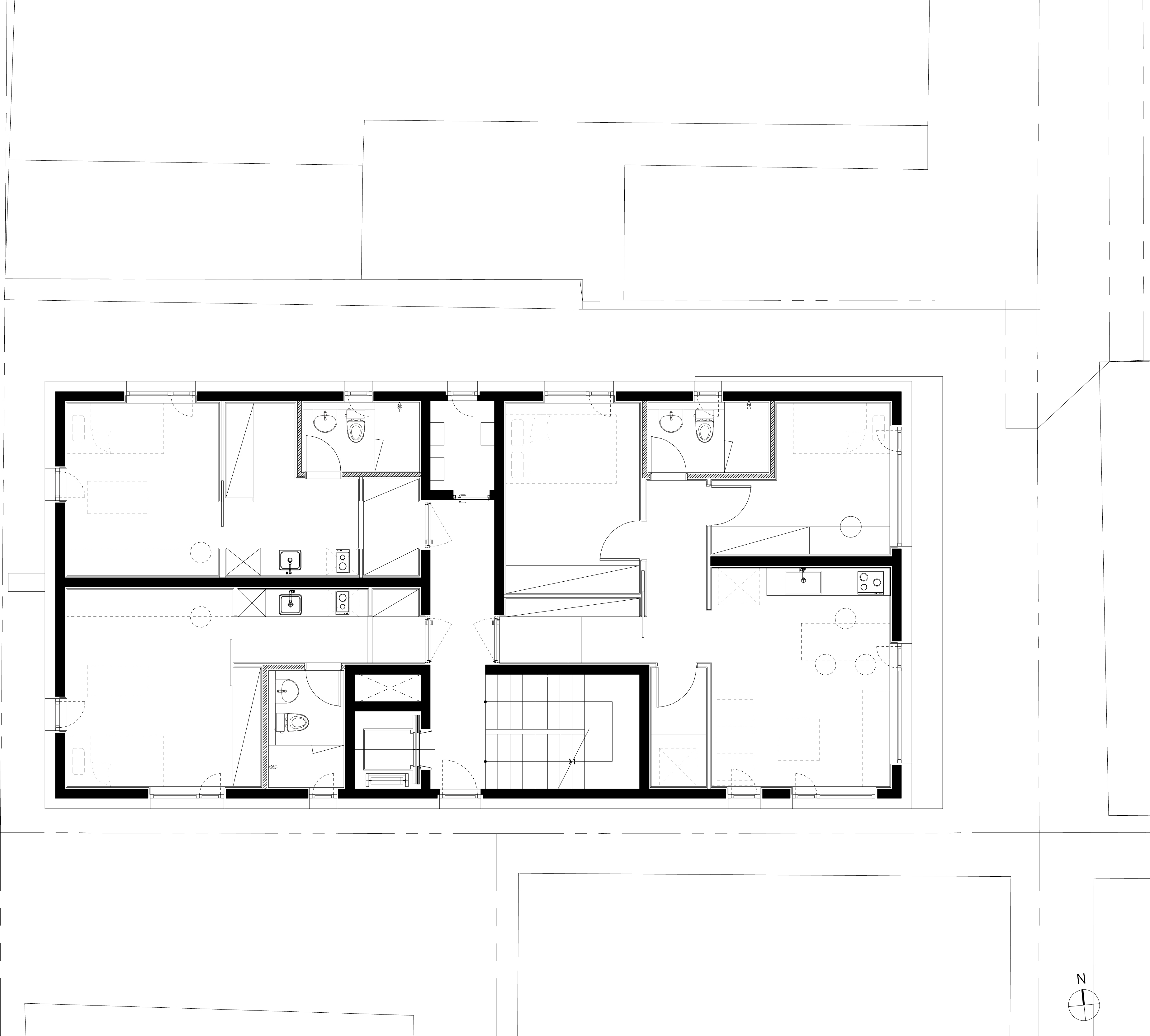
The upper part is composed of 1.5 rooms, 2 rooms, and a building owner unit etc. 1.5 rooms for single person: students and young office workers are often empty during the day, so they are placed on the front roadside where noise can occur. The second room, which is expected to have a resident family, is placed as a quiet space on the other side of the road behind 1.5 rooms. 1.5 rooms have a different inner plane depending on the location of the floor, allowing users to choose a place that suits their lifestyle. The generation of owners consists of middle-aged couples and daughters who are college students. Uniquely, the design was carried out after receiving a requirement that a separate bedroom was not required except for the daughter's bedroom. Middle-aged couples wanted to use open spaces such as living rooms and attic as bedrooms. Accordingly, the owner unit has planned as a double-decker structure with three floors. The daughter's bedroom, which wanted her own space independent from her parents, is on the third floor, the living room and the kitchen/restaurant are on the fourth floor, and the husband's playground and study attic are planned. In the face of a rectangular living room and a kitchen/restaurant, a rectangular outer terrace created by restrictions on sunlight was created and landscaped to filter out the surrounding gaze. Through this real-life arrangement, they sat in a living room or restaurant and had a long view of Yongmasan Mountain to the south, and short view of a terrace and landscape to the north at the same time.
The selection of finishing material for exterior was derived from chaos around the site, and it didn’t take long time for its construction method or color selection. We hoped it to be constructed as a background in the middle of the village’s landscape where many factors are placed with various forms and colors, therefore the entire has composed with organized vertical, horizontal volumes and monotonous finishing materials. By using exposed Concrete, concrete bricks, and curved bricks, which the shape is slightly different, but the property and color is similar, we made it to have a look which is monotonous but not boring.
Hwadamjae means a jar containing flowers and is the name of the building that the owner had been thinking about even before building the architecture. Despite the unfavorable conditions of the land and various malicious complaints, the building was completed safely with the firm will of the owner, and now it is making a good house to stay with and live with good tenants. I realize that people or buildings sometimes follow their names.

화담재(花壜齋)는 면목동의 오래된 시장 골목길에 위치하고 있다. 대지를 처음 찾아가던 날, 시장길에는 사람들이 북적이며 활기가 넘쳤고, 여러 음식 냄새들이 코를 자극했다. 또한, 여러 상점이 도로 양측으로 늘어서 있다 보니 형형색색의 간판들이 골목길을 채우고 있었다. 그 시장길 바로 옆에 새로운 다가구주택이 들어서는 것이 오히려 어색하고 동네 분위기와 어울리지 않을 것 같다는 생각을 하게 됐다. 하지만 대지 방문 때의 경험을 정리하고 몇 가지 방향을 정하여 계획을 진행했다. 오래된 시장길의 번잡함과 다양한 유동 인구, 정리되지 않은 거리의 풍경과 주거 환경에서 보다 단정하고 단단한 표정의 건축물로 자리 잡기를 바랬다. 건축물의 볼륨을 정하고 재료를 선정하는 과정에서 이러한 기준을 유지하며, 구축된 결과물은 보다 중성적인 표정으로 거리와 마주하고자 했다.
대지는 일반주거지역으로 일조에 의한 높이 제한이 적용되는 곳이다. 동서 방향으로 길게 늘어진 대지의 형상은 일조에 의한 높이 제한에서 굉장히 불리한 조건이다. 이에 일조 제한을 적절히 활용하기 위해 각층의 층고를 조절하고, 마지막 층에서는 북측 방향으로 외부 테라스를 길게 조성했다. 1층은 도로에 면한 서측에 피로티 형식의 소규모 주차장을 계획하고, 안으로는 작은 근린생활시설을 계획했다. 골목길 내 필로티 주차장들이 대부분 음습하거나 버려진 공간처럼 남겨져 있으나, 화담재는 노출 콘크리트와 목재 마감을 통해 정돈된 공간으로 보이도록 노력했다. 주차장 계획으로 인해 대지 깊숙이 들어가 근린생활시설로서의 불리함을 극복하기 위해 너른 데크와 조경으로 꾸며진 후정은 거리의 소음으로부터 멀어진 비밀스러운 공간이다.
상층부는 1.5룸, 2룸, 건축주 세대 등으로 구성되어 있다. 1인 세대의 학생이나 젊은 직장인들을 위한 1.5룸은 낮 시간대에 비어있는 경우가 많아, 소음이 발생할 수 있는 전면 도로 측에 배치했다. 상주하는 가족 구성이 있을 것으로 예상되는 2룸은 1.5룸 뒤켠인 도로 반대측의 조용한 공간으로 배치했다. 1.5룸은 해당층의 위치에 따라 내부 평면이 다르게 구성되어 사용자로 하여금 본인의 생활 방식과 어울리는 곳을 선택할 수 있게 되어 있다. 건축주 세대는 중년의 부부와 대학생인 딸로 가족이 구성되어 있다. 특이하게도 딸의 침실을 제외하고 별도의 침실이 필요하지 않다는 요구사항을 받고 설계를 진행했다. 중년의 부부는 거실이나 다락과 같이 오픈된 공간을 침실로 사용하고 싶어했다. 이에 건축주 세대는 3개 층에 이른 복층형의 구조로 계획했다. 부모님과 독립된 자신만의 공간을 원한 딸의 침실은 3층, 용마산을 온전히 바라볼 수 있는 공간에 거실과 주방/식당은 4층, 그 위에는 남편의 놀이터이자 서재인 다락을 계획했다. 장방형의 거실과 주방/식당에 면해서는 일조 제한에 의해 만들어진 장방형의 외부 테라스를 조성하고, 주변의 시선을 걸러주기 위해 조경을 둘렀다. 이러한 실별 배치를 통해 거실이나 식당에 앉아 남측으로는 용마산의 원경을, 북측으로는 테라스와 조경의 근경을 동시에 가지게 됐다.
외부의 마감재 선택은 상기에서도 언급했듯이 대지 주변의 혼돈에 기인하며, 그 구축방식이나 색상의 선택에 있어 오랜 시간이 걸리지 않았다. 여러 요소가 다양한 형태와 색상으로 자리 잡고 있는 동네의 풍경 가운데 배경으로 건축이 되기를 바랬으며, 이에 정리된 수직, 수평의 볼륨과 무채색의 마감재를 전체를 구성했다. 형상은 조금씩 다르지만, 그 물성이나 색감이 유사한 노출 콘크리트, 콘크리트 벽돌, 홈벽돌을 적용하여 단조로우면서 지루하지 않은 표정을 갖도록 했다.
‘화담재’는 꽃을 담는 항아리라는 뜻으로 건축주가 건물을 짓기 전부터 생각하고 있던 건물명이다. 대지의 불리한 조건과 갖은 악성 민원 가운데서도 건축주의 굳은 의지로 건축물은 무사히 완성되었고, 지금은 좋은 세입자들과 함께 머무르며 살아가기 좋은 집을 만들어가고 있다. 사람이든 건축물이든 때론 그 이름을 따라간다는 것을 새삼 깨닫는다.

















Architects SEOGA ARCHITECTS
Location Myeonmok-dong, Jungnang-gu, Seoul, Republic of Korea
Site area 265.29㎡
Building area 157.43㎡
Gross floor area 423.80㎡
Building scope 4F
Building to land ratio 59.34%
Floor area ratio 159.75%
Construction period 2020. 05 - 2021. 03
Completion 2021. 03
Principal architect Seunghyun Oh, Hyesun Park
Design team Sujin Oh, Sangho Jung
Structural engineer EUN STRUCTURE
Mechanical engineer SUNGJI ENGINEERING
Electrical engineer SUNGJI ENGINEERING
Construction JIUM CM
Photographer STUDIO TEXTURE ON TEXTURE
해당 프로젝트는 리빙즈, 디테일 04호에 게재되었습니다.
The project was published in LIVINGS, Detail 04
[BOOK] LIVINGS, Detail 리빙즈, 디테일 03호, 04호
<LIVINGS, Detail 리빙즈, 디테일 03호, 04호> 72개의 형태와 라이프스타일을 담은 주거공간, 국내외 “디테일한 주택 프로젝트”의 엮음 매월 국내외 다양한 건축물들을 소개해 온 <월간 건축문화>가 <
www.masilwide.com
'Architecture Project > Multifamily' 카테고리의 다른 글
| EO SYMPATHY (0) | 2022.06.28 |
|---|---|
| UIWANG HOUSING (0) | 2022.06.27 |
| IAN HOUSE (0) | 2022.06.23 |
| TH PALACE (0) | 2022.06.22 |
| VARANDA (0) | 2022.06.22 |
마실와이드 | 등록번호 : 서울, 아03630 | 등록일자 : 2015년 03월 11일 | 마실와이드 | 발행ㆍ편집인 : 김명규 | 청소년보호책임자 : 최지희 | 발행소 : 서울시 마포구 월드컵로8길 45-8 1층 | 발행일자 : 매일



