
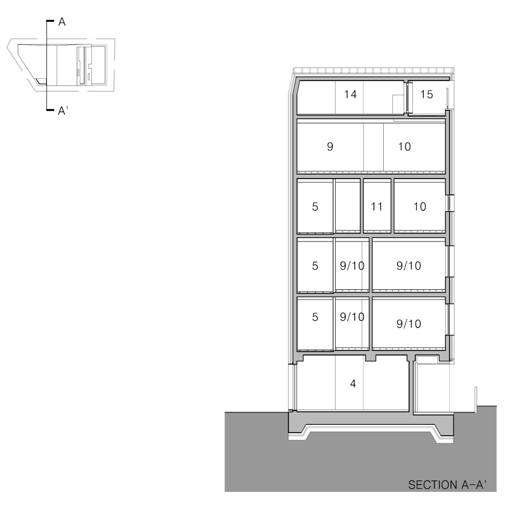
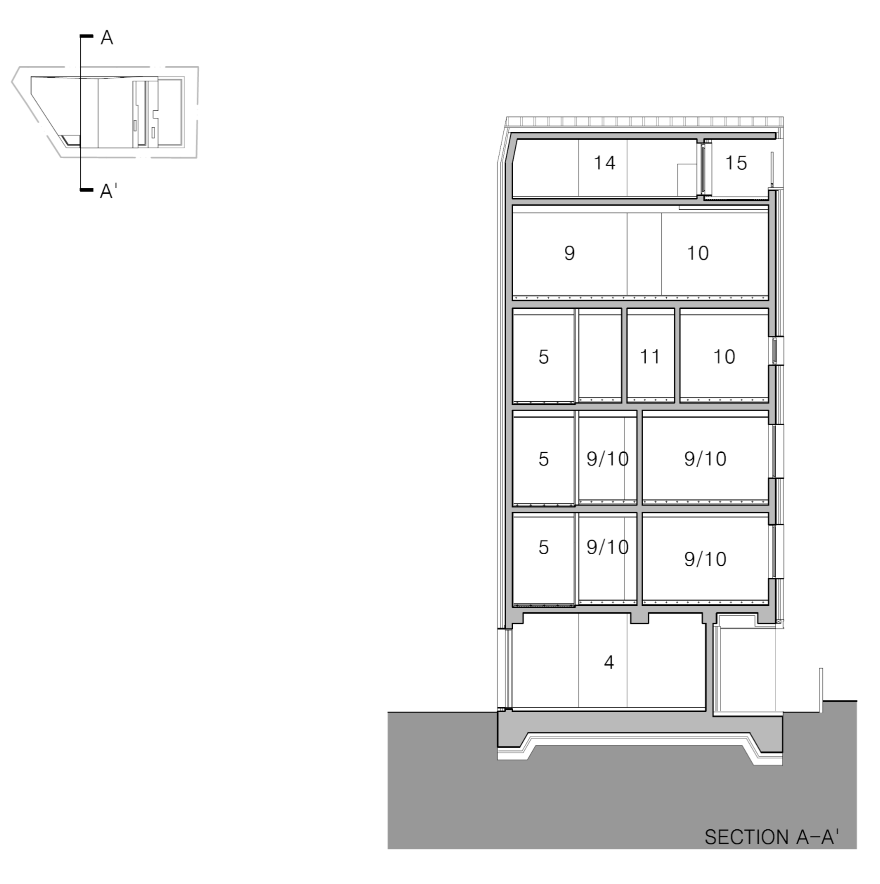
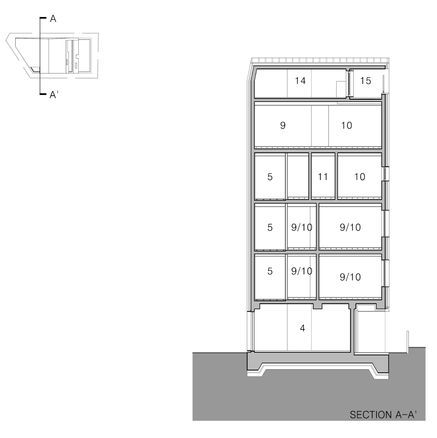
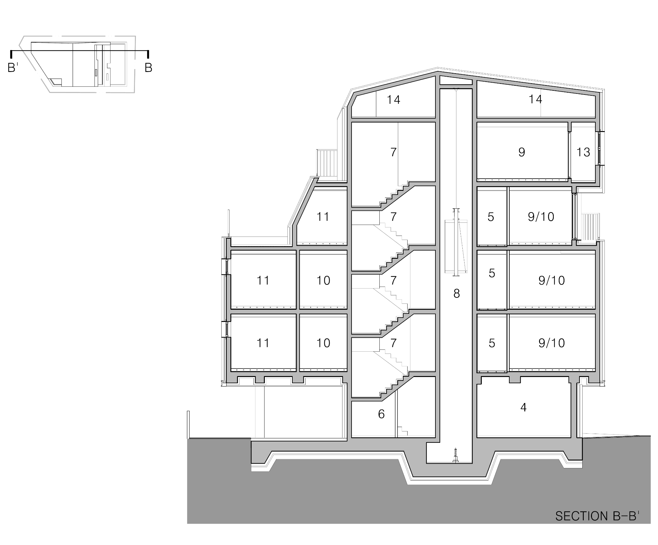
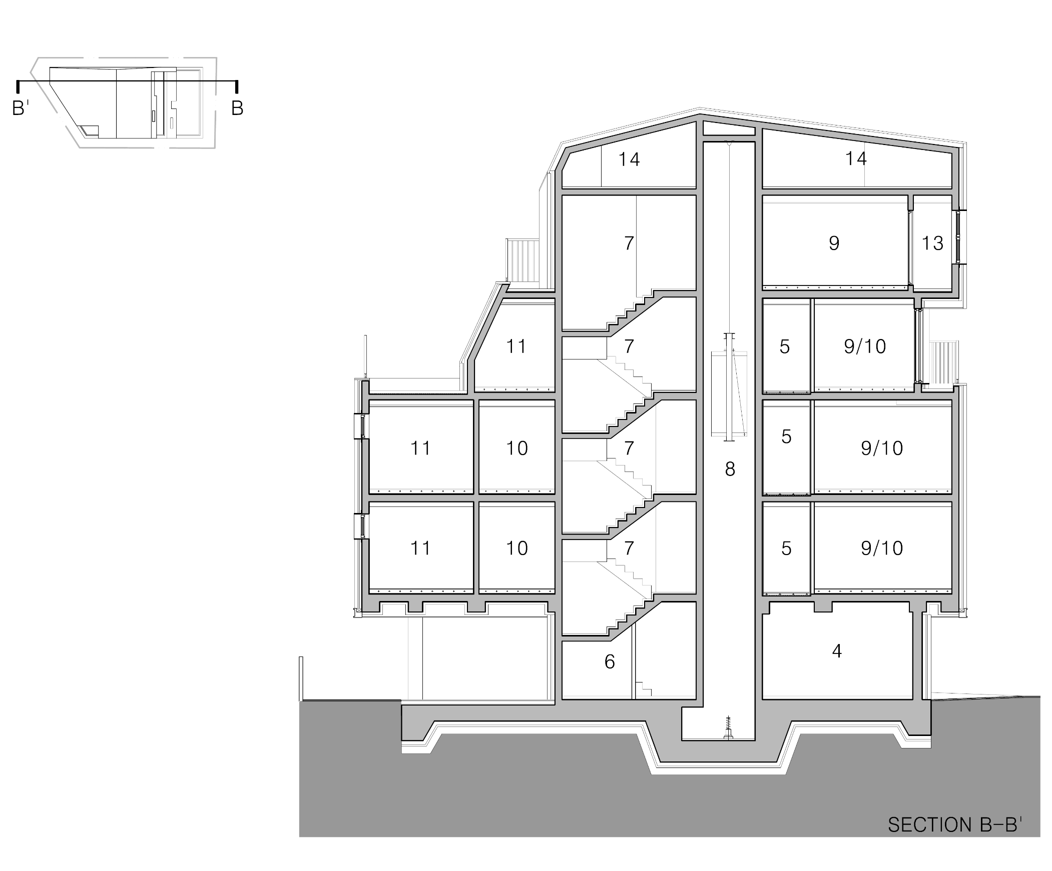
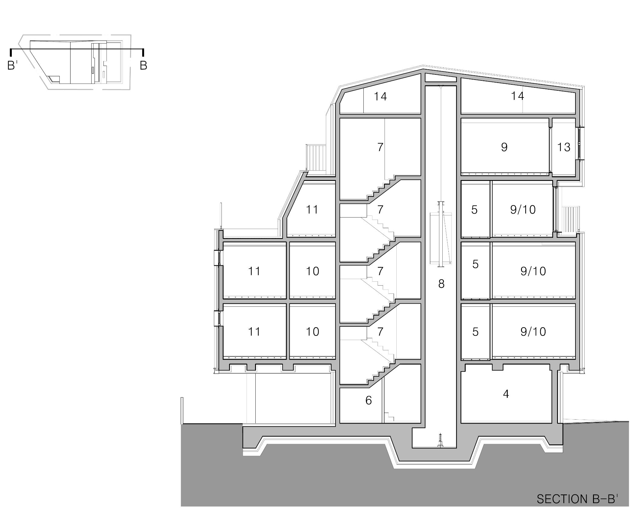
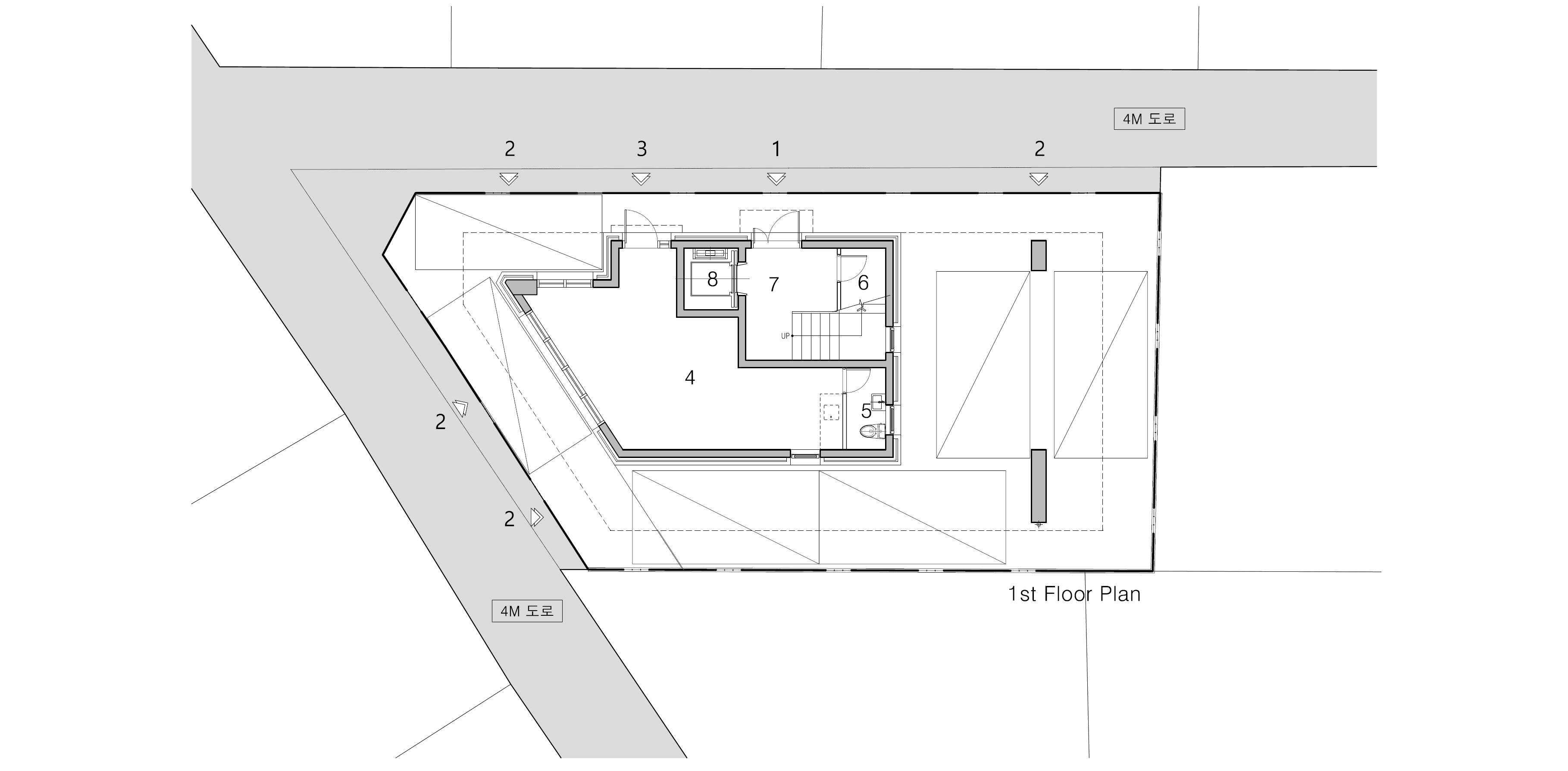
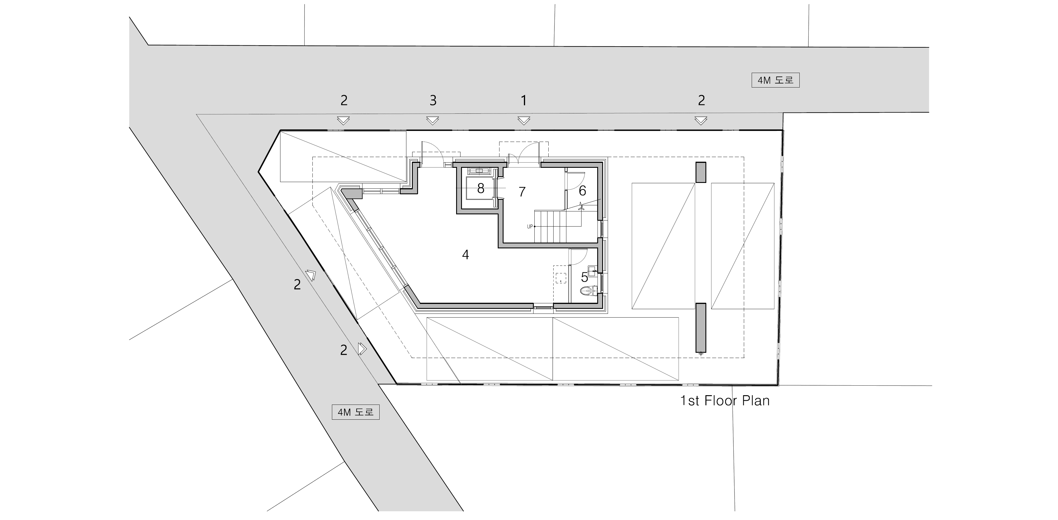
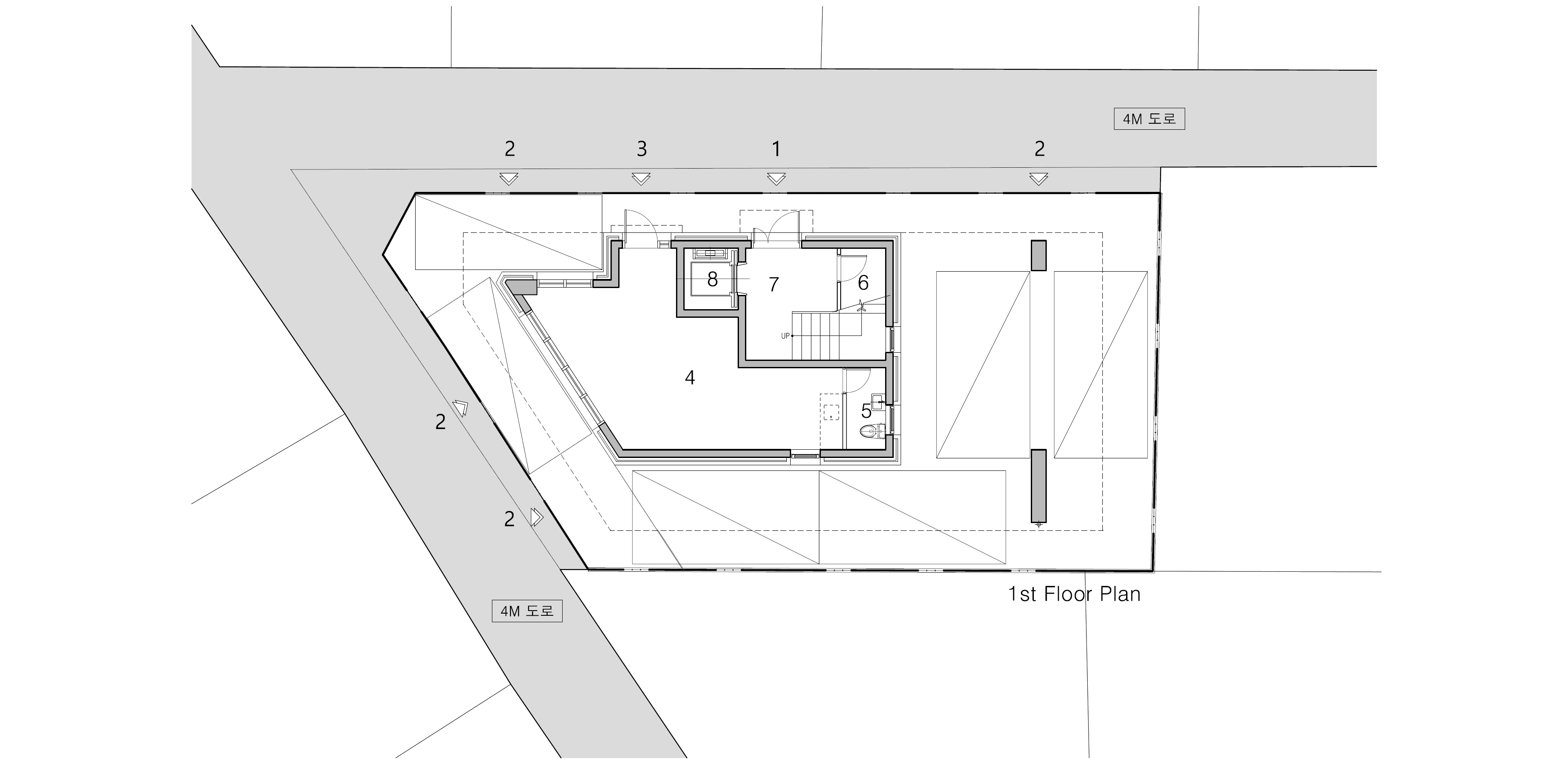
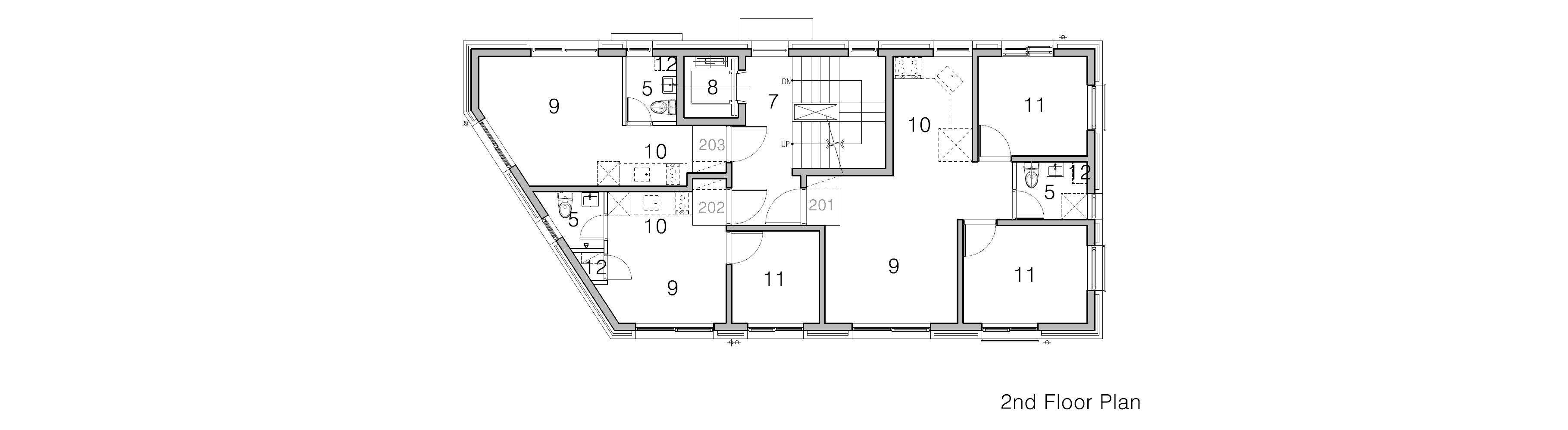
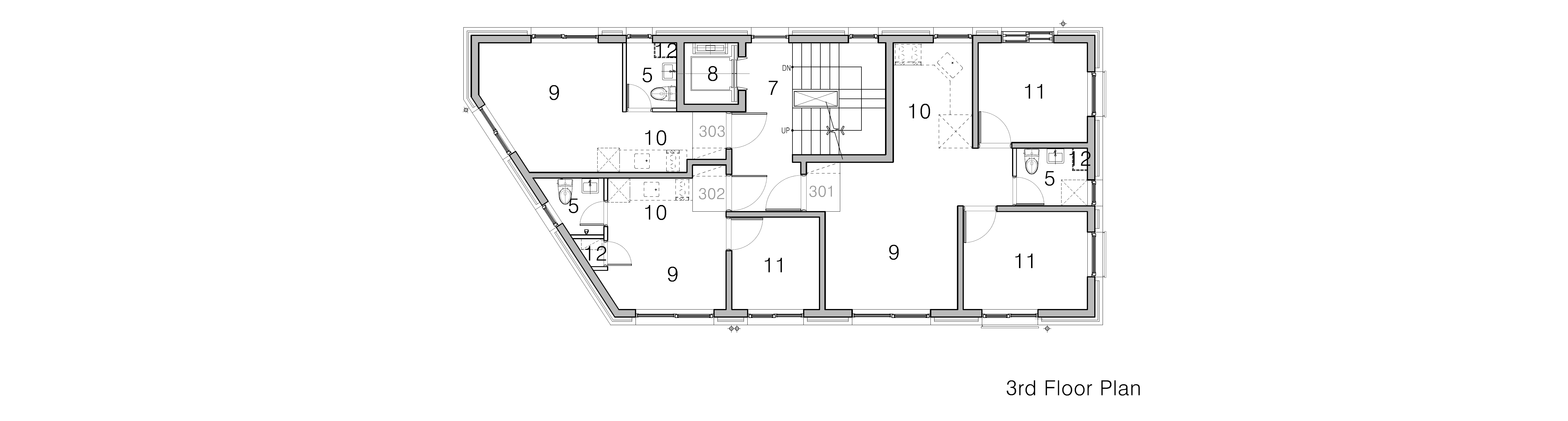
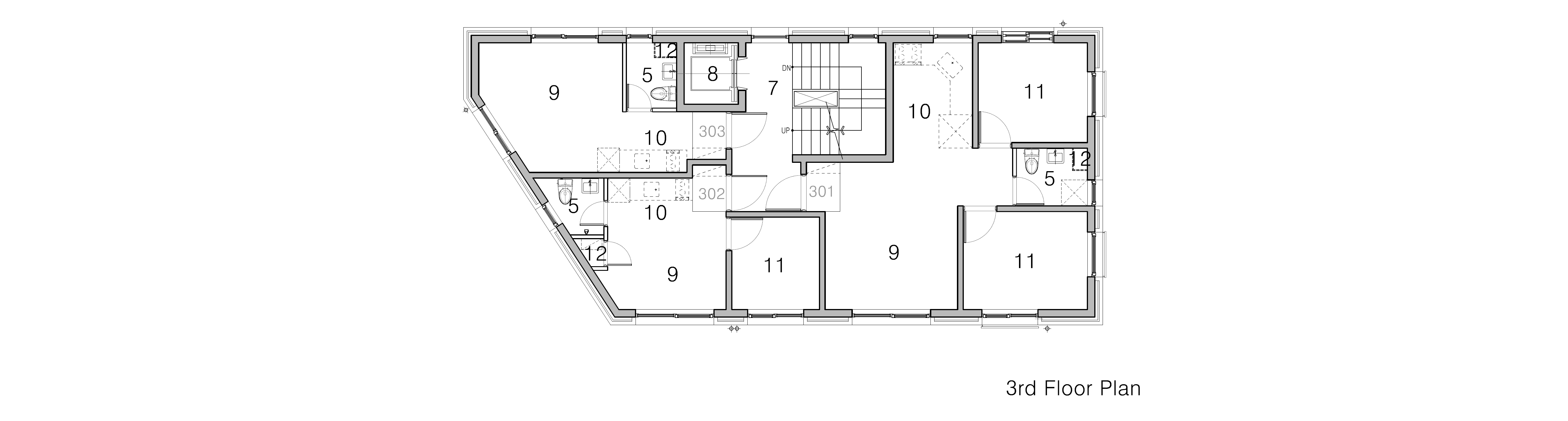
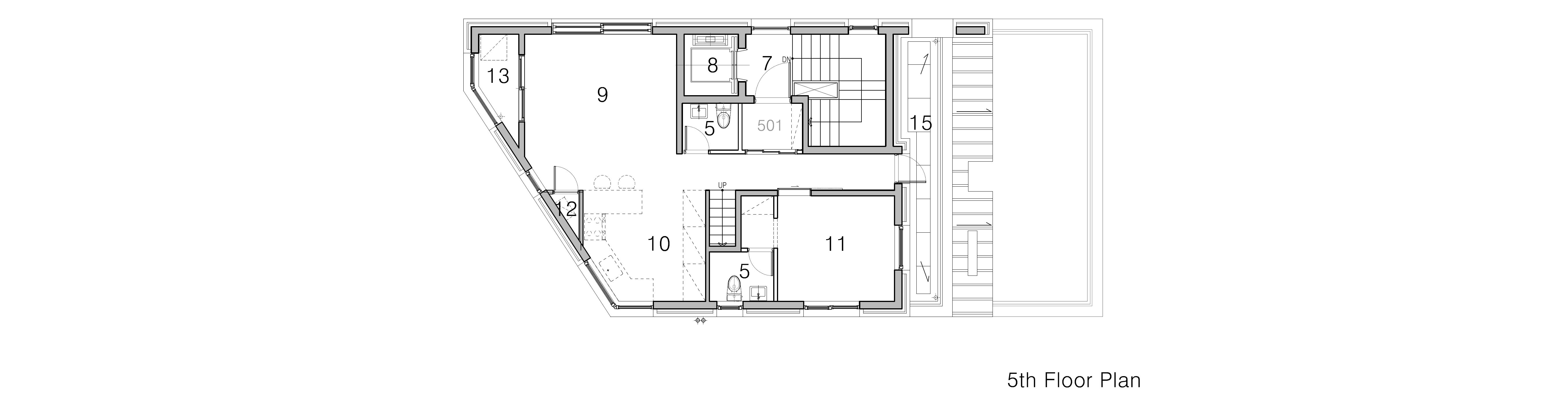
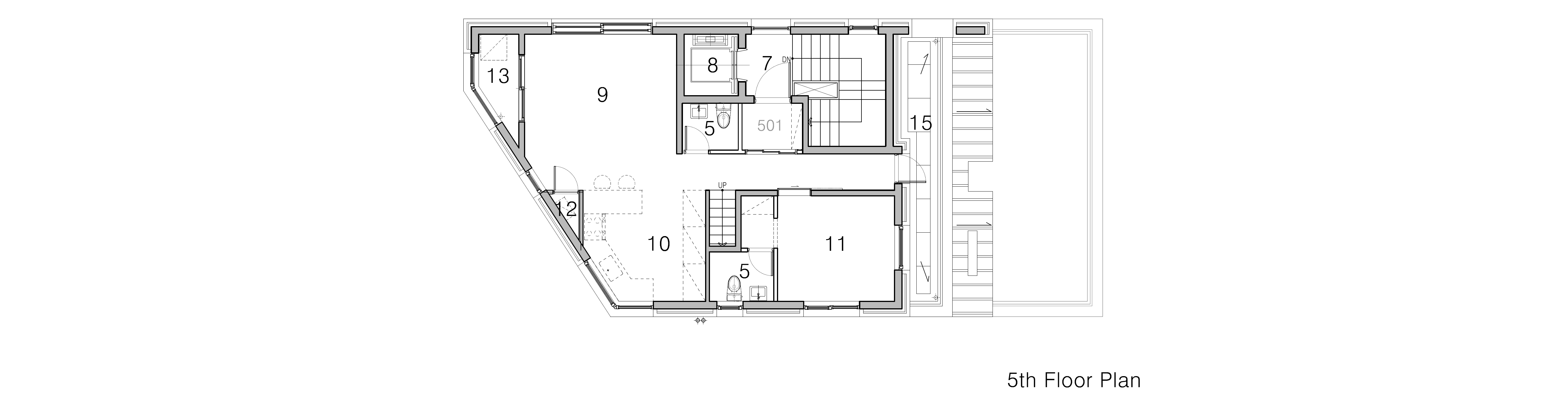
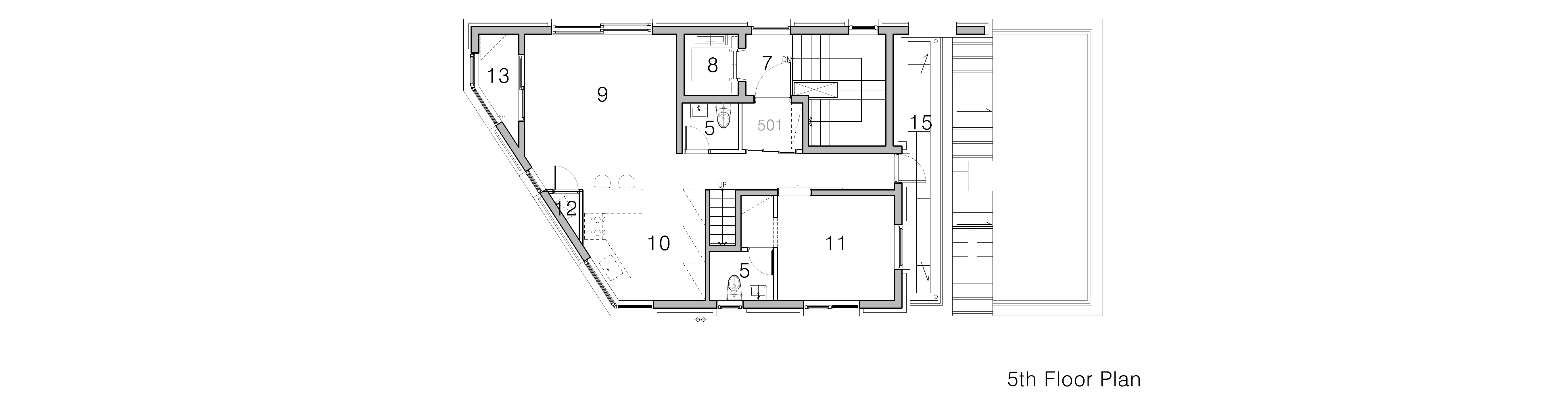
EO Sympathy is located in an old residential development areas in Junggok-dong, Gwangjin-gu, the house is a building that was formed by combining two small plots. It was designed with a commercial space on the first floor, and was planned as a multi-unit house where the client’s family and tenants can live. White bricks of facade were used as the exterior material, making it stand out more within the area among the old red brick houses, and the surrounding area’s image was attempted to be gently changed. The entrance of building is created the wood as if it have a warm energy. The terraces each were placed on the third, fourth and fifth floors to connect the both the inside and outside, and they can see as far as Yongmasan Mountain and the city center.

이오공감은 광진구 중곡동의 오래된 주택지에 위치한 함께 어울려 사는 공간이다. 2개의 필지 위에 세워진 하나의 건축물은 1층은 상가로 사용되는 다세대주택이며, 건축주의 가족도 함께 거주하는 공간이다. 동네 주변의 오래된 붉은 벽돌집 사이에 있는 하얀 벽돌의 외관은 돋보이며, 잔잔하기만 했던 동네 풍경 속 변화를 꾀한다. 목재 느낌의 단단하면서도 따스한 기운의 입구는 골목을 밝게 만든다. 내·외부 공간을 연결하는 3층, 4층, 5층마다 있는 테라스는 멀리 용마산과 도심을 바라볼 수 있는 공간이다.
















Architects ISMORE & CREATIVE ARCHITECT
Location Junggokdong, Gwangjin-gu, Seoul, Republic of Korea
Site area 183.81㎡
Building area 110.22㎡
Gross floor area 365.92㎡
Building to land ratio 59.96%
Floor area ratio 199.08%
Building scope 5F
Construction period 2020. 07 - 2021. 01
Completion 2021. 01
Principal architect Younga Mun
Project architect Younga Mun
Design team Sora Kim, Dongjun Jin, Seonjeong Kim
Structural engineer CH Structural engineer Co.Ltd
Mechanical engineer KUNCHANG Engineering Co.,Ltd.
Electrical engineer KUNCHANG Engineering Co.,Ltd.
Construction SEYON Egineering & Construction Co., Ltd.
Photographer Changmook Kim
해당 프로젝트는 리빙즈, 디테일 04호에 게재되었습니다.
The project was published in LIVINGS, Detail 04
[BOOK] LIVINGS, Detail 리빙즈, 디테일 03호, 04호
<LIVINGS, Detail 리빙즈, 디테일 03호, 04호> 72개의 형태와 라이프스타일을 담은 주거공간, 국내외 “디테일한 주택 프로젝트”의 엮음 매월 국내외 다양한 건축물들을 소개해 온 <월간 건축문화>가 <
www.masilwide.com
'Architecture Project > Multifamily' 카테고리의 다른 글
| SCH | HOUSING AN DEN SCHICHTGRÜNDEN (0) | 2022.06.30 |
|---|---|
| GRANVILLE 1500 (0) | 2022.06.29 |
| UIWANG HOUSING (0) | 2022.06.27 |
| HWADAMJAE (0) | 2022.06.24 |
| IAN HOUSE (0) | 2022.06.23 |
마실와이드 | 등록번호 : 서울, 아03630 | 등록일자 : 2015년 03월 11일 | 마실와이드 | 발행ㆍ편집인 : 김명규 | 청소년보호책임자 : 최지희 | 발행소 : 서울시 마포구 월드컵로8길 45-8 1층 | 발행일자 : 매일



