
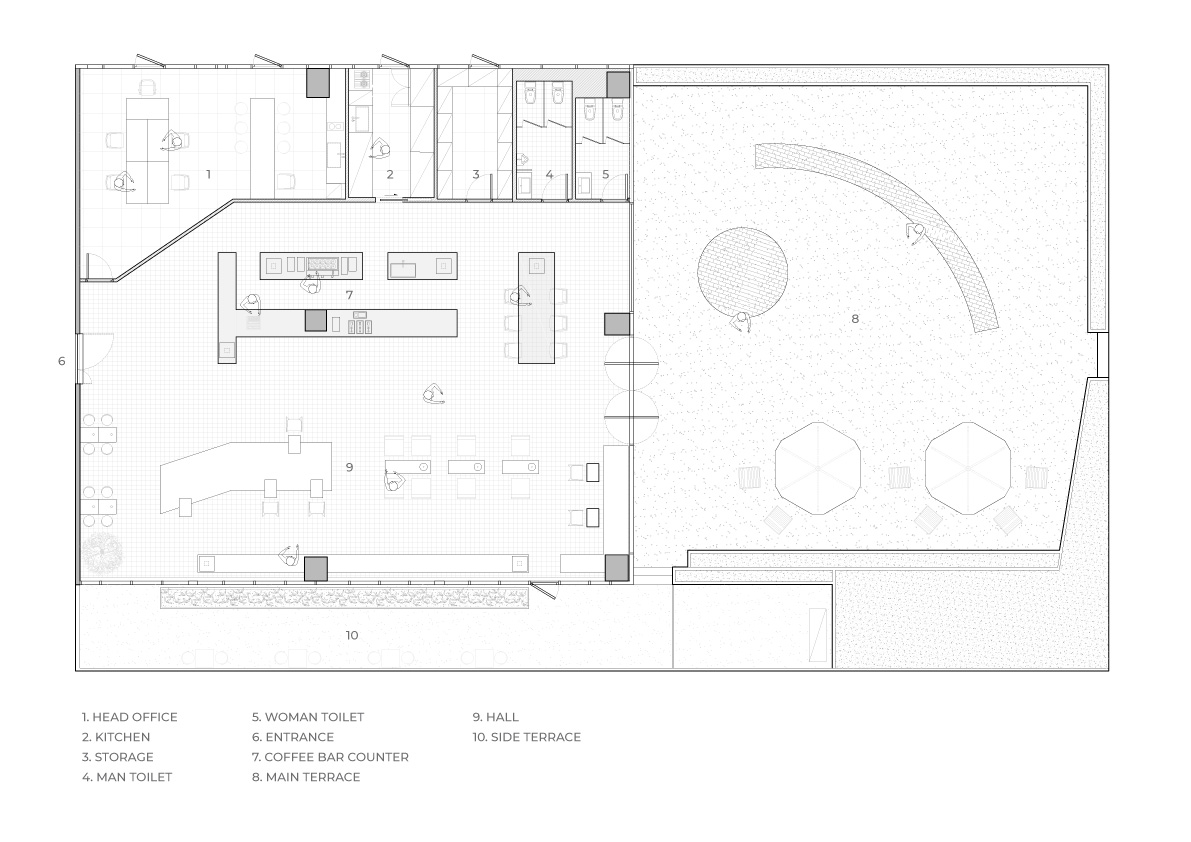
면적이 각각 297㎡인 실내와 외부 테라스로 이루어진 이 공간은 높은 건물들 사이에 자리한다. 해 질 무렵 노을이 공간을 둘러싸고 있는 건물들 사이로 내비치는 절경을 선사하는 동안 실내 공간은 모노톤의 테라스로 바뀌게 된다. 두 면의 창문이 꺾이면서 외부 테라스 영역으로 연결되는 이 공간은 내부와 외부가 서로 다른 공간으로 해석되지 않아야 한다는 생각에서 설계가 시작되었다. 정면의 굵고 네모진 기둥을 중심으로 기다란 바 카운터의 구조로 시작하는 매스가 공간감을 형성하고 있으며, 천장-기둥-바 카운터-바닥으로 이어지는 하나의 시퀀스가 공간의 무게중심을 잡아준다.

This space, which consists of an indoor space and an external terrace with an area of 29㎡, is located between tall buildings. At sunset, the interior space is transformed into a monotonous terrace while the sunset offers a superb view between the buildings surrounding the space. The design began with the idea that this space, which connects to the outer terrace area as the windows on both sides are bent, should not be interpreted as different spaces on the inside and outside. The mass, which begins with the structure of a long bar counter around the thick and square pillar of the front, forms a sense of space, and a sequence leading to the ceiling-column-bar-counter-floor holds the center of gravity of the space.








Design YOLLLLEY STUDIO
Construction YOLLLLEY STUDIO
Location 24, Jeongbalsan-ro, Ilsandong-gu, Goyang-si, Gyeonggi-do, Republic of Korea
Building area Indoor 297㎡ / Outdoor 300㎡
Building scope Inside and outside the 4th floor
Floor Natural marble 100×100 Stone tile
Wall Stone paint
Celling Water paint
Photographer Younjoon Choi
'Interior Project > Cafe&Restaurant' 카테고리의 다른 글
| MOSP (0) | 2022.04.22 |
|---|---|
| JISU Speciality Caffee Shop (0) | 2022.04.21 |
| eert mangwon (0) | 2022.04.19 |
| SSAP COFFEE (0) | 2022.04.14 |
| OPNNG (0) | 2022.04.13 |
마실와이드 | 등록번호 : 서울, 아03630 | 등록일자 : 2015년 03월 11일 | 마실와이드 | 발행ㆍ편집인 : 김명규 | 청소년보호책임자 : 최지희 | 발행소 : 서울시 마포구 월드컵로8길 45-8 1층 | 발행일자 : 매일



