
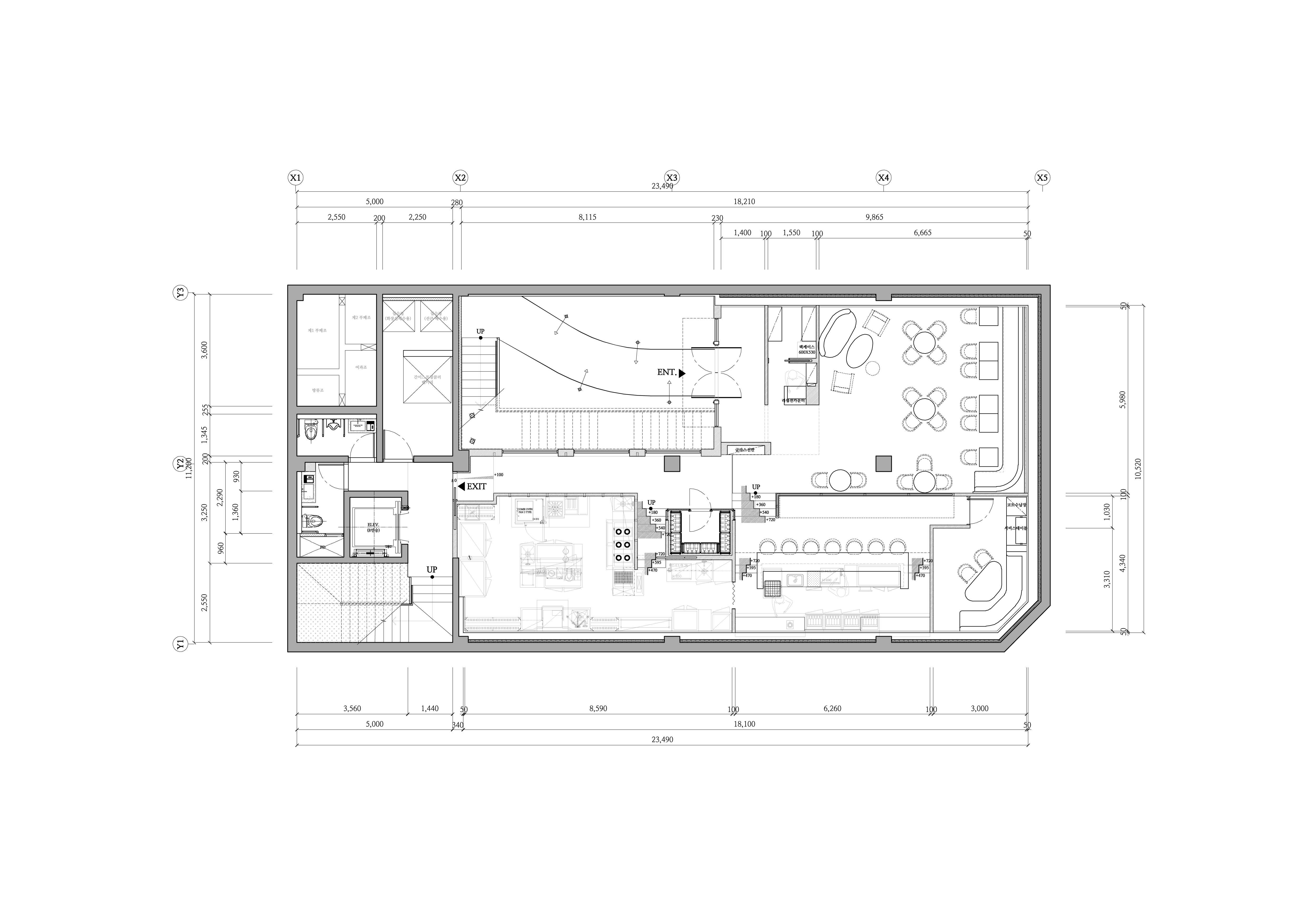
오프닝(OPNNG) 은 표면적으로는 와인을 즐 기는 바(Bar)다. 그리고 좀 더 깊이 그 의미를 파고 든다면 그 곳은 단순히 바(Bar) 로서의 표면적인 의미 너머의 본질을 가지고 있다. 오프닝(OPNNG) 은 우리의 도처에 깔려 있는 짧은 시간 열광하고 소모되는 것들이 아닌 깊고 오랜 시간을 통해 만들어지는 것들을 위한 곳이다. 다른 말로 표현하자면 좋은 취향을 사람들과 공유하고 함께 즐기는 공간이다. 그렇기 때문에 그 곳의 메인 주류는 바로 와인이며 아티스트가 자신의 열정과 영혼을 불어 넣은 작품이 공간 곳곳에 자리하고 있다. 그리고 오랜 시간 대중들의 사랑을 독차지 하고 있는 가구와 조명들이 함께 하고 있으며 소리와 맛 또한 진심을 다해 공간을 풍성하게 채워주고 있다.

The opnng is ostensibly a wine bar, and if you dig a little deeper into its meaning, the place has an essence that goes beyond just the surface meaning of the bar opnng is for things that are created through deep, long periods of time, not short periods of enthusiasm and exhaustion that lie all over us In other words, it's a place where you can share and enjoy good taste with people So, the mainstream of the restaurant is wine, and the artist is himself There are works of passion and soul throughout the space And furniture and lights that have been loved by the public for a long time are together, and the sound and taste are also filling the space with sincerity.








Design BY SEOG BE SEOG
Location 22, Dosan-daero 34-gil, Gangnam-gu, Seoul, Republic of Korea
Gross floor area 206.44㎡
Completion 2021
Principal architect Junwoong Seog
Project architect 신영성, 김미영
Construction WYCOFF
Photographer Donggyu Kim
'Interior Project > Cafe&Restaurant' 카테고리의 다른 글
| eert mangwon (0) | 2022.04.19 |
|---|---|
| SSAP COFFEE (0) | 2022.04.14 |
| SCRAB (0) | 2022.04.12 |
| BRIX COFFEE (0) | 2022.04.08 |
| Hannam Berg Rooftop Cafe (0) | 2022.04.05 |
마실와이드 | 등록번호 : 서울, 아03630 | 등록일자 : 2015년 03월 11일 | 마실와이드 | 발행ㆍ편집인 : 김명규 | 청소년보호책임자 : 최지희 | 발행소 : 서울시 마포구 월드컵로8길 45-8 1층 | 발행일자 : 매일



