
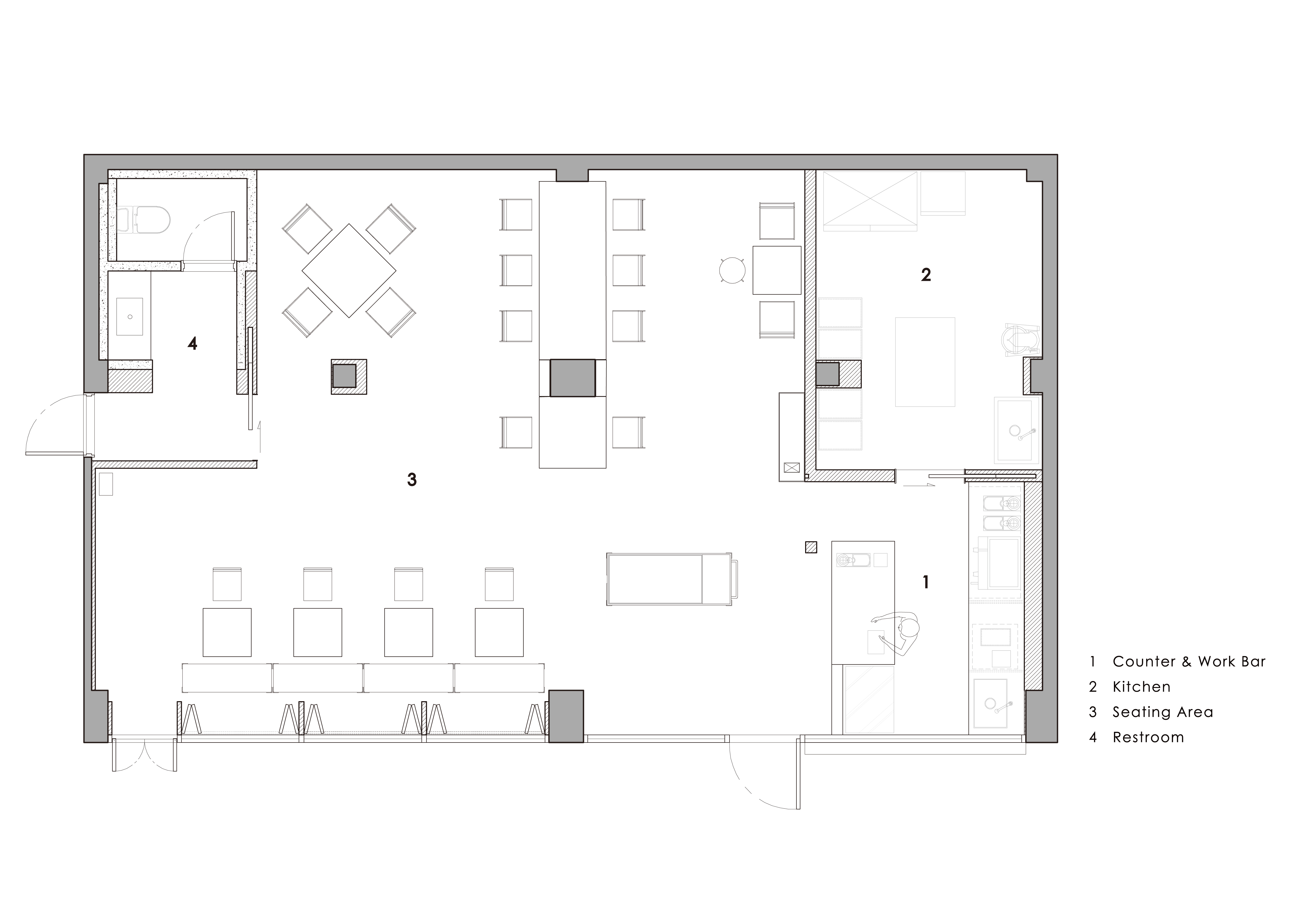
내부는 여유로운 배치, 인위적인 장식을 최대한 배제하며 간결한 형태와 물성이 가지는 자연스러운 변화가 느껴지는 공간을 표현하려 했다. 따뜻한 우드와 금속이 가지는 정교한 라인에서 느껴지는 시각적인 편안함과 함께 시크함을 동시에 주어 양면적이면서 조화로운 공간 분위기를 연출했고, 레드컬러 포인트의 아크릴조명과 수납장, 의자와 벤치 및 베이커리 쇼케이스, 하물며 사소한 전기회로가 지나가는 레이스웨이(전기설비라인)까지 공간과 유기적인 관계형성이 되게 제작하여 힙한 감성과 로컬의 주민들을 위한 과거 오래전부터 장소가 가지고 있는 익숙함과 편안함이 공존하도록 했다. 외부는 오래된 상가주택의 적벽돌과 어우러지면서 가로로 긴 직사각형의 공간이 가지는 파사드의 확장감이 느껴지도록 정갈한 형태와 시간이 지날수록 깊이감이 더해지는 우드와 금속소재로 시각적인 분리가 되어 보이게 마감했다.

The interior tried to express a space where we could feel the natural change of simple form and physical properties, excluding relaxed arrangements and artificial decorations as much as possible. The visual comfort and chicness of warm wood and metal lines create a two-sided and harmonious space atmosphere. Red-colored point acrylic lighting & storage, chairs, benches, and bakery showcases, as well as raceways (electricity lines) through which small electric circuits pass, creating a hip sensibility and familiarity. The exterior is made to look visually separated with wood and metal materials that add depth over time so that you can feel the expansion of the fa드의ade of the horizontal rectangular space as it blends with the red bricks of the old commercial house.










Design design by 83
Location Daegongwon-ro 207beon-gil, Nam-gu, Ulsan, Republic of Korea
Building area 96㎡
Completion 2022
Principal architect Minsuk Kim, Donghyun Nam, Chanun Park
Project architect Suhyun Jo
Construction Sehyun Lee
Photographer Donggyu Kim
'Interior Project > Cafe&Restaurant' 카테고리의 다른 글
| ohvenu cafe (0) | 2022.04.20 |
|---|---|
| eert mangwon (0) | 2022.04.19 |
| OPNNG (0) | 2022.04.13 |
| SCRAB (0) | 2022.04.12 |
| BRIX COFFEE (0) | 2022.04.08 |
마실와이드 | 등록번호 : 서울, 아03630 | 등록일자 : 2015년 03월 11일 | 마실와이드 | 발행ㆍ편집인 : 김명규 | 청소년보호책임자 : 최지희 | 발행소 : 서울시 마포구 월드컵로8길 45-8 1층 | 발행일자 : 매일



