
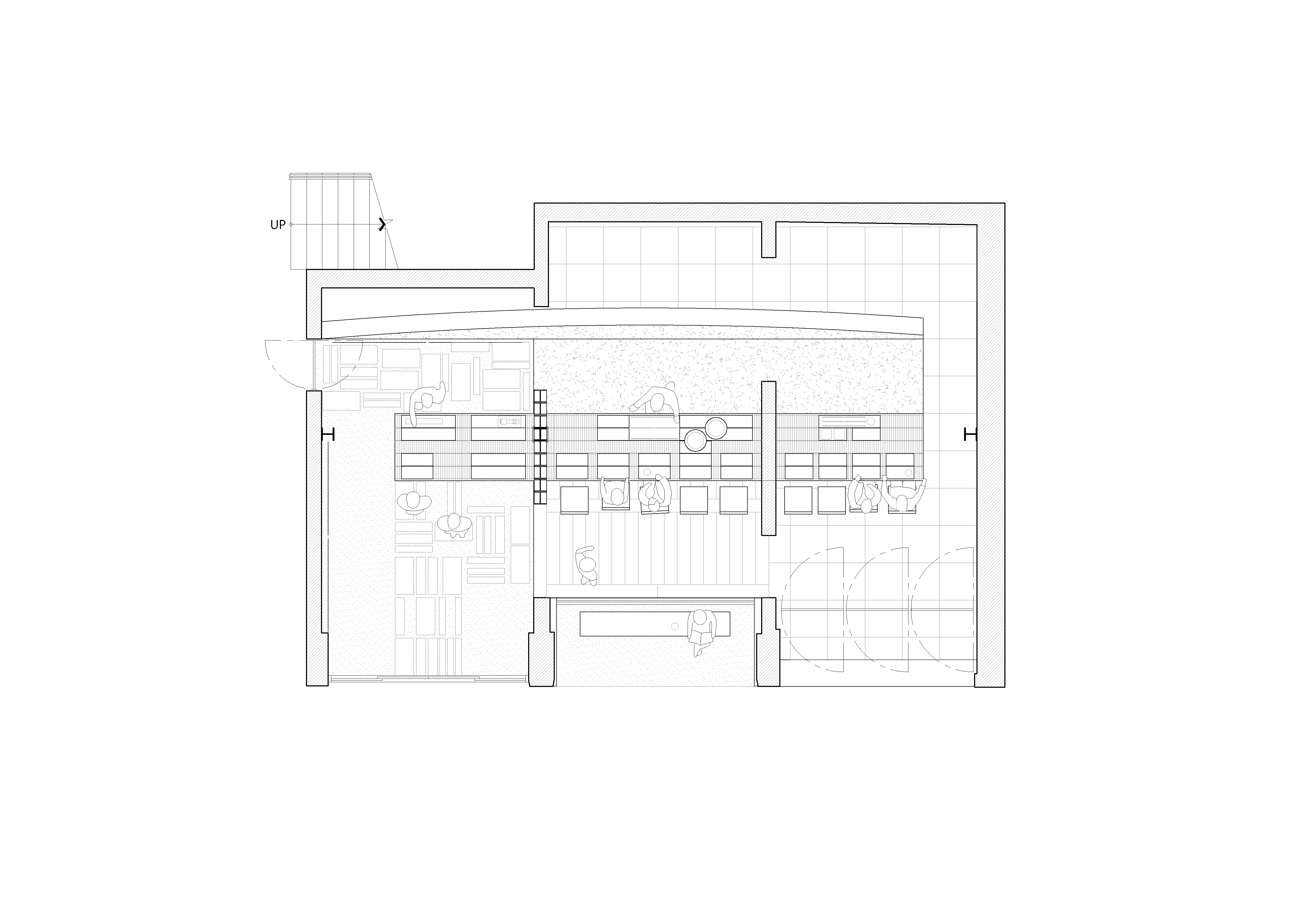
3개의 다른 가게가 있던 1층은 안내와 포장을 위한 공간, 차를 내리는 공간, 커피를 내리는 공간으로 나뉜다. 기존 공간 구성을 이용하여 설계된 세 공간은 다른 마감 재료와 공간 구성을 가지며 작은 상점들로 이루어진 망원동의 맥락을 이어간다. eert 의 가레산스이를 재해석해 만든 중앙의 긴 테이블은 서로 다른 세 공간을 이어주는 역할을 한다. 테이블 뒤의 벽 조명은 커피와 차를 만드는 행위에 집중하게 해주며, 손님들에게 새로운 경험을 가능하게 한다. 이 빛은 기존 공간의 흔적과 새로운 요소들을 밝혀주는 동시에 거리를 밝혀주고 사람들의 시선을 끌어모은다.

The first floor, where there were three different shops, is divided into a space for information and packaging, a space for tea brewing, and a space for coffee brewing. The three spaces designed using the existing space configuration have different finishing materials and space configurations and continue the context of the telephoto building consisting of small stores. The long table in the center, which was reinterpreted by Eert's Garethans, serves to connect three different spaces. The wall lighting behind the table allows customers to focus on the act of making coffee and tea, enabling new experiences. This light illuminates the traces of existing space and new elements, while illuminating the streets and attracting people's attention.









Design Workment
Location 105-1, Poeun-ro, Mapo-gu, Seoul, Republic of Korea
Gross floor area 150㎡
Completion 2022
Principal architect Joonwoo Cho
Photographer Yousub Song
'Interior Project > Cafe&Restaurant' 카테고리의 다른 글
| JISU Speciality Caffee Shop (0) | 2022.04.21 |
|---|---|
| ohvenu cafe (0) | 2022.04.20 |
| SSAP COFFEE (0) | 2022.04.14 |
| OPNNG (0) | 2022.04.13 |
| SCRAB (0) | 2022.04.12 |
마실와이드 | 등록번호 : 서울, 아03630 | 등록일자 : 2015년 03월 11일 | 마실와이드 | 발행ㆍ편집인 : 김명규 | 청소년보호책임자 : 최지희 | 발행소 : 서울시 마포구 월드컵로8길 45-8 1층 | 발행일자 : 매일



