
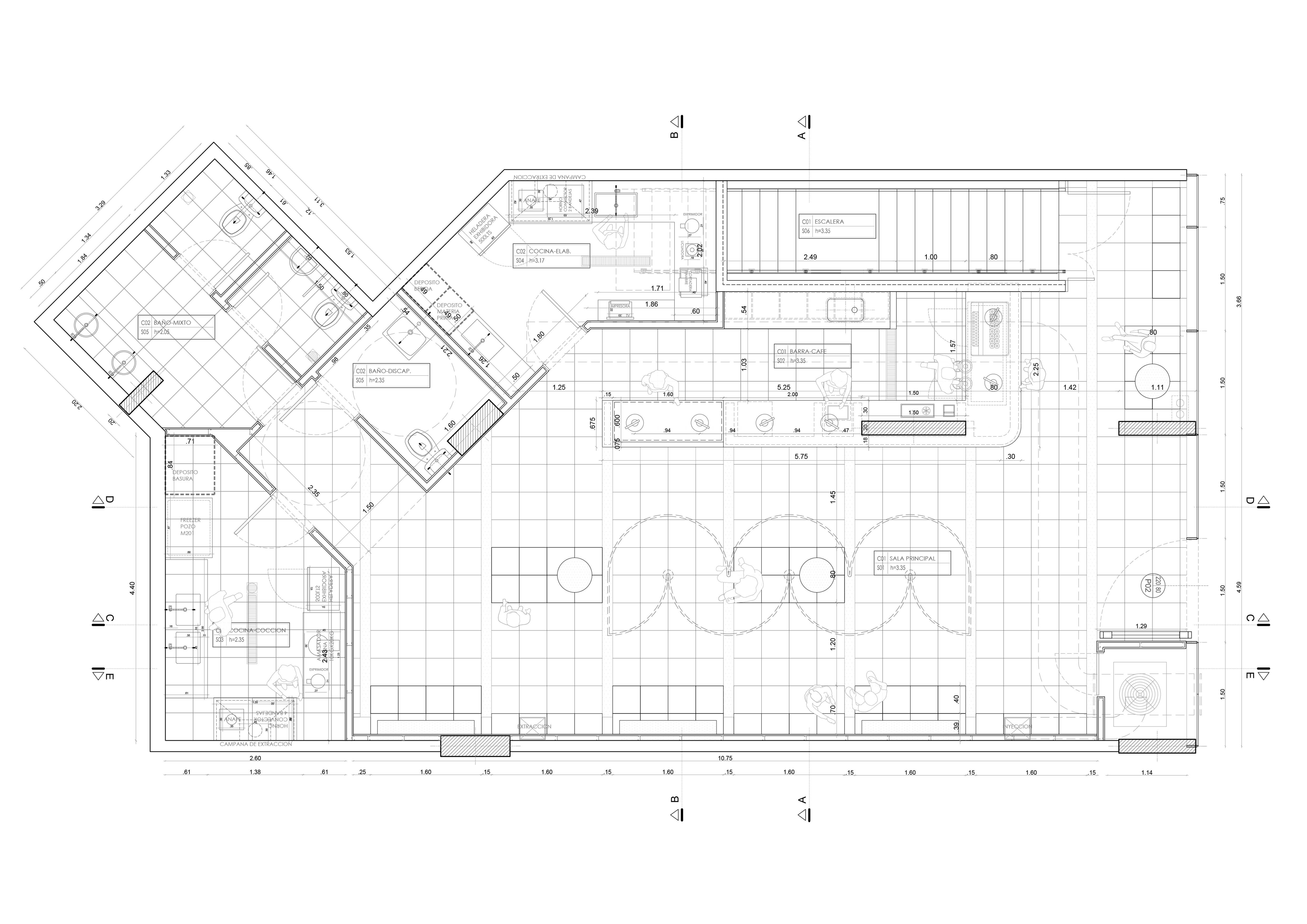
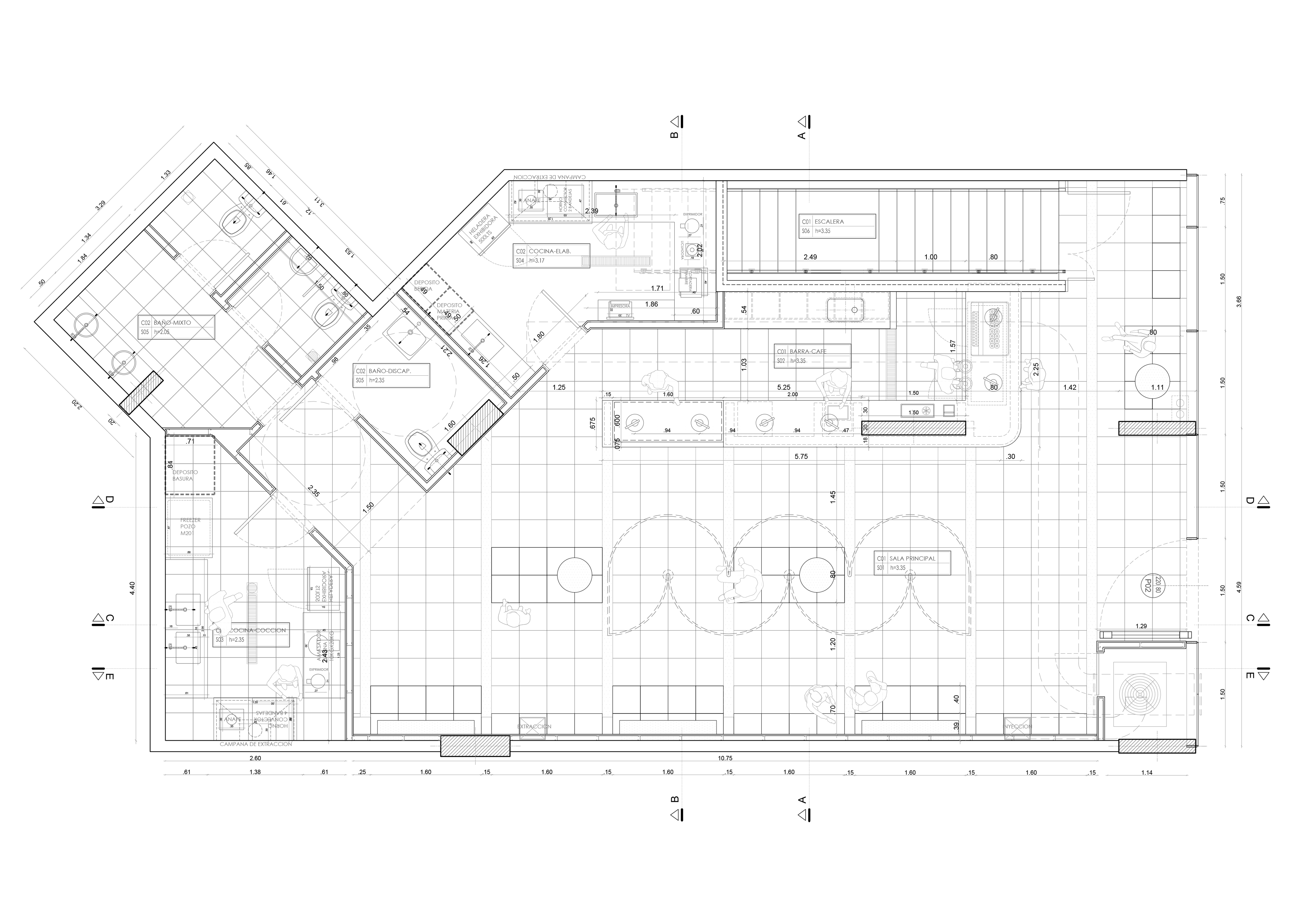
The project was designed as a single space with quickly perceived simple lines, with pure geometries in harmony with neutral tones, stone materials, specific vegetation, and a central sculptural piece as the main lighting element. It was developed alluding to the squares of Buenos Aires, where some elements of the national and eastern culture merge with the aroma of coffee.

이 프로젝트는 중성적인 색조와 석재, 특정 식생, 중앙 조각 작품이 주 조명 요소로 조화를 이루는, 빠르게 인식되는 단순한 선들이 있는 단일 공간으로 설계되었다. 부에노스아이레스의 광장을 암시하며 개발되었는데, 부에노스아이레스와 동양의 문화의 일부 요소가 커피 향과 결합되어 있다.









Design Tomas Mielnikowicz
Location Puerto Madero, Buenos Aires, Argentina
Building area 100m²
Completion 2020
Photographer Hernan Taboada
'Interior Project > Cafe&Restaurant' 카테고리의 다른 글
| HIDDEN HOUR (0) | 2022.04.28 |
|---|---|
| MOSP (0) | 2022.04.22 |
| ohvenu cafe (0) | 2022.04.20 |
| eert mangwon (0) | 2022.04.19 |
| SSAP COFFEE (0) | 2022.04.14 |
마실와이드 | 등록번호 : 서울, 아03630 | 등록일자 : 2015년 03월 11일 | 마실와이드 | 발행ㆍ편집인 : 김명규 | 청소년보호책임자 : 최지희 | 발행소 : 서울시 마포구 월드컵로8길 45-8 1층 | 발행일자 : 매일



