
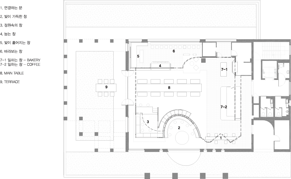
Daejeon MOSP is located gently at the foot of the mountain. You can see downtown Daejeon from now on, and there is Bomunsan Mountain in the back. Located on the top of the fifth floor, MOSP used slow stairs from the ground at the foot of Bomunsan Mountain to the inside of the cafe naturally according to the flow of land. The building viewed from the other side of Bomunsan Mountain is somewhat vertical, but when you enter the cafe from Bomunsan Mountain, you enter with a low and leisurely horizontal mass. The view of downtown Daejeon from the terrace opposite after entering feels like an unfamiliar scenery. The interior of the cafe overlooking the slow stairs has its own comfort. The indoor space is large, but it is not a spacious feeling, but I thought about it so that I could stay cozy and relaxed. A long partition was installed in the space, and doors and windows reflecting various rest behaviors were created.

대전 ‘MOSP(모습)’은 산자락 밑에 살포시 자리 잡고있다. 앞으로는 대전시내가 내려 다 보이고 뒤로는 보문산이 자리한다. 5개층 중 최상층에 위치한 MOSP은 보문산자락 땅에서 대지의 흐름대로 자연스럽게 카페 내부로 들어올 수 있는 느린 계단을 두었다. 보문산 반대편에서 바라본 건물은 다소 수직적 매스감을 취하고 있으나, 보문산에서 카페로 진입 할 때는 낮고 여유 있는 수평적 매스감을 느끼며 진입하게 된다. 진입 후 반대편 테라스에서 내려다보는 대전 시내의 풍경은 마치 생소한 풍경처럼 느껴진다. 느린 계단을 올라 마주한 카페 내부 모습에는 각자의 편안함이 있다. 내부 공간은 넓지만 넓은 공간감이 아닌, 아늑함을 느끼며 편안히 쉴 수 있도록 고민하였다. 우리는 공간에 하나로 연결된 긴 파티션을 세우고, 그 안에 다양한 쉼의 행태를 반영한 모습을 문과 창으로 만들었다.










Design Atmoround
Location 27-5, Munwha-dong, Jung-gu, Daejeon, Republic of Korea
Photographer Woojin Park
'Interior Project > Cafe&Restaurant' 카테고리의 다른 글
| LU Style Restaurant (0) | 2022.06.09 |
|---|---|
| HIDDEN HOUR (0) | 2022.04.28 |
| JISU Speciality Caffee Shop (0) | 2022.04.21 |
| ohvenu cafe (0) | 2022.04.20 |
| eert mangwon (0) | 2022.04.19 |
마실와이드 | 등록번호 : 서울, 아03630 | 등록일자 : 2015년 03월 11일 | 마실와이드 | 발행ㆍ편집인 : 김명규 | 청소년보호책임자 : 최지희 | 발행소 : 서울시 마포구 월드컵로8길 45-8 1층 | 발행일자 : 매일



