
Land and builder
The relationship between houses in the Pangyo district were established by the district unit plan. The relationship is defined as houses without walls, which makes the urban landscape beautiful and encourages communication between neighbors, but it is not enough to establish the old sentiment in which neighbors communicated in the center of the alley. It's like kids who had a fight with their friends in school and the teachers forced for them to make up.
This house is used on weekends by a couple teaching in college and their son.The sincere professor couple wanted a communication space that was open to the inside so as not to disturb the neighbors, so they minimized the windows that were opened to the outside and made a less conspicuous relationship with the outside landscape.
Use of light
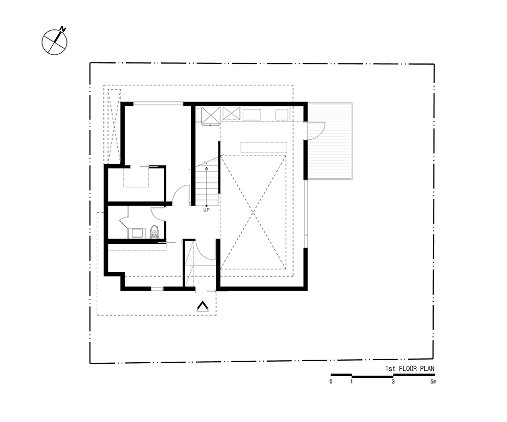
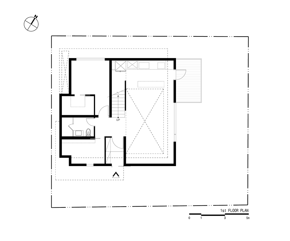
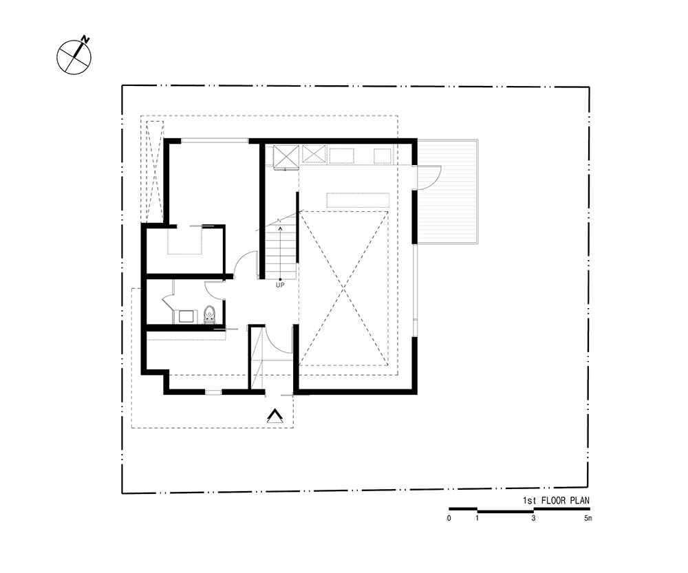
Due to the nature of their job, writing and reading areas were considered important, and a 9-meter-square floor was overlaid with two floors, and a skylight was placed in the gap between them to let light in.
Two story living room
Light falls through the deflected square gap, and the two-story open living roomcreates a sense of depth and reduces the feeling of closure, even though the windows are minimized.
Master bedroom
The master bedroom was made narrow enough to accommodate only the bed, and the lighting was reduced for a good night's sleep. The windows were placed low and long at the level of the floor, and the secret of the space was emphasized by keeping the outdoor landscape at eye level with the flower arrangement.
Stairs
Both sides of the straight staircase were closed narrowly, and a long vertical window was placed on the opposite side to emphasize the direction to the sky. This is the most open space in the house.
Family room
The front window and balcony connected to the outside were joined to the family room on the second floor, and the exterior space was created like an interior through the facade design, allowing bright light to enter.
Structure and materials
The first floor is made of concrete and the second floor is made of a light wooden frame to minimize the walls and organize it into a stable structure. Colored steel sheets, the main material for the exterior, was used for the first time by making dark blue exterior steel sheets and mustard colored steel sheets for interior use after long consultations with Dongbu Steel’s design team and Noroo Paint color team. The solid and modern feel of the steel plates and the soft textured carbonized wood on the exterior wall of the first floor create a contrast.
Appearance of the building
The simple and elegant design contrasts with the surroundings, but with a variety of plantings and landscaping, it was designed to be considerate of the neighbors and be a friendly house.

땅 그리고 건축주
판교지구의 집들은 지구단위계획으로 집과 집들의 관계가 설정되어 있다. 담장 없는 집들로 규정되어 도시경관을 아름답게 만들며 이웃과의 소통을 권하지만 결코 골목중심으로 소통되었던 예전의 정서를 찾기엔 역부족이다. 마치 초등학교시절 친구와 싸운 아이들에게 선생님이 주선하여 억지로 손을 내민 아이들같은 분위기랄까...
대학에 출강하는 부부와 아들 세 식구를 위한 공간으로 주로 주말에 많이 사용되는 집이다. 솔직한 성격의 교수부부는 이웃에게 피해되지 않도록 내부로 열린 소통적인 공간을 원하여 외부로 열린 창은 최소화 시키고 외부조경과의 관계만 이웃 눈에 덜 띄게 관계를 맺었다.
빛의 사용
직업의 특성상 글을 쓰거나 독서공간을 중요하게 생각했고, 9m 스퀘어 평면을 2개 층으로 포개고 옆으로 살짝 밀어 포개어 벌어진 틈새로 천창을 두어 빛이 스며들도록 했다.
2개층 높이의 거실
비껴난 사각 틈새로 빛이 떨어지며 2개층 높이로 오픈된 거실은 깊이 있는 공간감을 연출하며 창문을 최소화하더라도 폐쇄적인 느낌을 줄여주는 역할을 한다.
안방
안방은 침대만 들어가는 넓이로 좁게 만들었으며 숙면을 위해 조명을 최소화하여 다소 어둡게 처리했다. 창은 바닥 높이로 낮고 길게 두었고
바깥조경인 초화류와 눈높이를 아래로 맞추어 공간의 은밀함에 중점을 두었다.
계단
일자로 뻗은 계단의 양옆은 좁게 닫아 두었으며 맞은편에 세로로 긴 창을 두어 하늘로의 방향성을 강조했다. 이 집에서 가장 개방적인 자세를 취한공간이다.
가족실
2층의 가족실에 외부와 연결되는 전창과 발코니를 잇고 입면디자인을 통해 내부같은 외부공간을 만들어 밝은 빛이 들어오게 되었다.
구조 및 재료
1층은 콘크리트로 2층은 가벼운 목조 프레임으로 만들어 벽체를 최소화하고 안정감 있는 구조로 정리하려 했으며 외부의 메인재료인 컬러강판은 동부제강의 디자인팀과 노루표 페인트 컬러팀과 오랜 협의를 통해 먹청색 외장강판과 인테리어용 겨자색 강판을 만들어 처음으로 사용했다. 강판의 견고하고 모던한 느낌과 1층 외벽의 부드러운 질감의 탄화우드가 대비를 이루도록 했다.
건물의 외형정리
간단하고 단아한 조형으로 주변과 대비를 이루지만 다양한 식재와 조경으로 이웃을 배려하고 친근감 있는 집이 되도록 하였다.
















Architects Kawa Design Group│(주)가와종합건축사사무소
Location Pangyo-dong, Bundang-gu, Seongnam-si, Republic of Korea
Use House
Site area 237.00㎡
Built area 87.36㎡
Total floor area 136.80㎡
Floor 2F
Height 6.8m
Structure RC + Light Weight Wood Framing System
Exterior finish Color interlocking block + LUNAWOOD siding
Interior finish Gypsum board, painting
Architect Samyoung Choi
Construction E-ezer construction
Photographer Jungmin Seok
해당 프로젝트는 건축문화 2021년 12월호(Vol. 487)에 게재되었습니다.
The project was published in the December, 2021 recent projects of the magazine(Vol. 487).
December 2021 : vol. 487
Contents : RECORDS MESSAGES OF SYMBIOSIS, CONNECTION, AND BALANCE WITHOUT WALLS 구획을 벗어나 보여지는 공생, 연결, 균형의 메시지들 : NEWS / COMPETITION / BOOKS : SKETCH VLADIVOSTOK S..
anc.masilwide.com
'Architecture Project > Single Family' 카테고리의 다른 글
| JOYCE (0) | 2022.03.17 |
|---|---|
| YONGIN JUKJEON HOUSE (0) | 2022.03.16 |
| TWO-YARDS HOUSE (0) | 2022.03.15 |
| Gogiri House (0) | 2022.03.14 |
| ARCABOOKS (0) | 2022.03.14 |
마실와이드 | 등록번호 : 서울, 아03630 | 등록일자 : 2015년 03월 11일 | 마실와이드 | 발행ㆍ편집인 : 김명규 | 청소년보호책임자 : 최지희 | 발행소 : 서울시 마포구 월드컵로8길 45-8 1층 | 발행일자 : 매일



