
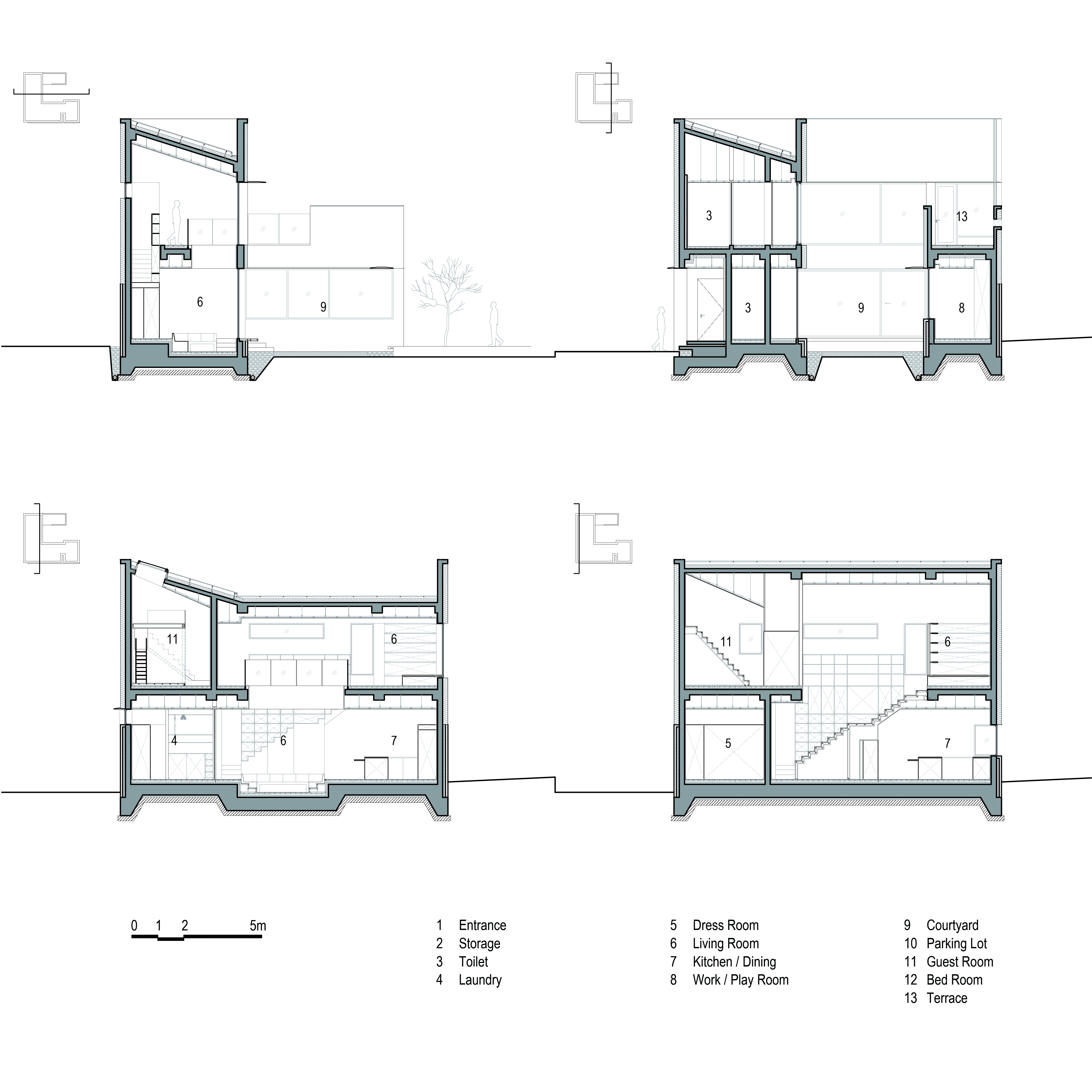
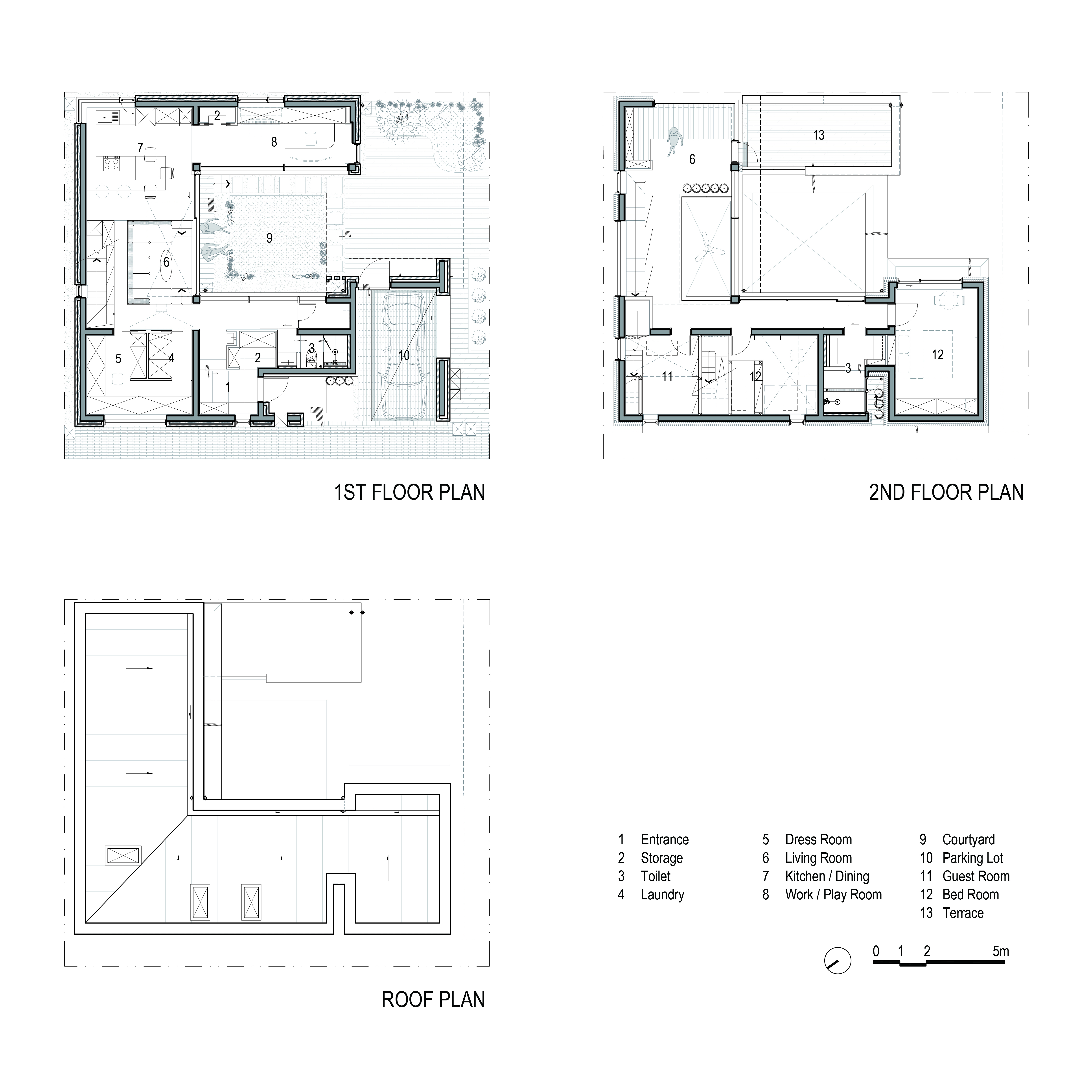
The Two-yards House is a new home for a couple with space for a child's unique life. The site is divided into a yard to look at and a yard to sit in. In the first yard, they can see the child from all interior spaces while the child enjoys the swing, and the materials that created it were specifically selected. In the second yard, they can grow plants in a sunny place, enjoy outdoor meals from time to time, and support various activities in the house. To this end, the entire external space was cut off and the two courtyards were divided and connected around the child's swing. When the family park the car and enter the front door by two shallow and wide steps, they will find themselves in a space containing a simple washbasin and a dress room where they can wash the hands and change clothes. It is a spatial structure that most actively fits the gap between family life and the standardized residential space that cannot be matched in an apartment. Of course, the first scenery that meets the entrance is the first yard, and this is consistent with the architect's design view, who considers the new landscape of the transferred view as important as it enters the space. In addition, a low living room, a kitchen with empty corners, a working space for her, and a studio that serves as an indoor play area for young son surround the courtyard. The maximum size window of the ㄷ-shaped surrounding the first courtyard make the space bright and warm. As the son climb the stairs of the bookshelf along the atrium, he will arrive at a living room with a mountain view and tall pine trees. It is also a good space to see the greenery from a high floor, to go out on the terrace to breathe the outside air, or to overlook the yard. There is a living room with a bedroom and a bathroom surrounding the first yard on the 2nd floor. In particular, the child's room has a variety of spaces for an attic, a slide, and an indoor climbing area suitable for active children. The Two-yards House is a space created by giving thought to the concerns of all stakeholders, such as the spatial change of the family at the turning points of life, the willingness for the change, and careful consideration and active communication between the architect and the family.

두마당집은 한 부부의 새로운 보금자리, 그리고 아이의 색다른 삶을 위한 공간이다. 대지는 바라보는 마당과 딛고 쓰는 마당으로 양분되어 활용된다. 첫 번째 마당에서는 아이가 그네를 즐기는 동안 내부의 모든 공간에서 아이의 모습을 바라볼 수 있는 시선의 구조와 이를 가능케 하는 재료의 선택을, 두 번째 마당에서는 양지바른 곳에 식물을 가꾸고 가끔 야외 식사를 즐기며 집안의 각종 액티브한 활동을 지원할 수 있는 공간이 된다. 이를 위해 전체 외부공간의 허리를 끊어 두 개의 마당이 아이의 그네를 중심으로 나뉘고 연계된다. 주차를 하고, 얕고 너른 두 개의 단을 딛으며 현관으로 진입하면 손을 세정하고 옷을 갈아입을 수 있는 간이 세면대와 드레스룸이 가장 가까운 곳에 위치한다. 가족의 생활과 아파트에서는 획일화된 주거공간 사이의 간극을 가장 적극적으로 맞춰서 만들어진 구조다. 현관에서 가장 먼저 맞이하는 풍경은 첫 번째 마당인데, 공간에 진입하는 순간 전이된 시야의 새로운 풍경을 중요하게 생각하는 건축가의 설계 지론과도 맞닿는다. 그리고 낮은 거실, 코너를 한껏 비워 낸 주방, 아내의 재택근무 공간과 아이의 실내 놀이터를 겸하는 작업실 등이 안마당을 둘러싼다. 첫 번째 마당을 둘러싼 ㄷ자 형태의 통 유리의 창호는 이 공간들은 항상 밝고 따뜻한 공간일 수 있도록 만든다. 아트리움을 따라 책장 계단을 오르면, 뒷산과 키 큰 소나무를 배경으로 하는 평상 겸 작은 거실이 반긴다. 단 높은 평상에서 푸름을 조망할 수도, 테라스로 나가 바깥 바람을 쐬며 마당을 내려다보기에도 좋다. 2층 역시 작은 거실, 침실, 욕실이 첫 번째 마당을 둘러싸며 놓이는데, 특히 아이의 방에는 활동적인 아이에게 어울리는 다락, 미끄럼틀, 실내 클라이밍 공간 등을 다채롭게 마련되어 있다. 욕실에는 환기와 채광을 위한 좁고 작은 테라스가 함께 있다. 두마당집은 삶의 전환점을 위한 가족의 공간적 변화와 그에 대한 의지, 건축가와 건축주의 깊은 배려와 활발한 소통 등 모든 관계자들의 고민이 켜켜이 쌓여 만들어진 집이다.
















Architects Architects H2L
Location Asan-si, Chungcheongnam-do, Republic of Korea
Site area 227.00m2
Building area 110.34m2
Gross floor area 175.69m2
Building scope 2F
Building to land ratio 48.6%
Floor area ratio 77.3%
Construction period 2020. 04 - 10
Completion 2020. 10
Principal architect Junghyun Hwang + Changyong Hyun (Kongju National Univ.)
Project architect Junghyun Hwang + Changyong Hyun (Kongju National Univ.)
Design team Changyul Lee, Soyeon Chung
Structural engineer Eden Structural Consultant
Mechanical engineer Uri E&C
Electrical engineer Uri E&C
Construction Woorimaeul A&C
Photographer Hyosook Chin
해당 프로젝트는 리빙즈, 디테일 01호에 게재되었습니다.
The project was published in LIVINGS, Detail 01
[BOOK] LIVINGS, Detail 리빙즈, 디테일 01호, 02호
단행본 발행 67개의 형태와 라이프스타일을 담은 주거공간, 국내외 "디테일한 주택 프로젝트"의 엮음
www.masilwide.com
'Architecture Project > Single Family' 카테고리의 다른 글
| YONGIN JUKJEON HOUSE (0) | 2022.03.16 |
|---|---|
| SQUARE & SQUARE (0) | 2022.03.16 |
| Gogiri House (0) | 2022.03.14 |
| ARCABOOKS (0) | 2022.03.14 |
| SOOM ZIP (0) | 2022.03.11 |
마실와이드 | 등록번호 : 서울, 아03630 | 등록일자 : 2015년 03월 11일 | 마실와이드 | 발행ㆍ편집인 : 김명규 | 청소년보호책임자 : 최지희 | 발행소 : 서울시 마포구 월드컵로8길 45-8 1층 | 발행일자 : 매일



