
The site, which is surrounded by Chilbongsan mountain, has a natural soundproof effect with a green belt and a quiet and clean location environment. The concept of a 'breathing house' that allows the client, who wanted to get away from the stuffy city and relax in nature, to comfortably breathe was set.
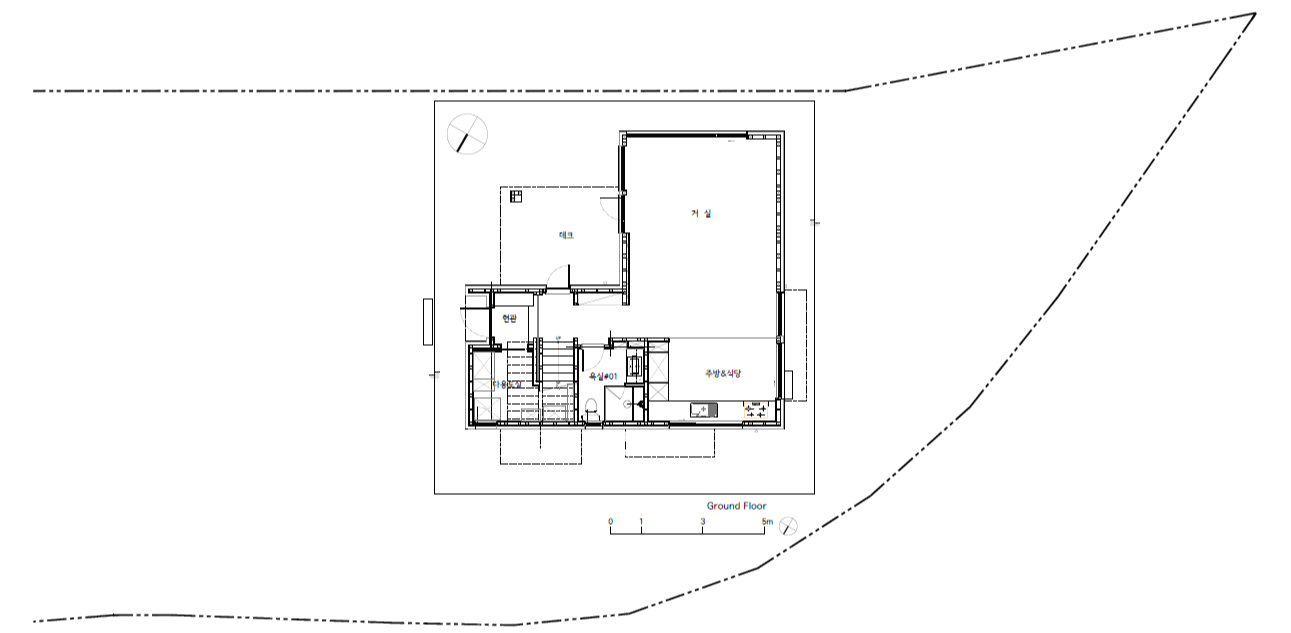
‘SOOM ZIP’ has a heavy-weight timber structure and is a two-story weekend villa. The external form is a square wearing a pyramid hip roof that resembles the shape of a ‘breath’ and overall, the straight lines are stressed, and a form that is in harmony with the surrounding nature is shown with the rafters under the roof and exposed pillar. The boundary between the interior and the exterior was obscured by generally using eco-friendly wood for the interior, and the bathrooms were finished with cypress to maximize the scent. Various methods that allow the people, house and nature to breathe together were provided through SOOM ZIP to the client who wanted to live a life of nature away from the city life and noises.

칠봉산에 둘러싸여 있는 숨 ; 집은 녹지를 통해 자연 방음 효과를 받고 있으며 조용하고 청정한 환경입지를 가지고 있다. 이 집은 숨 막히는 도심에서 벗어나 자연 속 휴식을 원한 건축주에게 편안한 숨을 쉴 수 있는 ‘숨 쉬는 집’으로 중목 구조로 지어진 2층으로 된 주말용 별채이다. 외부 형태는 사각형에 ‘숨’의 모양과 닮은 사모 지붕을 썼고 전체적으로 직선이 강하며 지붕 밑 서까래와 노출 기둥을 통해 주변 자연과 조화로운 형태를 보여준다. 실내 또한 전체적으로 친환경 목재를 사용하여 내외부의 경계를 모호하게 했으며, 욕실은 편백으로 마감하여 향을 극대화했다. 도시의 생활 및 소음 속에서 벗어나 자연의 삶을 원했던 건축주에게 숨집을 통해 사람, 집 그리고 자연이 함께 호흡할 수 있는 다양한 방법을 제공한다.











Architects Dangam
Location Nampyeong-ro, Yangji-myeon, Cheoin-gu, Yongin-si, Gyeonggi-do, Republic of Korea
Site area 575.00㎡
Building area 88.11㎡
Gross floor area 142.31㎡
Building scope 2F
Building to land ratio 15.32%
Floor area ratio 24.75%
Construction period Oct. 2019 - Apr. 2020
Completion Jun. 2020
Principal architect Moonhak Park
Project architect Eunhee Kam
Design team Seunghwa Park, Yujin Lee, Daehan Kim
Structural engineer I & HOUSING
Mechanical engineer Saeneul Engineering
Electrical engineer Saeneul Engineering
Construction Dangam construction co.,Ltd.
Photographer Namsun Lee
해당 프로젝트는 리빙즈, 디테일 01호에 게재되었습니다.
The project was published in LIVINGS, Detail 01
[BOOK] LIVINGS, Detail 리빙즈, 디테일 01호, 02호
단행본 발행 67개의 형태와 라이프스타일을 담은 주거공간, 국내외 "디테일한 주택 프로젝트"의 엮음
www.masilwide.com
'Architecture Project > Single Family' 카테고리의 다른 글
| Gogiri House (0) | 2022.03.14 |
|---|---|
| ARCABOOKS (0) | 2022.03.14 |
| WALDEN HOUSE (0) | 2022.03.10 |
| GANGHOEHEON (0) | 2022.03.08 |
| VILLA TSUKUBA (0) | 2022.03.08 |
마실와이드 | 등록번호 : 서울, 아03630 | 등록일자 : 2015년 03월 11일 | 마실와이드 | 발행ㆍ편집인 : 김명규 | 청소년보호책임자 : 최지희 | 발행소 : 서울시 마포구 월드컵로8길 45-8 1층 | 발행일자 : 매일



